Property
Account |
| Property ID: | 35125 | Abbreviated Legal Description: | TAUSICK PARK WLY STRIP LOT 1; NLY PTN LOT 2; NELY PTN LOT 3 BLK 3(THIS IS LOT 2 OF BLA SURVEY) |
| Parcel Number: | 360722550327 | Agent Code: | |
| Type: | Real | | |
| Tax Area: | 1 - OL-140-F | Land Use Code | 12 |
| Open Space: | N | DFL | N |
| Historic Property: | N | Remodel Property: | N |
| Multi-Family Redevelopment: | N | | |
| Township: | 7 | Section: | 22 |
| Range: | 36 |
Location |
| Address: | 2032 GARRISON ST WA 99362 | Mapsco: | |
| Neighborhood: | A Duplex | Map ID: | |
| Neighborhood CD: | 413031 |
Owner |
| Name: | LOCKEN DAVID L & KIMBERLY A | Owner ID: | 6130 |
| Mailing Address: | 1162 MAGNOLIA DR WALLA WALLA, WA 99362 | % Ownership: | 100.0000000000% |
| | | Exemptions: | |
Taxes and Assessment Details
Property Tax Information as of
02/21/2026
Click on "Statement Details" to expand or collapse a tax statement.
* Please enter a valid date ** Please enter a valid date *
Statement Details |
| | TOTAL: | $0.00 | $0.00 | $0.00 | $0.00 | $0.00 | $0.00 |
|
| | $0.00 | $0.00 | $0.00 | $0.00 | $0.00 | $0.00 |
Values
| (+) Improvement Homesite Value: | + | $0 | |
| (+) Improvement Non-Homesite Value: | + | $280,750 | |
| (+) Land Homesite Value: | + | $0 | |
| (+) Land Non-Homesite Value: | + | $66,210 | |
| (+) Curr Use (HS): | + | $0 | $0 |
| (+) Curr Use (NHS): | + | $0 | $0 |
| | | -------------------------- | |
| (=) Market Value: | = | $346,960 | |
| (–) Productivity Loss: | – | $0 | |
| | | -------------------------- | |
| (=) Subtotal: | = | $346,960 | |
| (+) Senior Appraised Value: | + | $0 | |
| (+) Non-Senior Appraised Value: | + | $346,960 | |
| | | -------------------------- | |
| (=) Total Appraised Value: | = | $346,960 | |
| (–) Senior Exemption Loss: | – | $0 | |
| (–) Exemption Loss: | – | $0 | |
| | | -------------------------- | |
| (=) Taxable Value: | = | $346,960 | |
Taxing Jurisdiction
| Owner: | LOCKEN DAVID L & KIMBERLY A | | |
| % Ownership: | 100.0000000000% | | |
| Total Value: | $346,960 | | |
| Tax Area: | 1 - OL-140-F |
| CERFD | CURRENT EXPENSE REFUND 010 | 0.0000000000 | $346,960 | $346,960 | $0.00 | | |
| CURREXP | CURRENT EXPENSE 010 | 1.0175366760 | $346,960 | $346,960 | $353.04 | | |
| HUMNSERV | HUMAN SERVICES 119 | 0.0250000000 | $346,960 | $346,960 | $8.67 | | |
| SLDREL | SOLDIERS RELIEF 121 | 0.0155990005 | $346,960 | $346,960 | $5.41 | | |
| EMERGSER | EMS 147 | 0.3792580840 | $346,960 | $346,960 | $131.59 | | |
| EMSRFD | EMS REFUND 147 | 0.0000000000 | $346,960 | $346,960 | $0.00 | | |
| PORTRFD | PORT REFUND 640 | 0.0000000000 | $346,960 | $346,960 | $0.00 | | |
| PORTWWGEN | PORT OF WW 640 | 0.2460186015 | $346,960 | $346,960 | $85.36 | | |
| SD140BOND | SD #140 BOND 764 | 0.8342371393 | $346,960 | $346,960 | $289.45 | | |
| SD140GEN | SD #140 GENERAL 760 | 2.0646500647 | $346,960 | $346,960 | $716.35 | | |
| ST2 | STATE SCHOOL PART 2 600 | 0.8131451643 | $346,960 | $346,960 | $282.13 | | |
| STATESCHL | STATE SCHOOL 600 | 1.5158548041 | $346,960 | $346,960 | $525.94 | | |
| STREFUND | STATE REFUND LEVY 603 | 0.0000000000 | $346,960 | $346,960 | $0.00 | | |
| CWWBOND | C OF WW BOND 643 | 0.2760494372 | $346,960 | $346,960 | $95.78 | | |
| CWWGEN | CITY OF WW 631 | 1.6100204973 | $346,960 | $346,960 | $558.61 | | |
| CWWRFD | CITY OF WALLA WALLA REFUND 631 | 0.0000000000 | $346,960 | $346,960 | $0.00 | | |
| | Total Tax Rate: | 8.7973694689 | | | | | |
| | | | | Taxes w/Current Exemptions: | $3,052.33 | | |
| | | | | Taxes w/o Exemptions: | $3,052.33 | | |
Improvement / Building
| Improvement #1: | RESIDENTIAL | State Code: | 12 | 1976.0 sqft | Value: | $280,750 |
| Exterior Wall: | PLYWOOD | Heating/Cooling: | FORCED AIR | | Number of Bathrooms: | 3 | Number of Bedrooms: | 4 | | Plumbing: | 16 | Roof Covering: | COMP SHINGLE |
|
| | Type | Description | Class CD | Sub Class CD | Year Built | Area |
| | MA | Main Area | 4 | 30 | 1975 | 1976.0 |
| | SI1 | SITE IMPROVEMENT | 4 | 30 | 0 | 2.0 |
| | ATG | Attached Garage | 4 | 30 | 1975 | 286.0 |
| | ATG | Attached Garage | 4 | 30 | 1975 | 286.0 |
| | UPFL | Upper Floor (included in main area) | 4 | 30 | 1975 | 884.0 |
Sketch
Property Image
Land
| 1 | RES 1 | Converted: Residential | 0.1900 | 8276.00 | 0.00 | 0.00 | 1.00 | $66,210 | $0 |
Roll Value History
| 2026 | N/A | N/A | N/A | N/A | N/A |
| 2025 | $286,100 | $66,300 | $0 | $352,400 | $352,400 |
| 2024 | $286,100 | $66,300 | $0 | $352,400 | $352,400 |
| 2023 | $280,750 | $66,210 | $0 | $346,960 | $346,960 |
| 2022 | $280,850 | $43,450 | $0 | $324,300 | $324,300 |
| 2021 | $175,530 | $43,450 | $0 | $218,980 | $218,980 |
| 2020 | $140,430 | $43,450 | $0 | $183,880 | $183,880 |
| 2019 | $140,430 | $43,450 | $0 | $183,880 | $183,880 |
| 2018 | $108,020 | $43,450 | $0 | $151,470 | $151,470 |
| 2017 | $108,020 | $43,450 | $0 | $151,470 | $151,470 |
| 2016 | $108,020 | $33,100 | $0 | $141,120 | $141,120 |
| 2015 | $108,020 | $33,100 | $0 | $141,120 | $141,120 |
| 2014 | $98,200 | $33,100 | $0 | $131,300 | $131,300 |
| 2013 | $98,200 | $33,100 | $0 | $131,300 | $131,300 |
| 2012 | $91,900 | $33,100 | $0 | $0 | $0 |
| 2011 | $57,400 | $17,000 | $0 | $0 | $0 |
| 2010 | $98,200 | $33,100 | $0 | $0 | $0 |
Deed and Sales History
| 1 | 08/31/2016 | SWD | STATUTORY WARRANTY DEED | KNOWLES JEREMY J & AMBER B | LOCKEN DAVID L & KIMBERLY A | | | $140,000.00 | 130934 | 2016-07046 |
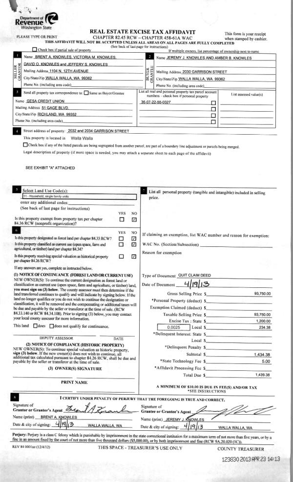
| 2 | 04/23/2013 | QCD | QUIT CLAIM DEED | KNOWLES, BRENT & VICTORIA N ET | KNOWLES, JEREMY J & AMBER B | | | $93,750.00 | 123830 | 2013-03968 |
| 3 | 03/29/2013 | QCD | QUIT CLAIM DEED | GARRISON STREET ENTERPRISES LL | KNOWLES, BRENT & VICTORIA N | | | $0.00 | 123693 | 2013-03041 |
Payout Agreement
| No payout information available.. |