Property
Account |
| Property ID: | 35098 | Abbreviated Legal Description: | WILSONS N1/2 OF LOTS 1 & 2 BLK 2 |
| Parcel Number: | 360716580217 | Agent Code: | |
| Type: | Real | | |
| Tax Area: | 5 - OL-140 | Land Use Code | 11 |
| Open Space: | N | DFL | N |
| Historic Property: | N | Remodel Property: | N |
| Multi-Family Redevelopment: | N | | |
| Township: | 7 | Section: | 16 |
| Range: | 36 |
Location |
| Address: | 720 WILSON ST WA 99362 | Mapsco: | |
| Neighborhood: | A-SFR | Map ID: | |
| Neighborhood CD: | 513011 |
Owner |
| Name: | CORRY SHALIMAR | Owner ID: | 66085 |
| Mailing Address: | 720 WILSON ST WALLA WALLA, WA 99362 | % Ownership: | 100.0000000000% |
| | | Exemptions: | |
Taxes and Assessment Details
Property Tax Information as of
02/21/2026
Click on "Statement Details" to expand or collapse a tax statement.
* Please enter a valid date ** Please enter a valid date *
Statement Details |
| | TOTAL: | $0.00 | $0.00 | $0.00 | $0.00 | $0.00 | $0.00 |
|
| | $0.00 | $0.00 | $0.00 | $0.00 | $0.00 | $0.00 |
Values
| (+) Improvement Homesite Value: | + | $223,780 | |
| (+) Improvement Non-Homesite Value: | + | $0 | |
| (+) Land Homesite Value: | + | $37,500 | |
| (+) Land Non-Homesite Value: | + | $0 | |
| (+) Curr Use (HS): | + | $0 | $0 |
| (+) Curr Use (NHS): | + | $0 | $0 |
| | | -------------------------- | |
| (=) Market Value: | = | $261,280 | |
| (–) Productivity Loss: | – | $0 | |
| | | -------------------------- | |
| (=) Subtotal: | = | $261,280 | |
| (+) Senior Appraised Value: | + | $0 | |
| (+) Non-Senior Appraised Value: | + | $261,280 | |
| | | -------------------------- | |
| (=) Total Appraised Value: | = | $261,280 | |
| (–) Senior Exemption Loss: | – | $0 | |
| (–) Exemption Loss: | – | $0 | |
| | | -------------------------- | |
| (=) Taxable Value: | = | $261,280 | |
Taxing Jurisdiction
| Owner: | CORRY SHALIMAR | | |
| % Ownership: | 100.0000000000% | | |
| Total Value: | $261,280 | | |
| Tax Area: | 5 - OL-140 |
| CERFD | CURRENT EXPENSE REFUND 010 | 0.0000000000 | $261,280 | $261,280 | $0.00 | | |
| CURREXP | CURRENT EXPENSE 010 | 1.0175366760 | $261,280 | $261,280 | $265.86 | | |
| HUMNSERV | HUMAN SERVICES 119 | 0.0250000000 | $261,280 | $261,280 | $6.53 | | |
| SLDREL | SOLDIERS RELIEF 121 | 0.0155990005 | $261,280 | $261,280 | $4.08 | | |
| EMERGSER | EMS 147 | 0.3792580840 | $261,280 | $261,280 | $99.09 | | |
| EMSRFD | EMS REFUND 147 | 0.0000000000 | $261,280 | $261,280 | $0.00 | | |
| PORTRFD | PORT REFUND 640 | 0.0000000000 | $261,280 | $261,280 | $0.00 | | |
| PORTWWGEN | PORT OF WW 640 | 0.2460186015 | $261,280 | $261,280 | $64.28 | | |
| SD140BOND | SD #140 BOND 764 | 0.8342371393 | $261,280 | $261,280 | $217.97 | | |
| SD140GEN | SD #140 GENERAL 760 | 2.0646500647 | $261,280 | $261,280 | $539.45 | | |
| ST2 | STATE SCHOOL PART 2 600 | 0.8131451643 | $261,280 | $261,280 | $212.46 | | |
| STATESCHL | STATE SCHOOL 600 | 1.5158548041 | $261,280 | $261,280 | $396.06 | | |
| STREFUND | STATE REFUND LEVY 603 | 0.0000000000 | $261,280 | $261,280 | $0.00 | | |
| CWWBOND | C OF WW BOND 643 | 0.2760494372 | $261,280 | $261,280 | $72.13 | | |
| CWWGEN | CITY OF WW 631 | 1.6100204973 | $261,280 | $261,280 | $420.67 | | |
| CWWRFD | CITY OF WALLA WALLA REFUND 631 | 0.0000000000 | $261,280 | $261,280 | $0.00 | | |
| | Total Tax Rate: | 8.7973694689 | | | | | |
| | | | | Taxes w/Current Exemptions: | $2,298.58 | | |
| | | | | Taxes w/o Exemptions: | $2,298.58 | | |
Improvement / Building
| Improvement #1: | RESIDENTIAL | State Code: | 11 | 810.0 sqft | Value: | $223,780 |
| Exterior Wall: | SIDING | Heating/Cooling: | HEAT PUMP | | Number of Bathrooms: | 2 | Number of Bedrooms: | 2 | | Plumbing: | 10 | Roof Covering: | COMP SHINGLE |
|
| | Type | Description | Class CD | Sub Class CD | Year Built | Area |
| | MA | Main Area | 1 | 35 | 1920 | 810.0 |
| | SI1 | SITE IMPROVEMENT | 1 | 35 | 0 | 2.0 |
| | BASE | BASEMENT | 1 | 35 | 1920 | 336.0 |
| | BPF | BASEMENT -PARTITIONED FINISH | 1 | 35 | 1920 | 336.0 |
| | RPS | PORCH W/STEPS,ROOF | 1 | 35 | 1920 | 60.0 |
| | DTG | Detached Garage | 1 | 35 | 1920 | 374.0 |
| | ATIC | ATTIC ROOM | 1 | 35 | 1920 | 88.0 |
| | OPS | OPEN PORCH W/STEPS | 1 | 35 | 1920 | 40.0 |
Sketch
Property Image
Land
| 1 | RES 1 | Converted: Residential | 0.1377 | 6000.00 | 0.00 | 0.00 | 1.00 | $37,500 | $0 |
Roll Value History
| 2026 | N/A | N/A | N/A | N/A | N/A |
| 2025 | $242,550 | $60,000 | $0 | $302,550 | $302,550 |
| 2024 | $242,550 | $60,000 | $0 | $302,550 | $302,550 |
| 2023 | $223,780 | $37,500 | $0 | $261,280 | $261,280 |
| 2022 | $213,130 | $37,500 | $0 | $250,630 | $250,630 |
| 2021 | $193,750 | $37,500 | $0 | $231,250 | $231,250 |
| 2020 | $155,000 | $37,500 | $0 | $192,500 | $192,500 |
| 2019 | $155,000 | $37,500 | $0 | $192,500 | $192,500 |
| 2018 | $155,000 | $37,500 | $0 | $192,500 | $192,500 |
| 2017 | $91,080 | $24,000 | $0 | $115,080 | $115,080 |
| 2016 | $82,800 | $24,000 | $0 | $106,800 | $9,100 |
| 2015 | $82,800 | $24,000 | $0 | $106,800 | $9,100 |
| 2014 | $82,800 | $24,000 | $0 | $106,800 | $9,100 |
| 2013 | $82,800 | $24,000 | $0 | $106,800 | $69,100 |
| 2012 | $86,300 | $24,000 | $0 | $0 | $0 |
| 2011 | $86,300 | $24,000 | $0 | $0 | $0 |
| 2010 | $81,000 | $24,000 | $0 | $0 | $0 |
| 2009 | $92,700 | $24,000 | $0 | $0 | $0 |
| 2008 | $77,500 | $24,000 | $0 | $0 | $0 |
| 2007 | $77,500 | $24,000 | $0 | $0 | $0 |
Deed and Sales History
| 1 | 04/12/2024 | SWD | STATUTORY WARRANTY DEED | CORRY SHALIMAR | EGGERS SUSAN ANN | | | $310,000.00 | 147387 | 2024-01809 |
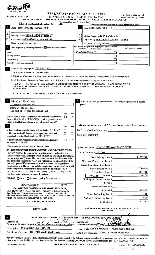
| 2 | 10/16/2019 | SWD | STATUTORY WARRANTY DEED | THE CHAPIN LIVING TRUST | CORRY SHALIMAR | | | $217,000.00 | 137875 | 2019-08295 |
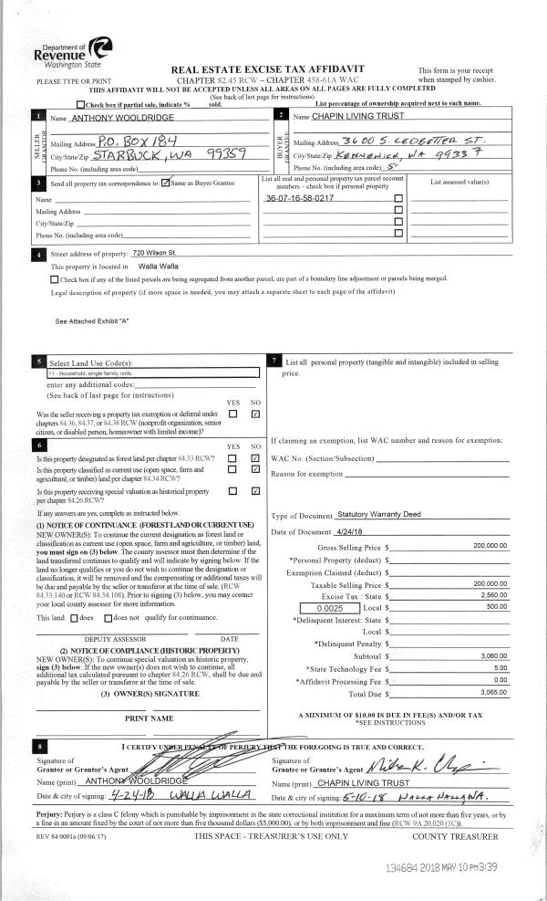
| 3 | 05/10/2018 | SWD | STATUTORY WARRANTY DEED | WOOLDRIDGE ANTHONY | THE CHAPIN LIVING TRUST | | | $200,000.00 | 134684 | 2018-03673 |
| 4 | 05/19/2017 | QCD | QUIT CLAIM DEED | WOOLDRIDGE KATHLEENE E | WOOLDRIDGE ANTHONY | | | | 132431 | 2017-03795 |
| 5 | 05/19/2017 | SWD | STATUTORY WARRANTY DEED | KERN RACHELLE J | WOOLDRIDGE ANTHONY | | | $73,000.00 | 132430 | 2017-03794 |
| 6 | 06/06/2014 | COURT CASE | COURT CASE | KERN WILLIAM D & RACHELLE J | KERN RACHELLE J | | | | 0 | CC 14-3-00051-5 |
| 7 | 10/31/2001 | WARRANTY D | WARRANTY DEED | | | | | $71,000.00 | 98268 | 3220-111738 |
Payout Agreement
| No payout information available.. |