Property
Account |
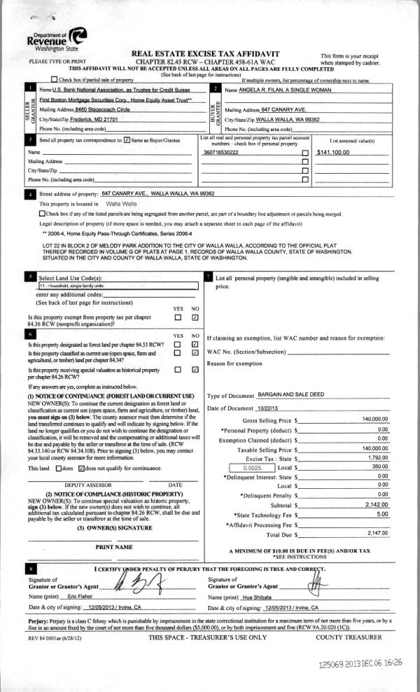
| Property ID: | 35087 | Abbreviated Legal Description: | MELODY PARK LOT 22 BLK 2 |
| Parcel Number: | 360716530222 | Agent Code: | |
| Type: | Real | | |
| Tax Area: | 5 - OL-140 | Land Use Code | 11 |
| Open Space: | N | DFL | N |
| Historic Property: | N | Remodel Property: | N |
| Multi-Family Redevelopment: | N | | |
| Township: | 7 | Section: | 16 |
| Range: | 36 |
Location |
| Address: | 647 CANARY AVE WA 99362 | Mapsco: | |
| Neighborhood: | A-Superior SFR | Map ID: | |
| Neighborhood CD: | 513211 |
Owner |
| Name: | POWELL JAMES A | Owner ID: | 63238 |
| Mailing Address: | DENISE FOUST 647 CANARY AVE WALLA WALLA, WA 99362 | % Ownership: | 100.0000000000% |
| | | Exemptions: | |
Taxes and Assessment Details
Values
| (+) Improvement Homesite Value: | + | $0 | |
| (+) Improvement Non-Homesite Value: | + | $304,670 | |
| (+) Land Homesite Value: | + | $0 | |
| (+) Land Non-Homesite Value: | + | $44,690 | |
| (+) Curr Use (HS): | + | $0 | $0 |
| (+) Curr Use (NHS): | + | $0 | $0 |
| | | -------------------------- | |
| (=) Market Value: | = | $349,360 | |
| (–) Productivity Loss: | – | $0 | |
| | | -------------------------- | |
| (=) Subtotal: | = | $349,360 | |
| (+) Senior Appraised Value: | + | $0 | |
| (+) Non-Senior Appraised Value: | + | $349,360 | |
| | | -------------------------- | |
| (=) Total Appraised Value: | = | $349,360 | |
| (–) Senior Exemption Loss: | – | $0 | |
| (–) Exemption Loss: | – | $0 | |
| | | -------------------------- | |
| (=) Taxable Value: | = | $349,360 | |
Taxing Jurisdiction
| Owner: | POWELL JAMES A | | |
| % Ownership: | 100.0000000000% | | |
| Total Value: | $349,360 | | |
| Tax Area: | 5 - OL-140 |
| CERFD | CURRENT EXPENSE REFUND 010 | 0.0000000000 | $349,360 | $349,360 | $0.00 | | |
| CURREXP | CURRENT EXPENSE 010 | 1.0175366760 | $349,360 | $349,360 | $355.49 | | |
| HUMNSERV | HUMAN SERVICES 119 | 0.0250000000 | $349,360 | $349,360 | $8.73 | | |
| SLDREL | SOLDIERS RELIEF 121 | 0.0155990005 | $349,360 | $349,360 | $5.45 | | |
| EMERGSER | EMS 147 | 0.3792580840 | $349,360 | $349,360 | $132.50 | | |
| EMSRFD | EMS REFUND 147 | 0.0000000000 | $349,360 | $349,360 | $0.00 | | |
| PORTRFD | PORT REFUND 640 | 0.0000000000 | $349,360 | $349,360 | $0.00 | | |
| PORTWWGEN | PORT OF WW 640 | 0.2460186015 | $349,360 | $349,360 | $85.95 | | |
| SD140BOND | SD #140 BOND 764 | 0.8342371393 | $349,360 | $349,360 | $291.45 | | |
| SD140GEN | SD #140 GENERAL 760 | 2.0646500647 | $349,360 | $349,360 | $721.31 | | |
| ST2 | STATE SCHOOL PART 2 600 | 0.8131451643 | $349,360 | $349,360 | $284.08 | | |
| STATESCHL | STATE SCHOOL 600 | 1.5158548041 | $349,360 | $349,360 | $529.58 | | |
| STREFUND | STATE REFUND LEVY 603 | 0.0000000000 | $349,360 | $349,360 | $0.00 | | |
| CWWBOND | C OF WW BOND 643 | 0.2760494372 | $349,360 | $349,360 | $96.44 | | |
| CWWGEN | CITY OF WW 631 | 1.6100204973 | $349,360 | $349,360 | $562.48 | | |
| CWWRFD | CITY OF WALLA WALLA REFUND 631 | 0.0000000000 | $349,360 | $349,360 | $0.00 | | |
| | Total Tax Rate: | 8.7973694689 | | | | | |
| | | | | Taxes w/Current Exemptions: | $3,073.46 | | |
| | | | | Taxes w/o Exemptions: | $3,073.46 | | |
Improvement / Building
| Improvement #1: | RESIDENTIAL | State Code: | 11 | 1160.0 sqft | Value: | $304,670 |
| Exterior Wall: | VINYL | Heating/Cooling: | WARM & COOLED AIR | | Number of Bathrooms: | 2 | Number of Bedrooms: | 3 | | Plumbing: | 9 | Roof Covering: | COMP SHINGLE |
|
| | Type | Description | Class CD | Sub Class CD | Year Built | Area |
| | MA | Main Area | 1 | 30 | 1959 | 1160.0 |
| | CPC | COVERED CARPORT/PATIO | 1 | 30 | 0 | 299.0 |
| | SI1 | SITE IMPROVEMENT | 1 | 30 | 0 | 1.5 |
| | BASE | BASEMENT | 1 | 30 | 1959 | 1160.0 |
| | BRF | BASEMENT - REC FINISH | 1 | 30 | 1959 | 1160.0 |
| | RPO | OPEN PORCH W/ROOF | 1 | 30 | 1959 | 120.0 |
| | UTST | Utility Storage Shed | 1 | 30 | 1959 | 144.0 |
Sketch
Property Image
Land
| 1 | RES 1 | Converted: Residential | 0.1641 | 7150.00 | 0.00 | 0.00 | 1.00 | $44,690 | $0 |
Roll Value History
| 2026 | N/A | N/A | N/A | N/A | N/A |
| 2025 | $303,500 | $71,500 | $0 | $375,000 | $375,000 |
| 2024 | $289,050 | $71,500 | $0 | $360,550 | $360,550 |
| 2023 | $304,670 | $44,690 | $0 | $349,360 | $349,360 |
| 2022 | $290,160 | $44,690 | $0 | $334,850 | $334,850 |
| 2021 | $232,130 | $44,690 | $0 | $276,820 | $276,820 |
| 2020 | $178,560 | $44,690 | $0 | $223,250 | $223,250 |
| 2019 | $178,560 | $44,690 | $0 | $223,250 | $223,250 |
| 2018 | $148,800 | $44,690 | $0 | $193,490 | $193,490 |
| 2017 | $130,780 | $28,600 | $0 | $159,380 | $159,380 |
| 2016 | $104,630 | $28,600 | $0 | $133,230 | $133,230 |
| 2015 | $104,630 | $28,600 | $0 | $133,230 | $133,230 |
| 2014 | $112,500 | $28,600 | $0 | $141,100 | $141,100 |
| 2013 | $112,500 | $28,600 | $0 | $141,100 | $141,100 |
| 2012 | $112,500 | $28,600 | $0 | $0 | $0 |
| 2011 | $105,800 | $28,600 | $0 | $0 | $0 |
| 2010 | $99,400 | $28,600 | $0 | $0 | $0 |
| 2009 | $113,600 | $28,600 | $0 | $0 | $0 |
| 2008 | $113,600 | $28,600 | $0 | $0 | $0 |
| 2007 | $113,600 | $28,600 | $0 | $0 | $0 |
Deed and Sales History
| 1 | 06/08/2018 | SWD | STATUTORY WARRANTY DEED | FILAN ANGELA R | POWELL JAMES A | | | $228,000.00 | 134885 | 2018-04603 |
| 2 | 12/06/2013 | BARGAIN & | BARGAIN & SALE DEED | US BANK NATIONAL ASSOCIATION | FILAN ANGELA R | | | $140,000.00 | 125069 | 2013-11770 |
| 3 | 03/29/2013 | WARRANTY D | WARRANTY DEED | NORTHWEST TRUSTEE SERVICES INC | US BANK NATIONAL ASSOCIATION | | | $120,513.00 | 123691 | 2013-03047 |
| 4 | 12/16/2003 | WARRANTY D | WARRANTY DEED | ADAMS, L CHAD | WINSTON, GARY | | | $135,000.00 | 103741 | 2003-18986 |
| 5 | 04/12/2000 | WARRANTY D | WARRANTY DEED | | | | | $95,500.00 | 94876 | 2970-003498 |
Payout Agreement
| No payout information available.. |