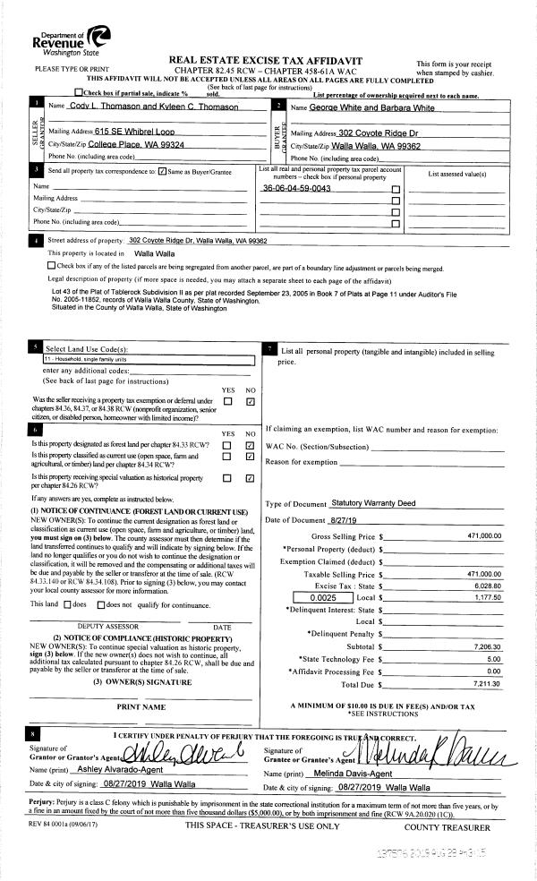
Property
Account |
| Property ID: | 35065 | Abbreviated Legal Description: | TABLEROCK SUBDIVISION II LOT 43 |
| Parcel Number: | 360604590043 | Agent Code: | |
| Type: | Real | | |
| Tax Area: | 5 - OL-140 | Land Use Code | 11 |
| Open Space: | N | DFL | N |
| Historic Property: | N | Remodel Property: | N |
| Multi-Family Redevelopment: | N | | |
| Township: | 6 | Section: | 4 |
| Range: | 36 |
Location |
| Address: | 302 COYOTE RIDGE DR WA 99362 | Mapsco: | |
| Neighborhood: | VG Res | Map ID: | |
| Neighborhood CD: | 615011 |
Owner |
| Name: | WHITE GEORGE & BARBARA | Owner ID: | 65832 |
| Mailing Address: | 302 COYOTE RIDGE DR WALLA WALLA, WA 99362 | % Ownership: | 100.0000000000% |
| | | Exemptions: | |
Taxes and Assessment Details
Property Tax Information as of
02/21/2026
Click on "Statement Details" to expand or collapse a tax statement.
* Please enter a valid date ** Please enter a valid date *
Statement Details |
| | TOTAL: | $0.00 | $0.00 | $0.00 | $0.00 | $0.00 | $0.00 |
|
| | $0.00 | $0.00 | $0.00 | $0.00 | $0.00 | $0.00 |
Values
| (+) Improvement Homesite Value: | + | $0 | |
| (+) Improvement Non-Homesite Value: | + | $568,750 | |
| (+) Land Homesite Value: | + | $0 | |
| (+) Land Non-Homesite Value: | + | $180,000 | |
| (+) Curr Use (HS): | + | $0 | $0 |
| (+) Curr Use (NHS): | + | $0 | $0 |
| | | -------------------------- | |
| (=) Market Value: | = | $748,750 | |
| (–) Productivity Loss: | – | $0 | |
| | | -------------------------- | |
| (=) Subtotal: | = | $748,750 | |
| (+) Senior Appraised Value: | + | $0 | |
| (+) Non-Senior Appraised Value: | + | $748,750 | |
| | | -------------------------- | |
| (=) Total Appraised Value: | = | $748,750 | |
| (–) Senior Exemption Loss: | – | $0 | |
| (–) Exemption Loss: | – | $0 | |
| | | -------------------------- | |
| (=) Taxable Value: | = | $748,750 | |
Taxing Jurisdiction
| Owner: | WHITE GEORGE & BARBARA | | |
| % Ownership: | 100.0000000000% | | |
| Total Value: | $748,750 | | |
| Tax Area: | 5 - OL-140 |
| CERFD | CURRENT EXPENSE REFUND 010 | 0.0000000000 | $748,750 | $748,750 | $0.00 | | |
| CURREXP | CURRENT EXPENSE 010 | 0.9851088983 | $748,750 | $748,750 | $737.60 | | |
| HUMNSERV | HUMAN SERVICES 119 | 0.0250000000 | $748,750 | $748,750 | $18.72 | | |
| SLDREL | SOLDIERS RELIEF 121 | 0.0155990000 | $748,750 | $748,750 | $11.68 | | |
| EMERGSER | EMS 147 | 0.3676811629 | $748,750 | $748,750 | $275.30 | | |
| EMSRFD | EMS REFUND 147 | 0.0000000000 | $748,750 | $748,750 | $0.00 | | |
| PORTRFD | PORT REFUND 640 | 0.0000000000 | $748,750 | $748,750 | $0.00 | | |
| PORTWWGEN | PORT OF WW 640 | 0.2344301070 | $748,750 | $748,750 | $175.53 | | |
| SD140BOND | SD #140 BOND 764 | 0.8032434458 | $748,750 | $748,750 | $601.43 | | |
| SD140CAP | SD #140 CAP 762 | 0.3840034221 | $748,750 | $748,750 | $287.52 | | |
| SD140GEN | SD #140 GENERAL 760 | 2.4999999996 | $748,750 | $748,750 | $1,871.88 | | |
| ST2 | STATE SCHOOL PART 2 600 | 0.8853714103 | $748,750 | $748,750 | $662.92 | | |
| STATESCHL | STATE SCHOOL 600 | 1.6424571473 | $748,750 | $748,750 | $1,229.79 | | |
| STREFUND | STATE REFUND LEVY 603 | 0.0000000000 | $748,750 | $748,750 | $0.00 | | |
| CWWBOND | C OF WW BOND 643 | 0.2642134255 | $748,750 | $748,750 | $197.83 | | |
| CWWGEN | CITY OF WW 631 | 1.6110494978 | $748,750 | $748,750 | $1,206.27 | | |
| CWWRFD | CITY OF WALLA WALLA REFUND 631 | 0.0000000000 | $748,750 | $748,750 | $0.00 | | |
| | Total Tax Rate: | 9.7181575166 | | | | | |
| | | | | Taxes w/Current Exemptions: | $7,276.47 | | |
| | | | | Taxes w/o Exemptions: | $7,276.47 | | |
Improvement / Building
| Improvement #1: | RESIDENTIAL | State Code: | 11 | 2828.0 sqft | Value: | $568,750 |
| Exterior Wall: | HARDBOARD | Heating/Cooling: | HEAT PUMP | | Number of Bathrooms: | 2.5 | Number of Bedrooms: | 3 | | Plumbing: | 14 | Roof Covering: | COMP SHINGLE |
|
| | Type | Description | Class CD | Sub Class CD | Year Built | Area |
| | MA | Main Area | 1 | 45 | 2013 | 2828.0 |
| | GFP | GAS FIREPLACE | 1 | 45 | 2013 | 1.0 |
| | RPC | OPEN PORCH W/ROOF , CEILED | 1 | 45 | 2013 | 90.0 |
| | RPC | OPEN PORCH W/ROOF , CEILED | 1 | 45 | 2013 | 247.0 |
| | SI1 | SITE IMPROVEMENT | 1 | 45 | 2013 | 5.5 |
| | ATG | Attached Garage | 1 | 45 | 2013 | 745.0 |
Sketch
Property Image
Land
| 1 | RES 1 | Converted: Residential | 0.2911 | 12679.00 | 0.00 | 0.00 | 1.00 | $180,000 | $0 |
Roll Value History
| 2026 | N/A | N/A | N/A | N/A | N/A |
| 2025 | $568,750 | $180,000 | $0 | $748,750 | $748,750 |
| 2024 | $542,660 | $120,000 | $0 | $662,660 | $662,660 |
| 2023 | $542,660 | $120,000 | $0 | $662,660 | $662,660 |
| 2022 | $493,320 | $95,000 | $0 | $588,320 | $588,320 |
| 2021 | $448,480 | $95,000 | $0 | $543,480 | $543,480 |
| 2020 | $358,780 | $95,000 | $0 | $453,780 | $453,780 |
| 2019 | $358,780 | $95,000 | $0 | $453,780 | $453,780 |
| 2018 | $390,680 | $50,000 | $0 | $440,680 | $440,680 |
| 2017 | $379,300 | $50,000 | $0 | $429,300 | $429,300 |
| 2016 | $361,240 | $50,000 | $0 | $411,240 | $411,240 |
| 2015 | $361,240 | $50,000 | $0 | $411,240 | $411,240 |
| 2014 | $328,400 | $50,000 | $0 | $378,400 | $378,400 |
| 2013 | $65,700 | $50,000 | $0 | $115,700 | $115,700 |
| 2012 | $0 | $65,000 | $0 | $0 | $0 |
| 2011 | $0 | $80,000 | $0 | $0 | $0 |
| 2010 | $0 | $80,000 | $0 | $0 | $0 |
| 2009 | $0 | $80,000 | $0 | $0 | $0 |
| 2008 | $0 | $80,000 | $0 | $0 | $0 |
| 2007 | $0 | $500 | $0 | $0 | $0 |
Deed and Sales History
| 1 | 08/28/2019 | SWD | STATUTORY WARRANTY DEED | THOMASON CODY L & KYLEEN C | WHITE GEORGE & BARBARA | | | $471,000.00 | 137576 | 2019-06650 |
| 2 | 10/07/2016 | SWD | STATUTORY WARRANTY DEED | BRUHN JONATHAN & LEAH | THOMASON CODY L & KYLEEN C | | | $444,000.00 | 131214 | 2016-08278 |
| 3 | 01/20/2015 | SWD | STATUTORY WARRANTY DEED | ALLISON HOMES LLC | BRUHN JONATHAN & LEAH | | | $414,000.00 | 127302 | 2015-00457 |
| 4 | 03/14/2013 | WARRANTY D | WARRANTY DEED | FOWLES, GARY L | ALLISON HOMES LLC | | | $140,000.00 | 123594 | 2013-02389 |
|   | |
| 5 | 07/12/2006 | WARRANTY D | WARRANTY DEED | GATEWOOD W PAUL & CAROL | FOWLES GARY L | | | | 110697 | 2006-08151 |
Payout Agreement
| No payout information available.. |