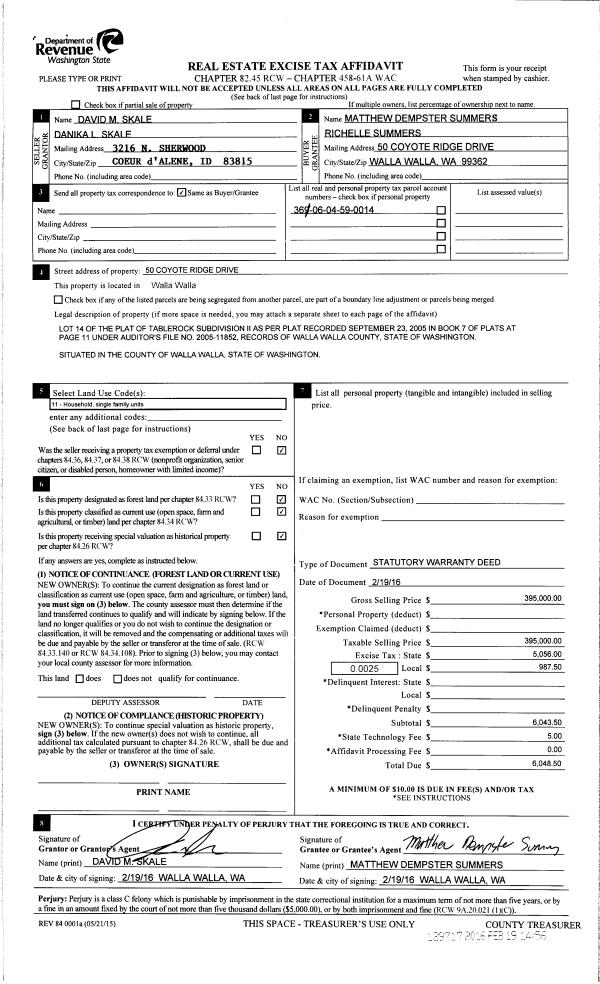
Property
Account |
| Property ID: | 35064 | Abbreviated Legal Description: | TABLEROCK SUBDIVISION II LOT 14 |
| Parcel Number: | 360604590014 | Agent Code: | |
| Type: | Real | | |
| Tax Area: | 5 - OL-140 | Land Use Code | 11 |
| Open Space: | N | DFL | N |
| Historic Property: | N | Remodel Property: | N |
| Multi-Family Redevelopment: | N | | |
| Township: | 6 | Section: | 4 |
| Range: | 36 |
Location |
| Address: | 50 COYOTE RIDGE DR WA 99362 | Mapsco: | |
| Neighborhood: | VG Res | Map ID: | |
| Neighborhood CD: | 615011 |
Owner |
| Name: | SUMMERS MATTHEW DEMPSTER & RICHELLE | Owner ID: | 58299 |
| Mailing Address: | 50 COYOTE RIDGE DR WALLA WALLA, WA 99362 | % Ownership: | 100.0000000000% |
| | | Exemptions: | |
Taxes and Assessment Details
Values
| (+) Improvement Homesite Value: | + | $0 | |
| (+) Improvement Non-Homesite Value: | + | $575,700 | |
| (+) Land Homesite Value: | + | $0 | |
| (+) Land Non-Homesite Value: | + | $180,000 | |
| (+) Curr Use (HS): | + | $0 | $0 |
| (+) Curr Use (NHS): | + | $0 | $0 |
| | | -------------------------- | |
| (=) Market Value: | = | $755,700 | |
| (–) Productivity Loss: | – | $0 | |
| | | -------------------------- | |
| (=) Subtotal: | = | $755,700 | |
| (+) Senior Appraised Value: | + | $0 | |
| (+) Non-Senior Appraised Value: | + | $755,700 | |
| | | -------------------------- | |
| (=) Total Appraised Value: | = | $755,700 | |
| (–) Senior Exemption Loss: | – | $0 | |
| (–) Exemption Loss: | – | $0 | |
| | | -------------------------- | |
| (=) Taxable Value: | = | $755,700 | |
Taxing Jurisdiction
| Owner: | SUMMERS MATTHEW DEMPSTER & RICHELLE | | |
| % Ownership: | 100.0000000000% | | |
| Total Value: | $755,700 | | |
| Tax Area: | 5 - OL-140 |
| CERFD | CURRENT EXPENSE REFUND 010 | 0.0000000000 | $755,700 | $755,700 | $0.00 | | |
| CURREXP | CURRENT EXPENSE 010 | 0.9851088983 | $755,700 | $755,700 | $744.45 | | |
| HUMNSERV | HUMAN SERVICES 119 | 0.0250000000 | $755,700 | $755,700 | $18.89 | | |
| SLDREL | SOLDIERS RELIEF 121 | 0.0155990000 | $755,700 | $755,700 | $11.79 | | |
| EMERGSER | EMS 147 | 0.3676811629 | $755,700 | $755,700 | $277.86 | | |
| EMSRFD | EMS REFUND 147 | 0.0000000000 | $755,700 | $755,700 | $0.00 | | |
| PORTRFD | PORT REFUND 640 | 0.0000000000 | $755,700 | $755,700 | $0.00 | | |
| PORTWWGEN | PORT OF WW 640 | 0.2344301070 | $755,700 | $755,700 | $177.16 | | |
| SD140BOND | SD #140 BOND 764 | 0.8032434458 | $755,700 | $755,700 | $607.01 | | |
| SD140CAP | SD #140 CAP 762 | 0.3840034221 | $755,700 | $755,700 | $290.19 | | |
| SD140GEN | SD #140 GENERAL 760 | 2.4999999996 | $755,700 | $755,700 | $1,889.25 | | |
| ST2 | STATE SCHOOL PART 2 600 | 0.8853714103 | $755,700 | $755,700 | $669.08 | | |
| STATESCHL | STATE SCHOOL 600 | 1.6424571473 | $755,700 | $755,700 | $1,241.20 | | |
| STREFUND | STATE REFUND LEVY 603 | 0.0000000000 | $755,700 | $755,700 | $0.00 | | |
| CWWBOND | C OF WW BOND 643 | 0.2642134255 | $755,700 | $755,700 | $199.67 | | |
| CWWGEN | CITY OF WW 631 | 1.6110494978 | $755,700 | $755,700 | $1,217.47 | | |
| CWWRFD | CITY OF WALLA WALLA REFUND 631 | 0.0000000000 | $755,700 | $755,700 | $0.00 | | |
| | Total Tax Rate: | 9.7181575166 | | | | | |
| | | | | Taxes w/Current Exemptions: | $7,344.02 | | |
| | | | | Taxes w/o Exemptions: | $7,344.02 | | |
Improvement / Building
| Improvement #1: | RESIDENTIAL | State Code: | 11 | 2595.0 sqft | Value: | $575,700 |
| Exterior Wall: | HARDBOARD | Heating/Cooling: | HEAT PUMP | | Number of Bathrooms: | 2.5 | Number of Bedrooms: | 3 | | Plumbing: | 13 | Roof Covering: | COMP SHINGLE |
|
| | Type | Description | Class CD | Sub Class CD | Year Built | Area |
| | MA | Main Area | 1 | 45 | 2013 | 2595.0 |
| | GFP | GAS FIREPLACE | 1 | 45 | 0 | 1.0 |
| | RPC | OPEN PORCH W/ROOF , CEILED | 1 | 45 | 0 | 100.0 |
| | RPC | OPEN PORCH W/ROOF , CEILED | 1 | 45 | 0 | 150.0 |
| | SI1 | SITE IMPROVEMENT | 1 | 45 | 0 | 5.0 |
| | ATG | Attached Garage | 1 | 45 | 0 | 546.0 |
Sketch
Property Image
Land
| 1 | RES 1 | Converted: Residential | 0.2225 | 9694.00 | 0.00 | 0.00 | 1.00 | $180,000 | $0 |
Roll Value History
| 2026 | N/A | N/A | N/A | N/A | N/A |
| 2025 | $575,700 | $180,000 | $0 | $755,700 | $755,700 |
| 2024 | $568,260 | $120,000 | $0 | $688,260 | $688,260 |
| 2023 | $568,260 | $120,000 | $0 | $688,260 | $688,260 |
| 2022 | $516,600 | $95,000 | $0 | $611,600 | $611,600 |
| 2021 | $469,640 | $95,000 | $0 | $564,640 | $564,640 |
| 2020 | $347,880 | $95,000 | $0 | $442,880 | $442,880 |
| 2019 | $347,880 | $95,000 | $0 | $442,880 | $442,880 |
| 2018 | $341,390 | $50,000 | $0 | $391,390 | $391,390 |
| 2017 | $325,130 | $50,000 | $0 | $375,130 | $375,130 |
| 2016 | $309,650 | $50,000 | $0 | $359,650 | $359,650 |
| 2015 | $309,650 | $50,000 | $0 | $359,650 | $359,650 |
| 2014 | $281,500 | $50,000 | $0 | $331,500 | $331,500 |
| 2013 | $96,200 | $50,000 | $0 | $146,200 | $146,200 |
| 2012 | $0 | $55,000 | $0 | $0 | $0 |
| 2011 | $0 | $70,000 | $0 | $0 | $0 |
| 2010 | $0 | $70,000 | $0 | $0 | $0 |
| 2009 | $0 | $70,000 | $0 | $0 | $0 |
| 2008 | $0 | $70,000 | $0 | $0 | $0 |
| 2007 | $0 | $500 | $0 | $0 | $0 |
Deed and Sales History
| 1 | 02/19/2016 | SWD | STATUTORY WARRANTY DEED | SKALE DAVID M & DANIKA L | SUMMERS MATTHEW DEMPSTER & RICHELLE | | | $395,000.00 | 129717 | 2016-01258 |
| 2 | 11/26/2014 | SWD | STATUTORY WARRANTY DEED | ALLISON HOMES LLC | SKALE DAVID M & DANIKA L | | | $388,000.00 | 127022 | 2014-08627 |
| 3 | 03/14/2013 | WARRANTY D | WARRANTY DEED | FOWLES GARY L | ALLISON HOMES LLC | | | $140,000.00 | 123594 | 2013-02389 |
|   | |
| 4 | 07/12/2006 | WARRANTY D | WARRANTY DEED | "GATEWOOD, W PAUL & CAROL" | FOWLES GARY L | | | | 110697 | 2006-08151 |
Payout Agreement
| No payout information available.. |