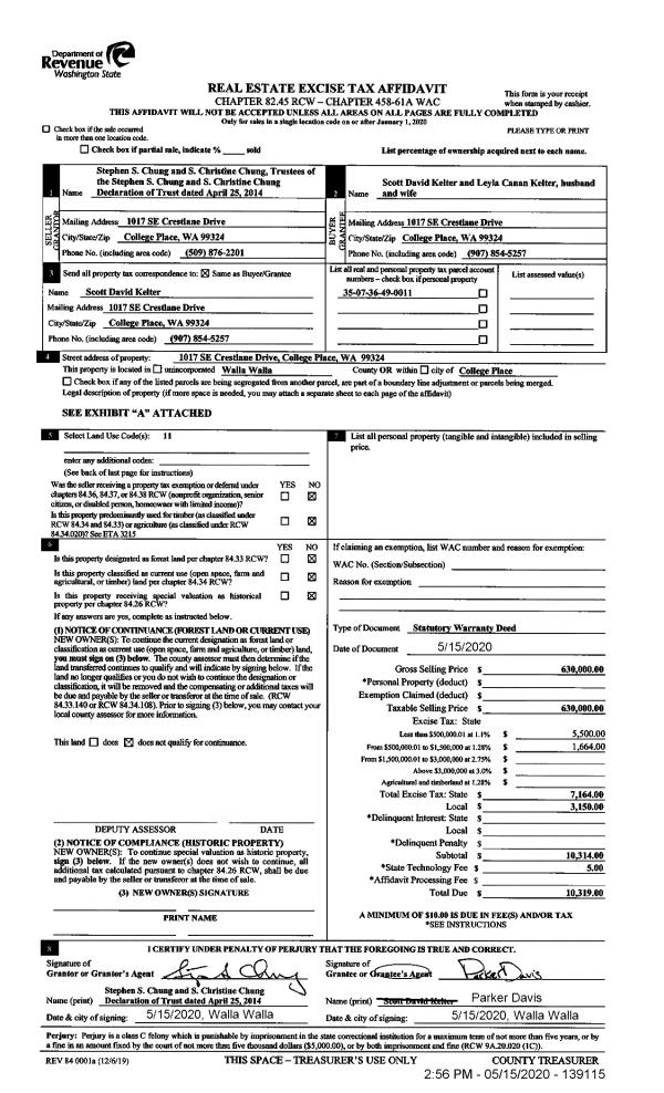
| 1 | 05/15/2020 | SWD | STATUTORY WARRANTY DEED | STEPHEN S CHUNG & S CHRISTINE CHUNG DECLARATION OF TRUST | KELTER SCOTT DAVID & LEYLA CANAN | | | $630,000.00 | 139115 | 2020-04270 |
| 2 | 06/27/2014 | SWD | STATUTORY WARRANTY DEED | CHUNG STEPHEN S & S CHRISTINE | STEPHEN S CHUNG & S CHRISTINE CHUNG DECLARATION OF TRUST | | | $0.00 | 126154 | 2014-04477 |
| 3 | 06/27/2014 | QCD | QUIT CLAIM DEED | CHUNG STEPHEN S & S CHRISTINE | CHUNG STEPHEN S & S CHRISTINE | | | | 126155 | 2014-04476 |
| 4 | 02/15/2013 | WARRANTY D | WARRANTY DEED | MYRA ROAD COMMERCIAL LLC | CHUNG, STEPHEN S & S CHRISTINE | | | $491,615.00 | 123459 | 2013-01369 |
| 5 | 02/26/2008 | WARRANTY D | WARRANTY DEED | PHASE FIVE DEVELOPMENT~LLC | MYRA ROAD COMMERCIAL LLC | | | | 114583 | 2008-01716 |