| 1 | 09/04/2020 | QCD | QUIT CLAIM DEED | SCHWAGER WILLIAM P JR | WIDE OVAL ENTERPRISES LLC | | | | 139849 | 2020-08986 |
| 2 | 01/10/2020 | SWD | STATUTORY WARRANTY DEED | SCHWAGER WILLIAM P JR | SCHWAGER WILLIAM P JR | | 8-PARCELS | $242,500.00 | 138393 | 2020-00218 |
|   | |
| 3 | 01/10/2020 | SWD | STATUTORY WARRANTY DEED | SCHWAGER WILLIAM PAUL JR (ET AL) | SCHWAGER WILLIAM P JR | | 8-PARCLES | $242,500.00 | 138394 | 2020-00219 |
|   | |
| 4 | 10/17/2019 | SWD | STATUTORY WARRANTY DEED | SCHWAGER WILLIAM PAUL JR (ET AL) | SCHWAGER WILLIAM PAUL JR (ET AL) | | 8-PARCELS | $242,500.00 | 137884 | 2019-08333 |
|   | |
| 5 | 10/17/2019 | SWD | STATUTORY WARRANTY DEED | SCHWAGER WILLIAM PAUL JR (ET AL) | SCHWAGER WILLIAM PAUL JR (ET AL) | | 8-PARCELS | $242,500.00 | 137885 | 2019-08335 |
|   | |
| 6 | 08/29/2019 | QCD | QUIT CLAIM DEED | WILPACS PARTNERSHIP | SCHWAGER WILLIAM PAUL JR (ET AL) | | | $0.00 | 137638 | 2019-06996 |
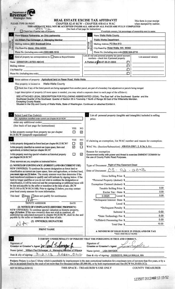
| 7 | 03/13/2013 | WARRANTY D | WARRANTY DEED | WILPACS PARTNERSHIP | WALLA WALLA COUNTY | | | $0.00 | 123587 | 2013-02348 |
| 8 | 10/07/2008 | QCD | QUIT CLAIM DEED | KIMBALL, STEPHEN G | WILPACS PARTNERSHIP | | | | 115771 | 2008-10267 |
| 9 | 10/07/2008 | QCD | QUIT CLAIM DEED | KIMBALL, FRANK BAKER | WILPACS PARTNERSHIP | | | | 115770 | 2008-10266 |
| 10 | 10/07/2008 | QCD | QUIT CLAIM DEED | KIMBALL, FRED J | WILPACS PARTNERSHIP | | | | 115772 | 2008-10268 |
| 11 | 07/24/1975 | QCD | QUIT CLAIM DEED | | | | | $10,000.00 | 0 | 2900-54698 |