Property
Account |
| Property ID: | 35042 | Abbreviated Legal Description: | 35-7-36 NW1/4 LESS RD; LESS PTN TO WW CO FOR RD ROW TAKE PER2013-02347 EAS |
| Parcel Number: | 360735210002 | Agent Code: | |
| Type: | Real | | |
| Tax Area: | 101 - 140-4 | Land Use Code | 83 |
| Open Space: | Y | DFL | N |
| Historic Property: | N | Remodel Property: | N |
| Multi-Family Redevelopment: | N | | |
| Township: | 7 | Section: | 35 |
| Range: | 36 |
Location |
| Address: | 3104 RUSSELL CREEK RD WA 99362 | Mapsco: | |
| Neighborhood: | 0 Farm | Map ID: | |
| Neighborhood CD: | 4240 |
Owner |
| Name: | RUSSELL RESER FARM LLC | Owner ID: | 62347 |
| Mailing Address: | 1302 PUYALLUP ST, SUITE A SUMNER, WA 98390 | % Ownership: | 100.0000000000% |
| | | Exemptions: | |
Taxes and Assessment Details
Property Tax Information as of
02/21/2026
Click on "Statement Details" to expand or collapse a tax statement.
* Please enter a valid date ** Please enter a valid date *
Statement Details |
| | TOTAL: | $0.00 | $0.00 | $0.00 | $0.00 | $0.00 | $0.00 |
|
| | $0.00 | $0.00 | $0.00 | $0.00 | $0.00 | $0.00 |
Values
| (+) Improvement Homesite Value: | + | $0 | |
| (+) Improvement Non-Homesite Value: | + | $128,310 | |
| (+) Land Homesite Value: | + | $0 | |
| (+) Land Non-Homesite Value: | + | $0 | |
| (+) Curr Use (HS): | + | $200,000 | $440 |
| (+) Curr Use (NHS): | + | $581,380 | $170,170 |
| | | -------------------------- | |
| (=) Market Value: | = | $909,690 | |
| (–) Productivity Loss: | – | $610,770 | |
| | | -------------------------- | |
| (=) Subtotal: | = | $298,920 | |
| (+) Senior Appraised Value: | + | $0 | |
| (+) Non-Senior Appraised Value: | + | $298,920 | |
| | | -------------------------- | |
| (=) Total Appraised Value: | = | $298,920 | |
| (–) Senior Exemption Loss: | – | $0 | |
| (–) Exemption Loss: | – | $0 | |
| | | -------------------------- | |
| (=) Taxable Value: | = | $298,920 | |
Taxing Jurisdiction
| Owner: | RUSSELL RESER FARM LLC | | |
| % Ownership: | 100.0000000000% | | |
| Total Value: | $909,690 | | |
| Tax Area: | 101 - 140-4 |
| CERFD | CURRENT EXPENSE REFUND 010 | 0.0000000000 | $298,920 | $298,920 | $0.00 | | |
| CURREXP | CURRENT EXPENSE 010 | 0.9851088983 | $298,920 | $298,920 | $294.47 | | |
| HUMNSERV | HUMAN SERVICES 119 | 0.0250000000 | $298,920 | $298,920 | $7.47 | | |
| SLDREL | SOLDIERS RELIEF 121 | 0.0155990000 | $298,920 | $298,920 | $4.66 | | |
| EMERGSER | EMS 147 | 0.3676811629 | $298,920 | $298,920 | $109.91 | | |
| EMSRFD | EMS REFUND 147 | 0.0000000000 | $298,920 | $298,920 | $0.00 | | |
| FD4EXP | FD #4 EXPENSE 686 | 1.2367913128 | $298,920 | $298,920 | $369.70 | | |
| RLBRFD | RURAL LIBRARY REFUND 623 | 0.0000000000 | $298,920 | $298,920 | $0.00 | | |
| RURALLIB | RURAL LIBRARY 623 | 0.3601547782 | $298,920 | $298,920 | $107.66 | | |
| PORTRFD | PORT REFUND 640 | 0.0000000000 | $298,920 | $298,920 | $0.00 | | |
| PORTWWGEN | PORT OF WW 640 | 0.2344301070 | $298,920 | $298,920 | $70.08 | | |
| SD140BOND | SD #140 BOND 764 | 0.8032434458 | $298,920 | $298,920 | $240.11 | | |
| SD140CAP | SD #140 CAP 762 | 0.3840034221 | $298,920 | $298,920 | $114.79 | | |
| SD140GEN | SD #140 GENERAL 760 | 2.4999999996 | $298,920 | $298,920 | $747.30 | | |
| ST2 | STATE SCHOOL PART 2 600 | 0.8853714103 | $298,920 | $298,920 | $264.66 | | |
| STATESCHL | STATE SCHOOL 600 | 1.6424571473 | $298,920 | $298,920 | $490.96 | | |
| STREFUND | STATE REFUND LEVY 603 | 0.0000000000 | $298,920 | $298,920 | $0.00 | | |
| COROAD | COUNTY ROAD 115 | 1.6137667997 | $298,920 | $298,920 | $482.39 | | |
| CRPRD | COUNTY ROAD REFUND 115 | 0.0000000000 | $298,920 | $298,920 | $0.00 | | |
| | Total Tax Rate: | 11.0536074840 | | | | | |
| | | | | Taxes w/Current Exemptions: | $3,304.16 | | |
| | | | | Taxes w/o Exemptions: | $3,304.16 | | |
Improvement / Building
| Improvement #1: | RESIDENTIAL | State Code: | 83 | 2030.0 sqft | Value: | $128,310 |
| Exterior Wall: | SIDING | Heating/Cooling: | STOVE-NO HEAT | | Number of Bathrooms: | 1 | Number of Bedrooms: | 4 | | Plumbing: | 6 | Roof Covering: | COMP SHINGLE |
|
| | Type | Description | Class CD | Sub Class CD | Year Built | Area |
| | MA | Main Area | 2 | 20 | 1900 | 2030.0 |
| | SI1 | SITE IMPROVEMENT | 2 | 20 | 1900 | 2.0 |
| | UPFL | Upper Floor (included in main area) | 2 | 20 | 1900 | 640.0 |
| | RPO | OPEN PORCH W/ROOF | 2 | 20 | 1900 | 155.0 |
| | WOD | Wood Deck | 1 | 20 | 1900 | 200.0 |
| | UTILITY | UTILITY BUILDING | 1 | 20 | 1940 | 656.0 |
| | UTILITY | UTILITY BUILDING | 1 | 20 | 1940 | 400.0 |
| | BARN | BARN-AVE | 1 | 30 | 1890 | 3200.0 |
| | HAYSHED | HAYSHED | 1 | 30 | 1999 | 3150.0 |
| | UTILITY | UTILITY BUILDING | 1 | 20 | 1900 | 396.0 |
Sketch
Property Image
Land
| 1 | 95-C1AN | Class 1 95 BU Annual | 145.2000 | 0.00 | 0.00 | 0.00 | 1.00 | $581,380 | $170,170 |
| 2 | HS-200,000 | Hs 200,000 | 1.0000 | 0.00 | 0.00 | 0.00 | 1.00 | $200,000 | $440 |
| 3 | WASTE | Waste | 11.8900 | 0.00 | 0.00 | 0.00 | 1.00 | $0 | $0 |
Roll Value History
| 2026 | N/A | N/A | N/A | N/A | N/A |
| 2025 | $128,310 | $781,380 | $170,610 | $298,920 | $298,920 |
| 2024 | $128,310 | $767,590 | $183,110 | $311,420 | $311,420 |
| 2023 | $128,310 | $753,790 | $189,420 | $317,730 | $317,730 |
| 2022 | $98,700 | $620,210 | $181,430 | $280,130 | $280,130 |
| 2021 | $98,700 | $592,620 | $180,270 | $278,970 | $278,970 |
| 2020 | $98,700 | $564,310 | $185,070 | $283,770 | $283,770 |
| 2019 | $98,700 | $549,200 | $188,720 | $287,420 | $287,420 |
| 2018 | $98,700 | $547,750 | $214,580 | $313,280 | $313,280 |
| 2017 | $98,700 | $543,690 | $218,210 | $316,910 | $316,910 |
| 2016 | $98,700 | $543,690 | $218,480 | $317,180 | $317,180 |
| 2015 | $98,700 | $543,690 | $193,650 | $292,350 | $292,350 |
| 2014 | $98,700 | $543,690 | $195,600 | $294,300 | $294,300 |
| 2013 | $98,700 | $522,900 | $158,400 | $257,100 | $257,100 |
| 2012 | $98,600 | $102,200 | $0 | $0 | $0 |
| 2011 | $99,000 | $96,800 | $0 | $0 | $0 |
| 2010 | $99,000 | $87,300 | $0 | $0 | $0 |
| 2009 | $100,200 | $347,100 | $0 | $0 | $0 |
| 2008 | $100,200 | $347,100 | $0 | $0 | $0 |
| 2007 | $63,700 | $264,500 | $0 | $0 | $0 |
Deed and Sales History
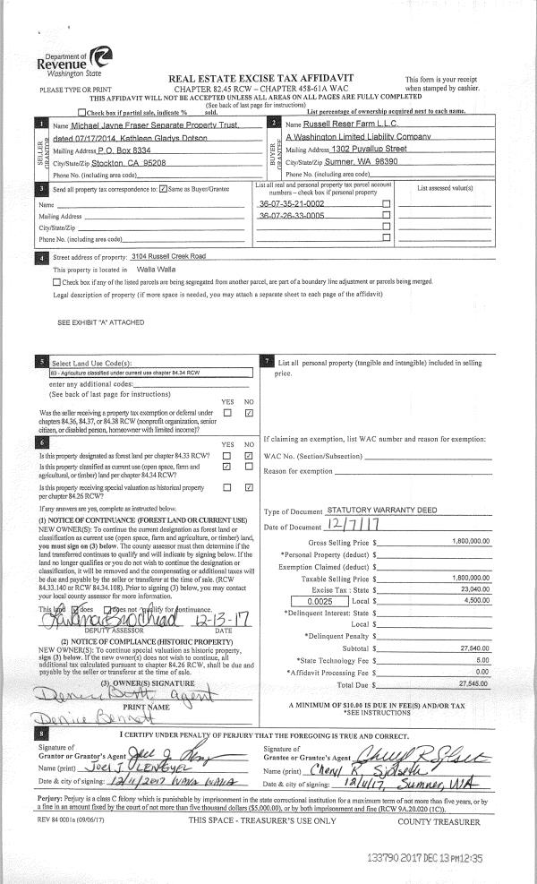
| 1 | 12/07/2017 | SWD | STATUTORY WARRANTY DEED | FRASER MICHAEL JAYNE TRUST & KATHLEEN GLADYS DOTSON | RUSSELL RESER FARM LLC | | 2-PRCELS | $1,800,000.00 | 133790 | 2017-10044 |
|   | |
| 2 | 07/17/2014 | WARRANTY D | WARRANTY DEED | FRENCH MARTHA J ET AL | FRASER MICHAEL JAYNE TRUST & KATHLEEN GLADYS DOTSON | | | $0.00 | 126564 | 2014-06404 |
| 3 | 03/13/2013 | WARRANTY D | WARRANTY DEED | FRENCH, MARTHA JAYNE ET AL | WALLA WALLA COUNTY | | | $0.00 | 123586 | 2013-02347 |
| 4 | 01/01/1941 | QCD | QUIT CLAIM DEED | | | | | $0.00 | 0 | 2080-261112 |
Payout Agreement
| No payout information available.. |