Property
Account |
| Property ID: | 35034 | Abbreviated Legal Description: | TABLEROCK SUBDIVISION II LOT 32 |
| Parcel Number: | 360604590032 | Agent Code: | |
| Type: | Real | | |
| Tax Area: | 5 - OL-140 | Land Use Code | 11 |
| Open Space: | N | DFL | N |
| Historic Property: | N | Remodel Property: | N |
| Multi-Family Redevelopment: | N | | |
| Township: | 6 | Section: | 4 |
| Range: | 36 |
Location |
| Address: | 269 COYOTE RIDGE DR WA 99362 | Mapsco: | |
| Neighborhood: | VG Res Rural/City Inf | Map ID: | |
| Neighborhood CD: | 615012 |
Owner |
| Name: | SMITH DALE F & MELINDA S | Owner ID: | 54979 |
| Mailing Address: | 269 COYOTE RIDGE DR WALLA WALLA, WA 99362 | % Ownership: | 100.0000000000% |
| | | Exemptions: | |
Taxes and Assessment Details
Values
| (+) Improvement Homesite Value: | + | $0 | |
| (+) Improvement Non-Homesite Value: | + | $656,650 | |
| (+) Land Homesite Value: | + | $0 | |
| (+) Land Non-Homesite Value: | + | $120,000 | |
| (+) Curr Use (HS): | + | $0 | $0 |
| (+) Curr Use (NHS): | + | $0 | $0 |
| | | -------------------------- | |
| (=) Market Value: | = | $776,650 | |
| (–) Productivity Loss: | – | $0 | |
| | | -------------------------- | |
| (=) Subtotal: | = | $776,650 | |
| (+) Senior Appraised Value: | + | $0 | |
| (+) Non-Senior Appraised Value: | + | $776,650 | |
| | | -------------------------- | |
| (=) Total Appraised Value: | = | $776,650 | |
| (–) Senior Exemption Loss: | – | $0 | |
| (–) Exemption Loss: | – | $0 | |
| | | -------------------------- | |
| (=) Taxable Value: | = | $776,650 | |
Taxing Jurisdiction
| Owner: | SMITH DALE F & MELINDA S | | |
| % Ownership: | 100.0000000000% | | |
| Total Value: | $776,650 | | |
| Tax Area: | 5 - OL-140 |
| CERFD | CURRENT EXPENSE REFUND 010 | 0.0000000000 | $776,650 | $776,650 | $0.00 | | |
| CURREXP | CURRENT EXPENSE 010 | 1.0175366760 | $776,650 | $776,650 | $790.27 | | |
| HUMNSERV | HUMAN SERVICES 119 | 0.0250000000 | $776,650 | $776,650 | $19.42 | | |
| SLDREL | SOLDIERS RELIEF 121 | 0.0155990005 | $776,650 | $776,650 | $12.11 | | |
| EMERGSER | EMS 147 | 0.3792580840 | $776,650 | $776,650 | $294.55 | | |
| EMSRFD | EMS REFUND 147 | 0.0000000000 | $776,650 | $776,650 | $0.00 | | |
| PORTRFD | PORT REFUND 640 | 0.0000000000 | $776,650 | $776,650 | $0.00 | | |
| PORTWWGEN | PORT OF WW 640 | 0.2460186015 | $776,650 | $776,650 | $191.07 | | |
| SD140BOND | SD #140 BOND 764 | 0.8342371393 | $776,650 | $776,650 | $647.91 | | |
| SD140GEN | SD #140 GENERAL 760 | 2.0646500647 | $776,650 | $776,650 | $1,603.51 | | |
| ST2 | STATE SCHOOL PART 2 600 | 0.8131451643 | $776,650 | $776,650 | $631.53 | | |
| STATESCHL | STATE SCHOOL 600 | 1.5158548041 | $776,650 | $776,650 | $1,177.29 | | |
| STREFUND | STATE REFUND LEVY 603 | 0.0000000000 | $776,650 | $776,650 | $0.00 | | |
| CWWBOND | C OF WW BOND 643 | 0.2760494372 | $776,650 | $776,650 | $214.39 | | |
| CWWGEN | CITY OF WW 631 | 1.6100204973 | $776,650 | $776,650 | $1,250.42 | | |
| CWWRFD | CITY OF WALLA WALLA REFUND 631 | 0.0000000000 | $776,650 | $776,650 | $0.00 | | |
| | Total Tax Rate: | 8.7973694689 | | | | | |
| | | | | Taxes w/Current Exemptions: | $6,832.47 | | |
| | | | | Taxes w/o Exemptions: | $6,832.47 | | |
Improvement / Building
| Improvement #1: | RESIDENTIAL | State Code: | 11 | 3006.0 sqft | Value: | $656,650 |
| Exterior Wall: | STUCCO | Heating/Cooling: | WARM & COOLED AIR | | Number of Bathrooms: | 3 | Number of Bedrooms: | 4 | | Plumbing: | 14 | Roof Covering: | COMP SHINGLE |
|
| | Type | Description | Class CD | Sub Class CD | Year Built | Area |
| | MA | Main Area | 1 | 50 | 2013 | 3006.0 |
| | ATG | Attached Garage | 1 | 50 | 2013 | 826.0 |
| | RPC | OPEN PORCH W/ROOF , CEILED | 1 | 50 | 2013 | 50.0 |
| | RPC | OPEN PORCH W/ROOF , CEILED | 1 | 50 | 2013 | 270.0 |
| | GFP | GAS FIREPLACE | 1 | 50 | 2013 | 1.0 |
| | SI1 | SITE IMPROVEMENT | 1 | 50 | 2013 | 6.0 |
Sketch
Property Image
Land
| 1 | RES 1 | Converted: Residential | 0.2896 | 12617.00 | 0.00 | 0.00 | 1.00 | $120,000 | $0 |
Roll Value History
| 2026 | N/A | N/A | N/A | N/A | N/A |
| 2025 | $614,950 | $180,000 | $0 | $794,950 | $794,950 |
| 2024 | $656,650 | $120,000 | $0 | $776,650 | $776,650 |
| 2023 | $656,650 | $120,000 | $0 | $776,650 | $776,650 |
| 2022 | $691,210 | $95,000 | $0 | $786,210 | $786,210 |
| 2021 | $601,050 | $95,000 | $0 | $696,050 | $696,050 |
| 2020 | $400,700 | $95,000 | $0 | $495,700 | $495,700 |
| 2019 | $400,700 | $95,000 | $0 | $495,700 | $495,700 |
| 2018 | $435,320 | $60,000 | $0 | $495,320 | $495,320 |
| 2017 | $395,750 | $60,000 | $0 | $455,750 | $455,750 |
| 2016 | $395,750 | $60,000 | $0 | $455,750 | $455,750 |
| 2015 | $395,750 | $60,000 | $0 | $455,750 | $455,750 |
| 2014 | $376,900 | $60,000 | $0 | $436,900 | $436,900 |
| 2013 | $0 | $60,000 | $0 | $60,000 | $60,000 |
| 2012 | $0 | $65,000 | $0 | $0 | $0 |
| 2011 | $0 | $94,000 | $0 | $0 | $0 |
| 2010 | $0 | $94,000 | $0 | $0 | $0 |
| 2009 | $0 | $94,000 | $0 | $0 | $0 |
| 2008 | $0 | $94,000 | $0 | $0 | $0 |
| 2007 | $0 | $500 | $0 | $0 | $0 |
Deed and Sales History
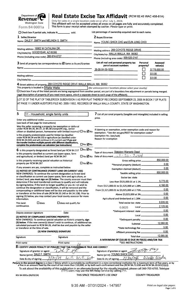
| 1 | 07/31/2024 | SWD | STATUTORY WARRANTY DEED | SMITH DALE F & MELINDA S | CHO YOUNG SHICK & EUN JUNG CHOI | | | $850,000.00 | 147957 | 2024-04175 |
| 2 | 10/31/2014 | WARRANTY D | WARRANTY DEED | SONOMA HOMES LLC | SMITH DALE F & MELINDA S | | | $464,000.00 | 126873 | 2014-08005 |
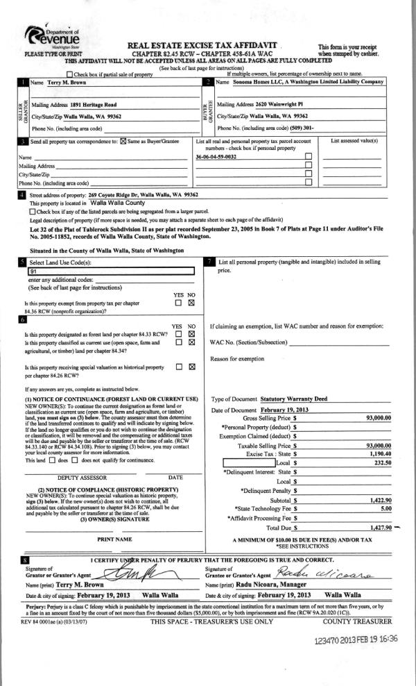
| 3 | 02/19/2013 | WARRANTY D | WARRANTY DEED | BROWN, TERRY M | SONOMA HOMES LLC | | | $93,000.00 | 123470 | 2013-01493 |
| 4 | 03/31/2011 | WARRANTY D | WARRANTY DEED | RITZINGER, ANDREW | BROWN, TERRY M | | | $62,000.00 | 119961 | 2011-02749 |
| 5 | 02/28/2007 | WARRANTY D | WARRANTY DEED | GATEWOOD, W PAUL & CAROL | RITZINGER, ANDREW | | | $94,000.00 | 112317 | 2007-02313 |
Payout Agreement
| No payout information available.. |