Property
Account |
| Property ID: | 35022 | Abbreviated Legal Description: | BARRONS TAX 1 LOT 1 BLK 2 |
| Parcel Number: | 360729520201 | Agent Code: | |
| Type: | Real | | |
| Tax Area: | 1 - OL-140-F | Land Use Code | 32 |
| Open Space: | N | DFL | N |
| Historic Property: | N | Remodel Property: | N |
| Multi-Family Redevelopment: | N | | |
| Township: | 7 | Section: | 29 |
| Range: | 36 |
Location |
| Address: | 501 W MAIN ST WA 99362 | Mapsco: | |
| Neighborhood: | WW Downtown Core area #3 | Map ID: | |
| Neighborhood CD: | 5343 |
Owner |
| Name: | KJR MAIN STREET LLC | Owner ID: | 63889 |
| Mailing Address: | % QUIRING MONUMENTS INC 8228 SOUTH 196TH STREET KENT, WA 98032 | % Ownership: | 100.0000000000% |
| | | Exemptions: | |
Taxes and Assessment Details
Values
| (+) Improvement Homesite Value: | + | $0 | |
| (+) Improvement Non-Homesite Value: | + | $39,000 | |
| (+) Land Homesite Value: | + | $0 | |
| (+) Land Non-Homesite Value: | + | $51,800 | |
| (+) Curr Use (HS): | + | $0 | $0 |
| (+) Curr Use (NHS): | + | $0 | $0 |
| | | -------------------------- | |
| (=) Market Value: | = | $90,800 | |
| (–) Productivity Loss: | – | $0 | |
| | | -------------------------- | |
| (=) Subtotal: | = | $90,800 | |
| (+) Senior Appraised Value: | + | $0 | |
| (+) Non-Senior Appraised Value: | + | $90,800 | |
| | | -------------------------- | |
| (=) Total Appraised Value: | = | $90,800 | |
| (–) Senior Exemption Loss: | – | $0 | |
| (–) Exemption Loss: | – | $0 | |
| | | -------------------------- | |
| (=) Taxable Value: | = | $90,800 | |
Taxing Jurisdiction
| Owner: | KJR MAIN STREET LLC | | |
| % Ownership: | 100.0000000000% | | |
| Total Value: | $90,800 | | |
| Tax Area: | 1 - OL-140-F |
| CERFD | CURRENT EXPENSE REFUND 010 | 0.0000000000 | $90,800 | $90,800 | $0.00 | | |
| CURREXP | CURRENT EXPENSE 010 | 1.0175366760 | $90,800 | $90,800 | $92.39 | | |
| HUMNSERV | HUMAN SERVICES 119 | 0.0250000000 | $90,800 | $90,800 | $2.27 | | |
| SLDREL | SOLDIERS RELIEF 121 | 0.0155990005 | $90,800 | $90,800 | $1.42 | | |
| EMERGSER | EMS 147 | 0.3792580840 | $90,800 | $90,800 | $34.44 | | |
| EMSRFD | EMS REFUND 147 | 0.0000000000 | $90,800 | $90,800 | $0.00 | | |
| PORTRFD | PORT REFUND 640 | 0.0000000000 | $90,800 | $90,800 | $0.00 | | |
| PORTWWGEN | PORT OF WW 640 | 0.2460186015 | $90,800 | $90,800 | $22.34 | | |
| SD140BOND | SD #140 BOND 764 | 0.8342371393 | $90,800 | $90,800 | $75.75 | | |
| SD140GEN | SD #140 GENERAL 760 | 2.0646500647 | $90,800 | $90,800 | $187.47 | | |
| ST2 | STATE SCHOOL PART 2 600 | 0.8131451643 | $90,800 | $90,800 | $73.83 | | |
| STATESCHL | STATE SCHOOL 600 | 1.5158548041 | $90,800 | $90,800 | $137.64 | | |
| STREFUND | STATE REFUND LEVY 603 | 0.0000000000 | $90,800 | $90,800 | $0.00 | | |
| CWWBOND | C OF WW BOND 643 | 0.2760494372 | $90,800 | $90,800 | $25.07 | | |
| CWWGEN | CITY OF WW 631 | 1.6100204973 | $90,800 | $90,800 | $146.19 | | |
| CWWRFD | CITY OF WALLA WALLA REFUND 631 | 0.0000000000 | $90,800 | $90,800 | $0.00 | | |
| | Total Tax Rate: | 8.7973694689 | | | | | |
| | | | | Taxes w/Current Exemptions: | $798.81 | | |
| | | | | Taxes w/o Exemptions: | $798.81 | | |
Improvement / Building
| Improvement #1: | COMMERCIAL | State Code: | 32 | 1632.0 sqft | Value: | $39,000 |
| | Type | Description | Class CD | Sub Class CD | Year Built | Area |
| | MA | Main Area | D | | 1921 | 1632.0 |
| | CPC | COVERED CARPORT/PATIO | D | * | 1921 | 700.0 |
| | CPC | COVERED CARPORT/PATIO | D | * | 1921 | 300.0 |
| | RPO | OPEN PORCH W/ROOF | D | * | 1921 | 2112.0 |
Sketch
Property Image
Land
| 1 | COM 1 | Converted: Commercial | 0.1322 | 5760.00 | 0.00 | 0.00 | 1.00 | $51,800 | $0 |
Roll Value History
| 2026 | N/A | N/A | N/A | N/A | N/A |
| 2025 | $69,600 | $57,600 | $0 | $127,200 | $127,200 |
| 2024 | $69,600 | $57,600 | $0 | $127,200 | $127,200 |
| 2023 | $39,000 | $51,800 | $0 | $90,800 | $90,800 |
| 2022 | $39,000 | $51,800 | $0 | $90,800 | $90,800 |
| 2021 | $39,000 | $51,800 | $0 | $90,800 | $90,800 |
| 2020 | $39,000 | $51,800 | $0 | $90,800 | $90,800 |
| 2019 | $39,000 | $51,800 | $0 | $90,800 | $90,800 |
| 2018 | $39,000 | $51,800 | $0 | $90,800 | $90,800 |
| 2017 | $36,700 | $51,800 | $0 | $88,500 | $88,500 |
| 2016 | $36,700 | $51,800 | $0 | $88,500 | $88,500 |
| 2015 | $36,700 | $51,800 | $0 | $88,500 | $88,500 |
| 2014 | $36,700 | $51,800 | $0 | $88,500 | $88,500 |
| 2013 | $36,700 | $51,800 | $0 | $88,500 | $88,500 |
| 2012 | $41,500 | $34,600 | $0 | $0 | $0 |
| 2011 | $41,500 | $34,600 | $0 | $0 | $0 |
| 2010 | $41,500 | $34,600 | $0 | $0 | $0 |
| 2009 | $41,500 | $34,600 | $0 | $0 | $0 |
| 2008 | $41,500 | $34,600 | $0 | $0 | $0 |
| 2007 | $28,800 | $20,200 | $0 | $0 | $0 |
Deed and Sales History
| 1 | 09/07/2018 | SWD | STATUTORY WARRANTY DEED | 501 MAIN STREET LLC | KJR MAIN STREET LLC | | 3-PARCLES | $232,500.00 | 135504 | 2018-07461 |
|   | |
| 2 | 02/12/2013 | QCD | QUIT CLAIM DEED | WYLIE JUSTIN & ELIZABETH | 501 MAIN STREET LLC | | | $0.00 | 123444 | 2013-01249 |
| 3 | 02/12/2013 | QCD | QUIT CLAIM DEED | WYLIE JUSTIN M | WYLIE JUSTIN & ELIZABETH | | | $0.00 | 123443 | 2013-01248 |
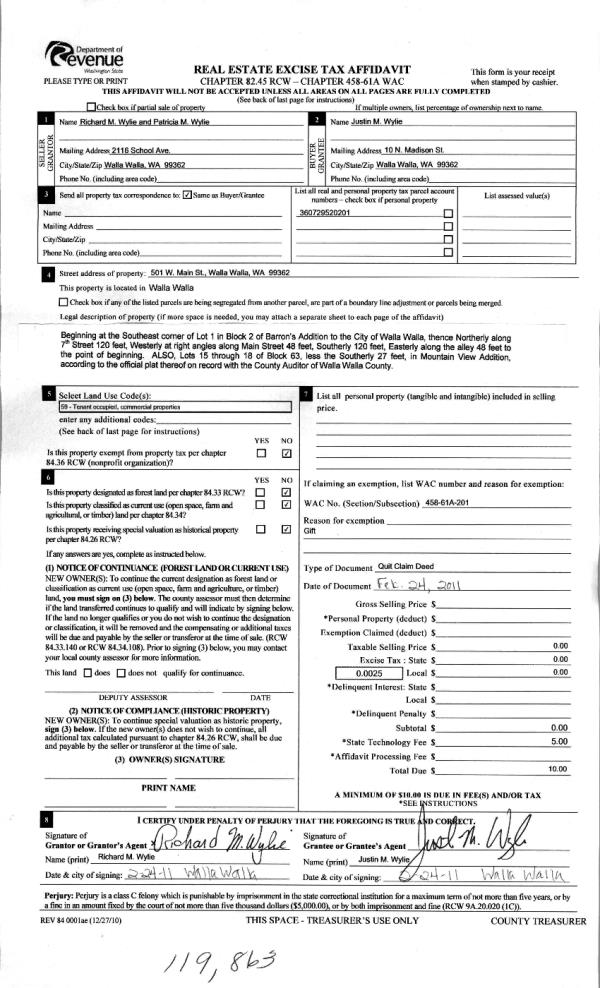
| 4 | 04/04/2011 | QCD | QUIT CLAIM DEED | WYLIE, RICHARD M & PATRICIA M | WYLIE, JUSTIN M | | | | 119863 | 2011-02843 |
| 5 | 03/10/2011 | QCD | QUIT CLAIM DEED | WYLIE, RICHARD M & PATRICIA M | WYLIE, JUSTIN M | | | | 119863 | 2011-02181 |
| 6 | 02/25/1975 | WARRANTY D | WARRANTY DEED | | | | | | 0 | 2405-42742 |
Payout Agreement
| No payout information available.. |