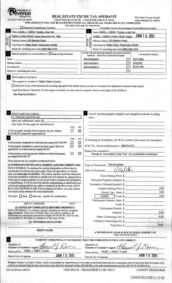
Property
Account |
| Property ID: | 35012 | Abbreviated Legal Description: | BLALOCK ORCHARDS LOT 9 BLK 5 |
| Parcel Number: | 350723520509 | Agent Code: | |
| Type: | Real | | |
| Tax Area: | 311 - 250-4 | Land Use Code | 11 |
| Open Space: | N | DFL | N |
| Historic Property: | N | Remodel Property: | N |
| Multi-Family Redevelopment: | N | | |
| Township: | 7 | Section: | 23 |
| Range: | 35 |
Location |
| Address: | 333 BALDWIN RD WA 99324 | Mapsco: | |
| Neighborhood: | A SFR Rural/City Infl | Map ID: | |
| Neighborhood CD: | 313012 |
Owner |
| Name: | CUMMINS JAMISON & BRIDGET | Owner ID: | 64868 |
| Mailing Address: | 333 BALDWIN RD WALLA WALLA, WA 99362 | % Ownership: | 100.0000000000% |
| | | Exemptions: | |
Taxes and Assessment Details
Property Tax Information as of
02/21/2026
Click on "Statement Details" to expand or collapse a tax statement.
* Please enter a valid date ** Please enter a valid date *
Statement Details |
| | TOTAL: | $0.00 | $0.00 | $0.00 | $0.00 | $0.00 | $0.00 |
|
| | $0.00 | $0.00 | $0.00 | $0.00 | $0.00 | $0.00 |
Values
| (+) Improvement Homesite Value: | + | $315,150 | |
| (+) Improvement Non-Homesite Value: | + | $0 | |
| (+) Land Homesite Value: | + | $135,060 | |
| (+) Land Non-Homesite Value: | + | $0 | |
| (+) Curr Use (HS): | + | $0 | $0 |
| (+) Curr Use (NHS): | + | $0 | $0 |
| | | -------------------------- | |
| (=) Market Value: | = | $450,210 | |
| (–) Productivity Loss: | – | $0 | |
| | | -------------------------- | |
| (=) Subtotal: | = | $450,210 | |
| (+) Senior Appraised Value: | + | $0 | |
| (+) Non-Senior Appraised Value: | + | $450,210 | |
| | | -------------------------- | |
| (=) Total Appraised Value: | = | $450,210 | |
| (–) Senior Exemption Loss: | – | $0 | |
| (–) Exemption Loss: | – | $0 | |
| | | -------------------------- | |
| (=) Taxable Value: | = | $450,210 | |
Taxing Jurisdiction
| Owner: | CUMMINS JAMISON & BRIDGET | | |
| % Ownership: | 100.0000000000% | | |
| Total Value: | $450,210 | | |
| Tax Area: | 311 - 250-4 |
| CERFD | CURRENT EXPENSE REFUND 010 | 0.0000000000 | $450,210 | $450,210 | $0.00 | | |
| CURREXP | CURRENT EXPENSE 010 | 1.0175366760 | $450,210 | $450,210 | $458.11 | | |
| HUMNSERV | HUMAN SERVICES 119 | 0.0250000000 | $450,210 | $450,210 | $11.26 | | |
| SLDREL | SOLDIERS RELIEF 121 | 0.0155990005 | $450,210 | $450,210 | $7.02 | | |
| EMERGSER | EMS 147 | 0.3792580840 | $450,210 | $450,210 | $170.75 | | |
| EMSRFD | EMS REFUND 147 | 0.0000000000 | $450,210 | $450,210 | $0.00 | | |
| FD4EXP | FD #4 EXPENSE 686 | 0.8836993059 | $450,210 | $450,210 | $397.85 | | |
| RLBRFD | RURAL LIBRARY REFUND 623 | 0.0000000000 | $450,210 | $450,210 | $0.00 | | |
| RURALLIB | RURAL LIBRARY 623 | 0.3710609029 | $450,210 | $450,210 | $167.06 | | |
| PORTRFD | PORT REFUND 640 | 0.0000000000 | $450,210 | $450,210 | $0.00 | | |
| PORTWWGEN | PORT OF WW 640 | 0.2460186015 | $450,210 | $450,210 | $110.76 | | |
| SD250BOND | SD #250 BOND 773 | 1.4560608159 | $450,210 | $450,210 | $655.53 | | |
| SD250GEN | SD #250 GENERAL 770 | 2.3880724087 | $450,210 | $450,210 | $1,075.13 | | |
| ST2 | STATE SCHOOL PART 2 600 | 0.8131451643 | $450,210 | $450,210 | $366.09 | | |
| STATESCHL | STATE SCHOOL 600 | 1.5158548041 | $450,210 | $450,210 | $682.45 | | |
| STREFUND | STATE REFUND LEVY 603 | 0.0000000000 | $450,210 | $450,210 | $0.00 | | |
| COROAD | COUNTY ROAD 115 | 1.6549953990 | $450,210 | $450,210 | $745.10 | | |
| CRPRD | COUNTY ROAD REFUND 115 | 0.0000000000 | $450,210 | $450,210 | $0.00 | | |
| | Total Tax Rate: | 10.7663011628 | | | | | |
| | | | | Taxes w/Current Exemptions: | $4,847.11 | | |
| | | | | Taxes w/o Exemptions: | $4,847.11 | | |
Improvement / Building
| Improvement #1: | RESIDENTIAL | State Code: | 11 | 1410.0 sqft | Value: | $315,150 |
| Exterior Wall: | SIDING | Heating/Cooling: | WARM & COOLED AIR | | Number of Bathrooms: | 1 | Number of Bedrooms: | 3 | | Plumbing: | 6 | Roof Covering: | COMP SHINGLE |
|
| | Type | Description | Class CD | Sub Class CD | Year Built | Area |
| | MA | Main Area | 1 | 30 | 1948 | 1410.0 |
| | CPC | COVERED CARPORT/PATIO | 1 | 30 | 0 | 528.0 |
| | POL1 | POLE BUILDING-GRAVEL | 1 | 30 | 0 | 504.0 |
| | SI1 | SITE IMPROVEMENT | 1 | 30 | 0 | 1.5 |
| | BASE | BASEMENT | 1 | 30 | 1948 | 675.0 |
| | DTG | Detached Garage | 1 | 30 | 1948 | 458.0 |
| | RPO | OPEN PORCH W/ROOF | 1 | 30 | 1948 | 12.0 |
| | S1F | Single One Story Fireplace | 1 | 30 | 1948 | 1.0 |
| | SWP | Solid Wall Porch | 1 | 30 | 1948 | 60.0 |
| | GUH | GUEST HOUSE | 1 | 30 | 2023 | 750.0 |
| | ATG | Attached Garage | 1 | 30 | 2023 | 1320.0 |
| | RPC | OPEN PORCH W/ROOF , CEILED | 1 | 30 | 2023 | 266.0 |
| | RPC | OPEN PORCH W/ROOF , CEILED | 1 | 30 | 2023 | 30.0 |
Sketch
Property Image
Land
| 1 | RES 1 | Converted: Residential | 1.9800 | 0.00 | 0.00 | 0.00 | 1.00 | $135,060 | $0 |
Roll Value History
| 2026 | N/A | N/A | N/A | N/A | N/A |
| 2025 | $364,000 | $135,060 | $0 | $499,060 | $499,060 |
| 2024 | $346,670 | $135,060 | $0 | $481,730 | $481,730 |
| 2023 | $315,150 | $135,060 | $0 | $450,210 | $450,210 |
| 2022 | $182,410 | $135,060 | $0 | $317,470 | $317,470 |
| 2021 | $150,140 | $82,800 | $0 | $232,940 | $232,940 |
| 2020 | $136,490 | $82,800 | $0 | $219,290 | $219,290 |
| 2019 | $136,490 | $82,800 | $0 | $219,290 | $219,290 |
| 2018 | $124,090 | $82,800 | $0 | $206,890 | $206,890 |
| 2017 | $124,090 | $82,800 | $0 | $206,890 | $206,890 |
| 2016 | $95,450 | $82,800 | $0 | $178,250 | $178,250 |
| 2015 | $93,100 | $82,800 | $0 | $175,900 | $51,640 |
| 2014 | $93,100 | $82,800 | $0 | $175,900 | $51,640 |
| 2013 | $93,100 | $82,800 | $0 | $175,900 | $175,900 |
| 2012 | $93,100 | $82,800 | $0 | $0 | $0 |
| 2011 | $93,100 | $82,800 | $0 | $0 | $0 |
| 2010 | $91,500 | $82,800 | $0 | $0 | $0 |
| 2009 | $144,800 | $48,900 | $0 | $0 | $0 |
| 2008 | $80,200 | $48,900 | $0 | $0 | $0 |
| 2007 | $80,200 | $48,900 | $0 | $0 | $0 |
Deed and Sales History
| 1 | 03/19/2019 | SWD | STATUTORY WARRANTY DEED | KEEN HAZEL J LIVING TRUST | CUMMINS JAMISON & BRIDGET | | | $230,000.00 | 136535 | 2019-01748 |
| 2 | 02/12/2013 | WARRANTY D | WARRANTY DEED | KEEN LIVING TRUST | KEEN HAZEL J LIVING TRUST | | | $0.00 | 123445 | 2013-01250 |
| 3 | 11/10/1977 | WARRANTY D | WARRANTY DEED | | | | | $52,000.00 | 0 | 7105-70597 |
Payout Agreement
| No payout information available.. |