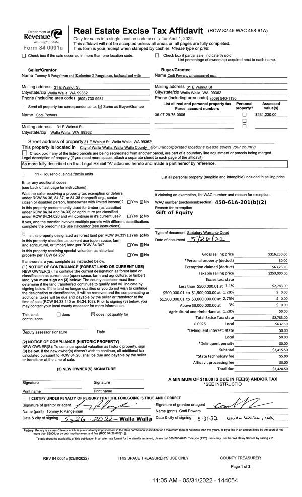
Property
Account |
| Property ID: | 35001 | Abbreviated Legal Description: | MENLO PARK LT 6 |
| Parcel Number: | 360729750006 | Agent Code: | |
| Type: | Real | | |
| Tax Area: | 1 - OL-140-F | Land Use Code | 11 |
| Open Space: | N | DFL | N |
| Historic Property: | N | Remodel Property: | N |
| Multi-Family Redevelopment: | N | | |
| Township: | 7 | Section: | 29 |
| Range: | 36 |
Location |
| Address: | 31 E WALNUT ST WA 99362 | Mapsco: | |
| Neighborhood: | A-SFR | Map ID: | |
| Neighborhood CD: | 513011 |
Owner |
| Name: | POWERS CODI | Owner ID: | 71694 |
| Mailing Address: | 31 E WALNUT ST WALLA WALLA, WA 99362 | % Ownership: | 100.0000000000% |
| | | Exemptions: | |
Taxes and Assessment Details
Values
| (+) Improvement Homesite Value: | + | $0 | |
| (+) Improvement Non-Homesite Value: | + | $264,040 | |
| (+) Land Homesite Value: | + | $0 | |
| (+) Land Non-Homesite Value: | + | $44,960 | |
| (+) Curr Use (HS): | + | $0 | $0 |
| (+) Curr Use (NHS): | + | $0 | $0 |
| | | -------------------------- | |
| (=) Market Value: | = | $309,000 | |
| (–) Productivity Loss: | – | $0 | |
| | | -------------------------- | |
| (=) Subtotal: | = | $309,000 | |
| (+) Senior Appraised Value: | + | $0 | |
| (+) Non-Senior Appraised Value: | + | $309,000 | |
| | | -------------------------- | |
| (=) Total Appraised Value: | = | $309,000 | |
| (–) Senior Exemption Loss: | – | $0 | |
| (–) Exemption Loss: | – | $0 | |
| | | -------------------------- | |
| (=) Taxable Value: | = | $309,000 | |
Taxing Jurisdiction
| Owner: | POWERS CODI | | |
| % Ownership: | 100.0000000000% | | |
| Total Value: | $309,000 | | |
| Tax Area: | 1 - OL-140-F |
| CERFD | CURRENT EXPENSE REFUND 010 | 0.0000000000 | $309,000 | $309,000 | $0.00 | | |
| CURREXP | CURRENT EXPENSE 010 | 1.0175366760 | $309,000 | $309,000 | $314.42 | | |
| HUMNSERV | HUMAN SERVICES 119 | 0.0250000000 | $309,000 | $309,000 | $7.73 | | |
| SLDREL | SOLDIERS RELIEF 121 | 0.0155990005 | $309,000 | $309,000 | $4.82 | | |
| EMERGSER | EMS 147 | 0.3792580840 | $309,000 | $309,000 | $117.19 | | |
| EMSRFD | EMS REFUND 147 | 0.0000000000 | $309,000 | $309,000 | $0.00 | | |
| PORTRFD | PORT REFUND 640 | 0.0000000000 | $309,000 | $309,000 | $0.00 | | |
| PORTWWGEN | PORT OF WW 640 | 0.2460186015 | $309,000 | $309,000 | $76.02 | | |
| SD140BOND | SD #140 BOND 764 | 0.8342371393 | $309,000 | $309,000 | $257.78 | | |
| SD140GEN | SD #140 GENERAL 760 | 2.0646500647 | $309,000 | $309,000 | $637.98 | | |
| ST2 | STATE SCHOOL PART 2 600 | 0.8131451643 | $309,000 | $309,000 | $251.26 | | |
| STATESCHL | STATE SCHOOL 600 | 1.5158548041 | $309,000 | $309,000 | $468.40 | | |
| STREFUND | STATE REFUND LEVY 603 | 0.0000000000 | $309,000 | $309,000 | $0.00 | | |
| CWWBOND | C OF WW BOND 643 | 0.2760494372 | $309,000 | $309,000 | $85.30 | | |
| CWWGEN | CITY OF WW 631 | 1.6100204973 | $309,000 | $309,000 | $497.50 | | |
| CWWRFD | CITY OF WALLA WALLA REFUND 631 | 0.0000000000 | $309,000 | $309,000 | $0.00 | | |
| | Total Tax Rate: | 8.7973694689 | | | | | |
| | | | | Taxes w/Current Exemptions: | $2,718.40 | | |
| | | | | Taxes w/o Exemptions: | $2,718.40 | | |
Improvement / Building
| Improvement #1: | RESIDENTIAL | State Code: | 11 | 1362.0 sqft | Value: | $264,040 |
| Exterior Wall: | VINYL | Heating/Cooling: | WARM & COOLED AIR | | Number of Bathrooms: | 1 | Number of Bedrooms: | 2 | | Plumbing: | 6 | Roof Covering: | COMP SHINGLE |
|
| | Type | Description | Class CD | Sub Class CD | Year Built | Area |
| | MA | Main Area | 1 | 30 | 1916 | 1362.0 |
| | SI1 | SITE IMPROVEMENT | 1 | 30 | 1916 | 1.0 |
| | S1F | Single One Story Fireplace | 1 | 30 | 1916 | 1.0 |
| | RCD | WOOD DECK W/ROOF, CEILED | 1 | 30 | 1916 | 208.0 |
| | DTG | Detached Garage | 1 | 30 | 1916 | 220.0 |
Sketch
Property Image
Land
| 1 | RES 1 | Converted: Residential | 0.1652 | 7194.00 | 0.00 | 0.00 | 1.00 | $44,960 | $0 |
Roll Value History
| 2026 | N/A | N/A | N/A | N/A | N/A |
| 2025 | $235,110 | $71,940 | $0 | $307,050 | $307,050 |
| 2024 | $235,110 | $71,940 | $0 | $307,050 | $307,050 |
| 2023 | $264,040 | $44,960 | $0 | $309,000 | $309,000 |
| 2022 | $251,460 | $44,960 | $0 | $296,420 | $296,420 |
| 2021 | $186,270 | $44,960 | $0 | $231,230 | $231,230 |
| 2020 | $124,180 | $44,960 | $0 | $169,140 | $169,140 |
| 2019 | $124,180 | $44,960 | $0 | $169,140 | $169,140 |
| 2018 | $112,890 | $44,960 | $0 | $157,850 | $157,850 |
| 2017 | $126,000 | $28,800 | $0 | $154,800 | $154,800 |
| 2016 | $126,000 | $28,800 | $0 | $154,800 | $154,800 |
| 2015 | $126,000 | $28,800 | $0 | $154,800 | $154,800 |
| 2014 | $105,000 | $28,800 | $0 | $133,800 | $133,800 |
| 2013 | $105,000 | $28,800 | $0 | $133,800 | $133,800 |
| 2012 | $103,500 | $28,800 | $0 | $0 | $0 |
| 2011 | $103,500 | $28,800 | $0 | $0 | $0 |
| 2010 | $97,200 | $28,800 | $0 | $0 | $0 |
| 2009 | $111,200 | $28,800 | $0 | $0 | $0 |
| 2008 | $96,800 | $43,200 | $0 | $0 | $0 |
| 2007 | $81,500 | $14,400 | $0 | $0 | $0 |
Deed and Sales History
| 1 | 05/31/2022 | SWD | STATUTORY WARRANTY DEED | PANGELINAN TOMMY R & KATHERINE G | POWERS CODI | | | $253,000.00 | 144054 | 2022-04646 |
| 2 | 02/27/2013 | QCD | QUIT CLAIM DEED | PANGELINAN, TOMMY R | PANGELINAN, TOMMY R & KATHERIN | | | $0.00 | 123506 | 2013-01770 |
| 3 | 12/27/2002 | WARRANTY D | WARRANTY DEED | DAGGETT, BRUCE A | PANGELINAN, TOMMY R | | | $86,350.00 | 101085 | 2002-14898 |
| 4 | 03/17/1977 | WARRANTY D | WARRANTY DEED | | | | | $27,600.00 | 0 | 5605-62986 |
Payout Agreement
| No payout information available.. |