Property
Account |
| Property ID: | 34990 | Abbreviated Legal Description: | PARKSIDE LOT 22 BLK 2 |
| Parcel Number: | 360727500222 | Agent Code: | |
| Type: | Real | | |
| Tax Area: | 1 - OL-140-F | Land Use Code | 11 |
| Open Space: | N | DFL | N |
| Historic Property: | N | Remodel Property: | N |
| Multi-Family Redevelopment: | N | | |
| Township: | 7 | Section: | 27 |
| Range: | 36 |
Location |
| Address: | 509 ANKENY ST WA 99362 | Mapsco: | |
| Neighborhood: | A Res | Map ID: | |
| Neighborhood CD: | 613011 |
Owner |
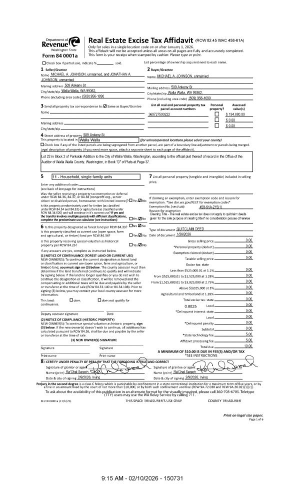
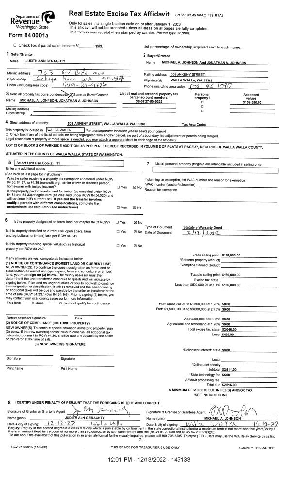
| Name: | JOHNSON MICHAEL A | Owner ID: | 72861 |
| Mailing Address: | JONATHAN A JOHNSON 509 ANKENY ST WALLA WALLA, WA 99362 | % Ownership: | 100.0000000000% |
| | | Exemptions: | |
Taxes and Assessment Details
Values
| (+) Improvement Homesite Value: | + | $118,250 | |
| (+) Improvement Non-Homesite Value: | + | $0 | |
| (+) Land Homesite Value: | + | $58,290 | |
| (+) Land Non-Homesite Value: | + | $0 | |
| (+) Curr Use (HS): | + | $0 | $0 |
| (+) Curr Use (NHS): | + | $0 | $0 |
| | | -------------------------- | |
| (=) Market Value: | = | $176,540 | |
| (–) Productivity Loss: | – | $0 | |
| | | -------------------------- | |
| (=) Subtotal: | = | $176,540 | |
| (+) Senior Appraised Value: | + | $0 | |
| (+) Non-Senior Appraised Value: | + | $176,540 | |
| | | -------------------------- | |
| (=) Total Appraised Value: | = | $176,540 | |
| (–) Senior Exemption Loss: | – | $0 | |
| (–) Exemption Loss: | – | $0 | |
| | | -------------------------- | |
| (=) Taxable Value: | = | $176,540 | |
Taxing Jurisdiction
| Owner: | JOHNSON MICHAEL A | | |
| % Ownership: | 100.0000000000% | | |
| Total Value: | $176,540 | | |
| Tax Area: | 1 - OL-140-F |
| CERFD | CURRENT EXPENSE REFUND 010 | 0.0000000000 | $176,540 | $176,540 | $0.00 | | |
| CURREXP | CURRENT EXPENSE 010 | 1.0175366760 | $176,540 | $176,540 | $179.64 | | |
| HUMNSERV | HUMAN SERVICES 119 | 0.0250000000 | $176,540 | $176,540 | $4.41 | | |
| SLDREL | SOLDIERS RELIEF 121 | 0.0155990005 | $176,540 | $176,540 | $2.75 | | |
| EMERGSER | EMS 147 | 0.3792580840 | $176,540 | $176,540 | $66.95 | | |
| EMSRFD | EMS REFUND 147 | 0.0000000000 | $176,540 | $176,540 | $0.00 | | |
| PORTRFD | PORT REFUND 640 | 0.0000000000 | $176,540 | $176,540 | $0.00 | | |
| PORTWWGEN | PORT OF WW 640 | 0.2460186015 | $176,540 | $176,540 | $43.43 | | |
| SD140BOND | SD #140 BOND 764 | 0.8342371393 | $176,540 | $176,540 | $147.28 | | |
| SD140GEN | SD #140 GENERAL 760 | 2.0646500647 | $176,540 | $176,540 | $364.49 | | |
| ST2 | STATE SCHOOL PART 2 600 | 0.8131451643 | $176,540 | $176,540 | $143.55 | | |
| STATESCHL | STATE SCHOOL 600 | 1.5158548041 | $176,540 | $176,540 | $267.61 | | |
| STREFUND | STATE REFUND LEVY 603 | 0.0000000000 | $176,540 | $176,540 | $0.00 | | |
| CWWBOND | C OF WW BOND 643 | 0.2760494372 | $176,540 | $176,540 | $48.73 | | |
| CWWGEN | CITY OF WW 631 | 1.6100204973 | $176,540 | $176,540 | $284.23 | | |
| CWWRFD | CITY OF WALLA WALLA REFUND 631 | 0.0000000000 | $176,540 | $176,540 | $0.00 | | |
| | Total Tax Rate: | 8.7973694689 | | | | | |
| | | | | Taxes w/Current Exemptions: | $1,553.07 | | |
| | | | | Taxes w/o Exemptions: | $1,553.07 | | |
Improvement / Building
| Improvement #1: | RESIDENTIAL | State Code: | 11 | 772.0 sqft | Value: | $118,250 |
| Exterior Wall: | METAL/STEEL | Heating/Cooling: | WARM & COOLED AIR | | Number of Bathrooms: | 1 | Number of Bedrooms: | 1 | | Plumbing: | 6 | Roof Covering: | COMP SHINGLE |
|
| | Type | Description | Class CD | Sub Class CD | Year Built | Area |
| | MA | Main Area | 1 | 20 | 1927 | 772.0 |
| | SI1 | SITE IMPROVEMENT | 1 | 20 | 1927 | 1.0 |
| | BASE | BASEMENT | 1 | 20 | 1927 | 512.0 |
| | BMF | BASEMENT - MIN FINISH | 1 | 20 | 1927 | 256.0 |
| | RPS | PORCH W/STEPS,ROOF | 1 | 20 | 1927 | 6.0 |
| | CPC | COVERED CARPORT/PATIO | 1 | 20 | 1927 | 390.0 |
Sketch
Property Image
Land
| 1 | RES 1 | Converted: Residential | 0.1487 | 6477.00 | 0.00 | 0.00 | 1.00 | $58,290 | $0 |
Roll Value History
| 2026 | N/A | N/A | N/A | N/A | N/A |
| 2025 | $122,830 | $71,250 | $0 | $194,080 | $194,080 |
| 2024 | $118,250 | $58,290 | $0 | $176,540 | $176,540 |
| 2023 | $118,250 | $58,290 | $0 | $176,540 | $176,540 |
| 2022 | $112,620 | $46,960 | $0 | $159,580 | $159,580 |
| 2021 | $93,850 | $46,960 | $0 | $140,810 | $24,200 |
| 2020 | $78,210 | $46,960 | $0 | $125,170 | $24,200 |
| 2019 | $78,210 | $46,960 | $0 | $125,170 | $24,200 |
| 2018 | $79,130 | $38,900 | $0 | $118,030 | $24,200 |
| 2017 | $71,940 | $38,900 | $0 | $110,840 | $24,200 |
| 2016 | $65,400 | $38,900 | $0 | $104,300 | $24,200 |
| 2015 | $65,400 | $38,900 | $0 | $104,300 | $24,200 |
| 2014 | $43,600 | $38,900 | $0 | $82,500 | $22,500 |
| 2013 | $43,600 | $38,900 | $0 | $82,500 | $22,500 |
| 2012 | $45,300 | $38,900 | $0 | $0 | $0 |
| 2011 | $45,300 | $38,900 | $0 | $0 | $0 |
| 2010 | $45,300 | $38,900 | $0 | $0 | $0 |
| 2009 | $54,600 | $38,900 | $0 | $0 | $0 |
| 2008 | $54,600 | $38,900 | $0 | $0 | $0 |
| 2007 | $48,000 | $19,400 | $0 | $0 | $0 |
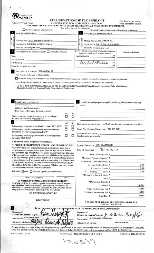
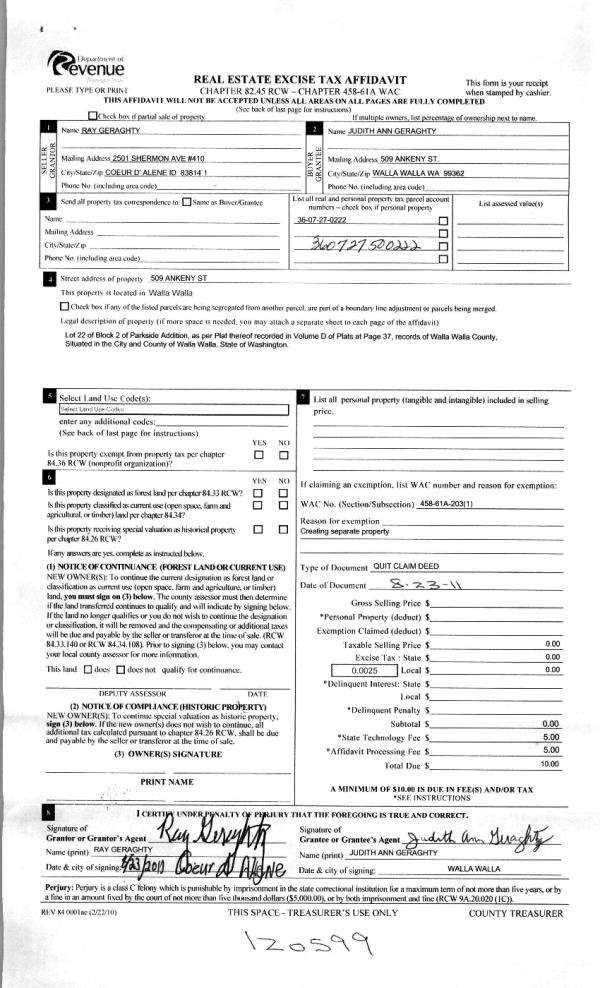
Deed and Sales History
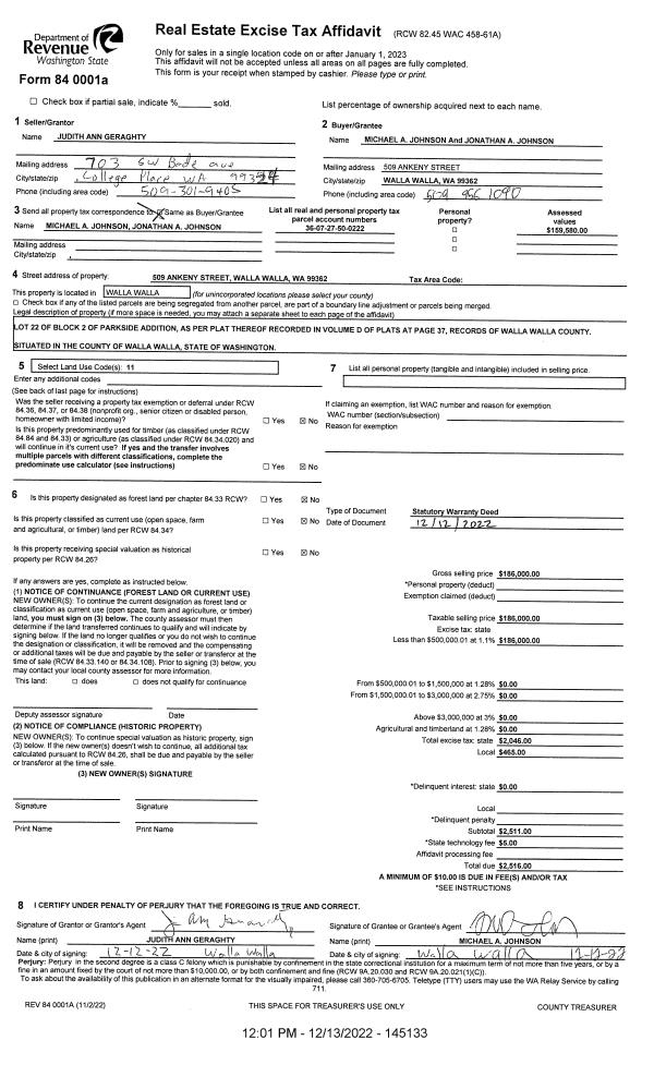
| 1 | 12/13/2022 | SWD | STATUTORY WARRANTY DEED | GERAGHTY JUDITH ANN | JOHNSON MICHAEL A | | | $186,000.00 | 145133 | 2022-09649 |
| 2 | 08/25/2011 | QCD | QUIT CLAIM DEED | GERAGHTY, RAY | GERAGHTY, JUDITH ANN | | | $0.00 | 120599 | 2011-06667 |
| 3 | 08/25/2011 | WARRANTY D | WARRANTY DEED | O'NEEL, JUSTIN LUTHER | GERAGHTY, JUDITH ANN | | | $82,500.00 | 120600 | 2011-06668 |
| 4 | 10/23/2003 | WARRANTY D | WARRANTY DEED | DICKEY, BERTHA | O'NEEL, JUSTIN LUTHER | | | $75,000.00 | 103341 | 2003-16403 |
| 5 | 01/01/1978 | QCD | QUIT CLAIM DEED | | | | | $2,500.00 | 0 | 8978-07912 |
Payout Agreement
| No payout information available.. |