Property
Account |
| Property ID: | 34930 | Abbreviated Legal Description: | TABLEROCK SUBDIVISION II LOT 6 |
| Parcel Number: | 360604590006 | Agent Code: | |
| Type: | Real | | |
| Tax Area: | 5 - OL-140 | Land Use Code | 11 |
| Open Space: | N | DFL | N |
| Historic Property: | N | Remodel Property: | N |
| Multi-Family Redevelopment: | N | | |
| Township: | 6 | Section: | 4 |
| Range: | 36 |
Location |
| Address: | 382 EAGLE CREST DR WA 99362 | Mapsco: | |
| Neighborhood: | VG Res | Map ID: | |
| Neighborhood CD: | 615011 |
Owner |
| Name: | TRUMBULL FAMILY TRUST | Owner ID: | 72120 |
| Mailing Address: | 382 EAGLE CREST DR WALLA WALLA, WA 99362 | % Ownership: | 100.0000000000% |
| | | Exemptions: | |
Taxes and Assessment Details
Values
| (+) Improvement Homesite Value: | + | $0 | |
| (+) Improvement Non-Homesite Value: | + | $604,030 | |
| (+) Land Homesite Value: | + | $0 | |
| (+) Land Non-Homesite Value: | + | $180,000 | |
| (+) Curr Use (HS): | + | $0 | $0 |
| (+) Curr Use (NHS): | + | $0 | $0 |
| | | -------------------------- | |
| (=) Market Value: | = | $784,030 | |
| (–) Productivity Loss: | – | $0 | |
| | | -------------------------- | |
| (=) Subtotal: | = | $784,030 | |
| (+) Senior Appraised Value: | + | $0 | |
| (+) Non-Senior Appraised Value: | + | $784,030 | |
| | | -------------------------- | |
| (=) Total Appraised Value: | = | $784,030 | |
| (–) Senior Exemption Loss: | – | $0 | |
| (–) Exemption Loss: | – | $0 | |
| | | -------------------------- | |
| (=) Taxable Value: | = | $784,030 | |
Taxing Jurisdiction
| Owner: | TRUMBULL FAMILY TRUST | | |
| % Ownership: | 100.0000000000% | | |
| Total Value: | $784,030 | | |
| Tax Area: | 5 - OL-140 |
| CERFD | CURRENT EXPENSE REFUND 010 | 0.0000000000 | $784,030 | $784,030 | $0.00 | | |
| CURREXP | CURRENT EXPENSE 010 | 0.9851088983 | $784,030 | $784,030 | $772.35 | | |
| HUMNSERV | HUMAN SERVICES 119 | 0.0250000000 | $784,030 | $784,030 | $19.60 | | |
| SLDREL | SOLDIERS RELIEF 121 | 0.0155990000 | $784,030 | $784,030 | $12.23 | | |
| EMERGSER | EMS 147 | 0.3676811629 | $784,030 | $784,030 | $288.27 | | |
| EMSRFD | EMS REFUND 147 | 0.0000000000 | $784,030 | $784,030 | $0.00 | | |
| PORTRFD | PORT REFUND 640 | 0.0000000000 | $784,030 | $784,030 | $0.00 | | |
| PORTWWGEN | PORT OF WW 640 | 0.2344301070 | $784,030 | $784,030 | $183.80 | | |
| SD140BOND | SD #140 BOND 764 | 0.8032434458 | $784,030 | $784,030 | $629.77 | | |
| SD140CAP | SD #140 CAP 762 | 0.3840034221 | $784,030 | $784,030 | $301.07 | | |
| SD140GEN | SD #140 GENERAL 760 | 2.4999999996 | $784,030 | $784,030 | $1,960.08 | | |
| ST2 | STATE SCHOOL PART 2 600 | 0.8853714103 | $784,030 | $784,030 | $694.16 | | |
| STATESCHL | STATE SCHOOL 600 | 1.6424571473 | $784,030 | $784,030 | $1,287.74 | | |
| STREFUND | STATE REFUND LEVY 603 | 0.0000000000 | $784,030 | $784,030 | $0.00 | | |
| CWWBOND | C OF WW BOND 643 | 0.2642134255 | $784,030 | $784,030 | $207.15 | | |
| CWWGEN | CITY OF WW 631 | 1.6110494978 | $784,030 | $784,030 | $1,263.11 | | |
| CWWRFD | CITY OF WALLA WALLA REFUND 631 | 0.0000000000 | $784,030 | $784,030 | $0.00 | | |
| | Total Tax Rate: | 9.7181575166 | | | | | |
| | | | | Taxes w/Current Exemptions: | $7,619.33 | | |
| | | | | Taxes w/o Exemptions: | $7,619.33 | | |
Improvement / Building
| Improvement #1: | RESIDENTIAL | State Code: | 11 | 2354.0 sqft | Value: | $604,030 |
| Exterior Wall: | STUCCO | Heating/Cooling: | WARM & COOLED AIR | | Number of Bathrooms: | 2.5 | Number of Bedrooms: | 4 | | Plumbing: | 14 | Roof Covering: | COMP SHINGLE |
|
| | Type | Description | Class CD | Sub Class CD | Year Built | Area |
| | MA | Main Area | 1 | 40 | 2012 | 2354.0 |
| | BONU | BONUS ROOM W/FINISH | 1 | 40 | 2012 | 520.0 |
| | GFP | GAS FIREPLACE | 1 | 40 | 2012 | 1.0 |
| | RPC | OPEN PORCH W/ROOF , CEILED | 1 | 40 | 2012 | 40.0 |
| | RPC | OPEN PORCH W/ROOF , CEILED | 1 | 40 | 2012 | 242.0 |
| | SI1 | SITE IMPROVEMENT | 1 | 40 | 2012 | 4.5 |
| | ATG | Attached Garage | 1 | 40 | 2012 | 1066.0 |
Sketch
Property Image
Land
| 1 | RES 1 | Converted: Residential | 0.2341 | 10198.00 | 0.00 | 0.00 | 1.00 | $180,000 | $0 |
Roll Value History
| 2026 | N/A | N/A | N/A | N/A | N/A |
| 2025 | $604,030 | $180,000 | $0 | $784,030 | $784,030 |
| 2024 | $612,600 | $120,000 | $0 | $732,600 | $732,600 |
| 2023 | $583,430 | $120,000 | $0 | $703,430 | $703,430 |
| 2022 | $416,730 | $95,000 | $0 | $511,730 | $511,730 |
| 2021 | $396,890 | $95,000 | $0 | $491,890 | $491,890 |
| 2020 | $330,740 | $95,000 | $0 | $425,740 | $425,740 |
| 2019 | $330,740 | $95,000 | $0 | $425,740 | $425,740 |
| 2018 | $349,110 | $50,000 | $0 | $399,110 | $399,110 |
| 2017 | $338,940 | $50,000 | $0 | $388,940 | $388,940 |
| 2016 | $322,800 | $50,000 | $0 | $372,800 | $372,800 |
| 2015 | $322,800 | $50,000 | $0 | $372,800 | $372,800 |
| 2014 | $322,800 | $50,000 | $0 | $372,800 | $372,800 |
| 2013 | $322,800 | $50,000 | $0 | $372,800 | $372,800 |
| 2012 | $0 | $55,000 | $0 | $0 | $0 |
| 2011 | $0 | $70,000 | $0 | $0 | $0 |
| 2010 | $0 | $70,000 | $0 | $0 | $0 |
| 2009 | $0 | $70,000 | $0 | $0 | $0 |
| 2008 | $0 | $70,000 | $0 | $0 | $0 |
| 2007 | $0 | $500 | $0 | $0 | $0 |
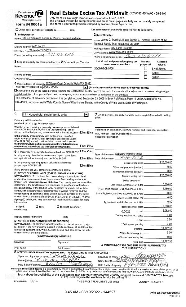
Deed and Sales History
| 1 | 08/19/2022 | SWD | STATUTORY WARRANTY DEED | PHIPPS RICK J & TERESA A | TRUMBULL FAMILY TRUST | | | $825,000.00 | 144527 | 2022-06950 |
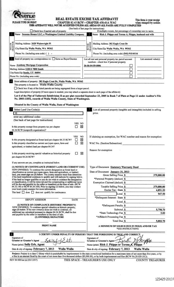
| 2 | 02/07/2013 | WARRANTY D | WARRANTY DEED | SONOMA HOMES LLC | PHIPPS, RICK J & TERESA A | | | $379,000.00 | 123429 | 2013-01142 |
| 3 | 03/29/2012 | WARRANTY D | WARRANTY DEED | ZIMMER, ARTHUR R & ARLENE E TR | SONOMA HOMES LLC | | | $100,000.00 | 121592 | 2012-02548 |
|   | |
| 4 | 05/29/2007 | WARRANTY D | WARRANTY DEED | GATEWOOD, W PAUL & CAROL | ZIMMER, ARTHUR R & ARLENE E TR | | | $72,000.00 | 112913 | 2007-06018 |
Payout Agreement
| No payout information available.. |