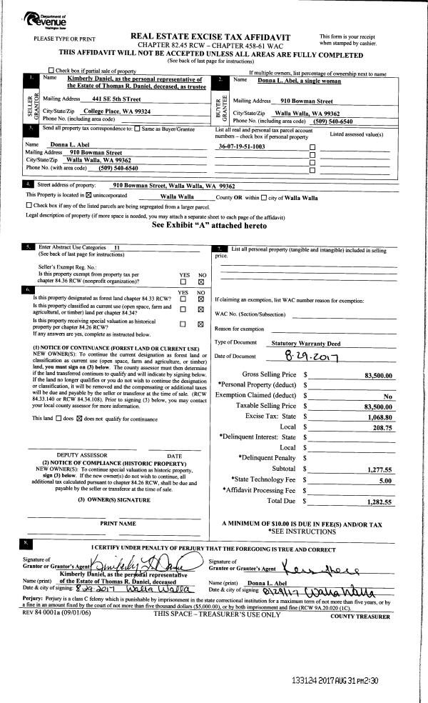
Property
Account |
| Property ID: | 34912 | Abbreviated Legal Description: | BOWMANS TAX 3 BLK 10 |
| Parcel Number: | 360719511003 | Agent Code: | |
| Type: | Real | | |
| Tax Area: | 1 - OL-140-F | Land Use Code | 11 |
| Open Space: | N | DFL | N |
| Historic Property: | N | Remodel Property: | N |
| Multi-Family Redevelopment: | N | | |
| Township: | 7 | Section: | 19 |
| Range: | 36 |
Location |
| Address: | 910 BOWMAN ST WA 99362 | Mapsco: | |
| Neighborhood: | A-SFR | Map ID: | |
| Neighborhood CD: | 313011 |
Owner |
| Name: | ABEL DONNA L | Owner ID: | 61656 |
| Mailing Address: | 624 S 19TH AVE CORNELIUS, OR 97113 | % Ownership: | 100.0000000000% |
| | | Exemptions: | |
Taxes and Assessment Details
Values
| (+) Improvement Homesite Value: | + | $139,160 | |
| (+) Improvement Non-Homesite Value: | + | $0 | |
| (+) Land Homesite Value: | + | $44,430 | |
| (+) Land Non-Homesite Value: | + | $0 | |
| (+) Curr Use (HS): | + | $0 | $0 |
| (+) Curr Use (NHS): | + | $0 | $0 |
| | | -------------------------- | |
| (=) Market Value: | = | $183,590 | |
| (–) Productivity Loss: | – | $0 | |
| | | -------------------------- | |
| (=) Subtotal: | = | $183,590 | |
| (+) Senior Appraised Value: | + | $0 | |
| (+) Non-Senior Appraised Value: | + | $183,590 | |
| | | -------------------------- | |
| (=) Total Appraised Value: | = | $183,590 | |
| (–) Senior Exemption Loss: | – | $0 | |
| (–) Exemption Loss: | – | $0 | |
| | | -------------------------- | |
| (=) Taxable Value: | = | $183,590 | |
Taxing Jurisdiction
| Owner: | ABEL DONNA L | | |
| % Ownership: | 100.0000000000% | | |
| Total Value: | $183,590 | | |
| Tax Area: | 1 - OL-140-F |
| CERFD | CURRENT EXPENSE REFUND 010 | 0.0000000000 | $183,590 | $183,590 | $0.00 | | |
| CURREXP | CURRENT EXPENSE 010 | 1.0175366760 | $183,590 | $183,590 | $186.81 | | |
| HUMNSERV | HUMAN SERVICES 119 | 0.0250000000 | $183,590 | $183,590 | $4.59 | | |
| SLDREL | SOLDIERS RELIEF 121 | 0.0155990005 | $183,590 | $183,590 | $2.86 | | |
| EMERGSER | EMS 147 | 0.3792580840 | $183,590 | $183,590 | $69.63 | | |
| EMSRFD | EMS REFUND 147 | 0.0000000000 | $183,590 | $183,590 | $0.00 | | |
| PORTRFD | PORT REFUND 640 | 0.0000000000 | $183,590 | $183,590 | $0.00 | | |
| PORTWWGEN | PORT OF WW 640 | 0.2460186015 | $183,590 | $183,590 | $45.17 | | |
| SD140BOND | SD #140 BOND 764 | 0.8342371393 | $183,590 | $183,590 | $153.16 | | |
| SD140GEN | SD #140 GENERAL 760 | 2.0646500647 | $183,590 | $183,590 | $379.05 | | |
| ST2 | STATE SCHOOL PART 2 600 | 0.8131451643 | $183,590 | $183,590 | $149.29 | | |
| STATESCHL | STATE SCHOOL 600 | 1.5158548041 | $183,590 | $183,590 | $278.30 | | |
| STREFUND | STATE REFUND LEVY 603 | 0.0000000000 | $183,590 | $183,590 | $0.00 | | |
| CWWBOND | C OF WW BOND 643 | 0.2760494372 | $183,590 | $183,590 | $50.68 | | |
| CWWGEN | CITY OF WW 631 | 1.6100204973 | $183,590 | $183,590 | $295.58 | | |
| CWWRFD | CITY OF WALLA WALLA REFUND 631 | 0.0000000000 | $183,590 | $183,590 | $0.00 | | |
| | Total Tax Rate: | 8.7973694689 | | | | | |
| | | | | Taxes w/Current Exemptions: | $1,615.12 | | |
| | | | | Taxes w/o Exemptions: | $1,615.12 | | |
Improvement / Building
| Improvement #1: | RESIDENTIAL | State Code: | 11 | 836.0 sqft | Value: | $139,160 |
| Exterior Wall: | VINYL | Heating/Cooling: | HEAT PUMP | | Number of Bathrooms: | 1 | Number of Bedrooms: | 3 | | Plumbing: | 6 | Roof Covering: | COMP SHINGLE |
|
| | Type | Description | Class CD | Sub Class CD | Year Built | Area |
| | MA | Main Area | 1 | 20 | 1946 | 836.0 |
| | SI1 | SITE IMPROVEMENT | 1 | 20 | 0 | 1.0 |
| | BASE | BASEMENT | 1 | 20 | 1946 | 780.0 |
| | OPS | OPEN PORCH W/STEPS | 1 | 20 | 1946 | 24.0 |
| | BRF | BASEMENT - REC FINISH | 1 | 20 | 1946 | 126.0 |
| | RPS | PORCH W/STEPS,ROOF | 1 | 20 | 1946 | 128.0 |
Sketch
Property Image
Land
| 1 | RES 1 | Converted: Residential | 0.1236 | 5385.00 | 0.00 | 0.00 | 1.00 | $44,430 | $0 |
Roll Value History
| 2026 | N/A | N/A | N/A | N/A | N/A |
| 2025 | $139,160 | $44,430 | $0 | $183,590 | $183,590 |
| 2024 | $139,160 | $44,430 | $0 | $183,590 | $183,590 |
| 2023 | $139,160 | $44,430 | $0 | $183,590 | $183,590 |
| 2022 | $103,080 | $44,430 | $0 | $147,510 | $24,630 |
| 2021 | $103,700 | $22,900 | $0 | $126,600 | $24,630 |
| 2020 | $86,420 | $22,900 | $0 | $109,320 | $24,630 |
| 2019 | $86,420 | $22,900 | $0 | $109,320 | $24,630 |
| 2018 | $61,730 | $22,900 | $0 | $84,630 | $24,630 |
| 2017 | $61,730 | $22,900 | $0 | $84,630 | $24,630 |
| 2016 | $49,380 | $22,900 | $0 | $72,280 | $72,280 |
| 2015 | $61,300 | $22,900 | $0 | $84,200 | $84,200 |
| 2014 | $61,300 | $22,900 | $0 | $84,200 | $84,200 |
| 2013 | $61,300 | $22,900 | $0 | $84,200 | $34,200 |
| 2012 | $70,700 | $22,900 | $0 | $0 | $0 |
| 2011 | $70,700 | $22,900 | $0 | $0 | $0 |
| 2010 | $72,600 | $22,900 | $0 | $0 | $0 |
| 2009 | $91,100 | $9,400 | $0 | $0 | $0 |
| 2008 | $42,000 | $9,400 | $0 | $0 | $0 |
| 2007 | $42,000 | $9,400 | $0 | $0 | $0 |
Deed and Sales History
| 1 | 08/31/2017 | SWD | STATUTORY WARRANTY DEED | DANIEL THOMAS R ESTATE OF | ABEL DONNA L | | | $83,500.00 | 133124 | 2017-06850 |
| 2 | 06/19/1989 | WARRANTY D | WARRANTY DEED | | | | | $23,500.00 | 0 | 6105-65825 |
Payout Agreement
| No payout information available.. |