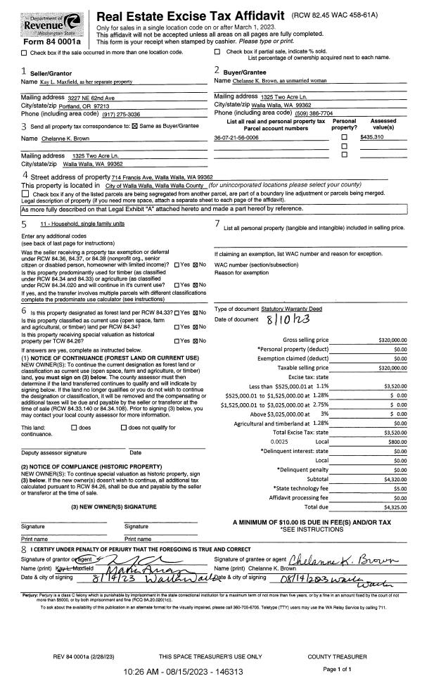
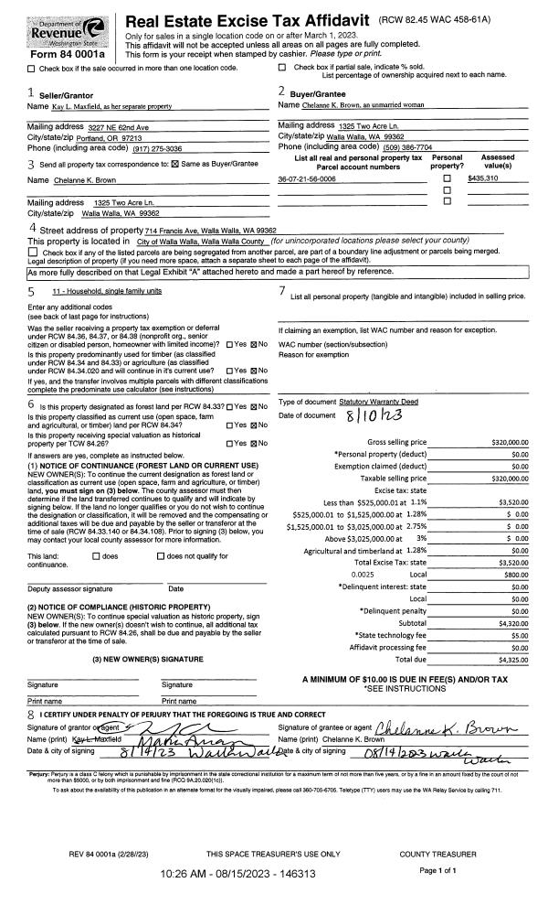
Property
Account |
| Property ID: | 34856 | Abbreviated Legal Description: | FRANCIS PARK LOT 6 |
| Parcel Number: | 360721560006 | Agent Code: | |
| Type: | Real | | |
| Tax Area: | 1 - OL-140-F | Land Use Code | 11 |
| Open Space: | N | DFL | N |
| Historic Property: | N | Remodel Property: | N |
| Multi-Family Redevelopment: | N | | |
| Township: | 7 | Section: | 21 |
| Range: | 36 |
Location |
| Address: | 714 FRANCIS AVE WA 99362 | Mapsco: | |
| Neighborhood: | G-SFR | Map ID: | |
| Neighborhood CD: | 514011 |
Owner |
| Name: | BROWN CHELANNE K | Owner ID: | 74080 |
| Mailing Address: | 1325 TWO ACRE LN WALLA WALLA, WA 99362 | % Ownership: | 100.0000000000% |
| | | Exemptions: | |
Taxes and Assessment Details
Values
| (+) Improvement Homesite Value: | + | $0 | |
| (+) Improvement Non-Homesite Value: | + | $268,220 | |
| (+) Land Homesite Value: | + | $0 | |
| (+) Land Non-Homesite Value: | + | $52,140 | |
| (+) Curr Use (HS): | + | $0 | $0 |
| (+) Curr Use (NHS): | + | $0 | $0 |
| | | -------------------------- | |
| (=) Market Value: | = | $320,360 | |
| (–) Productivity Loss: | – | $0 | |
| | | -------------------------- | |
| (=) Subtotal: | = | $320,360 | |
| (+) Senior Appraised Value: | + | $0 | |
| (+) Non-Senior Appraised Value: | + | $320,360 | |
| | | -------------------------- | |
| (=) Total Appraised Value: | = | $320,360 | |
| (–) Senior Exemption Loss: | – | $0 | |
| (–) Exemption Loss: | – | $0 | |
| | | -------------------------- | |
| (=) Taxable Value: | = | $320,360 | |
Taxing Jurisdiction
| Owner: | BROWN CHELANNE K | | |
| % Ownership: | 100.0000000000% | | |
| Total Value: | $320,360 | | |
| Tax Area: | 1 - OL-140-F |
| CERFD | CURRENT EXPENSE REFUND 010 | 0.0000000000 | $320,360 | $320,360 | $0.00 | | |
| CURREXP | CURRENT EXPENSE 010 | 1.0175366760 | $320,360 | $320,360 | $325.98 | | |
| HUMNSERV | HUMAN SERVICES 119 | 0.0250000000 | $320,360 | $320,360 | $8.01 | | |
| SLDREL | SOLDIERS RELIEF 121 | 0.0155990005 | $320,360 | $320,360 | $5.00 | | |
| EMERGSER | EMS 147 | 0.3792580840 | $320,360 | $320,360 | $121.50 | | |
| EMSRFD | EMS REFUND 147 | 0.0000000000 | $320,360 | $320,360 | $0.00 | | |
| PORTRFD | PORT REFUND 640 | 0.0000000000 | $320,360 | $320,360 | $0.00 | | |
| PORTWWGEN | PORT OF WW 640 | 0.2460186015 | $320,360 | $320,360 | $78.81 | | |
| SD140BOND | SD #140 BOND 764 | 0.8342371393 | $320,360 | $320,360 | $267.26 | | |
| SD140GEN | SD #140 GENERAL 760 | 2.0646500647 | $320,360 | $320,360 | $661.43 | | |
| ST2 | STATE SCHOOL PART 2 600 | 0.8131451643 | $320,360 | $320,360 | $260.50 | | |
| STATESCHL | STATE SCHOOL 600 | 1.5158548041 | $320,360 | $320,360 | $485.62 | | |
| STREFUND | STATE REFUND LEVY 603 | 0.0000000000 | $320,360 | $320,360 | $0.00 | | |
| CWWBOND | C OF WW BOND 643 | 0.2760494372 | $320,360 | $320,360 | $88.44 | | |
| CWWGEN | CITY OF WW 631 | 1.6100204973 | $320,360 | $320,360 | $515.79 | | |
| CWWRFD | CITY OF WALLA WALLA REFUND 631 | 0.0000000000 | $320,360 | $320,360 | $0.00 | | |
| | Total Tax Rate: | 8.7973694689 | | | | | |
| | | | | Taxes w/Current Exemptions: | $2,818.34 | | |
| | | | | Taxes w/o Exemptions: | $2,818.34 | | |
Improvement / Building
| Improvement #1: | RESIDENTIAL | State Code: | 11 | 1447.0 sqft | Value: | $268,220 |
| Exterior Wall: | SIDING | Heating/Cooling: | HEAT PUMP | | Number of Bathrooms: | 2 | Number of Bedrooms: | 3 | | Plumbing: | 10 | Roof Covering: | COMP SHINGLE |
|
| | Type | Description | Class CD | Sub Class CD | Year Built | Area |
| | MA | Main Area | 4 | 35 | 1948 | 1447.0 |
| | UPFL | Upper Floor (included in main area) | 4 | 35 | 1948 | 365.0 |
| | SI1 | SITE IMPROVEMENT | 4 | 35 | 1948 | 2.0 |
| | BASE | BASEMENT | 4 | 35 | 1948 | 1028.0 |
| | BPF | BASEMENT -PARTITIONED FINISH | 4 | 35 | 1948 | 390.0 |
| | D2F | Double 2 Story Fireplace | 4 | 35 | 1948 | 1.0 |
| | RPS | PORCH W/STEPS,ROOF | 4 | 35 | 1948 | 43.0 |
| | WOD | Wood Deck | 4 | 35 | 1948 | 288.0 |
Sketch
Property Image
Land
| 1 | RES 1 | Converted: Residential | 0.1651 | 7192.00 | 0.00 | 0.00 | 1.00 | $52,140 | $0 |
Roll Value History
| 2026 | N/A | N/A | N/A | N/A | N/A |
| 2025 | $231,040 | $79,110 | $0 | $310,150 | $310,150 |
| 2024 | $231,040 | $79,110 | $0 | $310,150 | $310,150 |
| 2023 | $268,220 | $52,140 | $0 | $320,360 | $320,360 |
| 2022 | $383,170 | $52,140 | $0 | $435,310 | $435,310 |
| 2021 | $294,750 | $52,140 | $0 | $346,890 | $346,890 |
| 2020 | $226,730 | $52,140 | $0 | $278,870 | $278,870 |
| 2019 | $226,730 | $52,140 | $0 | $278,870 | $278,870 |
| 2018 | $226,730 | $52,140 | $0 | $278,870 | $278,870 |
| 2017 | $200,520 | $32,400 | $0 | $232,920 | $232,920 |
| 2016 | $200,520 | $32,400 | $0 | $232,920 | $232,920 |
| 2015 | $200,520 | $32,400 | $0 | $232,920 | $232,920 |
| 2014 | $167,100 | $32,400 | $0 | $199,500 | $199,500 |
| 2013 | $167,100 | $32,400 | $0 | $199,500 | $199,500 |
| 2012 | $167,100 | $32,400 | $0 | $0 | $0 |
| 2011 | $167,100 | $32,400 | $0 | $0 | $0 |
| 2010 | $157,600 | $32,400 | $0 | $0 | $0 |
| 2009 | $178,700 | $32,400 | $0 | $0 | $0 |
| 2008 | $178,700 | $32,400 | $0 | $0 | $0 |
| 2007 | $178,700 | $32,400 | $0 | $0 | $0 |
Deed and Sales History
| 1 | 08/15/2023 | SWD | STATUTORY WARRANTY DEED | MAXFIELD KAY L | BROWN CHELANNE K | | | $320,000.00 | 146313 | 2023-04691 |
| 2 | 10/01/1978 | WARRANTY D | WARRANTY DEED | | | | | $17,400.00 | 0 | 3240-489646 |
Payout Agreement
| No payout information available.. |