| 1 | 03/20/2015 | SWD | STATUTORY WARRANTY DEED | CHANTEL DUSTIN G & MARIA L | HOLCE JONATHAN & CHRISTEL | | | $214,000.00 | 127630 | 2015-02314 |
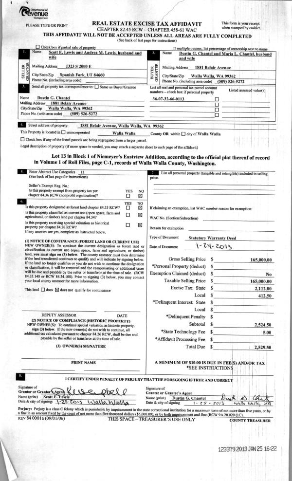
| 2 | 01/25/2013 | WARRANTY D | WARRANTY DEED | LEWIS, SCOTT E & ANDREA M | CHANTEL, DUSTIN G & MARIA L | | | $165,000.00 | 123379 | 2013-00741 |
| 3 | 12/21/2007 | WARRANTY D | WARRANTY DEED | BOUCHEY, GARY D & MARIANNE T T | LEWIS, SCOTT E & ANDREA M | | | $204,900.00 | 114269 | 2007--14538 |
| 4 | 02/07/2006 | QCD | QUIT CLAIM DEED | BOUCHEY, GARY D & MARIANNE T | BOUCHEY, GARY D & MARIANNE T T | | | | 109621 | 2006-01510 |
| 5 | 03/31/2005 | QCD | QUIT CLAIM DEED | BOUCHEY, DON & TOBY TRUSTORS & | BOUCHEY, GARY D & MARIANNE T | | | | 107106 | 2005-03625 |
| 6 | 12/17/2004 | QCD | QUIT CLAIM DEED | LOISEAU, AMY R | BOUCHEY, DON & TOBY TRUSTORS & | | | | 106429 | 2004-14501 |
| 7 | 10/15/2002 | QCD | QUIT CLAIM DEED | BOUCHEY, GARY & MARIANNE | LOISEAU, AMY R | | | | 100605 | 2002-116000 |
| 8 | 05/31/2002 | WARRANTY D | WARRANTY DEED | | | | | $142,900.00 | 99628 | 2002-0006388 |
| 9 | | WARRANTY D | WARRANTY DEED | BOUCHEY, GARY D & MARIANNE T T | | | | | 0 | 2007-14538 |