Property
Account |
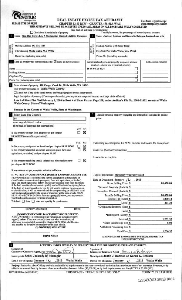
| Property ID: | 34830 | Abbreviated Legal Description: | 4-6-36 LOT 1 OF SHORT PLAT (PTN OF N1/2NW1/4) |
| Parcel Number: | 360604210024 | Agent Code: | |
| Type: | Real | | |
| Tax Area: | 5 - OL-140 | Land Use Code | 11 |
| Open Space: | N | DFL | N |
| Historic Property: | N | Remodel Property: | N |
| Multi-Family Redevelopment: | N | | |
| Township: | 6 | Section: | 4 |
| Range: | 36 |
Location |
| Address: | 180 COUGAR CREEK DR WA 99362 | Mapsco: | |
| Neighborhood: | VG Res Rural/City Inf | Map ID: | |
| Neighborhood CD: | 615012 |
Owner |
| Name: | ROBISON JUSTIN J & KAREN K | Owner ID: | 43170 |
| Mailing Address: | 180 COUGAR CREEK WALLA WALLA, WA 99362 | % Ownership: | 100.0000000000% |
| | | Exemptions: | |
Taxes and Assessment Details
Property Tax Information as of
02/21/2026
Click on "Statement Details" to expand or collapse a tax statement.
* Please enter a valid date ** Please enter a valid date *
Statement Details |
| | TOTAL: | $0.00 | $0.00 | $0.00 | $0.00 | $0.00 | $0.00 |
|
| | $0.00 | $0.00 | $0.00 | $0.00 | $0.00 | $0.00 |
Values
| (+) Improvement Homesite Value: | + | $0 | |
| (+) Improvement Non-Homesite Value: | + | $577,440 | |
| (+) Land Homesite Value: | + | $0 | |
| (+) Land Non-Homesite Value: | + | $120,000 | |
| (+) Curr Use (HS): | + | $0 | $0 |
| (+) Curr Use (NHS): | + | $0 | $0 |
| | | -------------------------- | |
| (=) Market Value: | = | $697,440 | |
| (–) Productivity Loss: | – | $0 | |
| | | -------------------------- | |
| (=) Subtotal: | = | $697,440 | |
| (+) Senior Appraised Value: | + | $0 | |
| (+) Non-Senior Appraised Value: | + | $697,440 | |
| | | -------------------------- | |
| (=) Total Appraised Value: | = | $697,440 | |
| (–) Senior Exemption Loss: | – | $0 | |
| (–) Exemption Loss: | – | $0 | |
| | | -------------------------- | |
| (=) Taxable Value: | = | $697,440 | |
Taxing Jurisdiction
| Owner: | ROBISON JUSTIN J & KAREN K | | |
| % Ownership: | 100.0000000000% | | |
| Total Value: | $697,440 | | |
| Tax Area: | 5 - OL-140 |
| CERFD | CURRENT EXPENSE REFUND 010 | 0.0000000000 | $697,440 | $697,440 | $0.00 | | |
| CURREXP | CURRENT EXPENSE 010 | 1.0175366760 | $697,440 | $697,440 | $709.67 | | |
| HUMNSERV | HUMAN SERVICES 119 | 0.0250000000 | $697,440 | $697,440 | $17.44 | | |
| SLDREL | SOLDIERS RELIEF 121 | 0.0155990005 | $697,440 | $697,440 | $10.88 | | |
| EMERGSER | EMS 147 | 0.3792580840 | $697,440 | $697,440 | $264.51 | | |
| EMSRFD | EMS REFUND 147 | 0.0000000000 | $697,440 | $697,440 | $0.00 | | |
| PORTRFD | PORT REFUND 640 | 0.0000000000 | $697,440 | $697,440 | $0.00 | | |
| PORTWWGEN | PORT OF WW 640 | 0.2460186015 | $697,440 | $697,440 | $171.58 | | |
| SD140BOND | SD #140 BOND 764 | 0.8342371393 | $697,440 | $697,440 | $581.83 | | |
| SD140GEN | SD #140 GENERAL 760 | 2.0646500647 | $697,440 | $697,440 | $1,439.97 | | |
| ST2 | STATE SCHOOL PART 2 600 | 0.8131451643 | $697,440 | $697,440 | $567.12 | | |
| STATESCHL | STATE SCHOOL 600 | 1.5158548041 | $697,440 | $697,440 | $1,057.22 | | |
| STREFUND | STATE REFUND LEVY 603 | 0.0000000000 | $697,440 | $697,440 | $0.00 | | |
| CWWBOND | C OF WW BOND 643 | 0.2760494372 | $697,440 | $697,440 | $192.53 | | |
| CWWGEN | CITY OF WW 631 | 1.6100204973 | $697,440 | $697,440 | $1,122.89 | | |
| CWWRFD | CITY OF WALLA WALLA REFUND 631 | 0.0000000000 | $697,440 | $697,440 | $0.00 | | |
| | Total Tax Rate: | 8.7973694689 | | | | | |
| | | | | Taxes w/Current Exemptions: | $6,135.64 | | |
| | | | | Taxes w/o Exemptions: | $6,135.64 | | |
Improvement / Building
| Improvement #1: | RESIDENTIAL | State Code: | 11 | 2982.0 sqft | Value: | $577,440 |
| Exterior Wall: | HARDBOARD | Heating/Cooling: | WARM & COOLED AIR | | Number of Bathrooms: | 3 | Number of Bedrooms: | 4 | | Plumbing: | 16 | Roof Covering: | COMP SHINGLE |
|
| | Type | Description | Class CD | Sub Class CD | Year Built | Area |
| | MA | Main Area | 4 | 40 | 2014 | 2982.0 |
| | UPFL | Upper Floor (included in main area) | 4 | 40 | 2014 | 1466.0 |
| | ATG | Attached Garage | 4 | 40 | 2014 | 808.0 |
| | RPC | OPEN PORCH W/ROOF , CEILED | 4 | 40 | 2014 | 270.0 |
| | RPC | OPEN PORCH W/ROOF , CEILED | 4 | 40 | 2014 | 224.0 |
| | GFP | GAS FIREPLACE | 4 | 40 | 2014 | 1.0 |
| | SI1 | SITE IMPROVEMENT | 4 | 40 | 2014 | 3.5 |
Sketch
Property Image
Land
| 1 | RES 1 | Converted: Residential | 0.2613 | 11384.00 | 0.00 | 0.00 | 1.00 | $120,000 | $0 |
Roll Value History
| 2026 | N/A | N/A | N/A | N/A | N/A |
| 2025 | $523,750 | $180,000 | $0 | $703,750 | $703,750 |
| 2024 | $606,320 | $120,000 | $0 | $726,320 | $726,320 |
| 2023 | $577,440 | $120,000 | $0 | $697,440 | $697,440 |
| 2022 | $524,950 | $95,000 | $0 | $619,950 | $619,950 |
| 2021 | $403,810 | $95,000 | $0 | $498,810 | $498,810 |
| 2020 | $310,620 | $95,000 | $0 | $405,620 | $405,620 |
| 2019 | $310,620 | $95,000 | $0 | $405,620 | $405,620 |
| 2018 | $324,690 | $50,000 | $0 | $374,690 | $374,690 |
| 2017 | $309,230 | $50,000 | $0 | $359,230 | $359,230 |
| 2016 | $309,230 | $50,000 | $0 | $359,230 | $359,230 |
| 2015 | $309,230 | $50,000 | $0 | $359,230 | $359,230 |
| 2014 | $294,500 | $50,000 | $0 | $344,500 | $344,500 |
| 2013 | $0 | $50,000 | $0 | $50,000 | $50,000 |
| 2012 | $0 | $55,000 | $0 | $0 | $0 |
| 2011 | $0 | $70,000 | $0 | $0 | $0 |
| 2010 | $0 | $70,000 | $0 | $0 | $0 |
| 2009 | $0 | $70,000 | $0 | $0 | $0 |
| 2008 | $0 | $70,000 | $0 | $0 | $0 |
| 2007 | $0 | $1,700 | $0 | $0 | $0 |
Deed and Sales History
| 1 | 01/18/2013 | WARRANTY D | WARRANTY DEED | STOP BUY HERE LLC | ROBISON, JUSTIN J & KAREN K | | | $80,478.00 | 123349 | 2013-00535 |
| 2 | 03/27/2008 | WARRANTY D | WARRANTY DEED | TITUS CREEK DEVELOPMENT LLC | STOP BUY HERE LLC | | | $80,000.00 | 114741 | 2008-02942 |
Payout Agreement
| No payout information available.. |