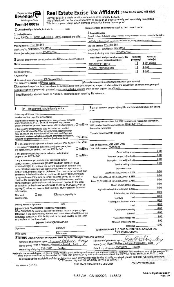
Property
Account |
| Property ID: | 34814 | Abbreviated Legal Description: | BROOKSIDE PARK LOT 9 & NLY 1/2 OF LOT 10 BLK 2 |
| Parcel Number: | 360720500209 | Agent Code: | |
| Type: | Real | | |
| Tax Area: | 1 - OL-140-F | Land Use Code | 11 |
| Open Space: | N | DFL | N |
| Historic Property: | N | Remodel Property: | N |
| Multi-Family Redevelopment: | N | | |
| Township: | 7 | Section: | 20 |
| Range: | 36 |
Location |
| Address: | 236 STANTON ST WA 99362 | Mapsco: | |
| Neighborhood: | G Superior SFR | Map ID: | |
| Neighborhood CD: | 514211 |
Owner |
| Name: | RANDALL L & JULIA E LONG TRUST | Owner ID: | 73326 |
| Mailing Address: | RANDALL L & JULIA E LONG TRUSTEES 236 STANTON ST WALLA WALLA, WA 99362 | % Ownership: | 100.0000000000% |
| | | Exemptions: | |
Taxes and Assessment Details
Values
| (+) Improvement Homesite Value: | + | $0 | |
| (+) Improvement Non-Homesite Value: | + | $466,450 | |
| (+) Land Homesite Value: | + | $0 | |
| (+) Land Non-Homesite Value: | + | $65,250 | |
| (+) Curr Use (HS): | + | $0 | $0 |
| (+) Curr Use (NHS): | + | $0 | $0 |
| | | -------------------------- | |
| (=) Market Value: | = | $531,700 | |
| (–) Productivity Loss: | – | $0 | |
| | | -------------------------- | |
| (=) Subtotal: | = | $531,700 | |
| (+) Senior Appraised Value: | + | $0 | |
| (+) Non-Senior Appraised Value: | + | $531,700 | |
| | | -------------------------- | |
| (=) Total Appraised Value: | = | $531,700 | |
| (–) Senior Exemption Loss: | – | $0 | |
| (–) Exemption Loss: | – | $0 | |
| | | -------------------------- | |
| (=) Taxable Value: | = | $531,700 | |
Taxing Jurisdiction
| Owner: | RANDALL L & JULIA E LONG TRUST | | |
| % Ownership: | 100.0000000000% | | |
| Total Value: | $531,700 | | |
| Tax Area: | 1 - OL-140-F |
| CERFD | CURRENT EXPENSE REFUND 010 | 0.0000000000 | $531,700 | $531,700 | $0.00 | | |
| CURREXP | CURRENT EXPENSE 010 | 1.0175366760 | $531,700 | $531,700 | $541.02 | | |
| HUMNSERV | HUMAN SERVICES 119 | 0.0250000000 | $531,700 | $531,700 | $13.29 | | |
| SLDREL | SOLDIERS RELIEF 121 | 0.0155990005 | $531,700 | $531,700 | $8.29 | | |
| EMERGSER | EMS 147 | 0.3792580840 | $531,700 | $531,700 | $201.65 | | |
| EMSRFD | EMS REFUND 147 | 0.0000000000 | $531,700 | $531,700 | $0.00 | | |
| PORTRFD | PORT REFUND 640 | 0.0000000000 | $531,700 | $531,700 | $0.00 | | |
| PORTWWGEN | PORT OF WW 640 | 0.2460186015 | $531,700 | $531,700 | $130.81 | | |
| SD140BOND | SD #140 BOND 764 | 0.8342371393 | $531,700 | $531,700 | $443.56 | | |
| SD140GEN | SD #140 GENERAL 760 | 2.0646500647 | $531,700 | $531,700 | $1,097.77 | | |
| ST2 | STATE SCHOOL PART 2 600 | 0.8131451643 | $531,700 | $531,700 | $432.35 | | |
| STATESCHL | STATE SCHOOL 600 | 1.5158548041 | $531,700 | $531,700 | $805.98 | | |
| STREFUND | STATE REFUND LEVY 603 | 0.0000000000 | $531,700 | $531,700 | $0.00 | | |
| CWWBOND | C OF WW BOND 643 | 0.2760494372 | $531,700 | $531,700 | $146.78 | | |
| CWWGEN | CITY OF WW 631 | 1.6100204973 | $531,700 | $531,700 | $856.05 | | |
| CWWRFD | CITY OF WALLA WALLA REFUND 631 | 0.0000000000 | $531,700 | $531,700 | $0.00 | | |
| | Total Tax Rate: | 8.7973694689 | | | | | |
| | | | | Taxes w/Current Exemptions: | $4,677.55 | | |
| | | | | Taxes w/o Exemptions: | $4,677.55 | | |
Improvement / Building
| Improvement #1: | RESIDENTIAL | State Code: | 11 | 1883.0 sqft | Value: | $466,450 |
| Exterior Wall: | SIDING | Heating/Cooling: | WARM & COOLED AIR | | Number of Bathrooms: | 2 | Number of Bedrooms: | 2 | | Plumbing: | 10 | Roof Covering: | COMP SHINGLE |
|
| | Type | Description | Class CD | Sub Class CD | Year Built | Area |
| | MA | Main Area | 1 | 45 | 1920 | 1883.0 |
| | SI1 | SITE IMPROVEMENT | 1 | 45 | 1920 | 2.0 |
| | BASE | BASEMENT | 1 | 45 | 1920 | 1883.0 |
| | BMF | BASEMENT - MIN FINISH | 1 | 45 | 1920 | 883.0 |
| | DTG | Detached Garage | 1 | 45 | 1920 | 216.0 |
| | RPS | PORCH W/STEPS,ROOF | 1 | 45 | 1920 | 55.0 |
| | S1F | Single One Story Fireplace | 1 | 45 | 1920 | 1.0 |
| | CPC | COVERED CARPORT/PATIO | 1 | 45 | 1920 | 170.0 |
| | CPC | COVERED CARPORT/PATIO | 1 | 45 | 1920 | 321.0 |
Sketch
Property Image
Land
| 1 | RES 1 | Converted: Residential | 0.2066 | 9000.00 | 0.00 | 0.00 | 1.00 | $65,250 | $0 |
Roll Value History
| 2026 | N/A | N/A | N/A | N/A | N/A |
| 2025 | $518,730 | $99,000 | $0 | $617,730 | $617,730 |
| 2024 | $494,030 | $99,000 | $0 | $593,030 | $593,030 |
| 2023 | $466,450 | $65,250 | $0 | $531,700 | $531,700 |
| 2022 | $466,450 | $65,250 | $0 | $531,700 | $531,700 |
| 2021 | $333,180 | $65,250 | $0 | $398,430 | $398,430 |
| 2020 | $266,540 | $65,250 | $0 | $331,790 | $331,790 |
| 2019 | $266,540 | $65,250 | $0 | $331,790 | $331,790 |
| 2018 | $253,850 | $65,250 | $0 | $319,100 | $319,100 |
| 2017 | $226,040 | $40,500 | $0 | $266,540 | $266,540 |
| 2016 | $226,040 | $40,500 | $0 | $266,540 | $266,540 |
| 2015 | $188,370 | $40,500 | $0 | $228,870 | $228,870 |
| 2014 | $209,300 | $40,500 | $0 | $249,800 | $249,800 |
| 2013 | $209,300 | $40,500 | $0 | $249,800 | $249,800 |
| 2012 | $213,800 | $40,500 | $0 | $0 | $0 |
| 2011 | $190,700 | $40,500 | $0 | $0 | $0 |
| 2010 | $169,700 | $40,500 | $0 | $0 | $0 |
| 2009 | $193,100 | $40,500 | $0 | $0 | $0 |
| 2008 | $193,100 | $40,500 | $0 | $0 | $0 |
| 2007 | $193,100 | $40,500 | $0 | $0 | $0 |
Deed and Sales History
| 1 | 03/16/2023 | QCD | QUIT CLAIM DEED | LONG JULIA E & RANDALL L | RANDALL L & JULIA E LONG TRUST | | | $0.00 | 145523 | 2023-01353 |
| 2 | 11/23/2022 | SURVEY | SURVEY | | | | | | 0 | 2022-09322 |
| 3 | 03/25/2022 | SWD | STATUTORY WARRANTY DEED | COLLINS LAURALEE KERWIN | LONG JULIA E & RANDALL L | | | $599,000.00 | 143625 | 2022-02510 |
| 4 | 07/17/2018 | QCD | QUIT CLAIM DEED | COLLINS ROBERT | COLLINS LAURALEE KERWIN | | | $0.00 | 135136 | 2018-05800 |
| 5 | 01/17/2013 | WARRANTY D | WARRANTY DEED | BATES, VICKI L | COLLINS, ROBERT | | | $200,000.00 | 123346 | 2013-00519 |
| 6 | 11/13/1989 | WARRANTY D | WARRANTY DEED | | | | | $59,900.00 | 0 | 1798-907609 |
Payout Agreement
| No payout information available.. |