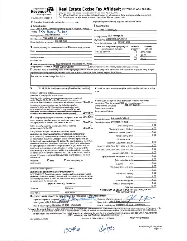
Property
Account |
| Property ID: | 3481 | Abbreviated Legal Description: | BLALOCK ORCHARDS LESS S 10' LOT 10 BLK 5; LESS S 10' LOT 12 BLK 5;TAX 2 LOT 11 BLK 5 |
| Parcel Number: | 350723520510 | Agent Code: | |
| Type: | Real | | |
| Tax Area: | 311 - 250-4 | Land Use Code | 12 |
| Open Space: | N | DFL | N |
| Historic Property: | N | Remodel Property: | N |
| Multi-Family Redevelopment: | N | | |
| Township: | 7 | Section: | 23 |
| Range: | 35 |
Location |
| Address: | 2520 HERITAGE RD WA 99324 | Mapsco: | |
| Neighborhood: | A Multi Res Rural/City Inf | Map ID: | |
| Neighborhood CD: | 313082 |
Owner |
| Name: | ANGELA R KEY & JOHN THOMAS FOSS | Owner ID: | 73725 |
| Mailing Address: | 2606 HERITAGE RD WALLA WALLA, WA 99362 | % Ownership: | 100.0000000000% |
| | | Exemptions: | |
Taxes and Assessment Details
Values
| (+) Improvement Homesite Value: | + | $0 | |
| (+) Improvement Non-Homesite Value: | + | $112,130 | |
| (+) Land Homesite Value: | + | $0 | |
| (+) Land Non-Homesite Value: | + | $160,110 | |
| (+) Curr Use (HS): | + | $0 | $0 |
| (+) Curr Use (NHS): | + | $0 | $0 |
| | | -------------------------- | |
| (=) Market Value: | = | $272,240 | |
| (–) Productivity Loss: | – | $0 | |
| | | -------------------------- | |
| (=) Subtotal: | = | $272,240 | |
| (+) Senior Appraised Value: | + | $0 | |
| (+) Non-Senior Appraised Value: | + | $272,240 | |
| | | -------------------------- | |
| (=) Total Appraised Value: | = | $272,240 | |
| (–) Senior Exemption Loss: | – | $0 | |
| (–) Exemption Loss: | – | $0 | |
| | | -------------------------- | |
| (=) Taxable Value: | = | $272,240 | |
Taxing Jurisdiction
| Owner: | ANGELA R KEY & JOHN THOMAS FOSS | | |
| % Ownership: | 100.0000000000% | | |
| Total Value: | $272,240 | | |
| Tax Area: | 311 - 250-4 |
| CERFD | CURRENT EXPENSE REFUND 010 | 0.0000000000 | $272,240 | $272,240 | $0.00 | | |
| CURREXP | CURRENT EXPENSE 010 | 1.0175366760 | $272,240 | $272,240 | $277.01 | | |
| HUMNSERV | HUMAN SERVICES 119 | 0.0250000000 | $272,240 | $272,240 | $6.81 | | |
| SLDREL | SOLDIERS RELIEF 121 | 0.0155990005 | $272,240 | $272,240 | $4.25 | | |
| EMERGSER | EMS 147 | 0.3792580840 | $272,240 | $272,240 | $103.25 | | |
| EMSRFD | EMS REFUND 147 | 0.0000000000 | $272,240 | $272,240 | $0.00 | | |
| FD4EXP | FD #4 EXPENSE 686 | 0.8836993059 | $272,240 | $272,240 | $240.58 | | |
| RLBRFD | RURAL LIBRARY REFUND 623 | 0.0000000000 | $272,240 | $272,240 | $0.00 | | |
| RURALLIB | RURAL LIBRARY 623 | 0.3710609029 | $272,240 | $272,240 | $101.02 | | |
| PORTRFD | PORT REFUND 640 | 0.0000000000 | $272,240 | $272,240 | $0.00 | | |
| PORTWWGEN | PORT OF WW 640 | 0.2460186015 | $272,240 | $272,240 | $66.98 | | |
| SD250BOND | SD #250 BOND 773 | 1.4560608159 | $272,240 | $272,240 | $396.40 | | |
| SD250GEN | SD #250 GENERAL 770 | 2.3880724087 | $272,240 | $272,240 | $650.13 | | |
| ST2 | STATE SCHOOL PART 2 600 | 0.8131451643 | $272,240 | $272,240 | $221.37 | | |
| STATESCHL | STATE SCHOOL 600 | 1.5158548041 | $272,240 | $272,240 | $412.68 | | |
| STREFUND | STATE REFUND LEVY 603 | 0.0000000000 | $272,240 | $272,240 | $0.00 | | |
| COROAD | COUNTY ROAD 115 | 1.6549953990 | $272,240 | $272,240 | $450.56 | | |
| CRPRD | COUNTY ROAD REFUND 115 | 0.0000000000 | $272,240 | $272,240 | $0.00 | | |
| | Total Tax Rate: | 10.7663011628 | | | | | |
| | | | | Taxes w/Current Exemptions: | $2,931.04 | | |
| | | | | Taxes w/o Exemptions: | $2,931.04 | | |
Improvement / Building
| Improvement #1: | RESIDENTIAL | State Code: | 12 | 1561.0 sqft | Value: | $2,400 |
| Exterior Wall: | PLYWOOD | Heating/Cooling: | STOVE-NO HEAT | | Number of Bathrooms: | 1 | Number of Bedrooms: | 3 | | Plumbing: | 6 | Roof Covering: | COMP SHINGLE |
|
| | Type | Description | Class CD | Sub Class CD | Year Built | Area |
| | MA | Main Area | 4 | 10 | 1900 | 1561.0 |
| | BNV | BUILDING NO VALUE | 4 | 10 | 0 | 1.0 |
| | UPFL | Upper Floor (included in main area) | 4 | 10 | 1900 | 643.0 |
| | BASE | BASEMENT | 4 | 10 | 1900 | 625.0 |
| | RPS | PORCH W/STEPS,ROOF | 4 | 10 | 1900 | 237.0 |
| | RPO | OPEN PORCH W/ROOF | 4 | 10 | 1900 | 36.0 |
| | DTG | Detached Garage | 1 | 10 | 1900 | 216.0 |
| Improvement #2: | RESIDENTIAL | State Code: | 12 | 1262.0 sqft | Value: | $28,070 |
| Exterior Wall: | PLYWOOD | Heating/Cooling: | BASEBOARD ELECTRIC | | Number of Bathrooms: | 1 | Number of Bedrooms: | 1 | | Plumbing: | 6 | Roof Covering: | COMP SHINGLE |
|
| | Type | Description | Class CD | Sub Class CD | Year Built | Area |
| | MOBHOME | MANUFACTURD HOMES | 1 | 10 | 1958 | 1262.0 |
| | ATG | Attached Garage | 1 | 10 | 1958 | 378.0 |
| Improvement #3: | RESIDENTIAL | State Code: | 12 | 1179.0 sqft | Value: | $81,660 |
| Exterior Wall: | SIDING | Heating/Cooling: | BASEBOARD ELECTRIC | | Number of Bathrooms: | 1 | Number of Bedrooms: | 2 | | Plumbing: | 6 | Roof Covering: | COMP SHINGLE |
|
| | Type | Description | Class CD | Sub Class CD | Year Built | Area |
| | MA | Main Area | 1 | 30 | 1958 | 1179.0 |
| | SI1 | SITE IMPROVEMENT | 1 | 30 | 0 | 2.0 |
| | ATG | Attached Garage | 1 | 30 | 1958 | 506.0 |
Sketch
Property Image
Land
| 1 | RES 1 | Converted: Residential | 7.0200 | 305791.20 | 0.00 | 0.00 | 1.00 | $160,110 | $0 |
Roll Value History
| 2026 | N/A | N/A | N/A | N/A | N/A |
| 2025 | $112,600 | $160,100 | $0 | $272,700 | $272,700 |
| 2024 | $112,600 | $160,100 | $0 | $272,700 | $272,700 |
| 2023 | $112,130 | $160,110 | $0 | $272,240 | $272,240 |
| 2022 | $112,130 | $160,110 | $0 | $272,240 | $272,240 |
| 2021 | $112,130 | $123,200 | $0 | $235,330 | $235,330 |
| 2020 | $106,790 | $123,200 | $0 | $229,990 | $229,990 |
| 2019 | $106,790 | $123,200 | $0 | $229,990 | $229,990 |
| 2018 | $106,790 | $123,200 | $0 | $229,990 | $229,990 |
| 2017 | $101,710 | $123,200 | $0 | $224,910 | $224,910 |
| 2016 | $101,710 | $123,200 | $0 | $224,910 | $224,910 |
| 2015 | $100,300 | $123,200 | $0 | $223,500 | $223,500 |
| 2014 | $100,300 | $123,200 | $0 | $223,500 | $223,500 |
| 2013 | $100,300 | $123,200 | $0 | $223,500 | $223,500 |
| 2012 | $100,300 | $123,200 | $0 | $0 | $0 |
| 2011 | $100,300 | $123,200 | $0 | $0 | $0 |
| 2010 | $80,900 | $123,200 | $0 | $0 | $0 |
| 2009 | $135,200 | $91,600 | $0 | $0 | $0 |
| 2008 | $84,200 | $91,600 | $0 | $0 | $0 |
| 2007 | $84,200 | $91,600 | $0 | $0 | $0 |
Deed and Sales History
| 1 | 12/11/2025 | ADMD | ADMINISTRATOR'S DEED | ANGELA R KEY & JOHN THOMAS FOSS | FOSS JOHN T | | | | 0 | 2025-07610 |
| 2 | 07/31/2023 | DEATH CERT | DEATH CERTIFICATE | FOSS LEWIS R LIFE ESTATE | ANGELA R KEY & JOHN THOMAS FOSS | | | | 0 | 2023-04357 |
| 3 | 09/17/2019 | QCD | QUIT CLAIM DEED | FOSS LEWIS R | FOSS LEWIS R LIFE ESTATE | | | $0.00 | 137708 | 2019-07297 |
| 4 | 07/25/1971 | WARRANTY D | WARRANTY DEED | | | | | $40,000.00 | 0 | 7578-00949 |
Payout Agreement
| No payout information available.. |