Property
Account |
| Property ID: | 34803 | Abbreviated Legal Description: | DIXIE LOTS 3 THRU 10 BLK 41 |
| Parcel Number: | 370826514103 | Agent Code: | |
| Type: | Real | | |
| Tax Area: | 310 - 101-8 | Land Use Code | 11 |
| Open Space: | N | DFL | N |
| Historic Property: | N | Remodel Property: | N |
| Multi-Family Redevelopment: | N | | |
| Township: | 8 | Section: | 26 |
| Range: | 37 |
Location |
| Address: | 173 THIRD ST WA 99329 | Mapsco: | |
| Neighborhood: | Cycle 4 Dixie (SF) | Map ID: | |
| Neighborhood CD: | 413511 |
Owner |
| Name: | BLAKESLEE LARRY | Owner ID: | 55070 |
| Mailing Address: | PO BOX 2023 DIXIE, WA 99329 | % Ownership: | 100.0000000000% |
| | | Exemptions: | |
Taxes and Assessment Details
Values
| (+) Improvement Homesite Value: | + | $0 | |
| (+) Improvement Non-Homesite Value: | + | $113,290 | |
| (+) Land Homesite Value: | + | $0 | |
| (+) Land Non-Homesite Value: | + | $61,600 | |
| (+) Curr Use (HS): | + | $0 | $0 |
| (+) Curr Use (NHS): | + | $0 | $0 |
| | | -------------------------- | |
| (=) Market Value: | = | $174,890 | |
| (–) Productivity Loss: | – | $0 | |
| | | -------------------------- | |
| (=) Subtotal: | = | $174,890 | |
| (+) Senior Appraised Value: | + | $0 | |
| (+) Non-Senior Appraised Value: | + | $174,890 | |
| | | -------------------------- | |
| (=) Total Appraised Value: | = | $174,890 | |
| (–) Senior Exemption Loss: | – | $0 | |
| (–) Exemption Loss: | – | $0 | |
| | | -------------------------- | |
| (=) Taxable Value: | = | $174,890 | |
Taxing Jurisdiction
| Owner: | BLAKESLEE LARRY | | |
| % Ownership: | 100.0000000000% | | |
| Total Value: | $174,890 | | |
| Tax Area: | 310 - 101-8 |
| CERFD | CURRENT EXPENSE REFUND 010 | 0.0000000000 | $174,890 | $174,890 | $0.00 | | |
| CURREXP | CURRENT EXPENSE 010 | 1.0175366760 | $174,890 | $174,890 | $177.96 | | |
| HUMNSERV | HUMAN SERVICES 119 | 0.0250000000 | $174,890 | $174,890 | $4.37 | | |
| SLDREL | SOLDIERS RELIEF 121 | 0.0155990005 | $174,890 | $174,890 | $2.73 | | |
| EMERGSER | EMS 147 | 0.3792580840 | $174,890 | $174,890 | $66.33 | | |
| EMSRFD | EMS REFUND 147 | 0.0000000000 | $174,890 | $174,890 | $0.00 | | |
| FD8EXP | FD #8 EXPENSE 697 | 0.6647992540 | $174,890 | $174,890 | $116.27 | | |
| RLBRFD | RURAL LIBRARY REFUND 623 | 0.0000000000 | $174,890 | $174,890 | $0.00 | | |
| RURALLIB | RURAL LIBRARY 623 | 0.3710609029 | $174,890 | $174,890 | $64.89 | | |
| PORTRFD | PORT REFUND 640 | 0.0000000000 | $174,890 | $174,890 | $0.00 | | |
| PORTWWGEN | PORT OF WW 640 | 0.2460186015 | $174,890 | $174,890 | $43.03 | | |
| SD101CAP | SD #101 CAP 752 | 0.5894423472 | $174,890 | $174,890 | $103.09 | | |
| SD101GEN | SD #101 GENERAL 750 | 0.7455117868 | $174,890 | $174,890 | $130.38 | | |
| ST2 | STATE SCHOOL PART 2 600 | 0.8131451643 | $174,890 | $174,890 | $142.21 | | |
| STATESCHL | STATE SCHOOL 600 | 1.5158548041 | $174,890 | $174,890 | $265.11 | | |
| STREFUND | STATE REFUND LEVY 603 | 0.0000000000 | $174,890 | $174,890 | $0.00 | | |
| COROAD | COUNTY ROAD 115 | 1.6549953990 | $174,890 | $174,890 | $289.44 | | |
| CRPRD | COUNTY ROAD REFUND 115 | 0.0000000000 | $174,890 | $174,890 | $0.00 | | |
| | Total Tax Rate: | 8.0382220203 | | | | | |
| | | | | Taxes w/Current Exemptions: | $1,405.81 | | |
| | | | | Taxes w/o Exemptions: | $1,405.81 | | |
Improvement / Building
| Improvement #1: | RESIDENTIAL | State Code: | 11 | 832.0 sqft | Value: | $113,290 |
| Exterior Wall: | SIDING | Heating/Cooling: | FLOOR FURNACE | | Number of Bathrooms: | 1 | Number of Bedrooms: | 2 | | Plumbing: | 6 | Roof Covering: | COMP SHINGLE |
|
| | Type | Description | Class CD | Sub Class CD | Year Built | Area |
| | MA | Main Area | 1 | 20 | 1961 | 832.0 |
| | SI1 | SITE IMPROVEMENT | 1 | 20 | 1961 | 1.0 |
| | BASE | BASEMENT | 1 | 20 | 1961 | 832.0 |
| | CPC | COVERED CARPORT/PATIO | 1 | 20 | 1961 | 384.0 |
| | SWP | Solid Wall Porch | 1 | 20 | 1961 | 128.0 |
Sketch
Property Image
Land
| 1 | RES 1 | Converted: Residential | 0.9500 | 40000.00 | 0.00 | 0.00 | 1.00 | $61,600 | $0 |
Roll Value History
| 2026 | N/A | N/A | N/A | N/A | N/A |
| 2025 | $113,290 | $61,600 | $0 | $174,890 | $174,890 |
| 2024 | $113,290 | $61,600 | $0 | $174,890 | $174,890 |
| 2023 | $113,290 | $61,600 | $0 | $174,890 | $174,890 |
| 2022 | $118,650 | $37,100 | $0 | $155,750 | $155,750 |
| 2021 | $113,000 | $37,100 | $0 | $150,100 | $150,100 |
| 2020 | $94,170 | $37,100 | $0 | $131,270 | $131,270 |
| 2019 | $94,170 | $37,100 | $0 | $131,270 | $131,270 |
| 2018 | $94,170 | $37,100 | $0 | $131,270 | $131,270 |
| 2017 | $94,170 | $37,100 | $0 | $131,270 | $131,270 |
| 2016 | $87,920 | $37,100 | $0 | $125,020 | $125,020 |
| 2015 | $73,270 | $37,100 | $0 | $110,370 | $110,370 |
| 2014 | $43,100 | $37,100 | $0 | $80,200 | $80,200 |
| 2013 | $43,100 | $37,100 | $0 | $80,200 | $80,200 |
| 2012 | $43,100 | $37,100 | $0 | $0 | $0 |
| 2011 | $42,900 | $37,100 | $0 | $0 | $0 |
| 2010 | $42,900 | $37,100 | $0 | $0 | $0 |
| 2009 | $59,100 | $20,900 | $0 | $0 | $0 |
| 2008 | $40,600 | $20,900 | $0 | $0 | $0 |
| 2007 | $40,600 | $20,900 | $0 | $0 | $0 |
Deed and Sales History
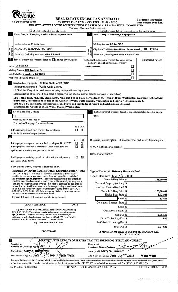
| 1 | 06/16/2014 | SWD | STATUTORY WARRANTY DEED | HUMPHREYS STACY A | BLAKESLEE LARRY | | | $135,000.00 | 126074 | 2014-04129 |
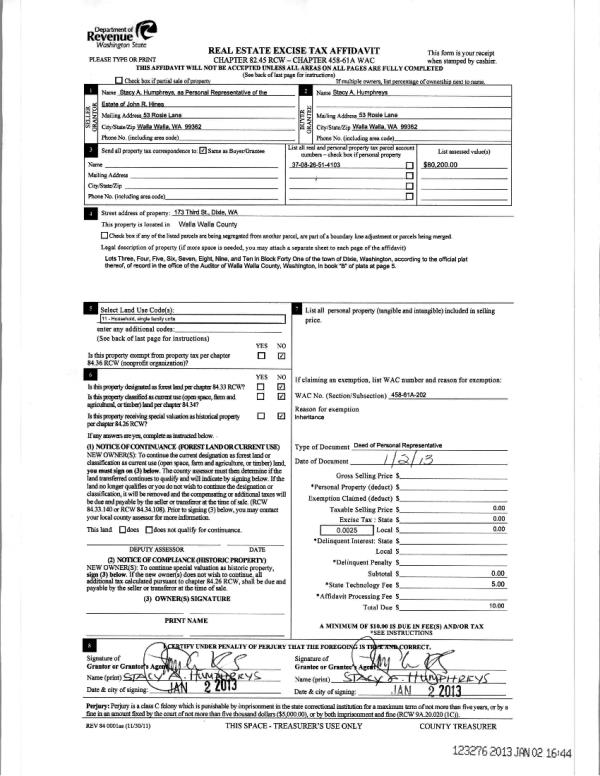
| 2 | 01/02/2013 | WARRANTY D | WARRANTY DEED | HINES, JOHN R ESTATE OF | HUMPHREYS, STACY A | | | $0.00 | 123276 | 2013-00054 |
| 3 | 04/08/2008 | QCD | QUIT CLAIM DEED | HUMPHREYS, STACY A | HINES, JOHN R | | | | 114808 | 2008-03393 |
| 4 | 04/26/2007 | QCD | QUIT CLAIM DEED | HINES, JOHN RICHARD | HINES, JOHN RICHARD LIFE ESTAT | | | | 112699 | 2007-04653 |
| 5 | 07/11/1984 | QCD | QUIT CLAIM DEED | | | | | $0.00 | 0 | 1448-404864 |
Payout Agreement
| No payout information available.. |