Property
Account |
| Property ID: | 34802 | Abbreviated Legal Description: | REEDS LOT 9 BLK 12 |
| Parcel Number: | 360721711209 | Agent Code: | |
| Type: | Real | | |
| Tax Area: | 1 - OL-140-F | Land Use Code | 11 |
| Open Space: | N | DFL | N |
| Historic Property: | N | Remodel Property: | N |
| Multi-Family Redevelopment: | N | | |
| Township: | 7 | Section: | 21 |
| Range: | 36 |
Location |
| Address: | 615 WHITMAN ST WA 99362 | Mapsco: | |
| Neighborhood: | G-SFR | Map ID: | |
| Neighborhood CD: | 514011 |
Owner |
| Name: | ZIELINSKI ALESSANDRA C | Owner ID: | 71152 |
| Mailing Address: | GUSTAVO A LOPEZ 615 WHITMAN ST WALLA WALLA, WA 99362 | % Ownership: | 100.0000000000% |
| | | Exemptions: | |
Taxes and Assessment Details
Property Tax Information as of
02/21/2026
Click on "Statement Details" to expand or collapse a tax statement.
* Please enter a valid date ** Please enter a valid date *
Statement Details |
| | TOTAL: | $0.00 | $0.00 | $0.00 | $0.00 | $0.00 | $0.00 |
|
| | $0.00 | $0.00 | $0.00 | $0.00 | $0.00 | $0.00 |
Values
| (+) Improvement Homesite Value: | + | $0 | |
| (+) Improvement Non-Homesite Value: | + | $330,060 | |
| (+) Land Homesite Value: | + | $0 | |
| (+) Land Non-Homesite Value: | + | $50,030 | |
| (+) Curr Use (HS): | + | $0 | $0 |
| (+) Curr Use (NHS): | + | $0 | $0 |
| | | -------------------------- | |
| (=) Market Value: | = | $380,090 | |
| (–) Productivity Loss: | – | $0 | |
| | | -------------------------- | |
| (=) Subtotal: | = | $380,090 | |
| (+) Senior Appraised Value: | + | $0 | |
| (+) Non-Senior Appraised Value: | + | $380,090 | |
| | | -------------------------- | |
| (=) Total Appraised Value: | = | $380,090 | |
| (–) Senior Exemption Loss: | – | $0 | |
| (–) Exemption Loss: | – | $0 | |
| | | -------------------------- | |
| (=) Taxable Value: | = | $380,090 | |
Taxing Jurisdiction
| Owner: | ZIELINSKI ALESSANDRA C | | |
| % Ownership: | 100.0000000000% | | |
| Total Value: | $380,090 | | |
| Tax Area: | 1 - OL-140-F |
| CERFD | CURRENT EXPENSE REFUND 010 | 0.0000000000 | $380,090 | $380,090 | $0.00 | | |
| CURREXP | CURRENT EXPENSE 010 | 1.0175366760 | $380,090 | $380,090 | $386.76 | | |
| HUMNSERV | HUMAN SERVICES 119 | 0.0250000000 | $380,090 | $380,090 | $9.50 | | |
| SLDREL | SOLDIERS RELIEF 121 | 0.0155990005 | $380,090 | $380,090 | $5.93 | | |
| EMERGSER | EMS 147 | 0.3792580840 | $380,090 | $380,090 | $144.15 | | |
| EMSRFD | EMS REFUND 147 | 0.0000000000 | $380,090 | $380,090 | $0.00 | | |
| PORTRFD | PORT REFUND 640 | 0.0000000000 | $380,090 | $380,090 | $0.00 | | |
| PORTWWGEN | PORT OF WW 640 | 0.2460186015 | $380,090 | $380,090 | $93.51 | | |
| SD140BOND | SD #140 BOND 764 | 0.8342371393 | $380,090 | $380,090 | $317.09 | | |
| SD140GEN | SD #140 GENERAL 760 | 2.0646500647 | $380,090 | $380,090 | $784.75 | | |
| ST2 | STATE SCHOOL PART 2 600 | 0.8131451643 | $380,090 | $380,090 | $309.07 | | |
| STATESCHL | STATE SCHOOL 600 | 1.5158548041 | $380,090 | $380,090 | $576.16 | | |
| STREFUND | STATE REFUND LEVY 603 | 0.0000000000 | $380,090 | $380,090 | $0.00 | | |
| CWWBOND | C OF WW BOND 643 | 0.2760494372 | $380,090 | $380,090 | $104.92 | | |
| CWWGEN | CITY OF WW 631 | 1.6100204973 | $380,090 | $380,090 | $611.95 | | |
| CWWRFD | CITY OF WALLA WALLA REFUND 631 | 0.0000000000 | $380,090 | $380,090 | $0.00 | | |
| | Total Tax Rate: | 8.7973694689 | | | | | |
| | | | | Taxes w/Current Exemptions: | $3,343.79 | | |
| | | | | Taxes w/o Exemptions: | $3,343.79 | | |
Improvement / Building
| Improvement #1: | RESIDENTIAL | State Code: | 11 | 1584.0 sqft | Value: | $330,060 |
| Exterior Wall: | SIDING | Heating/Cooling: | WARM & COOLED AIR | | Number of Bathrooms: | 2 | Number of Bedrooms: | 3 | | Plumbing: | 10 | Roof Covering: | COMP SHINGLE |
|
| | Type | Description | Class CD | Sub Class CD | Year Built | Area |
| | MA | Main Area | 4 | 30 | 1911 | 1584.0 |
| | UPFL | Upper Floor (included in main area) | 4 | 30 | 1911 | 100.0 |
| | SI1 | SITE IMPROVEMENT | 4 | 30 | 1911 | 1.5 |
| | BASE | BASEMENT | 4 | 30 | 1911 | 572.0 |
| | SWP | Solid Wall Porch | 4 | 30 | 1911 | 40.0 |
| | WOD | Wood Deck | 4 | 30 | 1911 | 292.0 |
| | DTG | Detached Garage | 4 | 30 | 1911 | 216.0 |
Sketch
Property Image
Land
| 1 | RES 1 | Converted: Residential | 0.1584 | 6900.00 | 0.00 | 0.00 | 1.00 | $50,030 | $0 |
Roll Value History
| 2026 | N/A | N/A | N/A | N/A | N/A |
| 2025 | $309,690 | $75,900 | $0 | $385,590 | $385,590 |
| 2024 | $309,690 | $75,900 | $0 | $385,590 | $385,590 |
| 2023 | $330,060 | $50,030 | $0 | $380,090 | $380,090 |
| 2022 | $300,060 | $50,030 | $0 | $350,090 | $350,090 |
| 2021 | $240,050 | $50,030 | $0 | $290,080 | $290,080 |
| 2020 | $160,030 | $50,030 | $0 | $210,060 | $210,060 |
| 2019 | $160,030 | $50,030 | $0 | $210,060 | $210,060 |
| 2018 | $160,030 | $50,030 | $0 | $210,060 | $210,060 |
| 2017 | $178,960 | $31,100 | $0 | $210,060 | $210,060 |
| 2016 | $178,960 | $31,100 | $0 | $210,060 | $210,060 |
| 2015 | $162,690 | $31,100 | $0 | $193,790 | $193,790 |
| 2014 | $147,900 | $31,100 | $0 | $179,000 | $179,000 |
| 2013 | $147,900 | $31,100 | $0 | $179,000 | $179,000 |
| 2012 | $147,900 | $31,100 | $0 | $0 | $0 |
| 2011 | $147,900 | $31,100 | $0 | $0 | $0 |
| 2010 | $112,100 | $31,100 | $0 | $0 | $0 |
| 2009 | $128,000 | $31,100 | $0 | $0 | $0 |
| 2008 | $131,500 | $27,600 | $0 | $0 | $0 |
| 2007 | $131,500 | $27,600 | $0 | $0 | $0 |
Deed and Sales History
| 1 | 02/23/2022 | SWD | STATUTORY WARRANTY DEED | WOOD NICK M | ZIELINSKI ALESSANDRA C | | | $392,500.00 | 143444 | 2022-01612 |
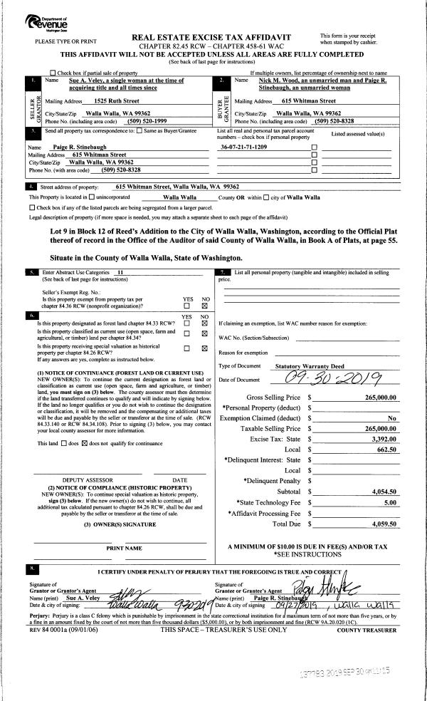
| 2 | 09/30/2019 | SWD | STATUTORY WARRANTY DEED | VELEY SUE A | WOOD NICK M | | | $265,000.00 | 137783 | 2019-07699 |
| 3 | 09/07/2016 | SWD | STATUTORY WARRANTY DEED | KNIGHT JESSE & RACHEL | VELEY SUE A | | | $205,000.00 | 130973 | 2016-07278 |
| 4 | 01/09/2013 | QCD | QUIT CLAIM DEED | KNIGHT, JESSE | KNIGHT, JESSE & RACHEL | | | $0.00 | 123308 | 2013-00280 |
| 5 | 11/20/2009 | WARRANTY D | WARRANTY DEED | MADDREY, CHARLES | KNIGHT, JESSE | | | $185,000.00 | 117707 | 2009-11419 |
| 6 | 01/15/2008 | WARRANTY D | WARRANTY DEED | ANDERSON, PYAR L | MADDREY, CHARLES | | | $163,500.00 | 114378 | 2008-00391 |
| 7 | 08/11/2005 | WARRANTY D | WARRANTY DEED | MORITZ, THOMAS W & CHRISTINE E | ANDERSON, PYAR L | | | $163,000.00 | 108202 | 2005-09916 |
| 8 | 06/28/1999 | WARRANTY D | WARRANTY DEED | | | | | $88,500.00 | 93045 | 2859-907586 |
Payout Agreement
| No payout information available.. |