Property
Account |
| Property ID: | 34784 | Abbreviated Legal Description: | BLALOCK ORCHARDS LOT 2 SHORT PLAT 6/46 2023-02132 (PORTION TAX 34 LOT 9 BLK 44) |
| Parcel Number: | 350735524417 | Agent Code: | |
| Type: | Real | | |
| Tax Area: | 75 - CP 250 | Land Use Code | 11 |
| Open Space: | N | DFL | N |
| Historic Property: | N | Remodel Property: | N |
| Multi-Family Redevelopment: | N | | |
| Township: | 7 | Section: | 35 |
| Range: | 35 |
Location |
| Address: | 530 SW 2ND ST WA 99324 | Mapsco: | |
| Neighborhood: | A SFR | Map ID: | |
| Neighborhood CD: | 113011 |
Owner |
| Name: | VALERIO VICTOR O | Owner ID: | 63642 |
| Mailing Address: | 530 SW 2ND ST COLLEGE PLACE, WA 99324 | % Ownership: | 100.0000000000% |
| | | Exemptions: | |
Taxes and Assessment Details
Values
| (+) Improvement Homesite Value: | + | $0 | |
| (+) Improvement Non-Homesite Value: | + | $174,580 | |
| (+) Land Homesite Value: | + | $0 | |
| (+) Land Non-Homesite Value: | + | $69,730 | |
| (+) Curr Use (HS): | + | $0 | $0 |
| (+) Curr Use (NHS): | + | $0 | $0 |
| | | -------------------------- | |
| (=) Market Value: | = | $244,310 | |
| (–) Productivity Loss: | – | $0 | |
| | | -------------------------- | |
| (=) Subtotal: | = | $244,310 | |
| (+) Senior Appraised Value: | + | $0 | |
| (+) Non-Senior Appraised Value: | + | $244,310 | |
| | | -------------------------- | |
| (=) Total Appraised Value: | = | $244,310 | |
| (–) Senior Exemption Loss: | – | $0 | |
| (–) Exemption Loss: | – | $0 | |
| | | -------------------------- | |
| (=) Taxable Value: | = | $244,310 | |
Taxing Jurisdiction
| Owner: | VALERIO VICTOR O | | |
| % Ownership: | 100.0000000000% | | |
| Total Value: | $244,310 | | |
| Tax Area: | 75 - CP 250 |
| CERFD | CURRENT EXPENSE REFUND 010 | 0.0000000000 | $244,310 | $244,310 | $0.00 | | |
| CURREXP | CURRENT EXPENSE 010 | 1.0175366760 | $244,310 | $244,310 | $248.59 | | |
| HUMNSERV | HUMAN SERVICES 119 | 0.0250000000 | $244,310 | $244,310 | $6.11 | | |
| SLDREL | SOLDIERS RELIEF 121 | 0.0155990005 | $244,310 | $244,310 | $3.81 | | |
| COLLPLBOND | C OF CP BOND 644 | 0.4374241808 | $244,310 | $244,310 | $106.87 | | |
| COLLPLGEN | CITY OF CP 632 | 1.4453819216 | $244,310 | $244,310 | $353.12 | | |
| EMERGSER | EMS 147 | 0.3792580840 | $244,310 | $244,310 | $92.66 | | |
| EMSRFD | EMS REFUND 147 | 0.0000000000 | $244,310 | $244,310 | $0.00 | | |
| RURALLIB | RURAL LIBRARY 623 | 0.3710609029 | $244,310 | $244,310 | $90.65 | | |
| PORTRFD | PORT REFUND 640 | 0.0000000000 | $244,310 | $244,310 | $0.00 | | |
| PORTWWGEN | PORT OF WW 640 | 0.2460186015 | $244,310 | $244,310 | $60.10 | | |
| SD250BOND | SD #250 BOND 773 | 1.4560608159 | $244,310 | $244,310 | $355.73 | | |
| SD250GEN | SD #250 GENERAL 770 | 2.3880724087 | $244,310 | $244,310 | $583.43 | | |
| ST2 | STATE SCHOOL PART 2 600 | 0.8131451643 | $244,310 | $244,310 | $198.66 | | |
| STATESCHL | STATE SCHOOL 600 | 1.5158548041 | $244,310 | $244,310 | $370.34 | | |
| STREFUND | STATE REFUND LEVY 603 | 0.0000000000 | $244,310 | $244,310 | $0.00 | | |
| | Total Tax Rate: | 10.1104125603 | | | | | |
| | | | | Taxes w/Current Exemptions: | $2,470.07 | | |
| | | | | Taxes w/o Exemptions: | $2,470.07 | | |
Improvement / Building
| Improvement #1: | RESIDENTIAL | State Code: | 11 | 1642.0 sqft | Value: | $174,580 |
| Exterior Wall: | SIDING | Heating/Cooling: | BASEBOARD ELECTRIC | | Number of Bathrooms: | 1 | Number of Bedrooms: | 3 | | Plumbing: | 6 | Roof Covering: | COMP SHINGLE |
|
| | Type | Description | Class CD | Sub Class CD | Year Built | Area |
| | MA | Main Area | 1 | 25 | 1940 | 1642.0 |
| | SI1 | SITE IMPROVEMENT | 1 | 25 | 1940 | 1.5 |
| | ATG | Attached Garage | 1 | 25 | 1940 | 480.0 |
| | RPO | OPEN PORCH W/ROOF | 1 | 25 | 1940 | 31.0 |
| | SWP | Solid Wall Porch | 1 | 25 | 1940 | 90.0 |
| | S1F | Single One Story Fireplace | 1 | 25 | 1940 | 1.0 |
| | CPCG | CARPORT/ GABLE ROOF | 1 | 25 | 1940 | 358.0 |
Sketch
Property Image
Land
| 1 | RES 1 | Converted: Residential | 0.2775 | 12086.10 | 0.00 | 0.00 | 1.00 | $69,730 | $0 |
Roll Value History
| 2026 | N/A | N/A | N/A | N/A | N/A |
| 2025 | $209,500 | $93,550 | $0 | $303,050 | $303,050 |
| 2024 | $174,580 | $62,490 | $0 | $237,070 | $237,070 |
| 2023 | $174,580 | $69,730 | $0 | $244,310 | $244,310 |
| 2022 | $158,710 | $69,730 | $0 | $228,440 | $228,440 |
| 2021 | $144,280 | $69,730 | $0 | $214,010 | $214,010 |
| 2020 | $72,140 | $69,730 | $0 | $141,870 | $141,870 |
| 2019 | $81,770 | $60,100 | $0 | $141,870 | $141,870 |
| 2018 | $68,150 | $60,100 | $0 | $128,250 | $128,250 |
| 2017 | $64,900 | $60,100 | $0 | $125,000 | $0 |
| 2016 | $64,900 | $60,100 | $0 | $125,000 | $0 |
| 2015 | $64,900 | $60,100 | $0 | $125,000 | $0 |
| 2014 | $64,900 | $60,100 | $0 | $125,000 | $200 |
| 2013 | $64,900 | $60,100 | $0 | $125,000 | $200 |
| 2012 | $64,900 | $60,100 | $0 | $0 | $0 |
| 2011 | $87,000 | $60,100 | $0 | $0 | $0 |
| 2010 | $73,600 | $60,100 | $0 | $0 | $0 |
| 2009 | $88,500 | $60,100 | $0 | $0 | $0 |
| 2008 | $60,400 | $38,300 | $0 | $0 | $0 |
| 2007 | $60,400 | $38,300 | $0 | $0 | $0 |
Deed and Sales History
| 1 | 06/20/2023 | WARRANTY D | WARRANTY DEED | VALERIO VICTOR O | COLLEGE PLACE CITY OF | | | $98,800.00 | 146017 | 2023-03411 |
|   | |
| 2 | 04/24/2023 | SHORT PLAT | SHORT PLAT | | | | | | 0 | 2023-02132 |
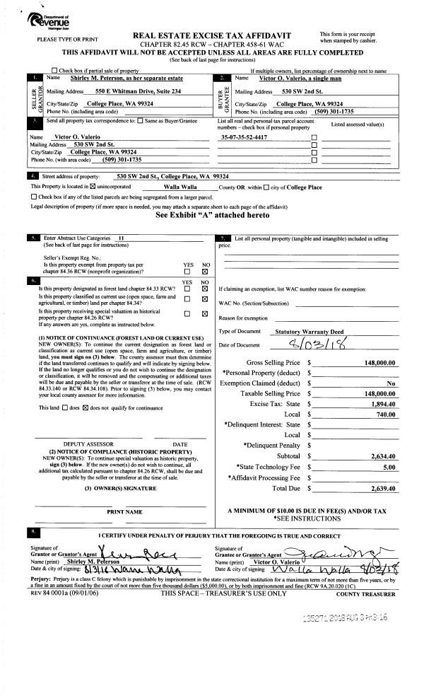
| 3 | 08/03/2018 | SWD | STATUTORY WARRANTY DEED | PETERSON SHIRLEY M | VALERIO VICTOR O | | | $148,000.00 | 135271 | 2018-06365 |
|   | |
| 4 | 02/14/2017 | QCD | QUIT CLAIM DEED | PETERSON SHARON RENE ET AL | PETERSON SHIRLEY M | | | | 131897 | 2017-01225 |
| 5 | 08/18/2015 | QCD | QUIT CLAIM DEED | PETERSON SHIRLEY M | PETERSON SHARON RENE ET AL | | | $0.00 | 128647 | 2015-07301 |
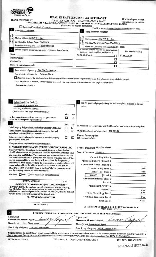
| 6 | 12/20/2012 | QCD | QUIT CLAIM DEED | PETERSON, DON C | PETERSON, SHIRLEY M | | | $0.00 | 123209 | 2012-11393 |
| 7 | 01/01/1954 | WARRANTY D | WARRANTY DEED | | | | | $0.00 | 0 | 2680-369670 |
Payout Agreement
| No payout information available.. |