Property
Account |
| Property ID: | 34771 | Abbreviated Legal Description: | BROWNS LOT 6 BLK 1 |
| Parcel Number: | 360721520106 | Agent Code: | |
| Type: | Real | | |
| Tax Area: | 1 - OL-140-F | Land Use Code | 11 |
| Open Space: | N | DFL | N |
| Historic Property: | N | Remodel Property: | N |
| Multi-Family Redevelopment: | N | | |
| Township: | 7 | Section: | 21 |
| Range: | 36 |
Location |
| Address: | 1027 UNIVERSITY ST WA 99362 | Mapsco: | |
| Neighborhood: | A-SFR | Map ID: | |
| Neighborhood CD: | 513011 |
Owner |
| Name: | ZARATE JOE A | Owner ID: | 73981 |
| Mailing Address: | MALORY R ELMENHURST 1027 UNIVERSITY ST WALLA WALLA, WA 99362 | % Ownership: | 100.0000000000% |
| | | Exemptions: | |
Taxes and Assessment Details
Values
| (+) Improvement Homesite Value: | + | $270,400 | |
| (+) Improvement Non-Homesite Value: | + | $0 | |
| (+) Land Homesite Value: | + | $31,250 | |
| (+) Land Non-Homesite Value: | + | $0 | |
| (+) Curr Use (HS): | + | $0 | $0 |
| (+) Curr Use (NHS): | + | $0 | $0 |
| | | -------------------------- | |
| (=) Market Value: | = | $301,650 | |
| (–) Productivity Loss: | – | $0 | |
| | | -------------------------- | |
| (=) Subtotal: | = | $301,650 | |
| (+) Senior Appraised Value: | + | $0 | |
| (+) Non-Senior Appraised Value: | + | $301,650 | |
| | | -------------------------- | |
| (=) Total Appraised Value: | = | $301,650 | |
| (–) Senior Exemption Loss: | – | $0 | |
| (–) Exemption Loss: | – | $0 | |
| | | -------------------------- | |
| (=) Taxable Value: | = | $301,650 | |
Taxing Jurisdiction
| Owner: | ZARATE JOE A | | |
| % Ownership: | 100.0000000000% | | |
| Total Value: | $301,650 | | |
| Tax Area: | 1 - OL-140-F |
| CERFD | CURRENT EXPENSE REFUND 010 | 0.0000000000 | $301,650 | $301,650 | $0.00 | | |
| CURREXP | CURRENT EXPENSE 010 | 1.0175366760 | $301,650 | $301,650 | $306.94 | | |
| HUMNSERV | HUMAN SERVICES 119 | 0.0250000000 | $301,650 | $301,650 | $7.54 | | |
| SLDREL | SOLDIERS RELIEF 121 | 0.0155990005 | $301,650 | $301,650 | $4.71 | | |
| EMERGSER | EMS 147 | 0.3792580840 | $301,650 | $301,650 | $114.40 | | |
| EMSRFD | EMS REFUND 147 | 0.0000000000 | $301,650 | $301,650 | $0.00 | | |
| PORTRFD | PORT REFUND 640 | 0.0000000000 | $301,650 | $301,650 | $0.00 | | |
| PORTWWGEN | PORT OF WW 640 | 0.2460186015 | $301,650 | $301,650 | $74.21 | | |
| SD140BOND | SD #140 BOND 764 | 0.8342371393 | $301,650 | $301,650 | $251.65 | | |
| SD140GEN | SD #140 GENERAL 760 | 2.0646500647 | $301,650 | $301,650 | $622.80 | | |
| ST2 | STATE SCHOOL PART 2 600 | 0.8131451643 | $301,650 | $301,650 | $245.29 | | |
| STATESCHL | STATE SCHOOL 600 | 1.5158548041 | $301,650 | $301,650 | $457.26 | | |
| STREFUND | STATE REFUND LEVY 603 | 0.0000000000 | $301,650 | $301,650 | $0.00 | | |
| CWWBOND | C OF WW BOND 643 | 0.2760494372 | $301,650 | $301,650 | $83.27 | | |
| CWWGEN | CITY OF WW 631 | 1.6100204973 | $301,650 | $301,650 | $485.66 | | |
| CWWRFD | CITY OF WALLA WALLA REFUND 631 | 0.0000000000 | $301,650 | $301,650 | $0.00 | | |
| | Total Tax Rate: | 8.7973694689 | | | | | |
| | | | | Taxes w/Current Exemptions: | $2,653.73 | | |
| | | | | Taxes w/o Exemptions: | $2,653.73 | | |
Improvement / Building
| Improvement #1: | RESIDENTIAL | State Code: | 11 | 972.0 sqft | Value: | $270,400 |
| Exterior Wall: | STUCCO | Heating/Cooling: | FORCED AIR | | Number of Bathrooms: | 1 | Number of Bedrooms: | 2 | | Plumbing: | 7 | Roof Covering: | COMP SHINGLE |
|
| | Type | Description | Class CD | Sub Class CD | Year Built | Area |
| | MA | Main Area | 1 | 30 | 1947 | 972.0 |
| | SI1 | SITE IMPROVEMENT | 1 | 30 | 0 | 1.5 |
| | BASE | BASEMENT | 1 | 30 | 1947 | 972.0 |
| | OPS | OPEN PORCH W/STEPS | 1 | 30 | 1947 | 48.0 |
| | BRF | BASEMENT - REC FINISH | 1 | 30 | 1947 | 300.0 |
| | STG1 | Sub Terrain Garage Single | 1 | 30 | 1947 | 1.0 |
Sketch
Property Image
Land
| 1 | RES 1 | Converted: Residential | 0.1148 | 5000.00 | 0.00 | 0.00 | 1.00 | $31,250 | $0 |
Roll Value History
| 2026 | N/A | N/A | N/A | N/A | N/A |
| 2025 | $241,000 | $50,000 | $0 | $291,000 | $291,000 |
| 2024 | $241,000 | $50,000 | $0 | $291,000 | $291,000 |
| 2023 | $270,400 | $31,250 | $0 | $301,650 | $301,650 |
| 2022 | $237,950 | $31,250 | $0 | $269,200 | $269,200 |
| 2021 | $183,040 | $31,250 | $0 | $214,290 | $214,290 |
| 2020 | $135,590 | $31,250 | $0 | $166,840 | $166,840 |
| 2019 | $135,590 | $31,250 | $0 | $166,840 | $166,840 |
| 2018 | $117,900 | $31,250 | $0 | $149,150 | $149,150 |
| 2017 | $130,850 | $20,000 | $0 | $150,850 | $150,850 |
| 2016 | $124,610 | $20,000 | $0 | $144,610 | $144,610 |
| 2015 | $118,680 | $20,000 | $0 | $138,680 | $5,700 |
| 2014 | $103,200 | $20,000 | $0 | $123,200 | $15,700 |
| 2013 | $103,200 | $20,000 | $0 | $123,200 | $15,700 |
| 2012 | $115,100 | $20,000 | $0 | $0 | $0 |
| 2011 | $115,100 | $20,000 | $0 | $0 | $0 |
| 2010 | $108,700 | $20,000 | $0 | $0 | $0 |
| 2009 | $123,000 | $20,000 | $0 | $0 | $0 |
| 2008 | $90,000 | $20,000 | $0 | $0 | $0 |
| 2007 | $90,000 | $20,000 | $0 | $0 | $0 |
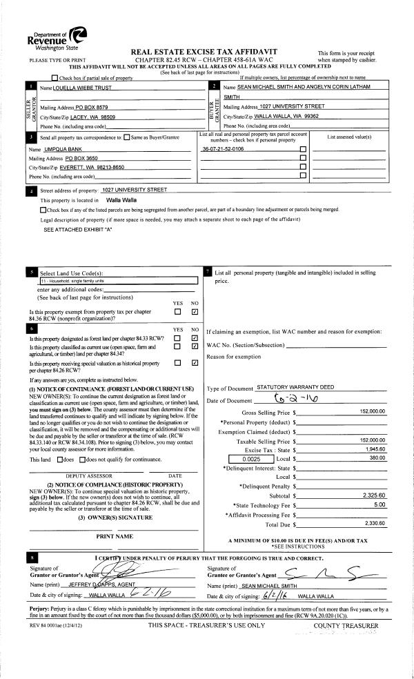
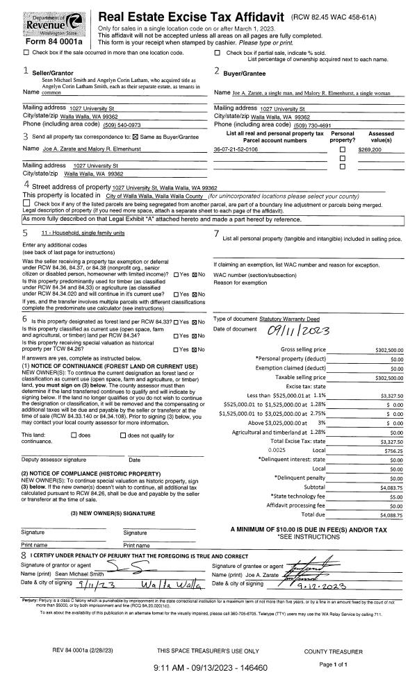
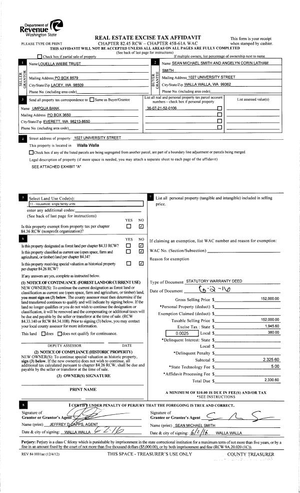
Deed and Sales History
| 1 | 09/13/2023 | SWD | STATUTORY WARRANTY DEED | SMITH SEAN MICHAEL | ZARATE JOE A | | | $302,500.00 | 146460 | 2023-05322 |
| 2 | 06/03/2016 | SWD | STATUTORY WARRANTY DEED | WIEBE LOUELLA I TRUST | SMITH SEAN MICHAEL | | | $152,000.00 | 130346 | 2016-04181 |
| 3 | 03/01/1966 | WARRANTY D | WARRANTY DEED | | | | | $0.00 | 0 | 2320-304166 |
Payout Agreement
| No payout information available.. |