Property
Account |
| Property ID: | 34759 | Abbreviated Legal Description: | LARABEE ROAD TRACTS LOT 2 |
| Parcel Number: | 330735500002 | Agent Code: | |
| Type: | Real | | |
| Tax Area: | 318 - 300-6-TM | Land Use Code | 11 |
| Open Space: | N | DFL | N |
| Historic Property: | N | Remodel Property: | N |
| Multi-Family Redevelopment: | N | | |
| Township: | 7 | Section: | 35 |
| Range: | 33 |
Location |
| Address: | 369 LARRABEE RD WA 99360 | Mapsco: | |
| Neighborhood: | A Touchet/Lowden SFR | Map ID: | |
| Neighborhood CD: | 213611 |
Owner |
| Name: | LONG SHAWN M & JESSICA E | Owner ID: | 57560 |
| Mailing Address: | 369 LARRABEE RD TOUCHET, WA 99360 | % Ownership: | 100.0000000000% |
| | | Exemptions: | |
Taxes and Assessment Details
Values
| (+) Improvement Homesite Value: | + | $0 | |
| (+) Improvement Non-Homesite Value: | + | $654,310 | |
| (+) Land Homesite Value: | + | $60,000 | |
| (+) Land Non-Homesite Value: | + | $19,180 | |
| (+) Curr Use (HS): | + | $0 | $0 |
| (+) Curr Use (NHS): | + | $0 | $0 |
| | | -------------------------- | |
| (=) Market Value: | = | $733,490 | |
| (–) Productivity Loss: | – | $0 | |
| | | -------------------------- | |
| (=) Subtotal: | = | $733,490 | |
| (+) Senior Appraised Value: | + | $0 | |
| (+) Non-Senior Appraised Value: | + | $733,490 | |
| | | -------------------------- | |
| (=) Total Appraised Value: | = | $733,490 | |
| (–) Senior Exemption Loss: | – | $0 | |
| (–) Exemption Loss: | – | $0 | |
| | | -------------------------- | |
| (=) Taxable Value: | = | $733,490 | |
Taxing Jurisdiction
| Owner: | LONG SHAWN M & JESSICA E | | |
| % Ownership: | 100.0000000000% | | |
| Total Value: | $733,490 | | |
| Tax Area: | 318 - 300-6-TM |
| CERFD | CURRENT EXPENSE REFUND 010 | 0.0000000000 | $733,490 | $733,490 | $0.00 | | |
| CURREXP | CURRENT EXPENSE 010 | 0.9851088983 | $733,490 | $733,490 | $722.57 | | |
| HUMNSERV | HUMAN SERVICES 119 | 0.0250000000 | $733,490 | $733,490 | $18.34 | | |
| SLDREL | SOLDIERS RELIEF 121 | 0.0155990000 | $733,490 | $733,490 | $11.44 | | |
| EMERGSER | EMS 147 | 0.3676811629 | $733,490 | $733,490 | $269.69 | | |
| EMSRFD | EMS REFUND 147 | 0.0000000000 | $733,490 | $733,490 | $0.00 | | |
| FD6EXP | FD #6 EXPENSE 693 | 0.6637564225 | $733,490 | $733,490 | $486.86 | | |
| RLBRFD | RURAL LIBRARY REFUND 623 | 0.0000000000 | $733,490 | $733,490 | $0.00 | | |
| RURALLIB | RURAL LIBRARY 623 | 0.3601547782 | $733,490 | $733,490 | $264.17 | | |
| PORTRFD | PORT REFUND 640 | 0.0000000000 | $733,490 | $733,490 | $0.00 | | |
| PORTWWGEN | PORT OF WW 640 | 0.2344301070 | $733,490 | $733,490 | $171.95 | | |
| SD300BOND | SD #300 BOND 783 | 1.9432820025 | $733,490 | $733,490 | $1,425.38 | | |
| SD300GEN | SD #300 GENERAL 780 | 2.2641297109 | $733,490 | $733,490 | $1,660.72 | | |
| ST2 | STATE SCHOOL PART 2 600 | 0.8853714103 | $733,490 | $733,490 | $649.41 | | |
| STATESCHL | STATE SCHOOL 600 | 1.6424571473 | $733,490 | $733,490 | $1,204.73 | | |
| STREFUND | STATE REFUND LEVY 603 | 0.0000000000 | $733,490 | $733,490 | $0.00 | | |
| COROAD | COUNTY ROAD 115 | 1.6137667997 | $733,490 | $733,490 | $1,183.68 | | |
| CRPRD | COUNTY ROAD REFUND 115 | 0.0000000000 | $733,490 | $733,490 | $0.00 | | |
| | Total Tax Rate: | 11.0007374396 | | | | | |
| | | | | Taxes w/Current Exemptions: | $8,068.94 | | |
| | | | | Taxes w/o Exemptions: | $8,068.94 | | |
Improvement / Building
| Improvement #1: | RESIDENTIAL | State Code: | 11 | 3186.0 sqft | Value: | $654,310 |
| Exterior Wall: | HARDBOARD | Heating/Cooling: | WARM & COOLED AIR | | Number of Bathrooms: | 2.5 | Number of Bedrooms: | 4 | | Plumbing: | 11 | Roof Covering: | COMP SHINGLE |
|
| | Type | Description | Class CD | Sub Class CD | Year Built | Area |
| | MA | Main Area | 2 | 35 | 2018 | 3186.0 |
| | UPFL | Upper Floor (included in main area) | 2 | 35 | 2018 | 1830.0 |
| | ATG | Attached Garage | 2 | 35 | 2018 | 840.0 |
| | SI1 | SITE IMPROVEMENT | 2 | 35 | 2018 | 2.5 |
| | GFP | GAS FIREPLACE | 2 | 35 | 2018 | 1.0 |
| | RPC | OPEN PORCH W/ROOF , CEILED | 2 | 35 | 2018 | 116.0 |
Sketch
Property Image
Land
| 1 | 65-C2 | Class 2 65 BU | 11.9500 | 0.00 | 0.00 | 0.00 | 1.00 | $19,180 | $0 |
| 2 | 60,000-HS2 | Homesite Use Value | 1.0000 | 0.00 | 0.00 | 0.00 | 1.00 | $60,000 | $0 |
Roll Value History
| 2026 | N/A | N/A | N/A | N/A | N/A |
| 2025 | $654,310 | $79,180 | $0 | $733,490 | $733,490 |
| 2024 | $654,310 | $78,420 | $0 | $732,730 | $732,730 |
| 2023 | $654,310 | $77,970 | $0 | $732,280 | $732,280 |
| 2022 | $545,260 | $76,540 | $0 | $621,800 | $621,800 |
| 2021 | $330,460 | $75,140 | $6,310 | $396,770 | $396,770 |
| 2020 | $304,130 | $49,090 | $6,490 | $345,620 | $345,620 |
| 2019 | $304,130 | $48,500 | $6,640 | $345,770 | $345,770 |
| 2018 | $304,130 | $48,430 | $7,540 | $346,670 | $346,670 |
| 2017 | $0 | $30,360 | $8,070 | $8,070 | $8,070 |
| 2016 | $0 | $30,360 | $8,070 | $8,070 | $8,070 |
| 2015 | $0 | $30,260 | $7,190 | $7,190 | $7,190 |
| 2014 | $0 | $30,260 | $7,350 | $7,350 | $7,350 |
| 2013 | $0 | $29,600 | $6,000 | $6,000 | $6,000 |
| 2012 | $0 | $9,600 | $0 | $0 | $0 |
| 2011 | $0 | $9,200 | $0 | $0 | $0 |
| 2010 | $0 | $9,500 | $0 | $0 | $0 |
| 2009 | $0 | $9,300 | $0 | $0 | $0 |
| 2008 | $0 | $12,300 | $0 | $0 | $0 |
| 2007 | $0 | $12,300 | $0 | $0 | $0 |
Deed and Sales History
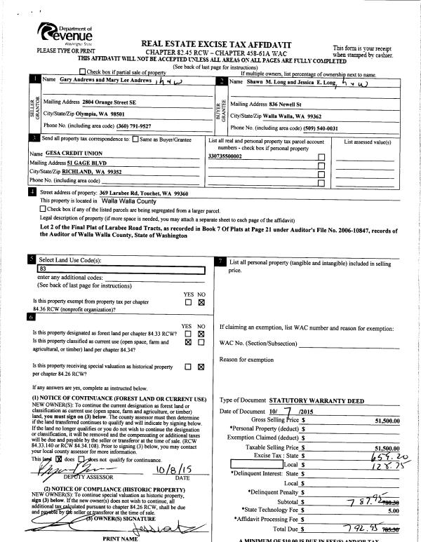
| 1 | 10/08/2015 | SWD | STATUTORY WARRANTY DEED | ANDREWS GARY & MARY LEE | LONG SHAWN M & JESSICA E | | | $51,500.00 | 128970 | 2015-08890 |
| 2 | 04/17/2014 | WTR RIGHTS | WATER RIGHTS ONLY | CHICHA GEORGE S | ANDREWS GARY & MARY LEE | | 3-PARCELS | $39,375.00 | 127209 | NO DEED |
| 3 | 12/14/2012 | WARRANTY D | WARRANTY DEED | CHICHA, GEORGE S | ANDREWS GARY & MARY LEE | | | $175,000.00 | 123176 | 2012-11214 |
|   | |
| 4 | 08/03/2011 | WARRANTY D | WARRANTY DEED | BANK OF WHITMAN | CHICHA GEORGE S | | | | 120491 | 2011-06007 |
| 5 | 01/04/2011 | WARRANTY D | WARRANTY DEED | "LIBEY, GARY J SUCCESSOR~TRUST | | | | | 119546 | 2011-00135 |
Payout Agreement
| No payout information available.. |