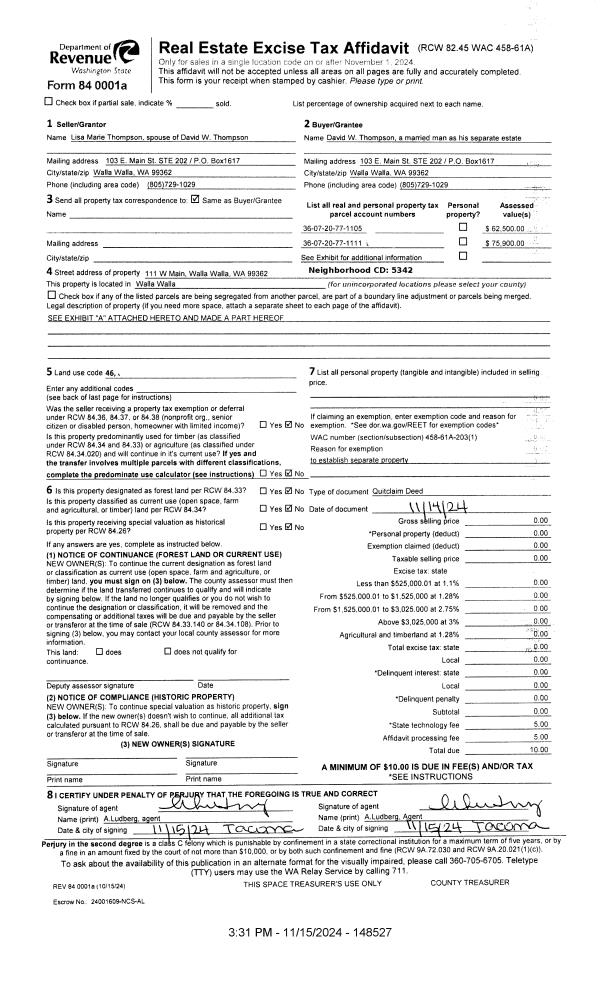
| 1 | 11/18/2024 | QCD | QUIT CLAIM DEED | LISA MARIE THOMPSON | THOMPSON DAVID W | | 7-PARCELS | $0.00 | 148527 | 2024-06668 |
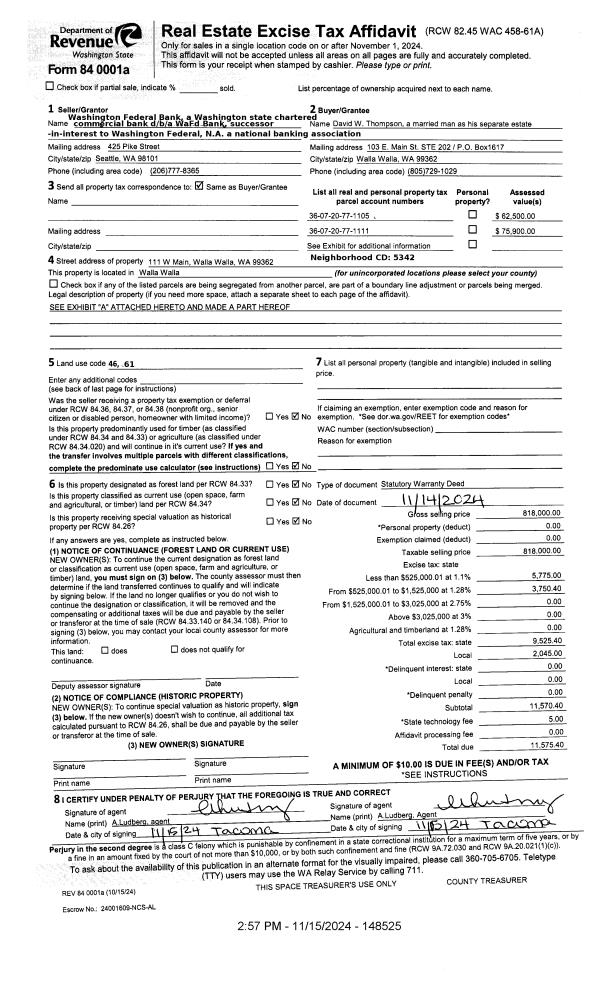
| 2 | 11/18/2024 | SWD | STATUTORY WARRANTY DEED | WASHINGTON FEDERAL NA | LISA MARIE THOMPSON | | 7-PARCELS | $818,000.00 | 148525 | 2024-06664 |
|   | |
| 3 | 01/19/2018 | BARGAIN & | BARGAIN & SALE DEED | WW BAC LLC | WASHINGTON FEDERAL NA | | 12-PARCELS | $2,000,000.00 | 134021 | 2018-00552 |
|   | |
| 4 | 05/16/2013 | SWP | Special Warranty Deed | GPT GIG BOA PORTFOLIO HFS OWNE | WW BAC LLC | | | $1,040,000.00 | 123972 | 2013-04916 |
|   | |
| 5 | 12/11/2012 | WARRANTY D | WARRANTY DEED | FIRST STATES INVESTORS 5000A L | GPT GIG BOA PORTFOLIO HFS OWNER LLC | | | $755,638.00 | 123138 | 2012-11053 |
|   | |
| 6 | 07/16/2003 | WARRANTY D | WARRANTY DEED | SEATTLE FIRST NATIONAL BANK(BO | BANK OF AMERICA | | | $1,342,973.00 | 102568 | 2003-10516 |
|   | |
| 7 | 12/15/1978 | WARRANTY D | WARRANTY DEED | | | | | $300,000.00 | 0 | 9478-10851 |
|   | |