Property
Account |
| Property ID: | 34745 | Abbreviated Legal Description: | COLLEGE PLACE #2 ADJUSTED TRACT A OF SHORT PLAT (ADJUSTED BY SURVEY2008-06332) (NLY 74' TAX 1 ALL WITHIN NELY PTN LOT 2 BLK 4 PLUS PTNSTRIP LY TO THE E) |
| Parcel Number: | 350736600443 | Agent Code: | |
| Type: | Real | | |
| Tax Area: | 75 - CP 250 | Land Use Code | 91 |
| Open Space: | N | DFL | N |
| Historic Property: | N | Remodel Property: | N |
| Multi-Family Redevelopment: | N | | |
| Township: | 7 | Section: | 36 |
| Range: | 35 |
Location |
| Address: | WA 99324 | Mapsco: | |
| Neighborhood: | A SFR Land Only | Map ID: | |
| Neighborhood CD: | 113091 |
Owner |
| Name: | WALLA WALLA UNIVERSITY | Owner ID: | 45263 |
| Mailing Address: | 204 S COLLEGE AVE COLLEGE PLACE, WA 99324 | % Ownership: | 100.0000000000% |
| | | Exemptions: | |
Taxes and Assessment Details
Values
| (+) Improvement Homesite Value: | + | N/A | |
| (+) Improvement Non-Homesite Value: | + | N/A | |
| (+) Land Homesite Value: | + | N/A | |
| (+) Land Non-Homesite Value: | + | N/A | Ag / Timber Use Value |
| (+) Curr Use (HS): | + | N/A | N/A |
| (+) Curr Use (NHS): | + | N/A | N/A |
| | | -------------------------- | |
| (=) Market Value: | = | N/A | |
| (–) Productivity Loss: | – | N/A | |
| | | -------------------------- | |
| (=) Subtotal: | = | N/A | |
| (+) Senior Appraised Value: | + | N/A | |
| (+) Non-Senior Appraised Value: | + | N/A | |
| | | -------------------------- | |
| (=) Total Appraised Value: | = | N/A | |
| (–) Senior Exemption Loss: | – | N/A | |
| (–) Exemption Loss: | – | N/A | |
| | | -------------------------- | |
| (=) Taxable Value: | = | N/A | |
Taxing Jurisdiction
| Owner: | WALLA WALLA UNIVERSITY | | |
| % Ownership: | 100.0000000000% | | |
| Total Value: | N/A | | |
| Tax Area: | 75 - CP 250 |
| CERFD | CURRENT EXPENSE REFUND 010 | N/A | N/A | N/A | N/A | | |
| CURREXP | CURRENT EXPENSE 010 | N/A | N/A | N/A | N/A | | |
| HUMNSERV | HUMAN SERVICES 119 | N/A | N/A | N/A | N/A | | |
| SLDREL | SOLDIERS RELIEF 121 | N/A | N/A | N/A | N/A | | |
| COLLPLBOND | C OF CP BOND 644 | N/A | N/A | N/A | N/A | | |
| COLLPLGEN | CITY OF CP 632 | N/A | N/A | N/A | N/A | | |
| EMERGSER | EMS 147 | N/A | N/A | N/A | N/A | | |
| EMSRFD | EMS REFUND 147 | N/A | N/A | N/A | N/A | | |
| PORTRFD | PORT REFUND 640 | N/A | N/A | N/A | N/A | | |
| PORTWWGEN | PORT OF WW 640 | N/A | N/A | N/A | N/A | | |
| SD250BOND | SD #250 BOND 773 | N/A | N/A | N/A | N/A | | |
| SD250GEN | SD #250 GENERAL 770 | N/A | N/A | N/A | N/A | | |
| ST2 | STATE SCHOOL PART 2 600 | N/A | N/A | N/A | N/A | | |
| STATESCHL | STATE SCHOOL 600 | N/A | N/A | N/A | N/A | | |
| STREFUND | STATE REFUND LEVY 603 | N/A | N/A | N/A | N/A | | |
| | Total Tax Rate: | N/A | | | | | |
| | | | | Taxes w/Current Exemptions: | N/A | | |
| | | | | Taxes w/o Exemptions: | N/A | | |
Improvement / Building
Sketch
| No sketches available for this property. |
Property Image
Land
| 1 | RES 1 | Converted: Residential | 0.1381 | 6016.00 | 0.00 | 0.00 | 1.00 | N/A | N/A |
Roll Value History
| 2026 | N/A | N/A | N/A | N/A | N/A |
| 2025 | $0 | $60,160 | $0 | $60,160 | $60,160 |
| 2024 | $0 | $43,620 | $0 | $43,620 | $43,620 |
| 2023 | $0 | $43,620 | $0 | $43,620 | $43,620 |
| 2022 | $0 | $43,620 | $0 | $43,620 | $43,620 |
| 2021 | $0 | $21,190 | $0 | $21,190 | $21,190 |
| 2020 | $0 | $21,190 | $0 | $21,190 | $21,190 |
| 2019 | $0 | $5,100 | $0 | $5,100 | $5,100 |
| 2018 | $0 | $5,100 | $0 | $5,100 | $5,100 |
| 2017 | $0 | $5,100 | $0 | $5,100 | $5,100 |
| 2016 | $0 | $5,100 | $0 | $5,100 | $5,100 |
| 2015 | $0 | $5,100 | $0 | $5,100 | $5,100 |
| 2014 | $0 | $5,100 | $0 | $5,100 | $5,100 |
| 2013 | $0 | $5,100 | $0 | $5,100 | $5,100 |
| 2012 | $0 | $36,100 | $0 | $0 | $0 |
| 2011 | $0 | $36,100 | $0 | $0 | $0 |
| 2010 | $0 | $36,100 | $0 | $0 | $0 |
| 2009 | $0 | $12,000 | $0 | $0 | $0 |
| 2008 | $0 | $5,100 | $0 | $0 | $0 |
Deed and Sales History
| 1 | 12/10/2021 | SWD | STATUTORY WARRANTY DEED | EWERT TIMOTHY B & VALERIE A | WALLA WALLA UNIVERSITY | | | $74,900.00 | 143033 | 2021-14528 |
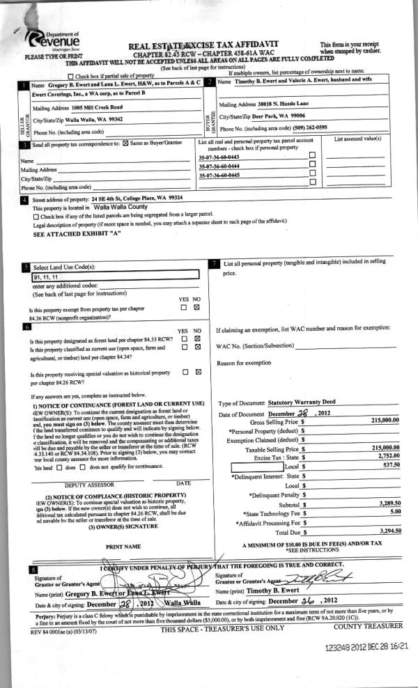
| 2 | 12/28/2012 | WARRANTY D | WARRANTY DEED | EWERT COVERINGS INC A WA CORP | EWERT TIMOTHY B & VALERIE A | | | $215,000.00 | 123248 | 2012-11630 |
|   | |
Payout Agreement
| No payout information available.. |