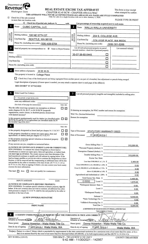
| 1 | 11/30/2021 | SWD | STATUTORY WARRANTY DEED | CUBIC CAPITAL LLC | WALLA WALLA UNIVERSITY | | | $315,000.00 | 142957 | 2021-14104 |
| 2 | 06/14/2021 | SWD | STATUTORY WARRANTY DEED | EWERT TIMOTHY B & VALERIE A | CUBIC CAPITAL LLC | | | $275,000.00 | 141798 | 2021-07250 |
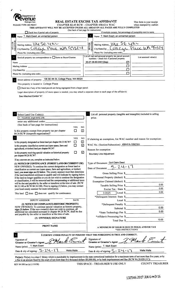
| 3 | 06/06/2017 | QCD | QUIT CLAIM DEED | | EWERT T MARK | | | | 132546 | 2017-04330 |
| 4 | 06/06/2017 | QCD | QUIT CLAIM DEED | EWERT TIMOTHY B & VALERIE A | EWERT TIMOTHY B & VALERIE A | | | | 132545 | 2017-04329 |
| 5 | 06/06/2017 | QCD | QUIT CLAIM DEED | | EWERT TIMOTHY B & VALERIE A | | | | 132544 | 2017-04328 |
| 6 | 12/28/2012 | WARRANTY D | WARRANTY DEED | EWERT COVERINGS INC A WA CORP | EWERT TIMOTHY B & VALERIE A | | | $215,000.00 | 123248 | 2012-11630 |
|   | |