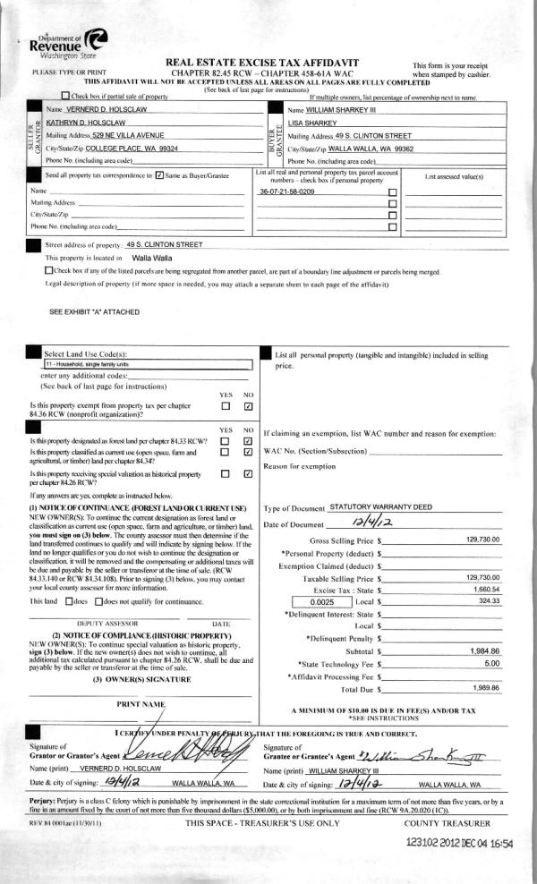
Property
Account |
| Property ID: | 34740 | Abbreviated Legal Description: | ISAACS 2ND TAX 2 LOT 8 BLK 2 |
| Parcel Number: | 360721580209 | Agent Code: | |
| Type: | Real | | |
| Tax Area: | 1 - OL-140-F | Land Use Code | 11 |
| Open Space: | N | DFL | N |
| Historic Property: | N | Remodel Property: | N |
| Multi-Family Redevelopment: | N | | |
| Township: | 7 | Section: | 21 |
| Range: | 36 |
Location |
| Address: | 49 S CLINTON ST WA 99362 | Mapsco: | |
| Neighborhood: | G-SFR | Map ID: | |
| Neighborhood CD: | 514011 |
Owner |
| Name: | FERRARO GINA M | Owner ID: | 60185 |
| Mailing Address: | 49 S CLINTON ST WALLA WALLA, WA 99362-2476 | % Ownership: | 100.0000000000% |
| | | Exemptions: | |
Taxes and Assessment Details
Property Tax Information as of
02/21/2026
Click on "Statement Details" to expand or collapse a tax statement.
* Please enter a valid date ** Please enter a valid date *
Statement Details |
| | TOTAL: | $0.00 | $0.00 | $0.00 | $0.00 | $0.00 | $0.00 |
|
| | $0.00 | $0.00 | $0.00 | $0.00 | $0.00 | $0.00 |
Values
| (+) Improvement Homesite Value: | + | $0 | |
| (+) Improvement Non-Homesite Value: | + | $278,400 | |
| (+) Land Homesite Value: | + | $0 | |
| (+) Land Non-Homesite Value: | + | $63,100 | |
| (+) Curr Use (HS): | + | $0 | $0 |
| (+) Curr Use (NHS): | + | $0 | $0 |
| | | -------------------------- | |
| (=) Market Value: | = | $341,500 | |
| (–) Productivity Loss: | – | $0 | |
| | | -------------------------- | |
| (=) Subtotal: | = | $341,500 | |
| (+) Senior Appraised Value: | + | $0 | |
| (+) Non-Senior Appraised Value: | + | $341,500 | |
| | | -------------------------- | |
| (=) Total Appraised Value: | = | $341,500 | |
| (–) Senior Exemption Loss: | – | $0 | |
| (–) Exemption Loss: | – | $0 | |
| | | -------------------------- | |
| (=) Taxable Value: | = | $341,500 | |
Taxing Jurisdiction
| Owner: | FERRARO GINA M | | |
| % Ownership: | 100.0000000000% | | |
| Total Value: | $341,500 | | |
| Tax Area: | 1 - OL-140-F |
| CERFD | CURRENT EXPENSE REFUND 010 | 0.0000000000 | $341,500 | $341,500 | $0.00 | | |
| CURREXP | CURRENT EXPENSE 010 | 1.0175366760 | $341,500 | $341,500 | $347.49 | | |
| HUMNSERV | HUMAN SERVICES 119 | 0.0250000000 | $341,500 | $341,500 | $8.54 | | |
| SLDREL | SOLDIERS RELIEF 121 | 0.0155990005 | $341,500 | $341,500 | $5.33 | | |
| EMERGSER | EMS 147 | 0.3792580840 | $341,500 | $341,500 | $129.52 | | |
| EMSRFD | EMS REFUND 147 | 0.0000000000 | $341,500 | $341,500 | $0.00 | | |
| PORTRFD | PORT REFUND 640 | 0.0000000000 | $341,500 | $341,500 | $0.00 | | |
| PORTWWGEN | PORT OF WW 640 | 0.2460186015 | $341,500 | $341,500 | $84.02 | | |
| SD140BOND | SD #140 BOND 764 | 0.8342371393 | $341,500 | $341,500 | $284.89 | | |
| SD140GEN | SD #140 GENERAL 760 | 2.0646500647 | $341,500 | $341,500 | $705.08 | | |
| ST2 | STATE SCHOOL PART 2 600 | 0.8131451643 | $341,500 | $341,500 | $277.69 | | |
| STATESCHL | STATE SCHOOL 600 | 1.5158548041 | $341,500 | $341,500 | $517.66 | | |
| STREFUND | STATE REFUND LEVY 603 | 0.0000000000 | $341,500 | $341,500 | $0.00 | | |
| CWWBOND | C OF WW BOND 643 | 0.2760494372 | $341,500 | $341,500 | $94.27 | | |
| CWWGEN | CITY OF WW 631 | 1.6100204973 | $341,500 | $341,500 | $549.82 | | |
| CWWRFD | CITY OF WALLA WALLA REFUND 631 | 0.0000000000 | $341,500 | $341,500 | $0.00 | | |
| | Total Tax Rate: | 8.7973694689 | | | | | |
| | | | | Taxes w/Current Exemptions: | $3,004.31 | | |
| | | | | Taxes w/o Exemptions: | $3,004.31 | | |
Improvement / Building
| Improvement #1: | RESIDENTIAL | State Code: | 11 | 1110.0 sqft | Value: | $278,400 |
| Exterior Wall: | SIDING | Heating/Cooling: | WARM & COOLED AIR | | Number of Bathrooms: | 2 | Number of Bedrooms: | 2 | | Plumbing: | 10 | Roof Covering: | COMP SHINGLE |
|
| | Type | Description | Class CD | Sub Class CD | Year Built | Area |
| | MA | Main Area | 1 | 30 | 1940 | 1110.0 |
| | SI1 | SITE IMPROVEMENT | 1 | 30 | 1940 | 1.0 |
| | BASE | BASEMENT | 1 | 30 | 1940 | 900.0 |
| | BPF | BASEMENT -PARTITIONED FINISH | 1 | 30 | 1940 | 900.0 |
| | S1F | Single One Story Fireplace | 1 | 30 | 1940 | 1.0 |
| | RPS | PORCH W/STEPS,ROOF | 1 | 30 | 1940 | 54.0 |
| | UTST | Utility Storage Shed | 1 | 30 | 1940 | 120.0 |
| | SPO | SCREENED PORCH | 1 | 30 | 1940 | 156.0 |
| | RESUTST | RESIDENTIAL UTILITY STORAGE | 1 | 30 | 1940 | 195.0 |
| | DTG | Detached Garage | 1 | 30 | 1940 | 400.0 |
Sketch
Property Image
Land
| 1 | RES 1 | Converted: Residential | 0.1998 | 8704.00 | 0.00 | 0.00 | 1.00 | $63,100 | $0 |
Roll Value History
| 2026 | N/A | N/A | N/A | N/A | N/A |
| 2025 | $222,560 | $95,740 | $0 | $318,300 | $318,300 |
| 2024 | $222,560 | $95,740 | $0 | $318,300 | $318,300 |
| 2023 | $278,400 | $63,100 | $0 | $341,500 | $341,500 |
| 2022 | $253,090 | $63,100 | $0 | $316,190 | $316,190 |
| 2021 | $194,690 | $63,100 | $0 | $257,790 | $257,790 |
| 2020 | $149,760 | $63,100 | $0 | $212,860 | $212,860 |
| 2019 | $149,760 | $63,100 | $0 | $212,860 | $212,860 |
| 2018 | $149,760 | $63,100 | $0 | $212,860 | $212,860 |
| 2017 | $126,470 | $39,200 | $0 | $165,670 | $165,670 |
| 2016 | $114,970 | $39,200 | $0 | $154,170 | $154,170 |
| 2015 | $104,520 | $39,200 | $0 | $143,720 | $143,720 |
| 2014 | $94,800 | $39,200 | $0 | $134,000 | $134,000 |
| 2013 | $94,800 | $39,200 | $0 | $134,000 | $134,000 |
| 2012 | $128,300 | $39,200 | $0 | $0 | $0 |
| 2011 | $128,300 | $39,200 | $0 | $0 | $0 |
| 2010 | $120,300 | $39,200 | $0 | $0 | $0 |
| 2009 | $138,000 | $39,200 | $0 | $0 | $0 |
| 2008 | $97,100 | $39,200 | $0 | $0 | $0 |
| 2007 | $97,100 | $39,200 | $0 | $0 | $0 |
Deed and Sales History
| 1 | 12/08/2023 | SWD | STATUTORY WARRANTY DEED | FERRARO GINA M | WEBBER HANNAH CATHARINE | | | $327,000.00 | 146906 | 2023-07102 |
| 2 | 12/19/2016 | SWD | STATUTORY WARRANTY DEED | SHARKEY WILLIAM III & LISA | FERRARO GINA M | | | $220,000.00 | 131624 | 2016-10462 |
| 3 | 12/04/2012 | WARRANTY D | WARRANTY DEED | HOLSCLAW, VERNERD D & KATHRYN | SHARKEY, WILLIAM III & LISA | | | $129,730.00 | 123102 | 2012-10786 |
| 4 | 12/14/1977 | WARRANTY D | WARRANTY DEED | | | | | $29,500.00 | 0 | 7305-71669 |
Payout Agreement
| No payout information available.. |