Property
Account |
| Property ID: | 34716 | Abbreviated Legal Description: | CLARIDGE ADDN #2 (TRACT C OF S/P) ELY PTN LOT 4 BLK 2 |
| Parcel Number: | 350735660207 | Agent Code: | |
| Type: | Real | | |
| Tax Area: | 75 - CP 250 | Land Use Code | 11 |
| Open Space: | N | DFL | N |
| Historic Property: | N | Remodel Property: | N |
| Multi-Family Redevelopment: | N | | |
| Township: | 7 | Section: | 35 |
| Range: | 35 |
Location |
| Address: | 220 SW 12TH ST WA 99324 | Mapsco: | |
| Neighborhood: | A SFR | Map ID: | |
| Neighborhood CD: | 113011 |
Owner |
| Name: | JAMES ERIC T & KRISTELLE C | Owner ID: | 52009 |
| Mailing Address: | 220 SW 12TH ST COLLEGE PLACE, WA 99324 | % Ownership: | 100.0000000000% |
| | | Exemptions: | |
Taxes and Assessment Details
Values
| (+) Improvement Homesite Value: | + | $0 | |
| (+) Improvement Non-Homesite Value: | + | $374,140 | |
| (+) Land Homesite Value: | + | $0 | |
| (+) Land Non-Homesite Value: | + | $59,390 | |
| (+) Curr Use (HS): | + | $0 | $0 |
| (+) Curr Use (NHS): | + | $0 | $0 |
| | | -------------------------- | |
| (=) Market Value: | = | $433,530 | |
| (–) Productivity Loss: | – | $0 | |
| | | -------------------------- | |
| (=) Subtotal: | = | $433,530 | |
| (+) Senior Appraised Value: | + | $0 | |
| (+) Non-Senior Appraised Value: | + | $433,530 | |
| | | -------------------------- | |
| (=) Total Appraised Value: | = | $433,530 | |
| (–) Senior Exemption Loss: | – | $0 | |
| (–) Exemption Loss: | – | $0 | |
| | | -------------------------- | |
| (=) Taxable Value: | = | $433,530 | |
Taxing Jurisdiction
| Owner: | JAMES ERIC T & KRISTELLE C | | |
| % Ownership: | 100.0000000000% | | |
| Total Value: | $433,530 | | |
| Tax Area: | 75 - CP 250 |
| CERFD | CURRENT EXPENSE REFUND 010 | 0.0000000000 | $433,530 | $433,530 | $0.00 | | |
| CURREXP | CURRENT EXPENSE 010 | 1.0175366760 | $433,530 | $433,530 | $441.13 | | |
| HUMNSERV | HUMAN SERVICES 119 | 0.0250000000 | $433,530 | $433,530 | $10.84 | | |
| SLDREL | SOLDIERS RELIEF 121 | 0.0155990005 | $433,530 | $433,530 | $6.76 | | |
| COLLPLBOND | C OF CP BOND 644 | 0.4374241808 | $433,530 | $433,530 | $189.64 | | |
| COLLPLGEN | CITY OF CP 632 | 1.4453819216 | $433,530 | $433,530 | $626.62 | | |
| EMERGSER | EMS 147 | 0.3792580840 | $433,530 | $433,530 | $164.42 | | |
| EMSRFD | EMS REFUND 147 | 0.0000000000 | $433,530 | $433,530 | $0.00 | | |
| RURALLIB | RURAL LIBRARY 623 | 0.3710609029 | $433,530 | $433,530 | $160.87 | | |
| PORTRFD | PORT REFUND 640 | 0.0000000000 | $433,530 | $433,530 | $0.00 | | |
| PORTWWGEN | PORT OF WW 640 | 0.2460186015 | $433,530 | $433,530 | $106.66 | | |
| SD250BOND | SD #250 BOND 773 | 1.4560608159 | $433,530 | $433,530 | $631.25 | | |
| SD250GEN | SD #250 GENERAL 770 | 2.3880724087 | $433,530 | $433,530 | $1,035.30 | | |
| ST2 | STATE SCHOOL PART 2 600 | 0.8131451643 | $433,530 | $433,530 | $352.52 | | |
| STATESCHL | STATE SCHOOL 600 | 1.5158548041 | $433,530 | $433,530 | $657.17 | | |
| STREFUND | STATE REFUND LEVY 603 | 0.0000000000 | $433,530 | $433,530 | $0.00 | | |
| | Total Tax Rate: | 10.1104125603 | | | | | |
| | | | | Taxes w/Current Exemptions: | $4,383.18 | | |
| | | | | Taxes w/o Exemptions: | $4,383.18 | | |
Improvement / Building
| Improvement #1: | RESIDENTIAL | State Code: | 11 | 1468.0 sqft | Value: | $374,140 |
| Exterior Wall: | SIDING | Heating/Cooling: | WARM & COOLED AIR | | Number of Bathrooms: | 3 | Number of Bedrooms: | 3 | | Plumbing: | 13 | Roof Covering: | COMP SHINGLE |
|
| | Type | Description | Class CD | Sub Class CD | Year Built | Area |
| | MA | Main Area | 1 | 40 | 1994 | 1468.0 |
| | SI1 | SITE IMPROVEMENT | 1 | 40 | 1994 | 2.0 |
| | BASE | BASEMENT | 1 | 40 | 1994 | 1468.0 |
| | BPF | BASEMENT -PARTITIONED FINISH | 1 | 40 | 1994 | 1468.0 |
| | ATG | Attached Garage | 1 | 40 | 1994 | 440.0 |
| | OPS | OPEN PORCH W/STEPS | 1 | 40 | 1994 | 42.0 |
| | WOD | Wood Deck | 1 | 40 | 1994 | 126.0 |
| | GFP | GAS FIREPLACE | 1 | 40 | 1994 | 1.0 |
Sketch
Property Image
Land
| 1 | RES 1 | Converted: Residential | 0.2020 | 8799.00 | 0.00 | 0.00 | 1.00 | $59,390 | $0 |
Roll Value History
| 2026 | N/A | N/A | N/A | N/A | N/A |
| 2025 | $374,140 | $87,990 | $0 | $462,130 | $462,130 |
| 2024 | $374,140 | $59,390 | $0 | $433,530 | $433,530 |
| 2023 | $374,140 | $59,390 | $0 | $433,530 | $433,530 |
| 2022 | $374,140 | $59,390 | $0 | $433,530 | $433,530 |
| 2021 | $267,250 | $59,390 | $0 | $326,640 | $326,640 |
| 2020 | $254,520 | $59,390 | $0 | $313,910 | $313,910 |
| 2019 | $267,810 | $46,100 | $0 | $313,910 | $313,910 |
| 2018 | $191,290 | $46,100 | $0 | $237,390 | $237,390 |
| 2017 | $191,290 | $46,100 | $0 | $237,390 | $237,390 |
| 2016 | $173,900 | $46,100 | $0 | $220,000 | $220,000 |
| 2015 | $173,900 | $46,100 | $0 | $220,000 | $220,000 |
| 2014 | $173,900 | $46,100 | $0 | $220,000 | $220,000 |
| 2013 | $173,900 | $46,100 | $0 | $220,000 | $220,000 |
| 2012 | $173,900 | $46,100 | $0 | $0 | $0 |
| 2011 | $173,900 | $46,100 | $0 | $0 | $0 |
| 2010 | $173,900 | $46,100 | $0 | $0 | $0 |
| 2009 | $198,300 | $46,100 | $0 | $0 | $0 |
| 2008 | $167,400 | $23,700 | $0 | $0 | $0 |
| 2007 | $167,400 | $23,700 | $0 | $0 | $0 |
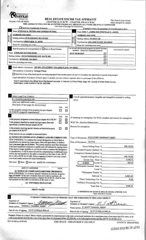
Deed and Sales History
| 1 | 12/20/2012 | WARRANTY D | WARRANTY DEED | PETERS, STEPHEN & DOREEN | JAMES, ERIC T & KRISTELLE C | | | $238,133.00 | 123202 | 2012-11374 |
| 2 | 03/14/1994 | WARRANTY D | WARRANTY DEED | | | | | $170,000.00 | 81195 | 2179-403038 |
Payout Agreement
| No payout information available.. |