Property
Account |
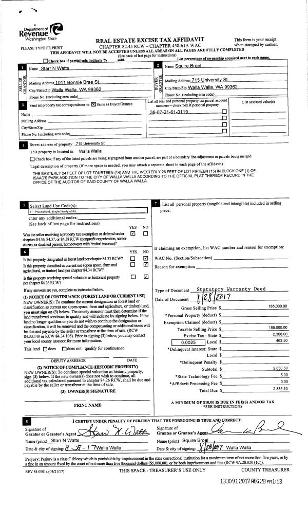
| Property ID: | 34713 | Abbreviated Legal Description: | ISAACS PARK E 24' OF LOT 14 BLK 1 W 26' OF LOT 15 BLK 1 |
| Parcel Number: | 360721610119 | Agent Code: | |
| Type: | Real | | |
| Tax Area: | 1 - OL-140-F | Land Use Code | 11 |
| Open Space: | N | DFL | N |
| Historic Property: | N | Remodel Property: | N |
| Multi-Family Redevelopment: | N | | |
| Township: | 7 | Section: | 21 |
| Range: | 36 |
Location |
| Address: | 715 UNIVERSITY ST WA 99362 | Mapsco: | |
| Neighborhood: | G-SFR | Map ID: | |
| Neighborhood CD: | 514011 |
Owner |
| Name: | BROEL SQUIRE | Owner ID: | 61639 |
| Mailing Address: | 715 UNIVERSITY ST WALLA WALLA, WA 99362 | % Ownership: | 100.0000000000% |
| | | Exemptions: | |
Taxes and Assessment Details
Property Tax Information as of
02/21/2026
Click on "Statement Details" to expand or collapse a tax statement.
* Please enter a valid date ** Please enter a valid date *
Statement Details |
| | TOTAL: | $0.00 | $0.00 | $0.00 | $0.00 | $0.00 | $0.00 |
|
| | $0.00 | $0.00 | $0.00 | $0.00 | $0.00 | $0.00 |
Values
| (+) Improvement Homesite Value: | + | $374,430 | |
| (+) Improvement Non-Homesite Value: | + | $0 | |
| (+) Land Homesite Value: | + | $43,500 | |
| (+) Land Non-Homesite Value: | + | $0 | |
| (+) Curr Use (HS): | + | $0 | $0 |
| (+) Curr Use (NHS): | + | $0 | $0 |
| | | -------------------------- | |
| (=) Market Value: | = | $417,930 | |
| (–) Productivity Loss: | – | $0 | |
| | | -------------------------- | |
| (=) Subtotal: | = | $417,930 | |
| (+) Senior Appraised Value: | + | $0 | |
| (+) Non-Senior Appraised Value: | + | $417,930 | |
| | | -------------------------- | |
| (=) Total Appraised Value: | = | $417,930 | |
| (–) Senior Exemption Loss: | – | $0 | |
| (–) Exemption Loss: | – | $0 | |
| | | -------------------------- | |
| (=) Taxable Value: | = | $417,930 | |
Taxing Jurisdiction
| Owner: | BROEL SQUIRE | | |
| % Ownership: | 100.0000000000% | | |
| Total Value: | $417,930 | | |
| Tax Area: | 1 - OL-140-F |
| CERFD | CURRENT EXPENSE REFUND 010 | 0.0000000000 | $417,930 | $417,930 | $0.00 | | |
| CURREXP | CURRENT EXPENSE 010 | 1.0175366760 | $417,930 | $417,930 | $425.26 | | |
| HUMNSERV | HUMAN SERVICES 119 | 0.0250000000 | $417,930 | $417,930 | $10.45 | | |
| SLDREL | SOLDIERS RELIEF 121 | 0.0155990005 | $417,930 | $417,930 | $6.52 | | |
| EMERGSER | EMS 147 | 0.3792580840 | $417,930 | $417,930 | $158.50 | | |
| EMSRFD | EMS REFUND 147 | 0.0000000000 | $417,930 | $417,930 | $0.00 | | |
| PORTRFD | PORT REFUND 640 | 0.0000000000 | $417,930 | $417,930 | $0.00 | | |
| PORTWWGEN | PORT OF WW 640 | 0.2460186015 | $417,930 | $417,930 | $102.82 | | |
| SD140BOND | SD #140 BOND 764 | 0.8342371393 | $417,930 | $417,930 | $348.65 | | |
| SD140GEN | SD #140 GENERAL 760 | 2.0646500647 | $417,930 | $417,930 | $862.88 | | |
| ST2 | STATE SCHOOL PART 2 600 | 0.8131451643 | $417,930 | $417,930 | $339.84 | | |
| STATESCHL | STATE SCHOOL 600 | 1.5158548041 | $417,930 | $417,930 | $633.52 | | |
| STREFUND | STATE REFUND LEVY 603 | 0.0000000000 | $417,930 | $417,930 | $0.00 | | |
| CWWBOND | C OF WW BOND 643 | 0.2760494372 | $417,930 | $417,930 | $115.37 | | |
| CWWGEN | CITY OF WW 631 | 1.6100204973 | $417,930 | $417,930 | $672.88 | | |
| CWWRFD | CITY OF WALLA WALLA REFUND 631 | 0.0000000000 | $417,930 | $417,930 | $0.00 | | |
| | Total Tax Rate: | 8.7973694689 | | | | | |
| | | | | Taxes w/Current Exemptions: | $3,676.69 | | |
| | | | | Taxes w/o Exemptions: | $3,676.69 | | |
Improvement / Building
| Improvement #1: | RESIDENTIAL | State Code: | 11 | 1352.0 sqft | Value: | $374,430 |
| Exterior Wall: | SIDING | Heating/Cooling: | WARM & COOLED AIR | | Number of Bathrooms: | 2 | Number of Bedrooms: | 2 | | Plumbing: | 10 | Roof Covering: | COMP SHINGLE |
|
| | Type | Description | Class CD | Sub Class CD | Year Built | Area |
| | MA | Main Area | 1 | 35 | 1916 | 1352.0 |
| | SI1 | SITE IMPROVEMENT | 1 | 35 | 1916 | 1.5 |
| | BASE | BASEMENT | 1 | 35 | 1916 | 598.0 |
| | BPF | BASEMENT -PARTITIONED FINISH | 1 | 35 | 1916 | 598.0 |
| | S1F | Single One Story Fireplace | 1 | 35 | 1916 | 1.0 |
| | WOD | Wood Deck | 1 | 35 | 1916 | 120.0 |
| | PRC | PORCH W STEPS, ROOF,CEILED | 1 | 35 | 1916 | 126.0 |
| | DTG | Detached Garage | 1 | 35 | 1916 | 280.0 |
Sketch
Property Image
Land
| 1 | RES 1 | Converted: Residential | 0.1377 | 6000.00 | 0.00 | 0.00 | 1.00 | $43,500 | $0 |
Roll Value History
| 2026 | N/A | N/A | N/A | N/A | N/A |
| 2025 | $346,230 | $66,000 | $0 | $412,230 | $412,230 |
| 2024 | $346,230 | $66,000 | $0 | $412,230 | $412,230 |
| 2023 | $374,430 | $43,500 | $0 | $417,930 | $417,930 |
| 2022 | $340,390 | $43,500 | $0 | $383,890 | $383,890 |
| 2021 | $252,140 | $43,500 | $0 | $295,640 | $295,640 |
| 2020 | $186,770 | $43,500 | $0 | $230,270 | $230,270 |
| 2019 | $186,770 | $43,500 | $0 | $230,270 | $230,270 |
| 2018 | $169,790 | $43,500 | $0 | $213,290 | $213,290 |
| 2017 | $159,900 | $27,000 | $0 | $186,900 | $186,900 |
| 2016 | $159,900 | $27,000 | $0 | $186,900 | $60,000 |
| 2015 | $159,900 | $27,000 | $0 | $186,900 | $60,000 |
| 2014 | $123,000 | $27,000 | $0 | $150,000 | $60,000 |
| 2013 | $123,000 | $27,000 | $0 | $150,000 | $60,000 |
| 2012 | $121,700 | $27,000 | $0 | $0 | $0 |
| 2011 | $121,700 | $27,000 | $0 | $0 | $0 |
| 2010 | $114,600 | $27,000 | $0 | $0 | $0 |
| 2009 | $130,300 | $27,000 | $0 | $0 | $0 |
| 2008 | $130,300 | $27,000 | $0 | $0 | $0 |
| 2007 | $130,300 | $27,000 | $0 | $0 | $0 |
Deed and Sales History
| 1 | 08/28/2017 | SWD | STATUTORY WARRANTY DEED | WATTS STARR N | BROEL SQUIRE | | | $185,000.00 | 133091 | 2017-06727 |
| 2 | 07/10/2014 | QCD | QUIT CLAIM DEED | WATTS DAVID R & STARR N | WATTS STARR N | | | | 126226 | 2014-04788 |
| 3 | 12/31/2012 | QCD | QUIT CLAIM DEED | KING, STARR NOREEN | WATTS, DAVID R & STARR N | | | $0.00 | 123259 | 2012-11735 |
| 4 | 01/01/1958 | QCD | QUIT CLAIM DEED | | | | | $0.00 | 0 | 1989-206155 |
Payout Agreement
| No payout information available.. |