| 1 | 04/08/2020 | SWD | STATUTORY WARRANTY DEED | LIU MARK YEN JEN | GILLILAND RICHARD D & DAFNEY L | | | $659,000.00 | 138904 | 2020-03041 |
| 2 | 04/19/2019 | QCD | QUIT CLAIM DEED | LIU MARK & ANGELA JACO | LIU MARK YEN JEN | | | $0.00 | 137852 | 2019-08096 |
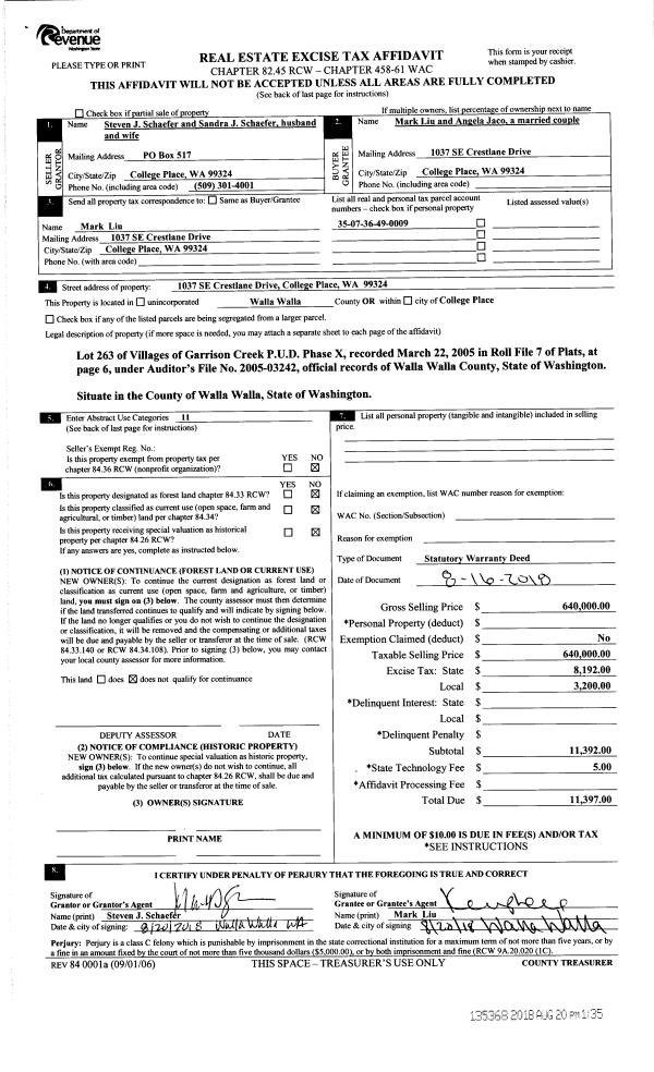
| 3 | 08/20/2018 | SWD | STATUTORY WARRANTY DEED | SCHAEFER STEVEN J & SANDRA J | LIU MARK & ANGELA JACO | | | $640,000.00 | 135368 | 2018-06826 |
| 4 | 08/18/2017 | SWD | STATUTORY WARRANTY DEED | HAMADA RANDALL KENT & KATHY LYNNE | SCHAEFER STEVEN J & SANDRA J | | | $490,000.00 | 133025 | 2017-06399 |
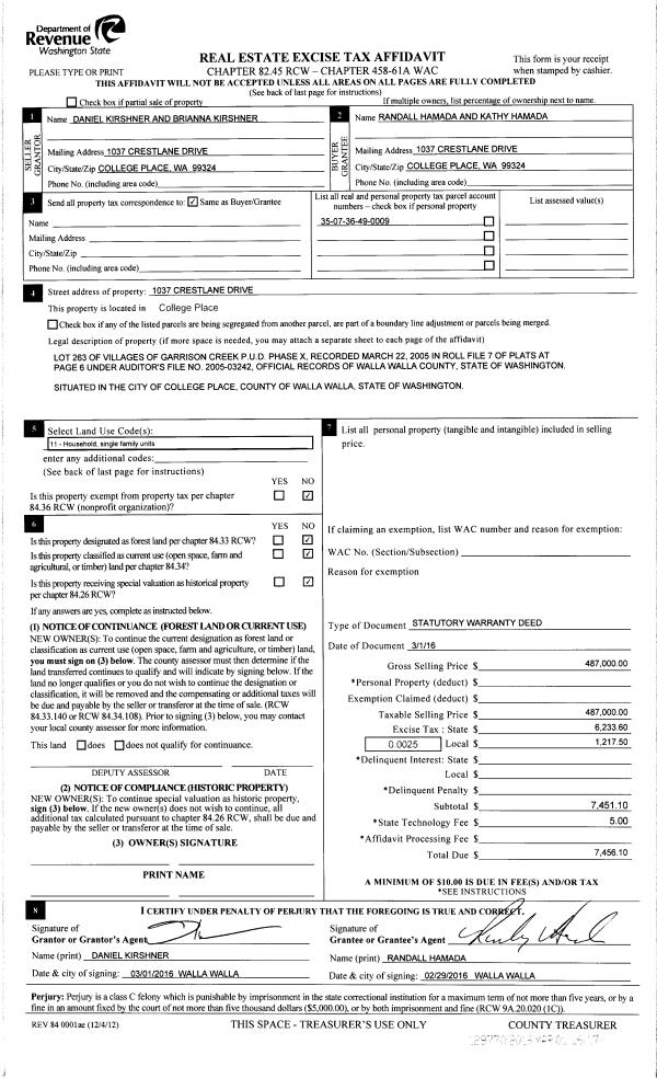
| 5 | 03/01/2016 | SWD | STATUTORY WARRANTY DEED | KIRSHNER DANIEL A & BRIANNA M | HAMADA RANDALL KENT & KATHY LYNNE | | | $487,000.00 | 129770 | 2016-01611 |
| 6 | 12/12/2012 | WARRANTY D | WARRANTY DEED | EHREN, JOHN J & MELISSA | KIRSHNER, DANIEL A & BRIANNA M | | | $525,000.00 | 123146 | 2012-11084 |
| 7 | 04/11/2008 | WARRANTY D | WARRANTY DEED | MYRA ROAD COMMERCIAL LLC | EHREN, JOHN J & MELISSA | | | $675,000.00 | 114828 | 2008-03567 |
| 8 | 02/26/2008 | WARRANTY D | WARRANTY DEED | PHASE FIVE DEVELOPMENT~LLC | MYRA ROAD COMMERCIAL LLC | | | | 114583 | 2008-01716 |