Property
Account |
| Property ID: | 34699 | Abbreviated Legal Description: | HANSON'S LOT 11 BLK 3 |
| Parcel Number: | 330734540311 | Agent Code: | |
| Type: | Real | | |
| Tax Area: | 323 - 300-6-TM | Land Use Code | 11 |
| Open Space: | N | DFL | N |
| Historic Property: | N | Remodel Property: | N |
| Multi-Family Redevelopment: | N | | |
| Township: | 7 | Section: | 34 |
| Range: | 33 |
Location |
| Address: | 220 THIRD ST WA 99360 | Mapsco: | |
| Neighborhood: | A Touchet/Lowden SFR | Map ID: | |
| Neighborhood CD: | 213611 |
Owner |
| Name: | NIEMEYER KIMBERLY | Owner ID: | 51986 |
| Mailing Address: | PO BOX 286 TOUCHET, WA 99360 | % Ownership: | 100.0000000000% |
| | | Exemptions: | |
Taxes and Assessment Details
Property Tax Information as of
02/21/2026
Click on "Statement Details" to expand or collapse a tax statement.
* Please enter a valid date ** Please enter a valid date *
Statement Details |
| | TOTAL: | $0.00 | $0.00 | $0.00 | $0.00 | $0.00 | $0.00 |
|
| | $0.00 | $0.00 | $0.00 | $0.00 | $0.00 | $0.00 |
Values
| (+) Improvement Homesite Value: | + | $0 | |
| (+) Improvement Non-Homesite Value: | + | $159,270 | |
| (+) Land Homesite Value: | + | $0 | |
| (+) Land Non-Homesite Value: | + | $30,000 | |
| (+) Curr Use (HS): | + | $0 | $0 |
| (+) Curr Use (NHS): | + | $0 | $0 |
| | | -------------------------- | |
| (=) Market Value: | = | $189,270 | |
| (–) Productivity Loss: | – | $0 | |
| | | -------------------------- | |
| (=) Subtotal: | = | $189,270 | |
| (+) Senior Appraised Value: | + | $0 | |
| (+) Non-Senior Appraised Value: | + | $189,270 | |
| | | -------------------------- | |
| (=) Total Appraised Value: | = | $189,270 | |
| (–) Senior Exemption Loss: | – | $0 | |
| (–) Exemption Loss: | – | $0 | |
| | | -------------------------- | |
| (=) Taxable Value: | = | $189,270 | |
Taxing Jurisdiction
| Owner: | NIEMEYER KIMBERLY | | |
| % Ownership: | 100.0000000000% | | |
| Total Value: | $189,270 | | |
| Tax Area: | 323 - 300-6-TM |
| CERFD | CURRENT EXPENSE REFUND 010 | 0.0000000000 | $189,270 | $189,270 | $0.00 | | |
| CURREXP | CURRENT EXPENSE 010 | 1.0175366760 | $189,270 | $189,270 | $192.59 | | |
| HUMNSERV | HUMAN SERVICES 119 | 0.0250000000 | $189,270 | $189,270 | $4.73 | | |
| SLDREL | SOLDIERS RELIEF 121 | 0.0155990005 | $189,270 | $189,270 | $2.95 | | |
| EMERGSER | EMS 147 | 0.3792580840 | $189,270 | $189,270 | $71.78 | | |
| EMSRFD | EMS REFUND 147 | 0.0000000000 | $189,270 | $189,270 | $0.00 | | |
| FD6EXP | FD #6 EXPENSE 693 | 0.6692985746 | $189,270 | $189,270 | $126.68 | | |
| RLBRFD | RURAL LIBRARY REFUND 623 | 0.0000000000 | $189,270 | $189,270 | $0.00 | | |
| RURALLIB | RURAL LIBRARY 623 | 0.3710609029 | $189,270 | $189,270 | $70.23 | | |
| PORTRFD | PORT REFUND 640 | 0.0000000000 | $189,270 | $189,270 | $0.00 | | |
| PORTWWGEN | PORT OF WW 640 | 0.2460186015 | $189,270 | $189,270 | $46.56 | | |
| SD300BOND | SD #300 BOND 783 | 1.8964951620 | $189,270 | $189,270 | $358.95 | | |
| SD300GEN | SD #300 GENERAL 780 | 2.1198322866 | $189,270 | $189,270 | $401.22 | | |
| ST2 | STATE SCHOOL PART 2 600 | 0.8131451643 | $189,270 | $189,270 | $153.90 | | |
| STATESCHL | STATE SCHOOL 600 | 1.5158548041 | $189,270 | $189,270 | $286.91 | | |
| STREFUND | STATE REFUND LEVY 603 | 0.0000000000 | $189,270 | $189,270 | $0.00 | | |
| COROAD | COUNTY ROAD 115 | 1.6549953990 | $189,270 | $189,270 | $313.24 | | |
| CRPRD | COUNTY ROAD REFUND 115 | 0.0000000000 | $189,270 | $189,270 | $0.00 | | |
| | Total Tax Rate: | 10.7240946555 | | | | | |
| | | | | Taxes w/Current Exemptions: | $2,029.74 | | |
| | | | | Taxes w/o Exemptions: | $2,029.74 | | |
Improvement / Building
| Improvement #1: | RESIDENTIAL | State Code: | 11 | 1040.0 sqft | Value: | $159,270 |
| Exterior Wall: | PLYWOOD | Heating/Cooling: | BASEBOARD ELECTRIC | | Number of Bathrooms: | 1 | Number of Bedrooms: | 2 | | Plumbing: | 6 | Roof Covering: | COMP SHINGLE |
|
| | Type | Description | Class CD | Sub Class CD | Year Built | Area |
| | MA | Main Area | 1 | 25 | 1980 | 1040.0 |
| | SI1 | SITE IMPROVEMENT | 1 | 25 | 1980 | 1.0 |
| | RPO | OPEN PORCH W/ROOF | 1 | 25 | 1980 | 200.0 |
Sketch
Property Image
Land
| 1 | RES 1 | Converted: Residential | 0.1148 | 5000.00 | 0.00 | 0.00 | 1.00 | $30,000 | $0 |
Roll Value History
| 2026 | N/A | N/A | N/A | N/A | N/A |
| 2025 | $175,200 | $30,000 | $0 | $205,200 | $205,200 |
| 2024 | $175,200 | $30,000 | $0 | $205,200 | $205,200 |
| 2023 | $159,270 | $30,000 | $0 | $189,270 | $189,270 |
| 2022 | $159,270 | $30,000 | $0 | $189,270 | $189,270 |
| 2021 | $106,180 | $30,000 | $0 | $136,180 | $136,180 |
| 2020 | $115,690 | $15,000 | $0 | $130,690 | $130,690 |
| 2019 | $115,690 | $15,000 | $0 | $130,690 | $130,690 |
| 2018 | $105,170 | $15,000 | $0 | $120,170 | $120,170 |
| 2017 | $75,120 | $15,000 | $0 | $90,120 | $90,120 |
| 2016 | $75,120 | $15,000 | $0 | $90,120 | $90,120 |
| 2015 | $75,120 | $15,000 | $0 | $90,120 | $90,120 |
| 2014 | $62,600 | $15,000 | $0 | $77,600 | $77,600 |
| 2013 | $62,600 | $15,000 | $0 | $77,600 | $77,600 |
| 2012 | $62,600 | $15,000 | $0 | $0 | $0 |
| 2011 | $62,600 | $15,000 | $0 | $0 | $0 |
| 2010 | $62,600 | $15,000 | $0 | $0 | $0 |
| 2009 | $97,300 | $7,500 | $0 | $0 | $0 |
| 2008 | $60,100 | $7,500 | $0 | $0 | $0 |
| 2007 | $60,100 | $7,500 | $0 | $0 | $0 |
Deed and Sales History
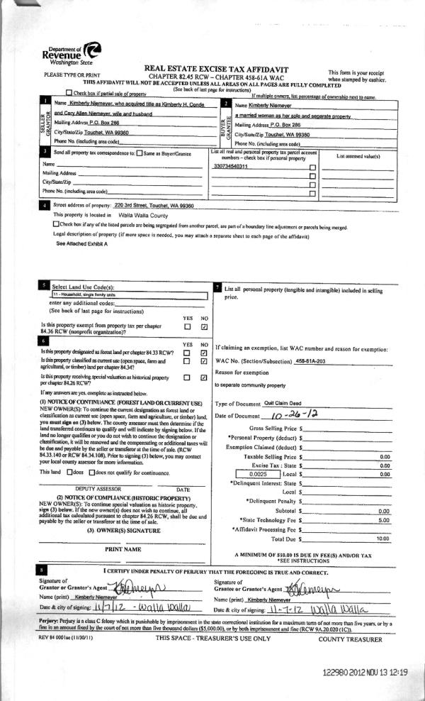
| 1 | 11/13/2012 | QCD | QUIT CLAIM DEED | CONDE, KIMBERLY H (NOW NIEMEYE | NIEMEYER, KIMBERLY | | | $0.00 | 122980 | 2012-09999 |
| 2 | 09/28/2004 | WARRANTY D | WARRANTY DEED | BROCKMAN, CLIFTON M | CONDE, KIMBERLY H | | | $73,500.00 | 105826 | 2004-11201 |
| 3 | 10/13/2003 | QCD | QUIT CLAIM DEED | WISEHART, BOBBY VAN TRESS | BROCKMAN, CLIFTON M | | | | 103237 | 2003-15729 |
| 4 | 01/01/1978 | QCD | QUIT CLAIM DEED | | | | | $800.00 | 0 | 8878-07462 |
Payout Agreement
| No payout information available.. |