Property
Account |
| Property ID: | 34698 | Abbreviated Legal Description: | EAST MILBROOKE PARK LOT 18 BLK 4 |
| Parcel Number: | 360721660418 | Agent Code: | |
| Type: | Real | | |
| Tax Area: | 1 - OL-140-F | Land Use Code | 11 |
| Open Space: | N | DFL | N |
| Historic Property: | N | Remodel Property: | N |
| Multi-Family Redevelopment: | N | | |
| Township: | 7 | Section: | 21 |
| Range: | 36 |
Location |
| Address: | 1617 CAMBRIDGE DR WA 99362 | Mapsco: | |
| Neighborhood: | A-Superior SFR | Map ID: | |
| Neighborhood CD: | 413211 |
Owner |
| Name: | BRADDOCK-MILLS ALISON & DERIK MILLS | Owner ID: | 70603 |
| Mailing Address: | 1617 CAMBRIDGE DR WALLA WALLA, WA 99362 | % Ownership: | 100.0000000000% |
| | | Exemptions: | |
Taxes and Assessment Details
Values
| (+) Improvement Homesite Value: | + | $0 | |
| (+) Improvement Non-Homesite Value: | + | $280,500 | |
| (+) Land Homesite Value: | + | $0 | |
| (+) Land Non-Homesite Value: | + | $49,180 | |
| (+) Curr Use (HS): | + | $0 | $0 |
| (+) Curr Use (NHS): | + | $0 | $0 |
| | | -------------------------- | |
| (=) Market Value: | = | $329,680 | |
| (–) Productivity Loss: | – | $0 | |
| | | -------------------------- | |
| (=) Subtotal: | = | $329,680 | |
| (+) Senior Appraised Value: | + | $0 | |
| (+) Non-Senior Appraised Value: | + | $329,680 | |
| | | -------------------------- | |
| (=) Total Appraised Value: | = | $329,680 | |
| (–) Senior Exemption Loss: | – | $0 | |
| (–) Exemption Loss: | – | $0 | |
| | | -------------------------- | |
| (=) Taxable Value: | = | $329,680 | |
Taxing Jurisdiction
| Owner: | BRADDOCK-MILLS ALISON & DERIK MILLS | | |
| % Ownership: | 100.0000000000% | | |
| Total Value: | $329,680 | | |
| Tax Area: | 1 - OL-140-F |
| CERFD | CURRENT EXPENSE REFUND 010 | 0.0000000000 | $329,680 | $329,680 | $0.00 | | |
| CURREXP | CURRENT EXPENSE 010 | 1.0175366760 | $329,680 | $329,680 | $335.46 | | |
| HUMNSERV | HUMAN SERVICES 119 | 0.0250000000 | $329,680 | $329,680 | $8.24 | | |
| SLDREL | SOLDIERS RELIEF 121 | 0.0155990005 | $329,680 | $329,680 | $5.14 | | |
| EMERGSER | EMS 147 | 0.3792580840 | $329,680 | $329,680 | $125.03 | | |
| EMSRFD | EMS REFUND 147 | 0.0000000000 | $329,680 | $329,680 | $0.00 | | |
| PORTRFD | PORT REFUND 640 | 0.0000000000 | $329,680 | $329,680 | $0.00 | | |
| PORTWWGEN | PORT OF WW 640 | 0.2460186015 | $329,680 | $329,680 | $81.11 | | |
| SD140BOND | SD #140 BOND 764 | 0.8342371393 | $329,680 | $329,680 | $275.03 | | |
| SD140GEN | SD #140 GENERAL 760 | 2.0646500647 | $329,680 | $329,680 | $680.67 | | |
| ST2 | STATE SCHOOL PART 2 600 | 0.8131451643 | $329,680 | $329,680 | $268.08 | | |
| STATESCHL | STATE SCHOOL 600 | 1.5158548041 | $329,680 | $329,680 | $499.75 | | |
| STREFUND | STATE REFUND LEVY 603 | 0.0000000000 | $329,680 | $329,680 | $0.00 | | |
| CWWBOND | C OF WW BOND 643 | 0.2760494372 | $329,680 | $329,680 | $91.01 | | |
| CWWGEN | CITY OF WW 631 | 1.6100204973 | $329,680 | $329,680 | $530.79 | | |
| CWWRFD | CITY OF WALLA WALLA REFUND 631 | 0.0000000000 | $329,680 | $329,680 | $0.00 | | |
| | Total Tax Rate: | 8.7973694689 | | | | | |
| | | | | Taxes w/Current Exemptions: | $2,900.31 | | |
| | | | | Taxes w/o Exemptions: | $2,900.31 | | |
Improvement / Building
| Improvement #1: | RESIDENTIAL | State Code: | 11 | 1120.0 sqft | Value: | $280,500 |
| Exterior Wall: | VINYL | Heating/Cooling: | WARM & COOLED AIR | | Number of Bathrooms: | 1.5 | Number of Bedrooms: | 3 | | Plumbing: | 8 | Roof Covering: | COMP SHINGLE |
|
| | Type | Description | Class CD | Sub Class CD | Year Built | Area |
| | MA | Main Area | 1 | 30 | 1958 | 1120.0 |
| | CPC | COVERED CARPORT/PATIO | 1 | 30 | 0 | 273.0 |
| | CPC | COVERED CARPORT/PATIO | 1 | 30 | 0 | 300.0 |
| | SI1 | SITE IMPROVEMENT | 1 | 30 | 0 | 2.5 |
| | BASE | BASEMENT | 1 | 30 | 1958 | 1120.0 |
| | OPS | OPEN PORCH W/STEPS | 1 | 30 | 1958 | 30.0 |
| | BPF | BASEMENT -PARTITIONED FINISH | 1 | 30 | 1958 | 560.0 |
| | S1F | Single One Story Fireplace | 1 | 30 | 1958 | 1.0 |
Sketch
Property Image
Land
| 1 | RES 1 | Converted: Residential | 0.1411 | 6148.00 | 0.00 | 0.00 | 1.00 | $49,180 | $0 |
Roll Value History
| 2026 | N/A | N/A | N/A | N/A | N/A |
| 2025 | $294,530 | $49,180 | $0 | $343,710 | $343,710 |
| 2024 | $280,500 | $49,180 | $0 | $329,680 | $329,680 |
| 2023 | $280,500 | $49,180 | $0 | $329,680 | $329,680 |
| 2022 | $298,830 | $32,280 | $0 | $331,110 | $331,110 |
| 2021 | $213,450 | $32,280 | $0 | $245,730 | $245,730 |
| 2020 | $185,610 | $32,280 | $0 | $217,890 | $217,890 |
| 2019 | $185,610 | $32,280 | $0 | $217,890 | $217,890 |
| 2018 | $142,770 | $32,280 | $0 | $175,050 | $175,050 |
| 2017 | $135,980 | $32,280 | $0 | $168,260 | $168,260 |
| 2016 | $135,980 | $24,600 | $0 | $160,580 | $160,580 |
| 2015 | $129,500 | $24,600 | $0 | $154,100 | $154,100 |
| 2014 | $129,500 | $24,600 | $0 | $154,100 | $154,100 |
| 2013 | $129,500 | $24,600 | $0 | $154,100 | $154,100 |
| 2012 | $115,500 | $24,600 | $0 | $0 | $0 |
| 2011 | $130,800 | $24,600 | $0 | $0 | $0 |
| 2010 | $123,400 | $24,600 | $0 | $0 | $0 |
| 2009 | $139,800 | $24,600 | $0 | $0 | $0 |
| 2008 | $132,000 | $24,600 | $0 | $0 | $0 |
| 2007 | $132,000 | $24,600 | $0 | $0 | $0 |
Deed and Sales History
| 1 | 11/10/2021 | SWD | STATUTORY WARRANTY DEED | GATELY ANDREW R & JOLEEN J | BRADDOCK-MILLS ALISON & DERIK MILLS | | | $339,000.00 | 142857 | 2021-13491 |
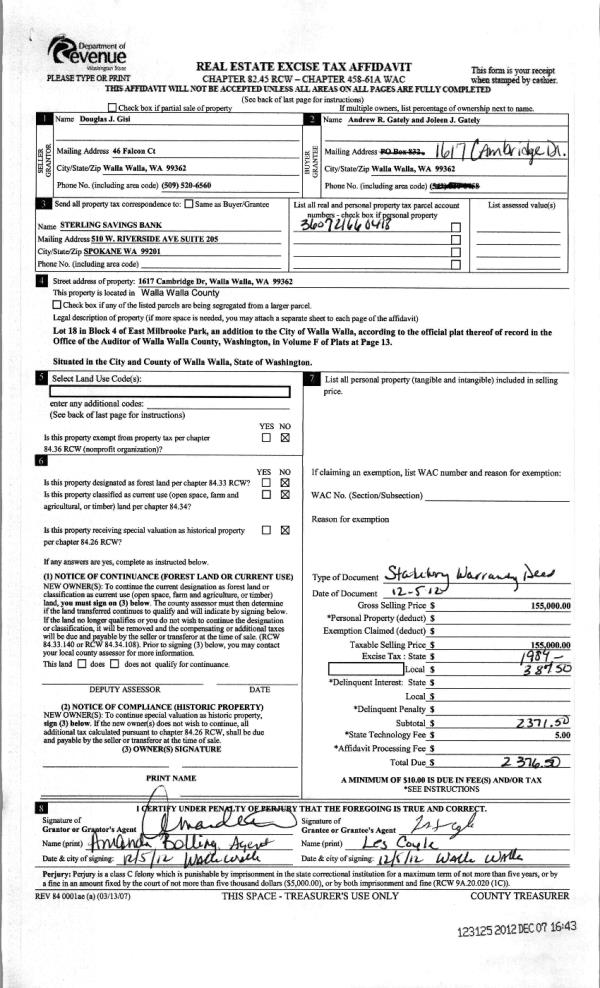
| 2 | 12/07/2012 | WARRANTY D | WARRANTY DEED | GISI, DOUGLAS J | GATELY, ANDREW R & JOLEEN J | | | $155,000.00 | 123125 | 2012-10947 |
| 3 | 07/25/2005 | WARRANTY D | WARRANTY DEED | JOHNSON, EDITH M | GISI, DOUGLAS J | | | $157,000.00 | 108030 | 2005-09004 |
| 4 | 11/07/1991 | WARRANTY D | WARRANTY DEED | | | | | $57,000.00 | 57768 | 1929-107930 |
Payout Agreement
| No payout information available.. |