Property
Account |
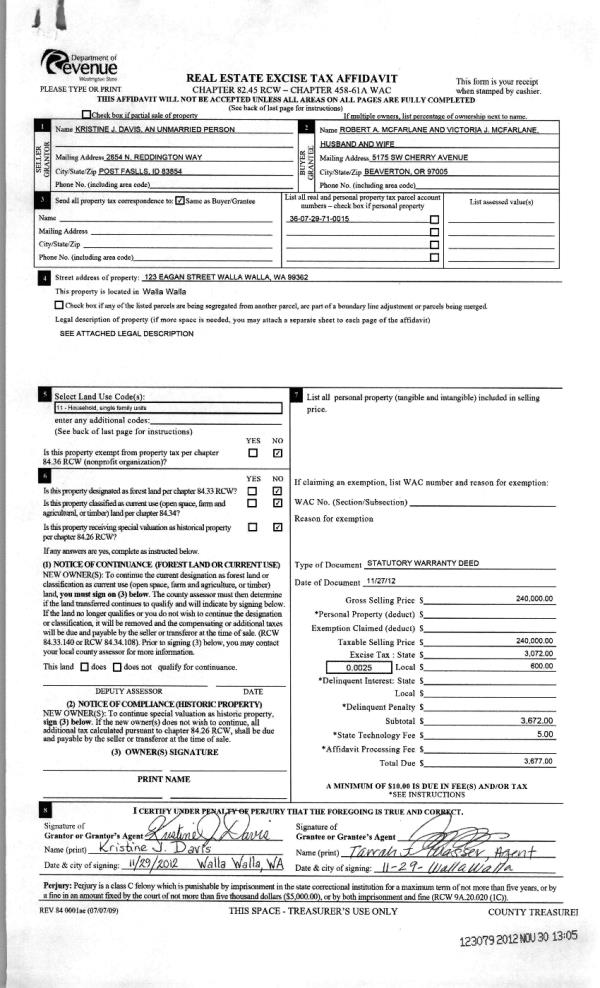
| Property ID: | 34686 | Abbreviated Legal Description: | JONES TAX 4 |
| Parcel Number: | 360729710015 | Agent Code: | |
| Type: | Real | | |
| Tax Area: | 1 - OL-140-F | Land Use Code | 11 |
| Open Space: | N | DFL | N |
| Historic Property: | N | Remodel Property: | N |
| Multi-Family Redevelopment: | N | | |
| Township: | 7 | Section: | 29 |
| Range: | 36 |
Location |
| Address: | 123 EAGAN ST WA 99362 | Mapsco: | |
| Neighborhood: | Fair Inferior Res | Map ID: | |
| Neighborhood CD: | 512111 |
Owner |
| Name: | MC FARLANE ROBERT A & VICTORIA J | Owner ID: | 51960 |
| Mailing Address: | 5175 SW CHERRY AVE BEAVERTON, OR 97005 | % Ownership: | 100.0000000000% |
| | | Exemptions: | |
Taxes and Assessment Details
Values
| (+) Improvement Homesite Value: | + | $0 | |
| (+) Improvement Non-Homesite Value: | + | $365,410 | |
| (+) Land Homesite Value: | + | $0 | |
| (+) Land Non-Homesite Value: | + | $53,140 | |
| (+) Curr Use (HS): | + | $0 | $0 |
| (+) Curr Use (NHS): | + | $0 | $0 |
| | | -------------------------- | |
| (=) Market Value: | = | $418,550 | |
| (–) Productivity Loss: | – | $0 | |
| | | -------------------------- | |
| (=) Subtotal: | = | $418,550 | |
| (+) Senior Appraised Value: | + | $0 | |
| (+) Non-Senior Appraised Value: | + | $418,550 | |
| | | -------------------------- | |
| (=) Total Appraised Value: | = | $418,550 | |
| (–) Senior Exemption Loss: | – | $0 | |
| (–) Exemption Loss: | – | $0 | |
| | | -------------------------- | |
| (=) Taxable Value: | = | $418,550 | |
Taxing Jurisdiction
| Owner: | MC FARLANE ROBERT A & VICTORIA J | | |
| % Ownership: | 100.0000000000% | | |
| Total Value: | $418,550 | | |
| Tax Area: | 1 - OL-140-F |
| CERFD | CURRENT EXPENSE REFUND 010 | 0.0000000000 | $418,550 | $418,550 | $0.00 | | |
| CURREXP | CURRENT EXPENSE 010 | 1.0175366760 | $418,550 | $418,550 | $425.89 | | |
| HUMNSERV | HUMAN SERVICES 119 | 0.0250000000 | $418,550 | $418,550 | $10.46 | | |
| SLDREL | SOLDIERS RELIEF 121 | 0.0155990005 | $418,550 | $418,550 | $6.53 | | |
| EMERGSER | EMS 147 | 0.3792580840 | $418,550 | $418,550 | $158.74 | | |
| EMSRFD | EMS REFUND 147 | 0.0000000000 | $418,550 | $418,550 | $0.00 | | |
| PORTRFD | PORT REFUND 640 | 0.0000000000 | $418,550 | $418,550 | $0.00 | | |
| PORTWWGEN | PORT OF WW 640 | 0.2460186015 | $418,550 | $418,550 | $102.97 | | |
| SD140BOND | SD #140 BOND 764 | 0.8342371393 | $418,550 | $418,550 | $349.17 | | |
| SD140GEN | SD #140 GENERAL 760 | 2.0646500647 | $418,550 | $418,550 | $864.16 | | |
| ST2 | STATE SCHOOL PART 2 600 | 0.8131451643 | $418,550 | $418,550 | $340.34 | | |
| STATESCHL | STATE SCHOOL 600 | 1.5158548041 | $418,550 | $418,550 | $634.46 | | |
| STREFUND | STATE REFUND LEVY 603 | 0.0000000000 | $418,550 | $418,550 | $0.00 | | |
| CWWBOND | C OF WW BOND 643 | 0.2760494372 | $418,550 | $418,550 | $115.54 | | |
| CWWGEN | CITY OF WW 631 | 1.6100204973 | $418,550 | $418,550 | $673.87 | | |
| CWWRFD | CITY OF WALLA WALLA REFUND 631 | 0.0000000000 | $418,550 | $418,550 | $0.00 | | |
| | Total Tax Rate: | 8.7973694689 | | | | | |
| | | | | Taxes w/Current Exemptions: | $3,682.13 | | |
| | | | | Taxes w/o Exemptions: | $3,682.13 | | |
Improvement / Building
| Improvement #1: | RESIDENTIAL | State Code: | 11 | 2449.0 sqft | Value: | $365,410 |
| Exterior Wall: | SIDING | Heating/Cooling: | WARM & COOLED AIR | | Number of Bathrooms: | 2 | Number of Bedrooms: | 4 | | Plumbing: | 9 | Roof Covering: | COMP SHINGLE |
|
| | Type | Description | Class CD | Sub Class CD | Year Built | Area |
| | MA | Main Area | 2 | 40 | 1898 | 2449.0 |
| | UPFL | Upper Floor (included in main area) | 2 | 40 | 1898 | 1199.0 |
| | SI1 | SITE IMPROVEMENT | 2 | 40 | 1898 | 3.5 |
| | BASE | BASEMENT | 2 | 40 | 1898 | 850.0 |
| | S2F | Single 2S Fireplace | 2 | 40 | 1898 | 1.0 |
| | RCD | WOOD DECK W/ROOF, CEILED | 2 | 40 | 1898 | 96.0 |
| | RCD | WOOD DECK W/ROOF, CEILED | 2 | 40 | 1898 | 495.0 |
| | DTG | Detached Garage | 2 | 40 | 1898 | 624.0 |
Sketch
Property Image
Land
| 1 | RES 1 | Converted: Residential | 0.2824 | 12300.00 | 0.00 | 0.00 | 1.00 | $53,140 | $0 |
Roll Value History
| 2026 | N/A | N/A | N/A | N/A | N/A |
| 2025 | $341,750 | $78,110 | $0 | $419,860 | $419,860 |
| 2024 | $341,750 | $78,110 | $0 | $419,860 | $419,860 |
| 2023 | $365,410 | $53,140 | $0 | $418,550 | $418,550 |
| 2022 | $317,750 | $53,140 | $0 | $370,890 | $370,890 |
| 2021 | $317,750 | $53,140 | $0 | $370,890 | $370,890 |
| 2020 | $288,860 | $53,140 | $0 | $342,000 | $342,000 |
| 2019 | $206,310 | $53,140 | $0 | $259,450 | $259,450 |
| 2018 | $206,310 | $53,140 | $0 | $259,450 | $259,450 |
| 2017 | $135,660 | $49,100 | $0 | $184,760 | $184,760 |
| 2016 | $129,200 | $49,100 | $0 | $178,300 | $178,300 |
| 2015 | $129,200 | $49,100 | $0 | $178,300 | $178,300 |
| 2014 | $129,200 | $49,100 | $0 | $178,300 | $178,300 |
| 2013 | $129,200 | $49,100 | $0 | $178,300 | $178,300 |
| 2012 | $266,400 | $49,100 | $0 | $0 | $0 |
| 2011 | $266,400 | $49,100 | $0 | $0 | $0 |
| 2010 | $328,100 | $49,100 | $0 | $0 | $0 |
| 2009 | $183,000 | $49,100 | $0 | $0 | $0 |
| 2008 | $195,200 | $49,100 | $0 | $0 | $0 |
| 2007 | $145,000 | $20,700 | $0 | $0 | $0 |
Deed and Sales History
| 1 | 11/30/2012 | WARRANTY D | WARRANTY DEED | DAVIS, KRISTINE J | MC FARLANE, ROBERT A & VICTORI | | | $240,000.00 | 123079 | 2012-10614 |
| 2 | 06/09/2009 | WARRANTY D | WARRANTY DEED | KELLER, TERRENCE E & DEBBIE J | DAVIS, CRAIG H & KRISTINE J | | | $383,000.00 | 116855 | 2009-05803 |
| 3 | 08/15/2007 | WARRANTY D | WARRANTY DEED | BAYER, AILSIE M | KELLER, TERRENCE E & DEBBIE J | | | $239,900.00 | 113517 | 2007-09533 |
| 4 | 01/01/1952 | WARRANTY D | WARRANTY DEED | | | | | $0.00 | 0 | 2600-353895 |
Payout Agreement
| No payout information available.. |