Property
Account |
| Property ID: | 34662 | Abbreviated Legal Description: | 28-7-36 TAX 150 |
| Parcel Number: | 360728220058 | Agent Code: | |
| Type: | Real | | |
| Tax Area: | 1 - OL-140-F | Land Use Code | 11 |
| Open Space: | N | DFL | N |
| Historic Property: | N | Remodel Property: | N |
| Multi-Family Redevelopment: | N | | |
| Township: | 7 | Section: | 28 |
| Range: | 36 |
Location |
| Address: | 536 CRAIG ST WA 99362 | Mapsco: | |
| Neighborhood: | G Res | Map ID: | |
| Neighborhood CD: | 614011 |
Owner |
| Name: | MANGAN JOHN W & ELIZABETH A BARBRE | Owner ID: | 71009 |
| Mailing Address: | 1944 GLENVIEW DR LAS VEGAS, NV 89134 | % Ownership: | 100.0000000000% |
| | | Exemptions: | |
Taxes and Assessment Details
Property Tax Information as of
02/21/2026
Click on "Statement Details" to expand or collapse a tax statement.
* Please enter a valid date ** Please enter a valid date *
Statement Details |
| | TOTAL: | $0.00 | $0.00 | $0.00 | $0.00 | $0.00 | $0.00 |
|
| | $0.00 | $0.00 | $0.00 | $0.00 | $0.00 | $0.00 |
Values
| (+) Improvement Homesite Value: | + | $0 | |
| (+) Improvement Non-Homesite Value: | + | $274,380 | |
| (+) Land Homesite Value: | + | $0 | |
| (+) Land Non-Homesite Value: | + | $87,120 | |
| (+) Curr Use (HS): | + | $0 | $0 |
| (+) Curr Use (NHS): | + | $0 | $0 |
| | | -------------------------- | |
| (=) Market Value: | = | $361,500 | |
| (–) Productivity Loss: | – | $0 | |
| | | -------------------------- | |
| (=) Subtotal: | = | $361,500 | |
| (+) Senior Appraised Value: | + | $0 | |
| (+) Non-Senior Appraised Value: | + | $361,500 | |
| | | -------------------------- | |
| (=) Total Appraised Value: | = | $361,500 | |
| (–) Senior Exemption Loss: | – | $0 | |
| (–) Exemption Loss: | – | $0 | |
| | | -------------------------- | |
| (=) Taxable Value: | = | $361,500 | |
Taxing Jurisdiction
| Owner: | MANGAN JOHN W & ELIZABETH A BARBRE | | |
| % Ownership: | 100.0000000000% | | |
| Total Value: | $361,500 | | |
| Tax Area: | 1 - OL-140-F |
| CERFD | CURRENT EXPENSE REFUND 010 | 0.0000000000 | $361,500 | $361,500 | $0.00 | | |
| CURREXP | CURRENT EXPENSE 010 | 1.0175366760 | $361,500 | $361,500 | $367.84 | | |
| HUMNSERV | HUMAN SERVICES 119 | 0.0250000000 | $361,500 | $361,500 | $9.04 | | |
| SLDREL | SOLDIERS RELIEF 121 | 0.0155990005 | $361,500 | $361,500 | $5.64 | | |
| EMERGSER | EMS 147 | 0.3792580840 | $361,500 | $361,500 | $137.10 | | |
| EMSRFD | EMS REFUND 147 | 0.0000000000 | $361,500 | $361,500 | $0.00 | | |
| PORTRFD | PORT REFUND 640 | 0.0000000000 | $361,500 | $361,500 | $0.00 | | |
| PORTWWGEN | PORT OF WW 640 | 0.2460186015 | $361,500 | $361,500 | $88.94 | | |
| SD140BOND | SD #140 BOND 764 | 0.8342371393 | $361,500 | $361,500 | $301.58 | | |
| SD140GEN | SD #140 GENERAL 760 | 2.0646500647 | $361,500 | $361,500 | $746.37 | | |
| ST2 | STATE SCHOOL PART 2 600 | 0.8131451643 | $361,500 | $361,500 | $293.95 | | |
| STATESCHL | STATE SCHOOL 600 | 1.5158548041 | $361,500 | $361,500 | $547.98 | | |
| STREFUND | STATE REFUND LEVY 603 | 0.0000000000 | $361,500 | $361,500 | $0.00 | | |
| CWWBOND | C OF WW BOND 643 | 0.2760494372 | $361,500 | $361,500 | $99.79 | | |
| CWWGEN | CITY OF WW 631 | 1.6100204973 | $361,500 | $361,500 | $582.02 | | |
| CWWRFD | CITY OF WALLA WALLA REFUND 631 | 0.0000000000 | $361,500 | $361,500 | $0.00 | | |
| | Total Tax Rate: | 8.7973694689 | | | | | |
| | | | | Taxes w/Current Exemptions: | $3,180.25 | | |
| | | | | Taxes w/o Exemptions: | $3,180.25 | | |
Improvement / Building
| Improvement #1: | RESIDENTIAL | State Code: | 11 | 792.0 sqft | Value: | $274,380 |
| Exterior Wall: | STUCCO | Heating/Cooling: | WARM & COOLED AIR | | Number of Bathrooms: | 1 | Number of Bedrooms: | 2 | | Plumbing: | 8 | Roof Covering: | COMP SHINGLE |
|
| | Type | Description | Class CD | Sub Class CD | Year Built | Area |
| | MA | Main Area | 1 | 30 | 1938 | 792.0 |
| | SI1 | SITE IMPROVEMENT | 1 | 30 | 1938 | 2.0 |
| | BASE | BASEMENT | 1 | 30 | 1938 | 792.0 |
| | BPF | BASEMENT -PARTITIONED FINISH | 1 | 30 | 1938 | 792.0 |
| | S1F | Single One Story Fireplace | 1 | 30 | 1938 | 1.0 |
| | PRC | PORCH W STEPS, ROOF,CEILED | 1 | 30 | 1938 | 18.0 |
| | SWP | Solid Wall Porch | 1 | 30 | 1938 | 119.0 |
| | DTG | Detached Garage | 1 | 30 | 1938 | 400.0 |
Sketch
Property Image
Land
| 1 | RES 1 | Converted: Residential | 0.2000 | 8712.00 | 0.00 | 0.00 | 1.00 | $87,120 | $0 |
Roll Value History
| 2026 | N/A | N/A | N/A | N/A | N/A |
| 2025 | $261,120 | $104,540 | $0 | $365,660 | $365,660 |
| 2024 | $274,380 | $87,120 | $0 | $361,500 | $361,500 |
| 2023 | $274,380 | $87,120 | $0 | $361,500 | $361,500 |
| 2022 | $274,380 | $71,870 | $0 | $346,250 | $346,250 |
| 2021 | $195,980 | $71,870 | $0 | $267,850 | $267,850 |
| 2020 | $163,320 | $71,870 | $0 | $235,190 | $235,190 |
| 2019 | $163,320 | $71,870 | $0 | $235,190 | $235,190 |
| 2018 | $159,050 | $46,000 | $0 | $205,050 | $205,050 |
| 2017 | $159,050 | $46,000 | $0 | $205,050 | $205,050 |
| 2016 | $138,300 | $46,000 | $0 | $184,300 | $184,300 |
| 2015 | $138,300 | $46,000 | $0 | $184,300 | $184,300 |
| 2014 | $138,300 | $46,000 | $0 | $184,300 | $184,300 |
| 2013 | $138,300 | $46,000 | $0 | $184,300 | $184,300 |
| 2012 | $83,900 | $46,000 | $0 | $0 | $0 |
| 2011 | $83,900 | $46,000 | $0 | $0 | $0 |
| 2010 | $77,700 | $46,000 | $0 | $0 | $0 |
| 2009 | $91,400 | $46,000 | $0 | $0 | $0 |
| 2008 | $91,400 | $46,000 | $0 | $0 | $0 |
| 2007 | $62,200 | $23,500 | $0 | $0 | $0 |
Deed and Sales History
| 1 | 01/20/2026 | WARRANTY D | WARRANTY DEED | MANGAN JOHN W & ELIZABETH A BARBRE | BARBRE MANGAN TRUST | | | | 150659 | 2026-00311 |
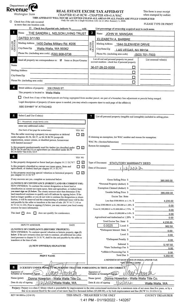
| 2 | 01/19/2022 | SWD | STATUTORY WARRANTY DEED | SANDRA L NELSON LIVING TRUST | MANGAN JOHN W & ELIZABETH A BARBRE | | | $385,000.00 | 143267 | 2022-00590 |
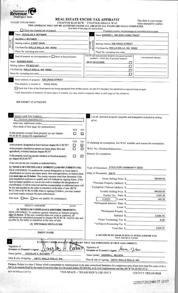
| 3 | 05/07/2013 | WARRANTY D | WARRANTY DEED | BOTIMER, DOUGLAS A & GLORIA | NELSON, SANDRA L | | | $199,000.00 | 123917 | 2013-04545 |
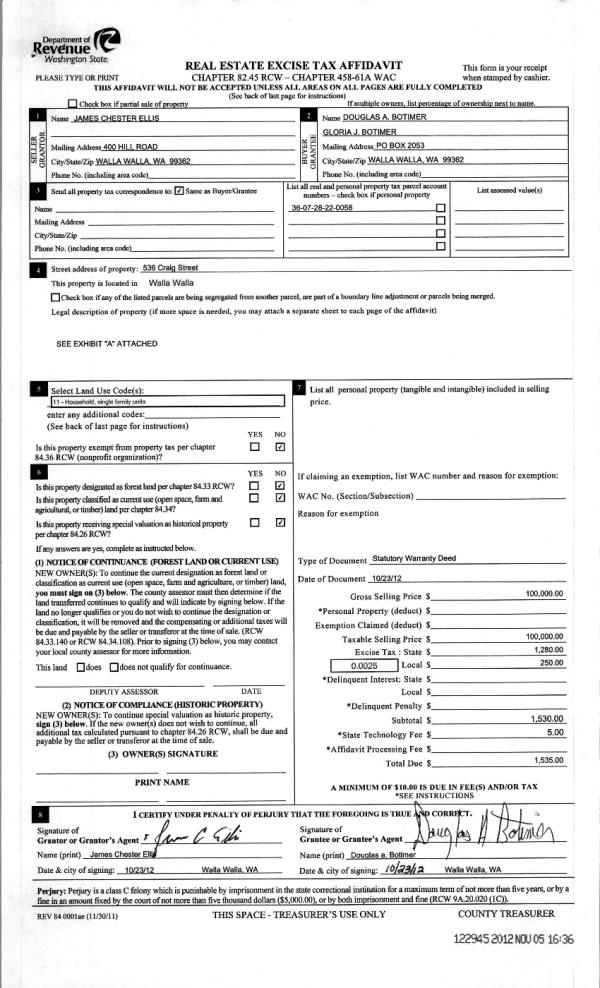
| 4 | 11/05/2012 | WARRANTY D | WARRANTY DEED | ELLIS, JAMES CHESTER | BOTIMER, DOUGLAS A & GLORIA | | | $100,000.00 | 122945 | 2012-09823 |
| 5 | 10/19/1976 | WARRANTY D | WARRANTY DEED | | | | | $0.00 | 65817 | 2380-312323 |
Payout Agreement
| No payout information available.. |