Property
Account |
| Property ID: | 34660 | Abbreviated Legal Description: | PARK VALE ADDN PARCEL #10 (LESS STRIP ON NW) |
| Parcel Number: | 360728790010 | Agent Code: | |
| Type: | Real | | |
| Tax Area: | 1 - OL-140-F | Land Use Code | 11 |
| Open Space: | N | DFL | N |
| Historic Property: | N | Remodel Property: | N |
| Multi-Family Redevelopment: | N | | |
| Township: | 7 | Section: | 28 |
| Range: | 36 |
Location |
| Address: | 1832 PARKVIEW PL WA 99362 | Mapsco: | |
| Neighborhood: | A Res | Map ID: | |
| Neighborhood CD: | 613011 |
Owner |
| Name: | PARSONS DONALD M & ALLISON M | Owner ID: | 9446 |
| Mailing Address: | 1832 PARKVIEW PL WALLA WALLA, WA 99362 | % Ownership: | 100.0000000000% |
| | | Exemptions: | |
Taxes and Assessment Details
Property Tax Information as of
02/21/2026
Click on "Statement Details" to expand or collapse a tax statement.
* Please enter a valid date ** Please enter a valid date *
Statement Details |
| | TOTAL: | $0.00 | $0.00 | $0.00 | $0.00 | $0.00 | $0.00 |
|
| | $0.00 | $0.00 | $0.00 | $0.00 | $0.00 | $0.00 |
Values
| (+) Improvement Homesite Value: | + | $0 | |
| (+) Improvement Non-Homesite Value: | + | $384,490 | |
| (+) Land Homesite Value: | + | $0 | |
| (+) Land Non-Homesite Value: | + | $92,070 | |
| (+) Curr Use (HS): | + | $0 | $0 |
| (+) Curr Use (NHS): | + | $0 | $0 |
| | | -------------------------- | |
| (=) Market Value: | = | $476,560 | |
| (–) Productivity Loss: | – | $0 | |
| | | -------------------------- | |
| (=) Subtotal: | = | $476,560 | |
| (+) Senior Appraised Value: | + | $0 | |
| (+) Non-Senior Appraised Value: | + | $476,560 | |
| | | -------------------------- | |
| (=) Total Appraised Value: | = | $476,560 | |
| (–) Senior Exemption Loss: | – | $0 | |
| (–) Exemption Loss: | – | $0 | |
| | | -------------------------- | |
| (=) Taxable Value: | = | $476,560 | |
Taxing Jurisdiction
| Owner: | PARSONS DONALD M & ALLISON M | | |
| % Ownership: | 100.0000000000% | | |
| Total Value: | $476,560 | | |
| Tax Area: | 1 - OL-140-F |
| CERFD | CURRENT EXPENSE REFUND 010 | 0.0000000000 | $476,560 | $476,560 | $0.00 | | |
| CURREXP | CURRENT EXPENSE 010 | 1.0175366760 | $476,560 | $476,560 | $484.92 | | |
| HUMNSERV | HUMAN SERVICES 119 | 0.0250000000 | $476,560 | $476,560 | $11.91 | | |
| SLDREL | SOLDIERS RELIEF 121 | 0.0155990005 | $476,560 | $476,560 | $7.43 | | |
| EMERGSER | EMS 147 | 0.3792580840 | $476,560 | $476,560 | $180.74 | | |
| EMSRFD | EMS REFUND 147 | 0.0000000000 | $476,560 | $476,560 | $0.00 | | |
| PORTRFD | PORT REFUND 640 | 0.0000000000 | $476,560 | $476,560 | $0.00 | | |
| PORTWWGEN | PORT OF WW 640 | 0.2460186015 | $476,560 | $476,560 | $117.24 | | |
| SD140BOND | SD #140 BOND 764 | 0.8342371393 | $476,560 | $476,560 | $397.56 | | |
| SD140GEN | SD #140 GENERAL 760 | 2.0646500647 | $476,560 | $476,560 | $983.93 | | |
| ST2 | STATE SCHOOL PART 2 600 | 0.8131451643 | $476,560 | $476,560 | $387.51 | | |
| STATESCHL | STATE SCHOOL 600 | 1.5158548041 | $476,560 | $476,560 | $722.40 | | |
| STREFUND | STATE REFUND LEVY 603 | 0.0000000000 | $476,560 | $476,560 | $0.00 | | |
| CWWBOND | C OF WW BOND 643 | 0.2760494372 | $476,560 | $476,560 | $131.55 | | |
| CWWGEN | CITY OF WW 631 | 1.6100204973 | $476,560 | $476,560 | $767.27 | | |
| CWWRFD | CITY OF WALLA WALLA REFUND 631 | 0.0000000000 | $476,560 | $476,560 | $0.00 | | |
| | Total Tax Rate: | 8.7973694689 | | | | | |
| | | | | Taxes w/Current Exemptions: | $4,192.46 | | |
| | | | | Taxes w/o Exemptions: | $4,192.46 | | |
Improvement / Building
| Improvement #1: | RESIDENTIAL | State Code: | 11 | 1235.0 sqft | Value: | $384,490 |
| Exterior Wall: | PLYWOOD | Heating/Cooling: | WARM & COOLED AIR | | Number of Bathrooms: | 3 | Number of Bedrooms: | 4 | | Plumbing: | 12 | Roof Covering: | COMP SHINGLE |
|
| | Type | Description | Class CD | Sub Class CD | Year Built | Area |
| | MA | Main Area | 11 | 40 | 1977 | 1235.0 |
| | RPC | OPEN PORCH W/ROOF , CEILED | 11 | 40 | 1977 | 122.0 |
| | SI1 | SITE IMPROVEMENT | 11 | 40 | 1977 | 3.5 |
| | SMP | SWIMMING POOL | 11 | 40 | 1977 | 1.0 |
| | BASE | BASEMENT | 11 | 40 | 1977 | 1212.0 |
| | BPF | BASEMENT -PARTITIONED FINISH | 11 | 40 | 1977 | 1212.0 |
| | ATG | Attached Garage | 11 | 40 | 1977 | 528.0 |
| | WOD | Wood Deck | 11 | 40 | 1977 | 312.0 |
| | D2F | Double 2 Story Fireplace | 11 | 40 | 1977 | 1.0 |
| | TOOL | TOOL SHED | 11 | 40 | 1977 | 200.0 |
| | WDR | WOOD DECK W/ROOF | 11 | 40 | 1977 | 132.0 |
Sketch
Property Image
Land
| 1 | RES 1 | Converted: Residential | 0.2932 | 12770.00 | 0.00 | 0.00 | 1.00 | $92,070 | $0 |
Roll Value History
| 2026 | N/A | N/A | N/A | N/A | N/A |
| 2025 | $331,750 | $144,680 | $0 | $476,430 | $476,430 |
| 2024 | $384,490 | $92,070 | $0 | $476,560 | $476,560 |
| 2023 | $384,490 | $92,070 | $0 | $476,560 | $476,560 |
| 2022 | $366,180 | $73,940 | $0 | $440,120 | $440,120 |
| 2021 | $366,180 | $73,940 | $0 | $440,120 | $440,120 |
| 2020 | $281,680 | $73,940 | $0 | $355,620 | $355,620 |
| 2019 | $281,680 | $73,940 | $0 | $355,620 | $355,620 |
| 2018 | $238,140 | $49,500 | $0 | $287,640 | $287,640 |
| 2017 | $238,140 | $49,500 | $0 | $287,640 | $287,640 |
| 2016 | $226,800 | $49,500 | $0 | $276,300 | $276,300 |
| 2015 | $226,800 | $49,500 | $0 | $276,300 | $276,300 |
| 2014 | $226,800 | $49,500 | $0 | $276,300 | $276,300 |
| 2013 | $226,800 | $49,500 | $0 | $276,300 | $276,300 |
| 2012 | $190,400 | $49,500 | $0 | $0 | $0 |
| 2011 | $190,400 | $49,500 | $0 | $0 | $0 |
| 2010 | $190,400 | $49,500 | $0 | $0 | $0 |
| 2009 | $217,000 | $49,500 | $0 | $0 | $0 |
| 2008 | $217,000 | $49,500 | $0 | $0 | $0 |
| 2007 | $156,500 | $27,000 | $0 | $0 | $0 |
Deed and Sales History
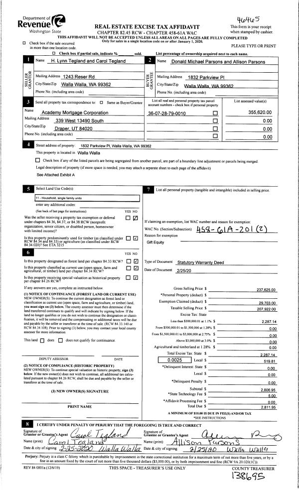
| 1 | 02/25/2020 | SWD | STATUTORY WARRANTY DEED | TEGLAND H LYNN & CAROL | PARSONS DONALD M & ALLISON M | | | $207,922.00 | 138695 | 2020-01770 |
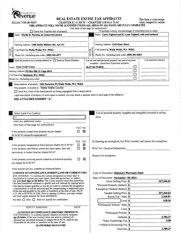
| 2 | 12/01/2014 | SWD | STATUTORY WARRANTY DEED | PARSONS PHYLLIS K | TEGLAND H LYNN & CAROL | | | $247,345.00 | 127036 | 2014-08697 |
| 3 | 11/07/2012 | WARRANTY D | WARRANTY DEED | BARKER, SAMUEL E & LINDA M | PARSONS, PHYLLIS K | | | $285,500.00 | 122955 | 2012-09887 |
| 4 | 12/19/1977 | WARRANTY D | WARRANTY DEED | | | | | $55,800.00 | 0 | 7305-71752 |
Payout Agreement
| No payout information available.. |