Property
Account |
| Property ID: | 34610 | Abbreviated Legal Description: | CP #1 LOT 10 BLK 20 |
| Parcel Number: | 350736512010 | Agent Code: | |
| Type: | Real | | |
| Tax Area: | 75 - CP 250 | Land Use Code | 11 |
| Open Space: | N | DFL | N |
| Historic Property: | N | Remodel Property: | N |
| Multi-Family Redevelopment: | N | | |
| Township: | 7 | Section: | 36 |
| Range: | 35 |
Location |
| Address: | 129 SE 4TH ST COLLEGE PLACE, WA 99324 | Mapsco: | |
| Neighborhood: | A SFR | Map ID: | |
| Neighborhood CD: | 113011 |
Owner |
| Name: | EWELL ANGELIA MARIE | Owner ID: | 72315 |
| Mailing Address: | 129 SE 4TH ST COLLEGE PLACE, WA 99324 | % Ownership: | 100.0000000000% |
| | | Exemptions: | |
Taxes and Assessment Details
Values
| (+) Improvement Homesite Value: | + | $0 | |
| (+) Improvement Non-Homesite Value: | + | $218,360 | |
| (+) Land Homesite Value: | + | $0 | |
| (+) Land Non-Homesite Value: | + | $50,630 | |
| (+) Curr Use (HS): | + | $0 | $0 |
| (+) Curr Use (NHS): | + | $0 | $0 |
| | | -------------------------- | |
| (=) Market Value: | = | $268,990 | |
| (–) Productivity Loss: | – | $0 | |
| | | -------------------------- | |
| (=) Subtotal: | = | $268,990 | |
| (+) Senior Appraised Value: | + | $0 | |
| (+) Non-Senior Appraised Value: | + | $268,990 | |
| | | -------------------------- | |
| (=) Total Appraised Value: | = | $268,990 | |
| (–) Senior Exemption Loss: | – | $0 | |
| (–) Exemption Loss: | – | $0 | |
| | | -------------------------- | |
| (=) Taxable Value: | = | $268,990 | |
Taxing Jurisdiction
| Owner: | EWELL ANGELIA MARIE | | |
| % Ownership: | 100.0000000000% | | |
| Total Value: | $268,990 | | |
| Tax Area: | 75 - CP 250 |
| CERFD | CURRENT EXPENSE REFUND 010 | 0.0000000000 | $268,990 | $268,990 | $0.00 | | |
| CURREXP | CURRENT EXPENSE 010 | 1.0175366760 | $268,990 | $268,990 | $273.71 | | |
| HUMNSERV | HUMAN SERVICES 119 | 0.0250000000 | $268,990 | $268,990 | $6.72 | | |
| SLDREL | SOLDIERS RELIEF 121 | 0.0155990005 | $268,990 | $268,990 | $4.20 | | |
| COLLPLBOND | C OF CP BOND 644 | 0.4374241808 | $268,990 | $268,990 | $117.66 | | |
| COLLPLGEN | CITY OF CP 632 | 1.4453819216 | $268,990 | $268,990 | $388.79 | | |
| EMERGSER | EMS 147 | 0.3792580840 | $268,990 | $268,990 | $102.02 | | |
| EMSRFD | EMS REFUND 147 | 0.0000000000 | $268,990 | $268,990 | $0.00 | | |
| RURALLIB | RURAL LIBRARY 623 | 0.3710609029 | $268,990 | $268,990 | $99.81 | | |
| PORTRFD | PORT REFUND 640 | 0.0000000000 | $268,990 | $268,990 | $0.00 | | |
| PORTWWGEN | PORT OF WW 640 | 0.2460186015 | $268,990 | $268,990 | $66.18 | | |
| SD250BOND | SD #250 BOND 773 | 1.4560608159 | $268,990 | $268,990 | $391.67 | | |
| SD250GEN | SD #250 GENERAL 770 | 2.3880724087 | $268,990 | $268,990 | $642.37 | | |
| ST2 | STATE SCHOOL PART 2 600 | 0.8131451643 | $268,990 | $268,990 | $218.73 | | |
| STATESCHL | STATE SCHOOL 600 | 1.5158548041 | $268,990 | $268,990 | $407.75 | | |
| STREFUND | STATE REFUND LEVY 603 | 0.0000000000 | $268,990 | $268,990 | $0.00 | | |
| | Total Tax Rate: | 10.1104125603 | | | | | |
| | | | | Taxes w/Current Exemptions: | $2,719.61 | | |
| | | | | Taxes w/o Exemptions: | $2,719.61 | | |
Improvement / Building
| Improvement #1: | RESIDENTIAL | State Code: | 11 | 1272.0 sqft | Value: | $218,360 |
| Exterior Wall: | PLYWOOD | Heating/Cooling: | WARM & COOLED AIR | | Number of Bathrooms: | 1 | Number of Bedrooms: | 2 | | Plumbing: | 6 | Roof Covering: | COMP SHINGLE |
|
| | Type | Description | Class CD | Sub Class CD | Year Built | Area |
| | MA | Main Area | 1 | 25 | 1961 | 1272.0 |
| | SI1 | SITE IMPROVEMENT | 1 | 25 | 1961 | 1.0 |
| | BASE | BASEMENT | 1 | 25 | 1961 | 288.0 |
| | BPF | BASEMENT -PARTITIONED FINISH | 1 | 25 | 1961 | 288.0 |
| | CPC | COVERED CARPORT/PATIO | 1 | 25 | 1961 | 70.0 |
| | CPC | COVERED CARPORT/PATIO | 1 | 25 | 1961 | 190.0 |
| | DTG | Detached Garage | 1 | 25 | 1961 | 528.0 |
Sketch
Property Image
Land
| 1 | RES 1 | Converted: Residential | 0.1722 | 7500.00 | 0.00 | 0.00 | 1.00 | $50,630 | $0 |
Roll Value History
| 2026 | N/A | N/A | N/A | N/A | N/A |
| 2025 | $207,440 | $75,000 | $0 | $282,440 | $282,440 |
| 2024 | $218,360 | $50,630 | $0 | $268,990 | $268,990 |
| 2023 | $218,360 | $50,630 | $0 | $268,990 | $268,990 |
| 2022 | $218,360 | $50,630 | $0 | $268,990 | $268,990 |
| 2021 | $189,880 | $50,630 | $0 | $240,510 | $240,510 |
| 2020 | $108,500 | $50,630 | $0 | $159,130 | $159,130 |
| 2019 | $114,130 | $45,000 | $0 | $159,130 | $159,130 |
| 2018 | $95,110 | $45,000 | $0 | $140,110 | $140,110 |
| 2017 | $86,460 | $45,000 | $0 | $131,460 | $131,460 |
| 2016 | $78,600 | $45,000 | $0 | $123,600 | $123,600 |
| 2015 | $78,600 | $45,000 | $0 | $123,600 | $123,600 |
| 2014 | $78,600 | $45,000 | $0 | $123,600 | $123,600 |
| 2013 | $78,600 | $45,000 | $0 | $123,600 | $123,600 |
| 2012 | $78,600 | $45,000 | $0 | $0 | $0 |
| 2011 | $78,600 | $45,000 | $0 | $0 | $0 |
| 2010 | $85,100 | $45,000 | $0 | $0 | $0 |
| 2009 | $99,600 | $45,000 | $0 | $0 | $0 |
| 2008 | $59,300 | $22,500 | $0 | $0 | $0 |
| 2007 | $59,300 | $22,500 | $0 | $0 | $0 |
Deed and Sales History
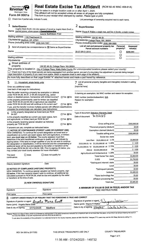
| 1 | 07/24/2025 | SWD | STATUTORY WARRANTY DEED | EWELL ANGELIA MARIE | WALKER WAYNE R | | | $350,000.00 | 149732 | 2025-04277 |
| 2 | 08/26/2022 | QCD | QUIT CLAIM DEED | EWELL ANGELIA MARIE & TONI DEON COBBS | EWELL ANGELIA MARIE | | | $0.00 | 144592 | 2022-07294 |
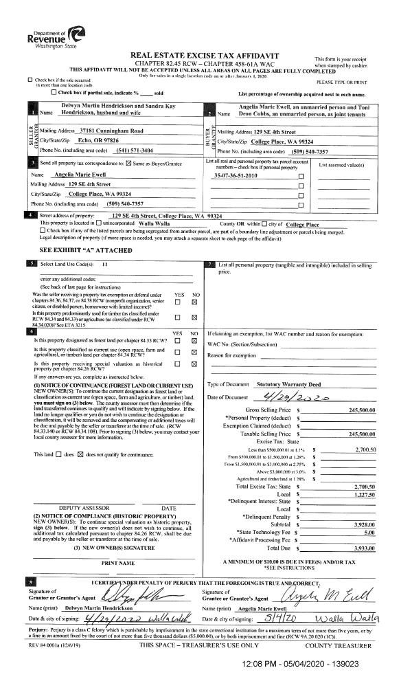
| 3 | 05/04/2020 | SWD | STATUTORY WARRANTY DEED | HENDRICKSON DELWYN MARTIN & SANDRA KAY | EWELL ANGELIA MARIE & TONI DEON COBBS | | | $245,500.00 | 139023 | 2020-03817 |
| 4 | 10/23/2012 | WARRANTY D | WARRANTY DEED | RANDALL, SHELBY L | HENDRICKSON, DELWYN MARTIN & S | | | $130,000.00 | 122862 | 2012-09349 |
| 5 | 09/28/2009 | WARRANTY D | WARRANTY DEED | OELLRICH, LOIS | RANDALL, SHELBY L | | | $125,000.00 | 117398 | 2009-09691 |
| 6 | 06/01/2006 | WARRANTY D | WARRANTY DEED | MUNDEN, JERALD R & KAY F | OELLRICH, LOIS | | | $149,500.00 | 110425 | 2006-06368 |
| 7 | 06/18/1999 | WARRANTY D | WARRANTY DEED | | | | | $65,900.00 | 92990 | 2859-907236 |
Payout Agreement
| No payout information available.. |