Property
Account |
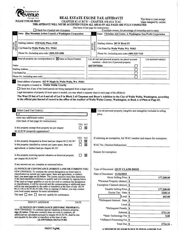
| Property ID: | 34563 | Abbreviated Legal Description: | CHAPMAN & BOYER LOT 5 & W 29' OF LOT 4 BLK 2 |
| Parcel Number: | 360729570204 | Agent Code: | |
| Type: | Real | | |
| Tax Area: | 1 - OL-140-F | Land Use Code | 67 |
| Open Space: | N | DFL | N |
| Historic Property: | N | Remodel Property: | N |
| Multi-Family Redevelopment: | N | | |
| Township: | 7 | Section: | 29 |
| Range: | 36 |
Location |
| Address: | 422 W MAPLE ST WA 99362 | Mapsco: | |
| Neighborhood: | Fair Res | Map ID: | |
| Neighborhood CD: | 612011 |
Owner |
| Name: | CHRISTIAN AID CENTER | Owner ID: | 47721 |
| Mailing Address: | PO BOX 56 WALLA WALLA, WA 99362 | % Ownership: | 100.0000000000% |
| | | Exemptions: | EX |
Taxes and Assessment Details
Property Tax Information as of
02/21/2026
Click on "Statement Details" to expand or collapse a tax statement.
* Please enter a valid date ** Please enter a valid date *
Statement Details |
| | TOTAL: | $0.00 | $0.00 | $0.00 | $0.00 | $0.00 | $0.00 |
|
| | $0.00 | $0.00 | $0.00 | $0.00 | $0.00 | $0.00 |
Values
| (+) Improvement Homesite Value: | + | $0 | |
| (+) Improvement Non-Homesite Value: | + | $223,370 | |
| (+) Land Homesite Value: | + | $0 | |
| (+) Land Non-Homesite Value: | + | $63,200 | |
| (+) Curr Use (HS): | + | $0 | $0 |
| (+) Curr Use (NHS): | + | $0 | $0 |
| | | -------------------------- | |
| (=) Market Value: | = | $286,570 | |
| (–) Productivity Loss: | – | $0 | |
| | | -------------------------- | |
| (=) Subtotal: | = | $286,570 | |
| (+) Senior Appraised Value: | + | $0 | |
| (+) Non-Senior Appraised Value: | + | $286,570 | |
| | | -------------------------- | |
| (=) Total Appraised Value: | = | $286,570 | |
| (–) Senior Exemption Loss: | – | $0 | |
| (–) Exemption Loss: | – | $286,570 | |
| | | -------------------------- | |
| (=) Taxable Value: | = | $0 | |
Taxing Jurisdiction
| Owner: | CHRISTIAN AID CENTER | | |
| % Ownership: | 100.0000000000% | | |
| Total Value: | $286,570 | | |
| Tax Area: | 1 - OL-140-F |
| CERFD | CURRENT EXPENSE REFUND 010 | 0.0000000000 | $286,570 | $0 | $0.00 | | |
| CURREXP | CURRENT EXPENSE 010 | 1.0175366760 | $286,570 | $0 | $0.00 | | |
| HUMNSERV | HUMAN SERVICES 119 | 0.0250000000 | $286,570 | $0 | $0.00 | | |
| SLDREL | SOLDIERS RELIEF 121 | 0.0155990005 | $286,570 | $0 | $0.00 | | |
| EMERGSER | EMS 147 | 0.3792580840 | $286,570 | $0 | $0.00 | | |
| EMSRFD | EMS REFUND 147 | 0.0000000000 | $286,570 | $0 | $0.00 | | |
| PORTRFD | PORT REFUND 640 | 0.0000000000 | $286,570 | $0 | $0.00 | | |
| PORTWWGEN | PORT OF WW 640 | 0.2460186015 | $286,570 | $0 | $0.00 | | |
| SD140BOND | SD #140 BOND 764 | 0.8342371393 | $286,570 | $0 | $0.00 | | |
| SD140GEN | SD #140 GENERAL 760 | 2.0646500647 | $286,570 | $0 | $0.00 | | |
| ST2 | STATE SCHOOL PART 2 600 | 0.8131451643 | $286,570 | $0 | $0.00 | | |
| STATESCHL | STATE SCHOOL 600 | 1.5158548041 | $286,570 | $0 | $0.00 | | |
| STREFUND | STATE REFUND LEVY 603 | 0.0000000000 | $286,570 | $0 | $0.00 | | |
| CWWBOND | C OF WW BOND 643 | 0.2760494372 | $286,570 | $0 | $0.00 | | |
| CWWGEN | CITY OF WW 631 | 1.6100204973 | $286,570 | $0 | $0.00 | | |
| CWWRFD | CITY OF WALLA WALLA REFUND 631 | 0.0000000000 | $286,570 | $0 | $0.00 | | |
| | Total Tax Rate: | 8.7973694689 | | | | | |
| | | | | Taxes w/Current Exemptions: | $0.00 | | |
| | | | | Taxes w/o Exemptions: | $2,521.06 | | |
Improvement / Building
| Improvement #1: | RESIDENTIAL | State Code: | 67 | 1791.0 sqft | Value: | $223,370 |
| Exterior Wall: | VINYL | Heating/Cooling: | WARM & COOLED AIR | | Number of Bathrooms: | 3 | Number of Bedrooms: | 5 | | Plumbing: | 14 | Roof Covering: | COMP SHINGLE |
|
| | Type | Description | Class CD | Sub Class CD | Year Built | Area |
| | MA | Main Area | 1 | 25 | 1996 | 1791.0 |
| | SI1 | SITE IMPROVEMENT | 1 | 25 | 1996 | 2.0 |
| | RPC | OPEN PORCH W/ROOF , CEILED | 1 | 25 | 1996 | 64.0 |
| | RPC | OPEN PORCH W/ROOF , CEILED | 1 | 25 | 1996 | 96.0 |
| | PRKSTLA | PARK STALL AVERAGE | D | 25 | 1996 | 4.0 |
Sketch
Property Image
Land
| 1 | RES 1 | Converted: Residential | 0.1814 | 7900.00 | 0.00 | 0.00 | 1.00 | $63,200 | $0 |
Roll Value History
| 2026 | N/A | N/A | N/A | N/A | N/A |
| 2025 | $226,900 | $63,200 | $0 | $290,100 | $0 |
| 2024 | $223,370 | $63,200 | $0 | $286,570 | $0 |
| 2023 | $223,370 | $63,200 | $0 | $286,570 | $0 |
| 2022 | $223,370 | $57,300 | $0 | $280,670 | $0 |
| 2021 | $171,820 | $57,300 | $0 | $229,120 | $0 |
| 2020 | $156,200 | $57,300 | $0 | $213,500 | $0 |
| 2019 | $156,200 | $57,300 | $0 | $213,500 | $0 |
| 2018 | $131,900 | $45,300 | $0 | $177,200 | $0 |
| 2017 | $131,900 | $45,300 | $0 | $177,200 | $0 |
| 2016 | $131,900 | $45,300 | $0 | $177,200 | $0 |
| 2015 | $131,900 | $45,300 | $0 | $177,200 | $0 |
| 2014 | $131,900 | $45,300 | $0 | $177,200 | $0 |
| 2013 | $131,900 | $45,300 | $0 | $177,200 | $0 |
| 2012 | $0 | $0 | $0 | $0 | $0 |
| 2011 | $0 | $0 | $0 | $0 | $0 |
| 2010 | $0 | $0 | $0 | $0 | $0 |
| 2009 | $0 | $0 | $0 | $0 | $0 |
| 2008 | $0 | $0 | $0 | $0 | $0 |
| 2007 | $0 | $0 | $0 | $0 | $0 |
Deed and Sales History
| 1 | 11/16/2015 | QCD | QUIT CLAIM DEED | BLUE MOUNTAIN ACTION COUNCIL | CHRISTIAN AID CENTER | | | $177,200.00 | 129222 | 2015-10040 |
| 2 | 08/14/1996 | WARRANTY D | WARRANTY DEED | | | | | $15,000.00 | 86699 | 2439-608277 |
Payout Agreement
| No payout information available.. |