Property
Account |
| Property ID: | 34559 | Abbreviated Legal Description: | WALLA WALLA LOT 1 BLK 10; TAX 1 LOT 2 BLK 10 |
| Parcel Number: | 360720771001 | Agent Code: | |
| Type: | Real | | |
| Tax Area: | 1 - OL-140-F | Land Use Code | 62 |
| Open Space: | N | DFL | N |
| Historic Property: | N | Remodel Property: | N |
| Multi-Family Redevelopment: | N | | |
| Township: | 7 | Section: | 20 |
| Range: | 36 |
Location |
| Address: | 201 W MAIN ST WALLA WALLA, WA 99362 | Mapsco: | |
| Neighborhood: | WW Downtown Core Area #2 | Map ID: | |
| Neighborhood CD: | 5342 |
Owner |
| Name: | 201 WEST MAIN LLC | Owner ID: | 72987 |
| Mailing Address: | 2101 SUPERIOR AVE CLEVELAND, OH 44114 | % Ownership: | 100.0000000000% |
| | | Exemptions: | |
Taxes and Assessment Details
Property Tax Information as of
02/21/2026
Click on "Statement Details" to expand or collapse a tax statement.
* Please enter a valid date ** Please enter a valid date *
Statement Details |
| | TOTAL: | $0.00 | $0.00 | $0.00 | $0.00 | $0.00 | $0.00 |
|
| | $0.00 | $0.00 | $0.00 | $0.00 | $0.00 | $0.00 |
Values
| (+) Improvement Homesite Value: | + | $0 | |
| (+) Improvement Non-Homesite Value: | + | $595,910 | |
| (+) Land Homesite Value: | + | $0 | |
| (+) Land Non-Homesite Value: | + | $123,100 | |
| (+) Curr Use (HS): | + | $0 | $0 |
| (+) Curr Use (NHS): | + | $0 | $0 |
| | | -------------------------- | |
| (=) Market Value: | = | $719,010 | |
| (–) Productivity Loss: | – | $0 | |
| | | -------------------------- | |
| (=) Subtotal: | = | $719,010 | |
| (+) Senior Appraised Value: | + | $0 | |
| (+) Non-Senior Appraised Value: | + | $719,010 | |
| | | -------------------------- | |
| (=) Total Appraised Value: | = | $719,010 | |
| (–) Senior Exemption Loss: | – | $0 | |
| (–) Exemption Loss: | – | $0 | |
| | | -------------------------- | |
| (=) Taxable Value: | = | $719,010 | |
Taxing Jurisdiction
| Owner: | 201 WEST MAIN LLC | | |
| % Ownership: | 100.0000000000% | | |
| Total Value: | $719,010 | | |
| Tax Area: | 1 - OL-140-F |
| CERFD | CURRENT EXPENSE REFUND 010 | 0.0000000000 | $719,010 | $719,010 | $0.00 | | |
| CURREXP | CURRENT EXPENSE 010 | 1.0175366760 | $719,010 | $719,010 | $731.62 | | |
| HUMNSERV | HUMAN SERVICES 119 | 0.0250000000 | $719,010 | $719,010 | $17.98 | | |
| SLDREL | SOLDIERS RELIEF 121 | 0.0155990005 | $719,010 | $719,010 | $11.22 | | |
| EMERGSER | EMS 147 | 0.3792580840 | $719,010 | $719,010 | $272.69 | | |
| EMSRFD | EMS REFUND 147 | 0.0000000000 | $719,010 | $719,010 | $0.00 | | |
| PORTRFD | PORT REFUND 640 | 0.0000000000 | $719,010 | $719,010 | $0.00 | | |
| PORTWWGEN | PORT OF WW 640 | 0.2460186015 | $719,010 | $719,010 | $176.89 | | |
| SD140BOND | SD #140 BOND 764 | 0.8342371393 | $719,010 | $719,010 | $599.82 | | |
| SD140GEN | SD #140 GENERAL 760 | 2.0646500647 | $719,010 | $719,010 | $1,484.50 | | |
| ST2 | STATE SCHOOL PART 2 600 | 0.8131451643 | $719,010 | $719,010 | $584.66 | | |
| STATESCHL | STATE SCHOOL 600 | 1.5158548041 | $719,010 | $719,010 | $1,089.91 | | |
| STREFUND | STATE REFUND LEVY 603 | 0.0000000000 | $719,010 | $719,010 | $0.00 | | |
| CWWBOND | C OF WW BOND 643 | 0.2760494372 | $719,010 | $719,010 | $198.48 | | |
| CWWGEN | CITY OF WW 631 | 1.6100204973 | $719,010 | $719,010 | $1,157.62 | | |
| CWWRFD | CITY OF WALLA WALLA REFUND 631 | 0.0000000000 | $719,010 | $719,010 | $0.00 | | |
| | Total Tax Rate: | 8.7973694689 | | | | | |
| | | | | Taxes w/Current Exemptions: | $6,325.39 | | |
| | | | | Taxes w/o Exemptions: | $6,325.39 | | |
Improvement / Building
| Improvement #1: | COMMERCIAL | State Code: | 62 | 28994.0 sqft | Value: | $595,910 |
| | Type | Description | Class CD | Sub Class CD | Year Built | Area |
| | MA | Main Area | D | * | 1900 | 28994.0 |
| | SI1 | SITE IMPROVEMENT | D | * | 1900 | 6.0 |
Sketch
Property Image
Land
| 1 | COM 1 | Converted: Commercial | 0.2569 | 11190.00 | 0.00 | 0.00 | 1.00 | $123,100 | $0 |
Roll Value History
| 2026 | N/A | N/A | N/A | N/A | N/A |
| 2025 | $598,800 | $134,300 | $0 | $733,100 | $733,100 |
| 2024 | $592,500 | $134,300 | $0 | $726,800 | $726,800 |
| 2023 | $595,910 | $123,100 | $0 | $719,010 | $719,010 |
| 2022 | $595,910 | $123,100 | $0 | $719,010 | $719,010 |
| 2021 | $595,910 | $123,100 | $0 | $719,010 | $719,010 |
| 2020 | $595,910 | $123,100 | $0 | $719,010 | $719,010 |
| 2019 | $595,910 | $123,100 | $0 | $719,010 | $719,010 |
| 2018 | $595,910 | $123,100 | $0 | $719,010 | $719,010 |
| 2017 | $595,910 | $123,090 | $0 | $719,000 | $719,000 |
| 2016 | $595,910 | $123,090 | $0 | $719,000 | $719,000 |
| 2015 | $407,400 | $123,100 | $0 | $530,500 | $530,500 |
| 2014 | $407,400 | $123,100 | $0 | $530,500 | $530,500 |
| 2013 | $407,400 | $123,100 | $0 | $530,500 | $530,500 |
| 2012 | $407,400 | $123,100 | $0 | $0 | $0 |
| 2011 | $407,400 | $123,100 | $0 | $0 | $0 |
| 2010 | $407,400 | $123,100 | $0 | $0 | $0 |
| 2009 | $452,200 | $78,300 | $0 | $0 | $0 |
| 2008 | $452,200 | $78,300 | $0 | $0 | $0 |
| 2007 | $452,200 | $78,300 | $0 | $0 | $0 |
Deed and Sales History
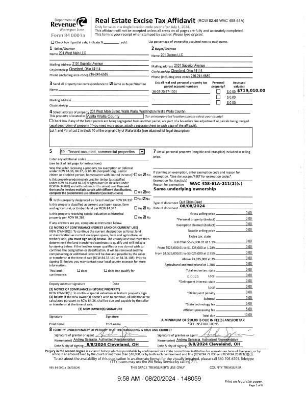
| 1 | 08/26/2024 | QCD | QUIT CLAIM DEED | 201 WEST MAIN LLC | 201 DACRES LLC | | | | 148059 | 2024-04741 |
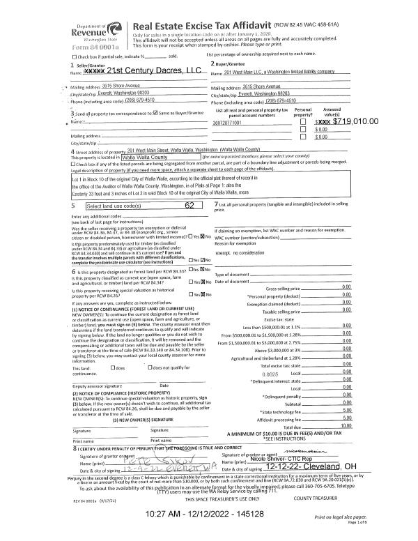
| 2 | 12/12/2022 | QCD | QUIT CLAIM DEED | 21ST CENTURY DACRES LLC | 201 WEST MAIN LLC | | | $0.00 | 145128 | 2022-09625 |
| 3 | 12/12/2022 | | | 21ST CENTURY DACRES LLC | 201 WEST MAIN LLC | | | | 145127 | NO DEED |
| 4 | 09/30/2003 | QCD | QUIT CLAIM DEED | SIKOV, PETER & HELEN | 21ST CENTURY DACRES LLC | | | | 103120 | 2003-14919 |
| 5 | 01/02/2002 | WARRANTY D | WARRANTY DEED | | | | | $450,000.00 | 98675 | 3260-200034 |
Payout Agreement
| No payout information available.. |