Property
Account |
| Property ID: | 34522 | Abbreviated Legal Description: | VALLEY HOMES N 60' OF LOT 24 S 7' OF LOT 29 |
| Parcel Number: | 360722560110 | Agent Code: | |
| Type: | Real | | |
| Tax Area: | 6 - OL-140-F-FB | Land Use Code | 12 |
| Open Space: | N | DFL | N |
| Historic Property: | N | Remodel Property: | N |
| Multi-Family Redevelopment: | N | | |
| Township: | 7 | Section: | 22 |
| Range: | 36 |
Location |
| Address: | 219 BROCK ST WA 99362 | Mapsco: | |
| Neighborhood: | A SFR Multi Res | Map ID: | |
| Neighborhood CD: | 413081 |
Owner |
| Name: | ARCEO ABELARDO C | Owner ID: | 59692 |
| Mailing Address: | FRANCISCA ARCEO GARCIA 1965 WHITMAN ST WALLA WALLA, WA 99362 | % Ownership: | 100.0000000000% |
| | | Exemptions: | |
Taxes and Assessment Details
Property Tax Information as of
02/21/2026
Click on "Statement Details" to expand or collapse a tax statement.
* Please enter a valid date ** Please enter a valid date *
Statement Details |
| | TOTAL: | $0.00 | $0.00 | $0.00 | $0.00 | $0.00 | $0.00 |
|
| | $0.00 | $0.00 | $0.00 | $0.00 | $0.00 | $0.00 |
Values
| (+) Improvement Homesite Value: | + | $0 | |
| (+) Improvement Non-Homesite Value: | + | $200,350 | |
| (+) Land Homesite Value: | + | $0 | |
| (+) Land Non-Homesite Value: | + | $81,020 | |
| (+) Curr Use (HS): | + | $0 | $0 |
| (+) Curr Use (NHS): | + | $0 | $0 |
| | | -------------------------- | |
| (=) Market Value: | = | $281,370 | |
| (–) Productivity Loss: | – | $0 | |
| | | -------------------------- | |
| (=) Subtotal: | = | $281,370 | |
| (+) Senior Appraised Value: | + | $0 | |
| (+) Non-Senior Appraised Value: | + | $281,370 | |
| | | -------------------------- | |
| (=) Total Appraised Value: | = | $281,370 | |
| (–) Senior Exemption Loss: | – | $0 | |
| (–) Exemption Loss: | – | $0 | |
| | | -------------------------- | |
| (=) Taxable Value: | = | $281,370 | |
Taxing Jurisdiction
| Owner: | ARCEO ABELARDO C | | |
| % Ownership: | 100.0000000000% | | |
| Total Value: | $281,370 | | |
| Tax Area: | 6 - OL-140-F-FB |
| CERFD | CURRENT EXPENSE REFUND 010 | 0.0000000000 | $281,370 | $281,370 | $0.00 | | |
| CURREXP | CURRENT EXPENSE 010 | 1.0175366760 | $281,370 | $281,370 | $286.30 | | |
| HUMNSERV | HUMAN SERVICES 119 | 0.0250000000 | $281,370 | $281,370 | $7.03 | | |
| SLDREL | SOLDIERS RELIEF 121 | 0.0155990005 | $281,370 | $281,370 | $4.39 | | |
| EMERGSER | EMS 147 | 0.3792580840 | $281,370 | $281,370 | $106.71 | | |
| EMSRFD | EMS REFUND 147 | 0.0000000000 | $281,370 | $281,370 | $0.00 | | |
| PORTRFD | PORT REFUND 640 | 0.0000000000 | $281,370 | $281,370 | $0.00 | | |
| PORTWWGEN | PORT OF WW 640 | 0.2460186015 | $281,370 | $281,370 | $69.22 | | |
| SD140BOND | SD #140 BOND 764 | 0.8342371393 | $281,370 | $281,370 | $234.73 | | |
| SD140GEN | SD #140 GENERAL 760 | 2.0646500647 | $281,370 | $281,370 | $580.93 | | |
| ST2 | STATE SCHOOL PART 2 600 | 0.8131451643 | $281,370 | $281,370 | $228.79 | | |
| STATESCHL | STATE SCHOOL 600 | 1.5158548041 | $281,370 | $281,370 | $426.52 | | |
| STREFUND | STATE REFUND LEVY 603 | 0.0000000000 | $281,370 | $281,370 | $0.00 | | |
| CWWBOND | C OF WW BOND 643 | 0.2760494372 | $281,370 | $281,370 | $77.67 | | |
| CWWGEN | CITY OF WW 631 | 1.6100204973 | $281,370 | $281,370 | $453.01 | | |
| CWWRFD | CITY OF WALLA WALLA REFUND 631 | 0.0000000000 | $281,370 | $281,370 | $0.00 | | |
| | Total Tax Rate: | 8.7973694689 | | | | | |
| | | | | Taxes w/Current Exemptions: | $2,475.30 | | |
| | | | | Taxes w/o Exemptions: | $2,475.30 | | |
Improvement / Building
| Improvement #1: | RESIDENTIAL | State Code: | 12 | 1080.0 sqft | Value: | $139,050 |
| Exterior Wall: | SIDING | Heating/Cooling: | BASEBOARD ELECTRIC | | Number of Bathrooms: | 1 | Number of Bedrooms: | 3 | | Plumbing: | 6 | Roof Covering: | COMP SHINGLE |
|
| | Type | Description | Class CD | Sub Class CD | Year Built | Area |
| | MA | Main Area | 1 | 25 | 1920 | 1080.0 |
| | SI1 | SITE IMPROVEMENT | 1 | 25 | 0 | 2.0 |
| | WOD | Wood Deck | 1 | 25 | 1920 | 105.0 |
| | UTST | Utility Storage Shed | 1 | 25 | 1920 | 200.0 |
| Improvement #2: | RESIDENTIAL | State Code: | 12 | 480.0 sqft | Value: | $61,300 |
| Exterior Wall: | SIDING | Heating/Cooling: | BASEBOARD ELECTRIC | | Number of Bathrooms: | 1 | Number of Bedrooms: | 1 | | Plumbing: | 4 | Roof Covering: | COMP SHINGLE |
|
| | Type | Description | Class CD | Sub Class CD | Year Built | Area |
| | MA | Main Area | 1 | 20 | 1920 | 480.0 |
| | SWP | Solid Wall Porch | 1 | 20 | 1920 | 64.0 |
| | SI1 | SITE IMPROVEMENT | 1 | 20 | 1920 | 1.0 |
Sketch
Property Image
Land
| 1 | RES 1 | Converted: Residential | 0.2692 | 11725.00 | 0.00 | 0.00 | 1.00 | $81,020 | $0 |
Roll Value History
| 2026 | N/A | N/A | N/A | N/A | N/A |
| 2025 | $205,300 | $81,100 | $0 | $286,400 | $286,400 |
| 2024 | $205,300 | $81,100 | $0 | $286,400 | $286,400 |
| 2023 | $200,350 | $81,020 | $0 | $281,370 | $281,370 |
| 2022 | $196,390 | $53,940 | $0 | $250,330 | $250,330 |
| 2021 | $130,930 | $53,940 | $0 | $184,870 | $184,870 |
| 2020 | $93,520 | $53,940 | $0 | $147,460 | $147,460 |
| 2019 | $93,520 | $53,940 | $0 | $147,460 | $147,460 |
| 2018 | $93,520 | $53,940 | $0 | $147,460 | $147,460 |
| 2017 | $93,520 | $53,940 | $0 | $147,460 | $147,460 |
| 2016 | $33,000 | $41,300 | $0 | $74,300 | $74,300 |
| 2015 | $33,000 | $41,300 | $0 | $74,300 | $74,300 |
| 2014 | $60,000 | $41,300 | $0 | $101,300 | $101,300 |
| 2013 | $60,000 | $41,300 | $0 | $101,300 | $101,300 |
| 2012 | $60,000 | $41,300 | $0 | $0 | $0 |
| 2011 | $63,400 | $41,300 | $0 | $0 | $0 |
| 2010 | $63,400 | $41,300 | $0 | $0 | $0 |
| 2009 | $75,100 | $41,300 | $0 | $0 | $0 |
| 2008 | $75,100 | $41,300 | $0 | $0 | $0 |
| 2007 | $75,100 | $41,300 | $0 | $0 | $0 |
Deed and Sales History
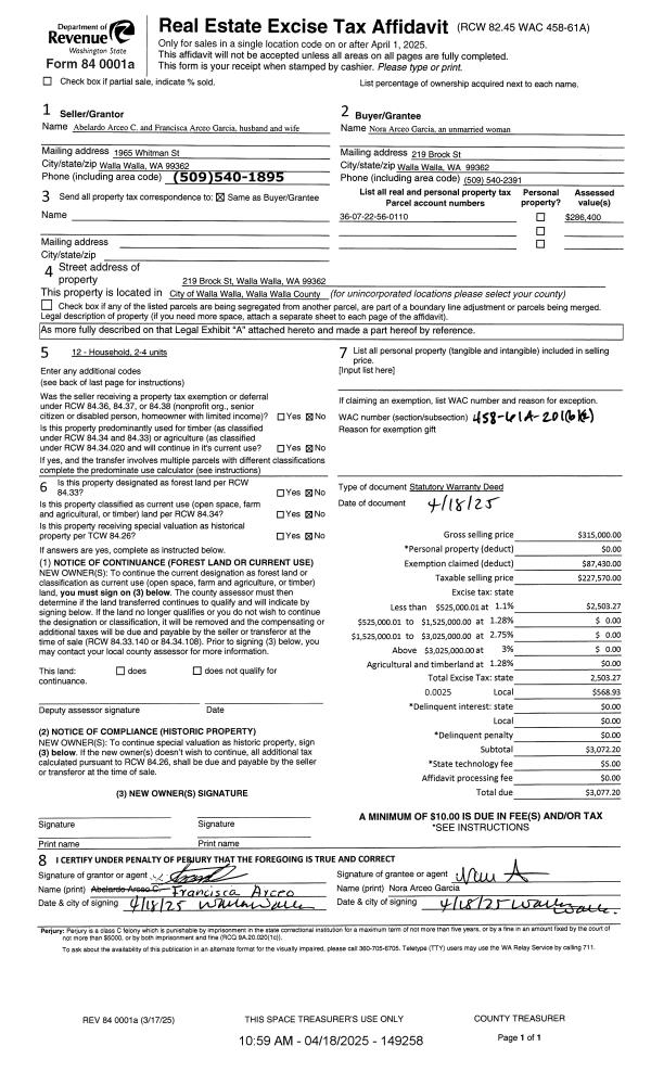
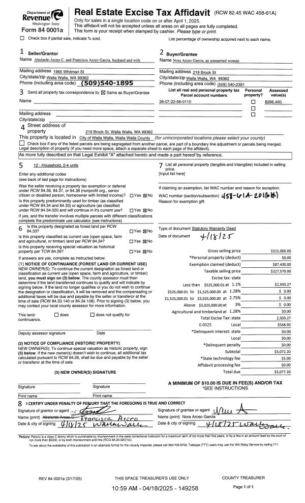
| 1 | 04/18/2025 | SWD | STATUTORY WARRANTY DEED | ARCEO ABELARDO C | GARCIA NORA ARCEO | | | $227,570.00 | 149258 | 2025-02068 |
| 2 | 10/11/2016 | FUL | FULFILLMENT DEED | GLADDEN & GLADDEN RENTALS LLC | MURO ASAEL J & MARIA G | | | | 0 | 2016-08376 |
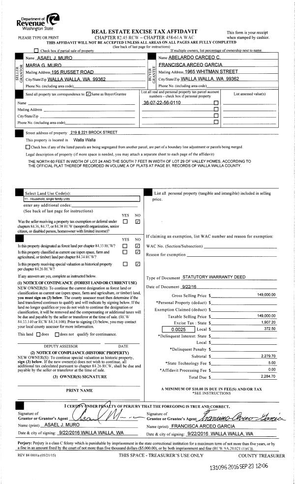
| 3 | 09/23/2016 | SWD | STATUTORY WARRANTY DEED | MURO ASAEL J & MARIA G | ARCEO ABELARDO C | | | $149,000.00 | 131096 | 2016-07781 |
| 4 | 08/07/2014 | REAL ESTAT | REAL ESTATE CONTRACT | GLADDEN & GLADDEN RENTALS LLC | MURO ASAEL J & MARIA G | | | $74,000.00 | 126397 | 2014-05605 |
| 5 | 12/15/2006 | WARRANTY D | WARRANTY DEED | GLADDEN, HARRY L ESTATE OF | GLADDEN, DANIEL L | | | | 111907 | 2006-14959 |
| 6 | 12/15/2006 | QCD | QUIT CLAIM DEED | GLADDEN, DANIEL L | GLADDEN & GLADDEN RENTALS LLC | | | | 111908 | 2006-14960 |
| 7 | 03/22/1995 | WARRANTY D | WARRANTY DEED | | | | | $65,000.00 | 83710 | 2289-502622 |
Payout Agreement
| No payout information available.. |