Property
Account |
| Property ID: | 34485 | Abbreviated Legal Description: | TAYLORS ADDITION LOT 4 OF SHORT PLAT (NELY PTN LOT 1 BLK 2 PLUSTRACTS LY TO THE E PLUS NWLY PTN LOT 2 BLK 1) |
| Parcel Number: | 360728750208 | Agent Code: | |
| Type: | Real | | |
| Tax Area: | 1 - OL-140-F | Land Use Code | 91 |
| Open Space: | N | DFL | N |
| Historic Property: | N | Remodel Property: | N |
| Multi-Family Redevelopment: | N | | |
| Township: | 7 | Section: | 28 |
| Range: | 36 |
Location |
| Address: | 509 TAYLOR ST WA 99362 | Mapsco: | |
| Neighborhood: | G Res Land Only | Map ID: | |
| Neighborhood CD: | 614091 |
Owner |
| Name: | MORALES GERALD & JENNIFER | Owner ID: | 69924 |
| Mailing Address: | 3322 19TH AVE S SEATTLE, WA 98144 | % Ownership: | 100.0000000000% |
| | | Exemptions: | |
Taxes and Assessment Details
Values
| (+) Improvement Homesite Value: | + | $0 | |
| (+) Improvement Non-Homesite Value: | + | $0 | |
| (+) Land Homesite Value: | + | $0 | |
| (+) Land Non-Homesite Value: | + | $120,000 | |
| (+) Curr Use (HS): | + | $0 | $0 |
| (+) Curr Use (NHS): | + | $0 | $0 |
| | | -------------------------- | |
| (=) Market Value: | = | $120,000 | |
| (–) Productivity Loss: | – | $0 | |
| | | -------------------------- | |
| (=) Subtotal: | = | $120,000 | |
| (+) Senior Appraised Value: | + | $0 | |
| (+) Non-Senior Appraised Value: | + | $120,000 | |
| | | -------------------------- | |
| (=) Total Appraised Value: | = | $120,000 | |
| (–) Senior Exemption Loss: | – | $0 | |
| (–) Exemption Loss: | – | $0 | |
| | | -------------------------- | |
| (=) Taxable Value: | = | $120,000 | |
Taxing Jurisdiction
| Owner: | MORALES GERALD & JENNIFER | | |
| % Ownership: | 100.0000000000% | | |
| Total Value: | $120,000 | | |
| Tax Area: | 1 - OL-140-F |
| CERFD | CURRENT EXPENSE REFUND 010 | 0.0000000000 | $120,000 | $120,000 | $0.00 | | |
| CURREXP | CURRENT EXPENSE 010 | 1.0175366760 | $120,000 | $120,000 | $122.10 | | |
| HUMNSERV | HUMAN SERVICES 119 | 0.0250000000 | $120,000 | $120,000 | $3.00 | | |
| SLDREL | SOLDIERS RELIEF 121 | 0.0155990005 | $120,000 | $120,000 | $1.87 | | |
| EMERGSER | EMS 147 | 0.3792580840 | $120,000 | $120,000 | $45.51 | | |
| EMSRFD | EMS REFUND 147 | 0.0000000000 | $120,000 | $120,000 | $0.00 | | |
| PORTRFD | PORT REFUND 640 | 0.0000000000 | $120,000 | $120,000 | $0.00 | | |
| PORTWWGEN | PORT OF WW 640 | 0.2460186015 | $120,000 | $120,000 | $29.52 | | |
| SD140BOND | SD #140 BOND 764 | 0.8342371393 | $120,000 | $120,000 | $100.11 | | |
| SD140GEN | SD #140 GENERAL 760 | 2.0646500647 | $120,000 | $120,000 | $247.76 | | |
| ST2 | STATE SCHOOL PART 2 600 | 0.8131451643 | $120,000 | $120,000 | $97.58 | | |
| STATESCHL | STATE SCHOOL 600 | 1.5158548041 | $120,000 | $120,000 | $181.90 | | |
| STREFUND | STATE REFUND LEVY 603 | 0.0000000000 | $120,000 | $120,000 | $0.00 | | |
| CWWBOND | C OF WW BOND 643 | 0.2760494372 | $120,000 | $120,000 | $33.13 | | |
| CWWGEN | CITY OF WW 631 | 1.6100204973 | $120,000 | $120,000 | $193.20 | | |
| CWWRFD | CITY OF WALLA WALLA REFUND 631 | 0.0000000000 | $120,000 | $120,000 | $0.00 | | |
| | Total Tax Rate: | 8.7973694689 | | | | | |
| | | | | Taxes w/Current Exemptions: | $1,055.68 | | |
| | | | | Taxes w/o Exemptions: | $1,055.68 | | |
Improvement / Building
Sketch
| No sketches available for this property. |
Property Image
Land
| 1 | RES 1 | Converted: Residential | 0.3047 | 13272.00 | 0.00 | 0.00 | 1.00 | $120,000 | $0 |
Roll Value History
| 2026 | N/A | N/A | N/A | N/A | N/A |
| 2025 | $0 | $150,000 | $0 | $150,000 | $150,000 |
| 2024 | $0 | $120,000 | $0 | $120,000 | $120,000 |
| 2023 | $0 | $120,000 | $0 | $120,000 | $120,000 |
| 2022 | $0 | $85,000 | $0 | $85,000 | $85,000 |
| 2021 | $0 | $85,000 | $0 | $85,000 | $85,000 |
| 2020 | $0 | $85,000 | $0 | $85,000 | $85,000 |
| 2019 | $0 | $85,000 | $0 | $85,000 | $85,000 |
| 2018 | $0 | $69,900 | $0 | $69,900 | $69,900 |
| 2017 | $0 | $69,900 | $0 | $69,900 | $69,900 |
| 2016 | $0 | $69,900 | $0 | $69,900 | $69,900 |
| 2015 | $0 | $69,900 | $0 | $69,900 | $69,900 |
| 2014 | $0 | $49,900 | $0 | $49,900 | $49,900 |
| 2013 | $0 | $49,900 | $0 | $49,900 | $49,900 |
| 2012 | $0 | $49,900 | $0 | $0 | $0 |
| 2011 | $0 | $49,900 | $0 | $0 | $0 |
| 2010 | $0 | $49,900 | $0 | $0 | $0 |
| 2009 | $0 | $12,200 | $0 | $0 | $0 |
| 2008 | $0 | $49,900 | $0 | $0 | $0 |
Deed and Sales History
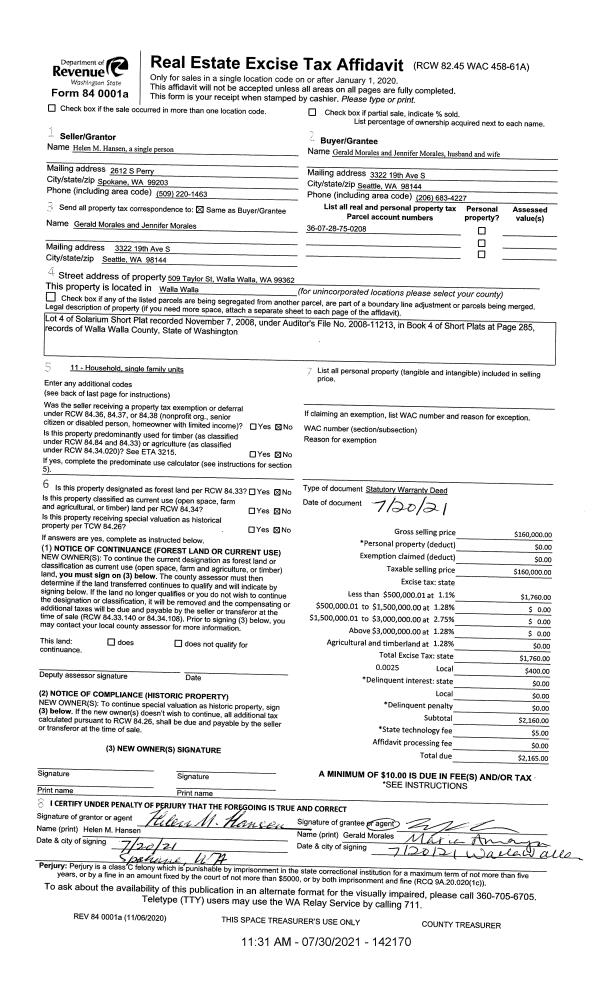
| 1 | 07/30/2021 | SWD | STATUTORY WARRANTY DEED | HANSEN HELEN M | MORALES GERALD & JENNIFER | | | $160,000.00 | 142170 | 2021-09304 |
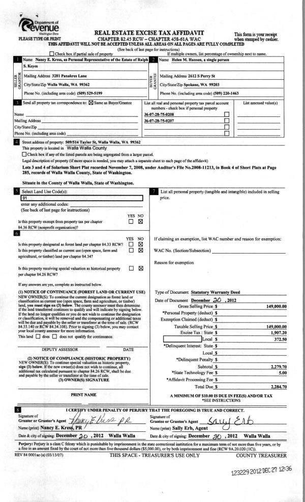
| 2 | 12/29/2012 | WARRANTY D | WARRANTY DEED | KEYES RALPH S ESTATE OF | HANSEN HELEN M | | | $149,000.00 | 123229 | 2012-11577 |
|   | |
| 3 | 11/17/2010 | WARRANTY D | WARRANTY DEED | "KEYES, MARY ANNE ESTATE~OF" | | | | | 119341 | 2010-09410 |
Payout Agreement
| No payout information available.. |