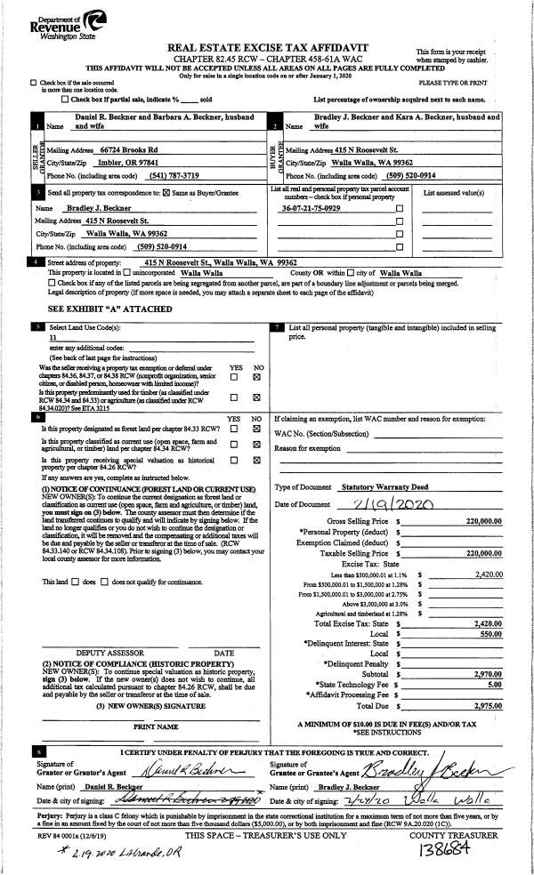
| 1 | 02/24/2020 | SWD | STATUTORY WARRANTY DEED | BECKNER DANIEL R & BARBARA A | BECKNER BRADLEY J & KARA A | | | $220,000.00 | 138684 | 2020-01714 |
| 2 | 07/25/2019 | SWP | Special Warranty Deed | SECRETARY OF HOUSING AND URBAN DEVELOPMENT | BECKNER DANIEL R & BARBARA A | | | $140,000.00 | 137352 | 2019-05431 |
| 3 | 04/19/2019 | BARGAIN & | BARGAIN & SALE DEED | FIRST GUARANTY MORTGAGE CORP | SECRETARY OF HOUSING AND URBAN DEVELOPMENT | | | $94,100.00 | 136712 | 2019-02480 |
| 4 | 05/23/2016 | QCD | QUIT CLAIM DEED | SECRETARY OF HOUSING & URBAN DEV | FIRST GUARANTY MORTGAGE CORP | | | $0.00 | 132070 | 2017-02078 |
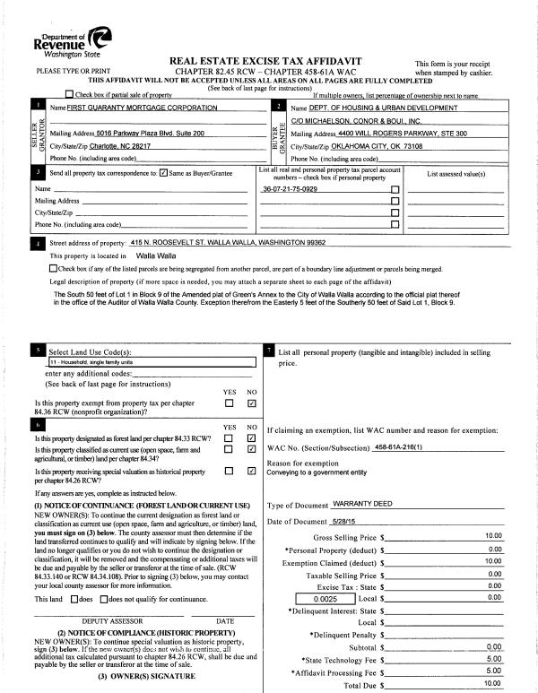
| 5 | 06/08/2015 | WARRANTY D | WARRANTY DEED | FIRST GUARANTY MORTGAGE CORP | SECRETARY OF HOUSING & URBAN DEV | | | $0.00 | 129218 | 2015-10021 |
| 6 | 04/13/2015 | TRUSTEES D | TRUSTEE'S DEED | ALGER SEAN | FIRST GUARANTY MORTGAGE CORP | | | $106,700.00 | 127953 | 2015-04020 |
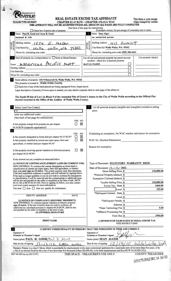
| 7 | 12/14/2012 | WARRANTY D | WARRANTY DEED | GOOD, PAUL H | ALGER, SEAN | | | $130,000.00 | 123175 | 2012-11205 |
| 8 | 05/09/1985 | WARRANTY D | WARRANTY DEED | | | | | $20,000.00 | 0 | 1498-502989 |