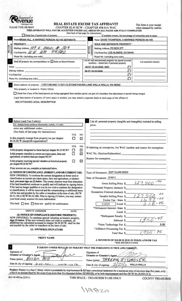
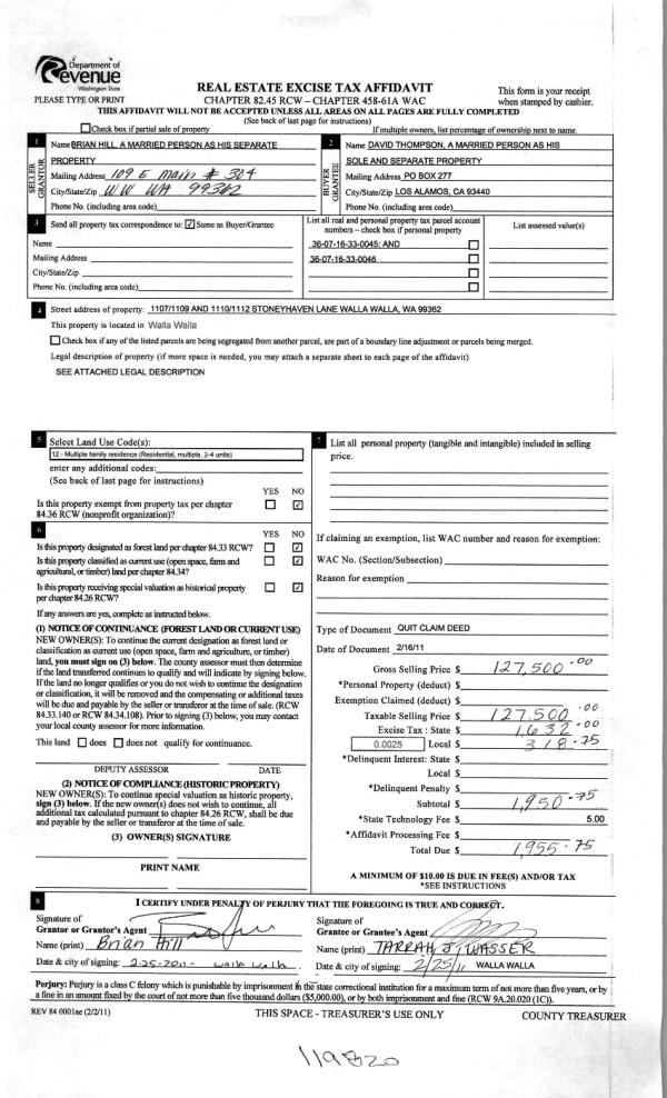
Property
Account |
| Property ID: | 34453 | Abbreviated Legal Description: | 16-7-36 (TRACT C OF S/P) SELY PTN TAX 17 WITHIN SW1/4SW1/4 |
| Parcel Number: | 360716330045 | Agent Code: | |
| Type: | Real | | |
| Tax Area: | 5 - OL-140 | Land Use Code | 12 |
| Open Space: | N | DFL | N |
| Historic Property: | N | Remodel Property: | N |
| Multi-Family Redevelopment: | N | | |
| Township: | 7 | Section: | 16 |
| Range: | 36 |
Location |
| Address: | 1110 STONEYHAVEN LN WA 99362 | Mapsco: | |
| Neighborhood: | A-Duplex | Map ID: | |
| Neighborhood CD: | 513031 |
Owner |
| Name: | THOMPSON DAVID | Owner ID: | 49667 |
| Mailing Address: | PO BOX 398 WALLA WALLA, WA 99362-0011 | % Ownership: | 100.0000000000% |
| | | Exemptions: | |
Taxes and Assessment Details
Property Tax Information as of
02/21/2026
Click on "Statement Details" to expand or collapse a tax statement.
* Please enter a valid date ** Please enter a valid date *
Statement Details |
| | TOTAL: | $0.00 | $0.00 | $0.00 | $0.00 | $0.00 | $0.00 |
|
| | $0.00 | $0.00 | $0.00 | $0.00 | $0.00 | $0.00 |
Values
| (+) Improvement Homesite Value: | + | $0 | |
| (+) Improvement Non-Homesite Value: | + | $321,650 | |
| (+) Land Homesite Value: | + | $0 | |
| (+) Land Non-Homesite Value: | + | $62,750 | |
| (+) Curr Use (HS): | + | $0 | $0 |
| (+) Curr Use (NHS): | + | $0 | $0 |
| | | -------------------------- | |
| (=) Market Value: | = | $384,400 | |
| (–) Productivity Loss: | – | $0 | |
| | | -------------------------- | |
| (=) Subtotal: | = | $384,400 | |
| (+) Senior Appraised Value: | + | $0 | |
| (+) Non-Senior Appraised Value: | + | $384,400 | |
| | | -------------------------- | |
| (=) Total Appraised Value: | = | $384,400 | |
| (–) Senior Exemption Loss: | – | $0 | |
| (–) Exemption Loss: | – | $0 | |
| | | -------------------------- | |
| (=) Taxable Value: | = | $384,400 | |
Taxing Jurisdiction
| Owner: | THOMPSON DAVID | | |
| % Ownership: | 100.0000000000% | | |
| Total Value: | $384,400 | | |
| Tax Area: | 5 - OL-140 |
| CERFD | CURRENT EXPENSE REFUND 010 | 0.0000000000 | $384,400 | $384,400 | $0.00 | | |
| CURREXP | CURRENT EXPENSE 010 | 1.0175366760 | $384,400 | $384,400 | $391.14 | | |
| HUMNSERV | HUMAN SERVICES 119 | 0.0250000000 | $384,400 | $384,400 | $9.61 | | |
| SLDREL | SOLDIERS RELIEF 121 | 0.0155990005 | $384,400 | $384,400 | $6.00 | | |
| EMERGSER | EMS 147 | 0.3792580840 | $384,400 | $384,400 | $145.79 | | |
| EMSRFD | EMS REFUND 147 | 0.0000000000 | $384,400 | $384,400 | $0.00 | | |
| PORTRFD | PORT REFUND 640 | 0.0000000000 | $384,400 | $384,400 | $0.00 | | |
| PORTWWGEN | PORT OF WW 640 | 0.2460186015 | $384,400 | $384,400 | $94.57 | | |
| SD140BOND | SD #140 BOND 764 | 0.8342371393 | $384,400 | $384,400 | $320.68 | | |
| SD140GEN | SD #140 GENERAL 760 | 2.0646500647 | $384,400 | $384,400 | $793.65 | | |
| ST2 | STATE SCHOOL PART 2 600 | 0.8131451643 | $384,400 | $384,400 | $312.57 | | |
| STATESCHL | STATE SCHOOL 600 | 1.5158548041 | $384,400 | $384,400 | $582.69 | | |
| STREFUND | STATE REFUND LEVY 603 | 0.0000000000 | $384,400 | $384,400 | $0.00 | | |
| CWWBOND | C OF WW BOND 643 | 0.2760494372 | $384,400 | $384,400 | $106.11 | | |
| CWWGEN | CITY OF WW 631 | 1.6100204973 | $384,400 | $384,400 | $618.89 | | |
| CWWRFD | CITY OF WALLA WALLA REFUND 631 | 0.0000000000 | $384,400 | $384,400 | $0.00 | | |
| | Total Tax Rate: | 8.7973694689 | | | | | |
| | | | | Taxes w/Current Exemptions: | $3,381.70 | | |
| | | | | Taxes w/o Exemptions: | $3,381.70 | | |
Improvement / Building
| Improvement #1: | RESIDENTIAL | State Code: | 12 | 2010.0 sqft | Value: | $321,650 |
| Exterior Wall: | PLYWOOD | Heating/Cooling: | HEAT PUMP | | Number of Bathrooms: | 4 | Number of Bedrooms: | 4 | | Plumbing: | 20 | Roof Covering: | COMP SHINGLE |
|
| | Type | Description | Class CD | Sub Class CD | Year Built | Area |
| | MA | Main Area | 4 | 35 | 1980 | 2010.0 |
| | SI1 | SITE IMPROVEMENT | 4 | 35 | 1980 | 2.0 |
| | UPFL | Upper Floor (included in main area) | 4 | 35 | 1980 | 968.0 |
| | BIG | Built In Garage | 4 | 35 | 1980 | 572.0 |
| | RPS | PORCH W/STEPS,ROOF | 4 | 35 | 1980 | 16.0 |
| | RPS | PORCH W/STEPS,ROOF | 4 | 35 | 1980 | 16.0 |
| | WOD | Wood Deck | 4 | 35 | 1980 | 72.0 |
| | WOD | Wood Deck | 4 | 35 | 1980 | 72.0 |
Sketch
Property Image
Land
| 1 | RES 1 | Converted: Residential | 0.2385 | 10389.00 | 0.00 | 0.00 | 1.00 | $62,750 | $0 |
Roll Value History
| 2026 | N/A | N/A | N/A | N/A | N/A |
| 2025 | $283,100 | $100,400 | $0 | $383,500 | $383,500 |
| 2024 | $283,100 | $100,400 | $0 | $383,500 | $383,500 |
| 2023 | $321,650 | $62,750 | $0 | $384,400 | $384,400 |
| 2022 | $321,650 | $62,750 | $0 | $384,400 | $384,400 |
| 2021 | $194,940 | $62,750 | $0 | $257,690 | $257,690 |
| 2020 | $162,450 | $62,750 | $0 | $225,200 | $225,200 |
| 2019 | $162,450 | $62,750 | $0 | $225,200 | $225,200 |
| 2018 | $162,450 | $62,750 | $0 | $225,200 | $225,200 |
| 2017 | $152,350 | $40,300 | $0 | $192,650 | $192,650 |
| 2016 | $152,350 | $40,300 | $0 | $192,650 | $192,650 |
| 2015 | $152,350 | $40,300 | $0 | $192,650 | $192,650 |
| 2014 | $138,500 | $40,300 | $0 | $178,800 | $178,800 |
| 2013 | $138,500 | $40,300 | $0 | $178,800 | $178,800 |
| 2012 | $138,800 | $40,300 | $0 | $0 | $0 |
| 2011 | $122,500 | $40,300 | $0 | $0 | $0 |
| 2010 | $122,500 | $40,300 | $0 | $0 | $0 |
| 2009 | $122,500 | $40,300 | $0 | $0 | $0 |
| 2008 | $122,500 | $40,300 | $0 | $0 | $0 |
| 2007 | $122,500 | $40,300 | $0 | $0 | $0 |
Deed and Sales History
| 1 | 03/01/2011 | QCD | QUIT CLAIM DEED | THOMPSON DAVID | THOMPSON DAVID | | | | 119820 | 2011-01908 |
| 2 | 12/13/2006 | WARRANTY D | WARRANTY DEED | ASHBECK, JEREMY T | THOMPSON, DAVID | | | $180,000.00 | 111884 | 2006-14858 |
| 3 | 02/25/2005 | WARRANTY D | WARRANTY DEED | DRYDEN, WILLIAM A & SUSAN F | ASHBECK, JEREMY T | | | $168,000.00 | 106847 | 2005-02197 |
| 4 | 04/30/1999 | WARRANTY D | WARRANTY DEED | | | | | $117,000.00 | 92673 | 2839-905307 |
Payout Agreement
| No payout information available.. |