Property
Account |
| Property ID: | 34441 | Abbreviated Legal Description: | COLLEGE PLACE # 2 TAX 5, 5D LT 4 BLK 6 |
| Parcel Number: | 350736600613 | Agent Code: | |
| Type: | Real | | |
| Tax Area: | 75 - CP 250 | Land Use Code | 12 |
| Open Space: | N | DFL | N |
| Historic Property: | N | Remodel Property: | N |
| Multi-Family Redevelopment: | N | | |
| Township: | 7 | Section: | 36 |
| Range: | 35 |
Location |
| Address: | 317 SE 8TH ST WA 99324 | Mapsco: | |
| Neighborhood: | A SFR Multi Res | Map ID: | |
| Neighborhood CD: | 113081 |
Owner |
| Name: | CRAIK AARON | Owner ID: | 45306 |
| Mailing Address: | 1308 CLARENCE AVE COLLEGE PLACE, WA 99324 | % Ownership: | 100.0000000000% |
| | | Exemptions: | |
Taxes and Assessment Details
Property Tax Information as of
02/21/2026
Click on "Statement Details" to expand or collapse a tax statement.
* Please enter a valid date ** Please enter a valid date *
Statement Details |
| | TOTAL: | $0.00 | $0.00 | $0.00 | $0.00 | $0.00 | $0.00 |
|
| | $0.00 | $0.00 | $0.00 | $0.00 | $0.00 | $0.00 |
Values
| (+) Improvement Homesite Value: | + | $0 | |
| (+) Improvement Non-Homesite Value: | + | $339,970 | |
| (+) Land Homesite Value: | + | $0 | |
| (+) Land Non-Homesite Value: | + | $63,270 | |
| (+) Curr Use (HS): | + | $0 | $0 |
| (+) Curr Use (NHS): | + | $0 | $0 |
| | | -------------------------- | |
| (=) Market Value: | = | $403,240 | |
| (–) Productivity Loss: | – | $0 | |
| | | -------------------------- | |
| (=) Subtotal: | = | $403,240 | |
| (+) Senior Appraised Value: | + | $0 | |
| (+) Non-Senior Appraised Value: | + | $403,240 | |
| | | -------------------------- | |
| (=) Total Appraised Value: | = | $403,240 | |
| (–) Senior Exemption Loss: | – | $0 | |
| (–) Exemption Loss: | – | $0 | |
| | | -------------------------- | |
| (=) Taxable Value: | = | $403,240 | |
Taxing Jurisdiction
| Owner: | CRAIK AARON | | |
| % Ownership: | 100.0000000000% | | |
| Total Value: | $403,240 | | |
| Tax Area: | 75 - CP 250 |
| CERFD | CURRENT EXPENSE REFUND 010 | 0.0000000000 | $403,240 | $403,240 | $0.00 | | |
| CURREXP | CURRENT EXPENSE 010 | 1.0175366760 | $403,240 | $403,240 | $410.31 | | |
| HUMNSERV | HUMAN SERVICES 119 | 0.0250000000 | $403,240 | $403,240 | $10.08 | | |
| SLDREL | SOLDIERS RELIEF 121 | 0.0155990005 | $403,240 | $403,240 | $6.29 | | |
| COLLPLBOND | C OF CP BOND 644 | 0.4374241808 | $403,240 | $403,240 | $176.39 | | |
| COLLPLGEN | CITY OF CP 632 | 1.4453819216 | $403,240 | $403,240 | $582.84 | | |
| EMERGSER | EMS 147 | 0.3792580840 | $403,240 | $403,240 | $152.93 | | |
| EMSRFD | EMS REFUND 147 | 0.0000000000 | $403,240 | $403,240 | $0.00 | | |
| RURALLIB | RURAL LIBRARY 623 | 0.3710609029 | $403,240 | $403,240 | $149.63 | | |
| PORTRFD | PORT REFUND 640 | 0.0000000000 | $403,240 | $403,240 | $0.00 | | |
| PORTWWGEN | PORT OF WW 640 | 0.2460186015 | $403,240 | $403,240 | $99.20 | | |
| SD250BOND | SD #250 BOND 773 | 1.4560608159 | $403,240 | $403,240 | $587.14 | | |
| SD250GEN | SD #250 GENERAL 770 | 2.3880724087 | $403,240 | $403,240 | $962.97 | | |
| ST2 | STATE SCHOOL PART 2 600 | 0.8131451643 | $403,240 | $403,240 | $327.89 | | |
| STATESCHL | STATE SCHOOL 600 | 1.5158548041 | $403,240 | $403,240 | $611.25 | | |
| STREFUND | STATE REFUND LEVY 603 | 0.0000000000 | $403,240 | $403,240 | $0.00 | | |
| | Total Tax Rate: | 10.1104125603 | | | | | |
| | | | | Taxes w/Current Exemptions: | $4,076.92 | | |
| | | | | Taxes w/o Exemptions: | $4,076.92 | | |
Improvement / Building
| Improvement #1: | RESIDENTIAL | State Code: | 12 | 940.0 sqft | Value: | $142,680 |
| Exterior Wall: | SIDING | Foundation: | SLAB FOUNDATION | | Heating/Cooling: | BASEBOARD ELECTRIC | Number of Bathrooms: | 1 | | Number of Bedrooms: | 2 | Plumbing: | 6 | | Roof Covering: | COMP SHINGLE |   |   |
|
| | Type | Description | Class CD | Sub Class CD | Year Built | Area |
| | MA | Main Area | 1 | 30 | 1945 | 940.0 |
| | SI1 | SITE IMPROVEMENT | 1 | 30 | 1945 | 1.0 |
| | ATG | Attached Garage | 1 | 30 | 1945 | 320.0 |
| | CPCS | CARPORT/SHED OR FLAT ROOF | 1 | 30 | 1945 | 252.0 |
| Improvement #2: | RESIDENTIAL | State Code: | 12 | 1720.0 sqft | Value: | $197,290 |
| Exterior Wall: | HARDBOARD | Foundation: | SLAB FOUNDATION | | Heating/Cooling: | BASEBOARD ELECTRIC | Number of Bathrooms: | 2 | | Number of Bedrooms: | 3 | Plumbing: | 12 | | Roof Covering: | COMP SHINGLE |   |   |
|
| | Type | Description | Class CD | Sub Class CD | Year Built | Area |
| | MA | Main Area | 1 | 30 | 1945 | 1720.0 |
| | SI1 | SITE IMPROVEMENT | 1 | 30 | 1945 | 1.0 |
| | RPS | PORCH W/STEPS,ROOF | 1 | 30 | 1945 | 15.0 |
| | ATG | Attached Garage | 1 | 30 | 1945 | 528.0 |
Sketch
Property Image
Land
| 1 | RES 1 | Converted: Residential | 0.3097 | 13490.00 | 0.00 | 0.00 | 1.00 | $63,270 | $0 |
Roll Value History
| 2026 | N/A | N/A | N/A | N/A | N/A |
| 2025 | $343,800 | $95,110 | $0 | $438,910 | $438,910 |
| 2024 | $343,800 | $63,300 | $0 | $407,100 | $407,100 |
| 2023 | $339,970 | $63,270 | $0 | $403,240 | $403,240 |
| 2022 | $295,630 | $63,270 | $0 | $358,900 | $358,900 |
| 2021 | $272,970 | $63,270 | $0 | $336,240 | $336,240 |
| 2020 | $227,480 | $63,270 | $0 | $290,750 | $290,750 |
| 2019 | $240,650 | $50,100 | $0 | $290,750 | $290,750 |
| 2018 | $229,190 | $50,100 | $0 | $279,290 | $279,290 |
| 2017 | $191,000 | $50,100 | $0 | $241,100 | $241,100 |
| 2016 | $181,900 | $50,100 | $0 | $232,000 | $232,000 |
| 2015 | $181,900 | $50,100 | $0 | $232,000 | $232,000 |
| 2014 | $181,900 | $50,100 | $0 | $232,000 | $232,000 |
| 2013 | $181,900 | $50,100 | $0 | $232,000 | $232,000 |
| 2012 | $181,900 | $50,100 | $0 | $0 | $0 |
| 2011 | $181,900 | $50,100 | $0 | $0 | $0 |
| 2010 | $181,900 | $50,100 | $0 | $0 | $0 |
| 2009 | $207,700 | $50,100 | $0 | $0 | $0 |
| 2008 | $150,700 | $27,800 | $0 | $0 | $0 |
| 2007 | $150,700 | $27,800 | $0 | $0 | $0 |
Deed and Sales History
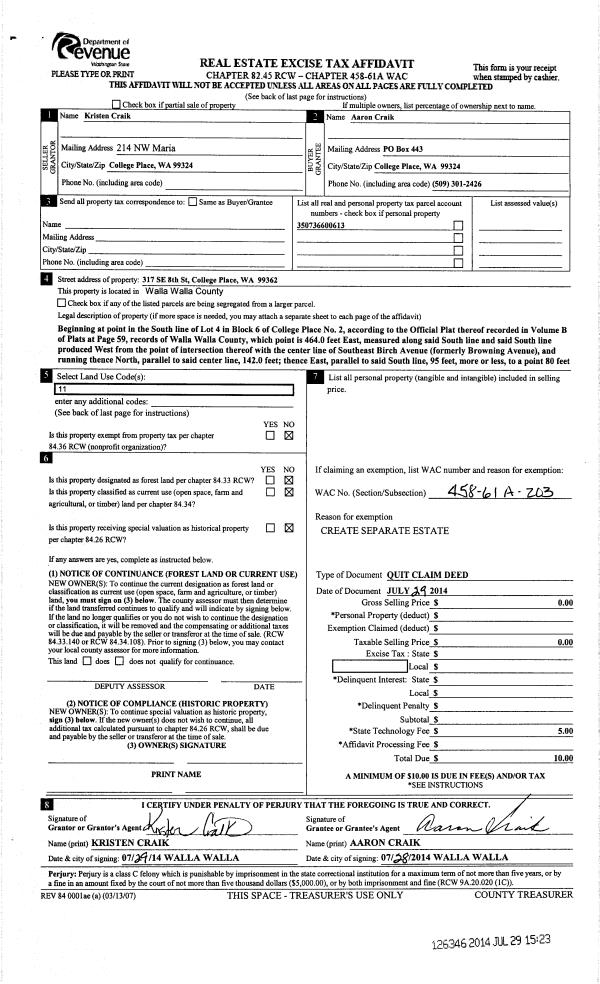
| 1 | 07/29/2014 | QCD | QUIT CLAIM DEED | CRAIK AARON & KRISTEN | CRAIK AARON | | | | 126346 | 2014-05380 |
| 2 | 07/21/2004 | WARRANTY D | WARRANTY DEED | JENKINS, DAVID | CRAIK, AARON & KRISTEN | | | $213,000.00 | 105293 | 2004-08211 |
| 3 | 12/26/2002 | QCD | QUIT CLAIM DEED | JENKINS, DAVID | JENKINS, DAVID | | | | 101077 | 2002-14845 |
| 4 | 11/15/2002 | WARRANTY D | WARRANTY DEED | MADSON, RICHARD A | JENKINS, DAVID | | | $195,000.00 | 100812 | 2002-13018 |
| 5 | 09/01/2000 | WARRANTY D | WARRANTY DEED | | | | | $114,000.00 | 95750 | 3020-008394 |
Payout Agreement
| No payout information available.. |