Property
Account |
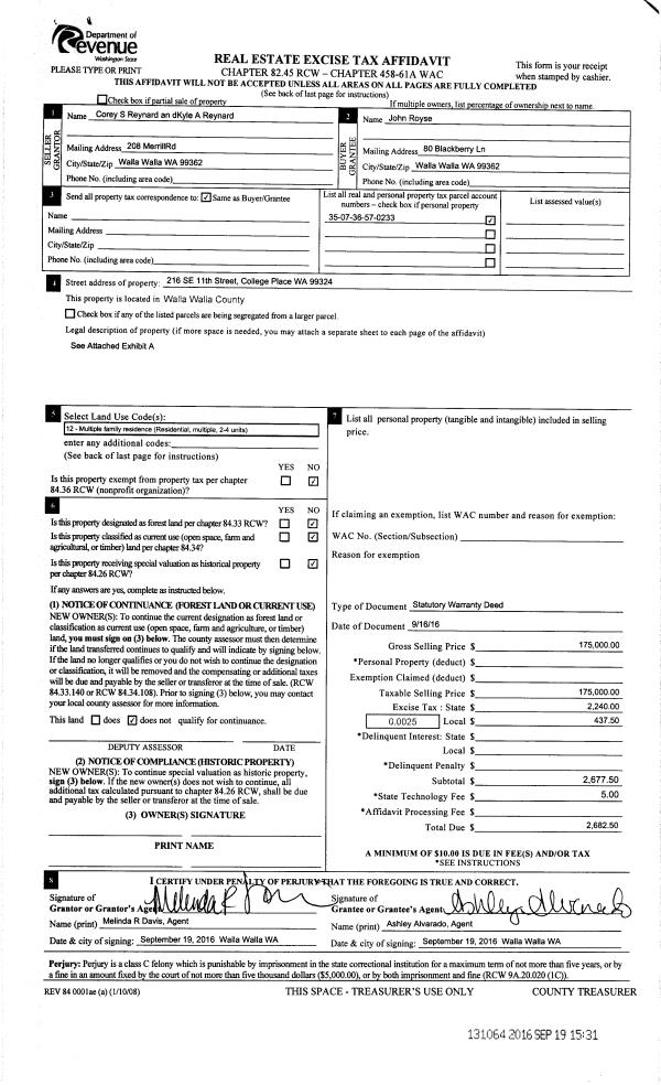
| Property ID: | 34438 | Abbreviated Legal Description: | MC RAE LT 4 BLK 2 LESS SWLY CORNER; PLUS NELY CORNER LT 16 |
| Parcel Number: | 350736570233 | Agent Code: | |
| Type: | Real | | |
| Tax Area: | 75 - CP 250 | Land Use Code | 12 |
| Open Space: | N | DFL | N |
| Historic Property: | N | Remodel Property: | N |
| Multi-Family Redevelopment: | N | | |
| Township: | 7 | Section: | 36 |
| Range: | 35 |
Location |
| Address: | 216 SE 11TH ST COLLEGE PLACE, WA 99324 | Mapsco: | |
| Neighborhood: | A Apartment | Map ID: | |
| Neighborhood CD: | 113021 |
Owner |
| Name: | ROYSE JOHN | Owner ID: | 5982 |
| Mailing Address: | 80 BLACKBERRY LN WALLA WALLA, WA 99362 | % Ownership: | 100.0000000000% |
| | | Exemptions: | |
Taxes and Assessment Details
Values
| (+) Improvement Homesite Value: | + | $0 | |
| (+) Improvement Non-Homesite Value: | + | $159,060 | |
| (+) Land Homesite Value: | + | $0 | |
| (+) Land Non-Homesite Value: | + | $61,090 | |
| (+) Curr Use (HS): | + | $0 | $0 |
| (+) Curr Use (NHS): | + | $0 | $0 |
| | | -------------------------- | |
| (=) Market Value: | = | $220,150 | |
| (–) Productivity Loss: | – | $0 | |
| | | -------------------------- | |
| (=) Subtotal: | = | $220,150 | |
| (+) Senior Appraised Value: | + | $0 | |
| (+) Non-Senior Appraised Value: | + | $220,150 | |
| | | -------------------------- | |
| (=) Total Appraised Value: | = | $220,150 | |
| (–) Senior Exemption Loss: | – | $0 | |
| (–) Exemption Loss: | – | $0 | |
| | | -------------------------- | |
| (=) Taxable Value: | = | $220,150 | |
Taxing Jurisdiction
| Owner: | ROYSE JOHN | | |
| % Ownership: | 100.0000000000% | | |
| Total Value: | $220,150 | | |
| Tax Area: | 75 - CP 250 |
| CERFD | CURRENT EXPENSE REFUND 010 | 0.0000000000 | $220,150 | $220,150 | $0.00 | | |
| CURREXP | CURRENT EXPENSE 010 | 1.0175366760 | $220,150 | $220,150 | $224.01 | | |
| HUMNSERV | HUMAN SERVICES 119 | 0.0250000000 | $220,150 | $220,150 | $5.50 | | |
| SLDREL | SOLDIERS RELIEF 121 | 0.0155990005 | $220,150 | $220,150 | $3.43 | | |
| COLLPLBOND | C OF CP BOND 644 | 0.4374241808 | $220,150 | $220,150 | $96.30 | | |
| COLLPLGEN | CITY OF CP 632 | 1.4453819216 | $220,150 | $220,150 | $318.20 | | |
| EMERGSER | EMS 147 | 0.3792580840 | $220,150 | $220,150 | $83.49 | | |
| EMSRFD | EMS REFUND 147 | 0.0000000000 | $220,150 | $220,150 | $0.00 | | |
| RURALLIB | RURAL LIBRARY 623 | 0.3710609029 | $220,150 | $220,150 | $81.69 | | |
| PORTRFD | PORT REFUND 640 | 0.0000000000 | $220,150 | $220,150 | $0.00 | | |
| PORTWWGEN | PORT OF WW 640 | 0.2460186015 | $220,150 | $220,150 | $54.16 | | |
| SD250BOND | SD #250 BOND 773 | 1.4560608159 | $220,150 | $220,150 | $320.55 | | |
| SD250GEN | SD #250 GENERAL 770 | 2.3880724087 | $220,150 | $220,150 | $525.73 | | |
| ST2 | STATE SCHOOL PART 2 600 | 0.8131451643 | $220,150 | $220,150 | $179.01 | | |
| STATESCHL | STATE SCHOOL 600 | 1.5158548041 | $220,150 | $220,150 | $333.72 | | |
| STREFUND | STATE REFUND LEVY 603 | 0.0000000000 | $220,150 | $220,150 | $0.00 | | |
| | Total Tax Rate: | 10.1104125603 | | | | | |
| | | | | Taxes w/Current Exemptions: | $2,225.79 | | |
| | | | | Taxes w/o Exemptions: | $2,225.79 | | |
Improvement / Building
| Improvement #1: | RESIDENTIAL | State Code: | 12 | 2762.0 sqft | Value: | $159,060 |
| Exterior Wall: | SIDING | Heating/Cooling: | CEILING RADIANT | | Number of Bathrooms: | 3 | Number of Bedrooms: | 7 | | Plumbing: | 15 | Roof Covering: | WOOD SHAKE |
|
| | Type | Description | Class CD | Sub Class CD | Year Built | Area |
| | MA | Main Area | 1 | 30 | 1962 | 2762.0 |
| | SI1 | SITE IMPROVEMENT | 1 | 30 | 1962 | 2.0 |
Sketch
Property Image
Land
| 1 | RES 1 | Converted: Residential | 0.2208 | 9620.00 | 0.00 | 0.00 | 1.00 | $61,090 | $0 |
Roll Value History
| 2026 | N/A | N/A | N/A | N/A | N/A |
| 2025 | $165,200 | $90,720 | $0 | $255,920 | $255,920 |
| 2024 | $165,200 | $61,100 | $0 | $226,300 | $226,300 |
| 2023 | $159,060 | $61,090 | $0 | $220,150 | $220,150 |
| 2022 | $159,060 | $61,090 | $0 | $220,150 | $220,150 |
| 2021 | $122,350 | $61,090 | $0 | $183,440 | $183,440 |
| 2020 | $122,350 | $61,090 | $0 | $183,440 | $183,440 |
| 2019 | $136,640 | $46,800 | $0 | $183,440 | $183,440 |
| 2018 | $130,140 | $46,800 | $0 | $176,940 | $176,940 |
| 2017 | $130,140 | $46,800 | $0 | $176,940 | $176,940 |
| 2016 | $153,100 | $46,800 | $0 | $199,900 | $199,900 |
| 2015 | $153,100 | $46,800 | $0 | $199,900 | $199,900 |
| 2014 | $153,100 | $46,800 | $0 | $199,900 | $199,900 |
| 2013 | $153,100 | $46,800 | $0 | $199,900 | $199,900 |
| 2012 | $153,100 | $46,800 | $0 | $0 | $0 |
| 2011 | $153,100 | $46,800 | $0 | $0 | $0 |
| 2010 | $153,100 | $46,800 | $0 | $0 | $0 |
| 2009 | $153,100 | $46,800 | $0 | $0 | $0 |
| 2008 | $128,700 | $24,400 | $0 | $0 | $0 |
| 2007 | $128,700 | $24,400 | $0 | $0 | $0 |
Deed and Sales History
| 1 | 09/19/2016 | SWD | STATUTORY WARRANTY DEED | REYNARD COREY S | ROYSE JOHN | | | $175,000.00 | 131064 | 2016-07648 |
| 2 | 09/03/2002 | QCD | QUIT CLAIM DEED | REYNARD, RAY | REYNARD, COREY S | | | | 100296 | 100296- |
Payout Agreement
| No payout information available.. |