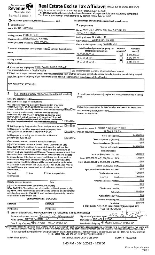
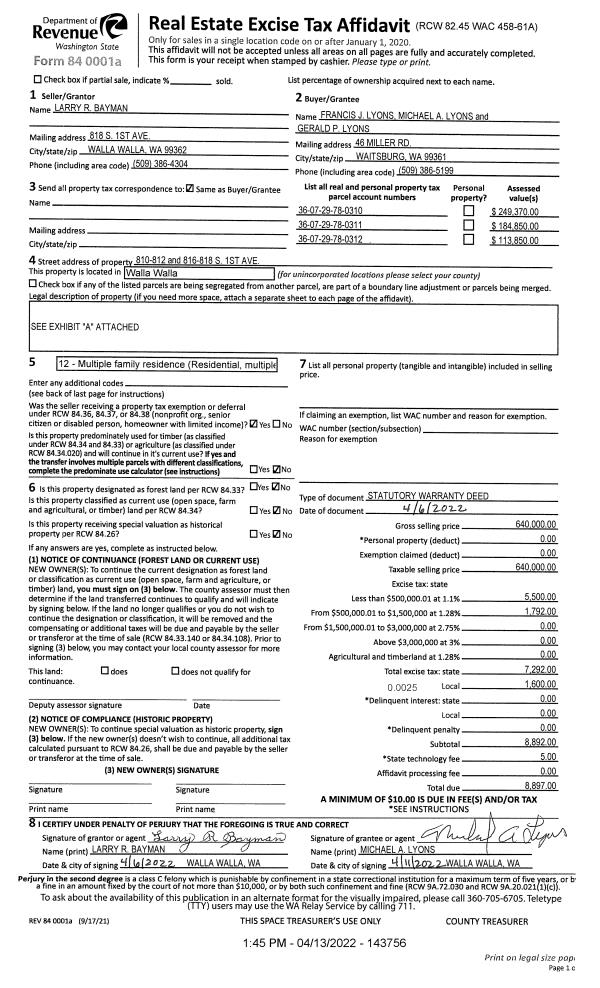
Property
Account |
| Property ID: | 34431 | Abbreviated Legal Description: | SINGLETON'S LOT 3 OF SHORT PLAT; PLUS STRIP TO THE N (PT LOT 5) BLOCK 3 |
| Parcel Number: | 360729780311 | Agent Code: | |
| Type: | Real | | |
| Tax Area: | 1 - OL-140-F | Land Use Code | 12 |
| Open Space: | N | DFL | N |
| Historic Property: | N | Remodel Property: | N |
| Multi-Family Redevelopment: | N | | |
| Township: | 7 | Section: | 29 |
| Range: | 36 |
Location |
| Address: | 818 S 1ST AVE WA 99362 | Mapsco: | |
| Neighborhood: | A Res Duplex | Map ID: | |
| Neighborhood CD: | 613031 |
Owner |
| Name: | LYONS FRANCIS J | Owner ID: | 71483 |
| Mailing Address: | MICHAEL A LYONS & GERALD P LYONS 46 MILLER RD WAITSBURG, WA 99361 | % Ownership: | 100.0000000000% |
| | | Exemptions: | |
Taxes and Assessment Details
Property Tax Information as of
02/21/2026
Click on "Statement Details" to expand or collapse a tax statement.
* Please enter a valid date ** Please enter a valid date *
Statement Details |
| | TOTAL: | $0.00 | $0.00 | $0.00 | $0.00 | $0.00 | $0.00 |
|
| | $0.00 | $0.00 | $0.00 | $0.00 | $0.00 | $0.00 |
Values
| (+) Improvement Homesite Value: | + | $313,370 | |
| (+) Improvement Non-Homesite Value: | + | $0 | |
| (+) Land Homesite Value: | + | $107,720 | |
| (+) Land Non-Homesite Value: | + | $0 | |
| (+) Curr Use (HS): | + | $0 | $0 |
| (+) Curr Use (NHS): | + | $0 | $0 |
| | | -------------------------- | |
| (=) Market Value: | = | $421,090 | |
| (–) Productivity Loss: | – | $0 | |
| | | -------------------------- | |
| (=) Subtotal: | = | $421,090 | |
| (+) Senior Appraised Value: | + | $0 | |
| (+) Non-Senior Appraised Value: | + | $421,090 | |
| | | -------------------------- | |
| (=) Total Appraised Value: | = | $421,090 | |
| (–) Senior Exemption Loss: | – | $0 | |
| (–) Exemption Loss: | – | $0 | |
| | | -------------------------- | |
| (=) Taxable Value: | = | $421,090 | |
Taxing Jurisdiction
| Owner: | LYONS FRANCIS J | | |
| % Ownership: | 100.0000000000% | | |
| Total Value: | $421,090 | | |
| Tax Area: | 1 - OL-140-F |
| CERFD | CURRENT EXPENSE REFUND 010 | 0.0000000000 | $421,090 | $421,090 | $0.00 | | |
| CURREXP | CURRENT EXPENSE 010 | 0.9851088983 | $421,090 | $421,090 | $414.82 | | |
| HUMNSERV | HUMAN SERVICES 119 | 0.0250000000 | $421,090 | $421,090 | $10.53 | | |
| SLDREL | SOLDIERS RELIEF 121 | 0.0155990000 | $421,090 | $421,090 | $6.57 | | |
| EMERGSER | EMS 147 | 0.3676811629 | $421,090 | $421,090 | $154.83 | | |
| EMSRFD | EMS REFUND 147 | 0.0000000000 | $421,090 | $421,090 | $0.00 | | |
| PORTRFD | PORT REFUND 640 | 0.0000000000 | $421,090 | $421,090 | $0.00 | | |
| PORTWWGEN | PORT OF WW 640 | 0.2344301070 | $421,090 | $421,090 | $98.72 | | |
| SD140BOND | SD #140 BOND 764 | 0.8032434458 | $421,090 | $421,090 | $338.24 | | |
| SD140CAP | SD #140 CAP 762 | 0.3840034221 | $421,090 | $421,090 | $161.70 | | |
| SD140GEN | SD #140 GENERAL 760 | 2.4999999996 | $421,090 | $421,090 | $1,052.73 | | |
| ST2 | STATE SCHOOL PART 2 600 | 0.8853714103 | $421,090 | $421,090 | $372.82 | | |
| STATESCHL | STATE SCHOOL 600 | 1.6424571473 | $421,090 | $421,090 | $691.62 | | |
| STREFUND | STATE REFUND LEVY 603 | 0.0000000000 | $421,090 | $421,090 | $0.00 | | |
| CWWBOND | C OF WW BOND 643 | 0.2642134255 | $421,090 | $421,090 | $111.26 | | |
| CWWGEN | CITY OF WW 631 | 1.6110494978 | $421,090 | $421,090 | $678.40 | | |
| CWWRFD | CITY OF WALLA WALLA REFUND 631 | 0.0000000000 | $421,090 | $421,090 | $0.00 | | |
| | Total Tax Rate: | 9.7181575166 | | | | | |
| | | | | Taxes w/Current Exemptions: | $4,092.24 | | |
| | | | | Taxes w/o Exemptions: | $4,092.24 | | |
Improvement / Building
| Improvement #1: | RESIDENTIAL | State Code: | 12 | 1748.0 sqft | Value: | $158,000 |
| Exterior Wall: | SIDING | Foundation: | SLAB FOUNDATION | | Heating/Cooling: | WARM & COOLED AIR | Number of Bathrooms: | 4 | | Number of Bedrooms: | 4 | Plumbing: | 16 | | Roof Covering: | GALVANIZED METAL |   |   |
|
| | Type | Description | Class CD | Sub Class CD | Year Built | Area |
| | MA | Main Area | 1 | 30 | 2005 | 1748.0 |
| | SI1 | SITE IMPROVEMENT | 1 | 30 | 2005 | 3.5 |
| | OSP | Open | 1 | 30 | 2005 | 216.0 |
| | OSP | Open | 1 | 30 | 2005 | 216.0 |
| Improvement #2: | RESIDENTIAL | State Code: | 12 | 1748.0 sqft | Value: | $155,370 |
| Exterior Wall: | SIDING | Foundation: | SLAB FOUNDATION | | Heating/Cooling: | WARM & COOLED AIR | Number of Bathrooms: | 4 | | Number of Bedrooms: | 4 | Plumbing: | 16 | | Roof Covering: | GALVANIZED METAL |   |   |
|
| | Type | Description | Class CD | Sub Class CD | Year Built | Area |
| | MA | Main Area | 1 | 30 | 2005 | 1748.0 |
| | SI1 | SITE IMPROVEMENT | 1 | 30 | 2005 | 3.5 |
| | OSP | Open | 1 | 30 | 2005 | 216.0 |
| | OSP | Open | 1 | 30 | 2005 | 216.0 |
Sketch
Property Image
Land
| 1 | RES 1 | Converted: Residential | 0.2248 | 9793.00 | 0.00 | 0.00 | 1.00 | $107,720 | $0 |
Roll Value History
| 2026 | N/A | N/A | N/A | N/A | N/A |
| 2025 | $313,370 | $107,720 | $0 | $421,090 | $421,090 |
| 2024 | $284,620 | $88,140 | $0 | $372,760 | $372,760 |
| 2023 | $284,620 | $88,140 | $0 | $372,760 | $372,760 |
| 2022 | $142,310 | $71,000 | $0 | $213,310 | $213,310 |
| 2021 | $113,850 | $71,000 | $0 | $184,850 | $81,100 |
| 2020 | $75,900 | $71,000 | $0 | $146,900 | $81,100 |
| 2019 | $75,900 | $71,000 | $0 | $146,900 | $21,100 |
| 2018 | $74,460 | $46,900 | $0 | $121,360 | $21,100 |
| 2017 | $70,920 | $46,900 | $0 | $117,820 | $21,100 |
| 2016 | $64,470 | $46,900 | $0 | $111,370 | $21,100 |
| 2015 | $61,400 | $46,900 | $0 | $108,300 | $21,100 |
| 2014 | $61,400 | $46,900 | $0 | $108,300 | $81,100 |
| 2013 | $61,400 | $46,900 | $0 | $108,300 | $21,100 |
| 2012 | $144,900 | $46,900 | $0 | $191,800 | $31,000 |
| 2011 | $61,400 | $46,900 | $0 | $0 | $0 |
| 2010 | $61,400 | $46,900 | $0 | $0 | $0 |
| 2009 | $68,200 | $46,900 | $0 | $0 | $0 |
| 2008 | $68,200 | $46,900 | $0 | $0 | $0 |
| 2007 | $61,500 | $19,500 | $0 | $0 | $0 |
Deed and Sales History
| 1 | 04/13/2022 | QCD | QUIT CLAIM DEED | SCHNELLER ROSANNE | LYONS GERALD P | | | | 143757 | 2022-03112 |
| 2 | 04/13/2022 | SWD | STATUTORY WARRANTY DEED | BAYMAN LARRY R | LYONS FRANCIS J | | 3-PARCELS | $640,000.00 | 143756 | 2022-03111 |
|   | |
Payout Agreement
| No payout information available.. |