Property
Account |
| Property ID: | 34430 | Abbreviated Legal Description: | SINGLETON'S ADDN LOT 2 OF SHORT PLAT, LESS SLY STRIP (PT LOT 5)BLOCK 3 |
| Parcel Number: | 360729780310 | Agent Code: | |
| Type: | Real | | |
| Tax Area: | 1 - OL-140-F | Land Use Code | 12 |
| Open Space: | N | DFL | N |
| Historic Property: | N | Remodel Property: | N |
| Multi-Family Redevelopment: | N | | |
| Township: | 7 | Section: | 29 |
| Range: | 36 |
Location |
| Address: | 810 S 1ST AVE WA 99362 | Mapsco: | |
| Neighborhood: | A Res Duplex | Map ID: | |
| Neighborhood CD: | 613031 |
Owner |
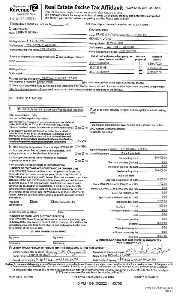
| Name: | LYONS FRANCIS J | Owner ID: | 71483 |
| Mailing Address: | MICHAEL A LYONS & GERALD P LYONS 46 MILLER RD WAITSBURG, WA 99361 | % Ownership: | 100.0000000000% |
| | | Exemptions: | |
Taxes and Assessment Details
Values
| (+) Improvement Homesite Value: | + | N/A | |
| (+) Improvement Non-Homesite Value: | + | N/A | |
| (+) Land Homesite Value: | + | N/A | |
| (+) Land Non-Homesite Value: | + | N/A | Ag / Timber Use Value |
| (+) Curr Use (HS): | + | N/A | N/A |
| (+) Curr Use (NHS): | + | N/A | N/A |
| | | -------------------------- | |
| (=) Market Value: | = | N/A | |
| (–) Productivity Loss: | – | N/A | |
| | | -------------------------- | |
| (=) Subtotal: | = | N/A | |
| (+) Senior Appraised Value: | + | N/A | |
| (+) Non-Senior Appraised Value: | + | N/A | |
| | | -------------------------- | |
| (=) Total Appraised Value: | = | N/A | |
| (–) Senior Exemption Loss: | – | N/A | |
| (–) Exemption Loss: | – | N/A | |
| | | -------------------------- | |
| (=) Taxable Value: | = | N/A | |
Taxing Jurisdiction
| Owner: | LYONS FRANCIS J | | |
| % Ownership: | 100.0000000000% | | |
| Total Value: | N/A | | |
| Tax Area: | 1 - OL-140-F |
| CERFD | CURRENT EXPENSE REFUND 010 | N/A | N/A | N/A | N/A | | |
| CURREXP | CURRENT EXPENSE 010 | N/A | N/A | N/A | N/A | | |
| HUMNSERV | HUMAN SERVICES 119 | N/A | N/A | N/A | N/A | | |
| SLDREL | SOLDIERS RELIEF 121 | N/A | N/A | N/A | N/A | | |
| EMERGSER | EMS 147 | N/A | N/A | N/A | N/A | | |
| EMSRFD | EMS REFUND 147 | N/A | N/A | N/A | N/A | | |
| PORTRFD | PORT REFUND 640 | N/A | N/A | N/A | N/A | | |
| PORTWWGEN | PORT OF WW 640 | N/A | N/A | N/A | N/A | | |
| SD140BOND | SD #140 BOND 764 | N/A | N/A | N/A | N/A | | |
| SD140GEN | SD #140 GENERAL 760 | N/A | N/A | N/A | N/A | | |
| ST2 | STATE SCHOOL PART 2 600 | N/A | N/A | N/A | N/A | | |
| STATESCHL | STATE SCHOOL 600 | N/A | N/A | N/A | N/A | | |
| STREFUND | STATE REFUND LEVY 603 | N/A | N/A | N/A | N/A | | |
| CWWBOND | C OF WW BOND 643 | N/A | N/A | N/A | N/A | | |
| CWWGEN | CITY OF WW 631 | N/A | N/A | N/A | N/A | | |
| CWWRFD | CITY OF WALLA WALLA REFUND 631 | N/A | N/A | N/A | N/A | | |
| | Total Tax Rate: | N/A | | | | | |
| | | | | Taxes w/Current Exemptions: | N/A | | |
| | | | | Taxes w/o Exemptions: | N/A | | |
Improvement / Building
| Improvement #1: | RESIDENTIAL | State Code: | 12 | 1368.0 sqft | Value: | N/A |
| Exterior Wall: | SIDING | Foundation: | SLAB FOUNDATION | | Heating/Cooling: | WARM & COOLED AIR | Number of Bathrooms: | 2 | | Number of Bedrooms: | 1 | Plumbing: | 16 | | Roof Covering: | GALVANIZED METAL |   |   |
|
| | Type | Description | Class CD | Sub Class CD | Year Built | Area |
| | MA | Main Area | 1 | 30 | 2005 | 1368.0 |
| | SI1 | SITE IMPROVEMENT | 1 | 30 | 2005 | 3.0 |
| | DTG | Detached Garage | 1 | 30 | 2005 | 648.0 |
| | DTG | Detached Garage | 1 | 30 | 2005 | 288.0 |
| | GIF | GARAGE INTERIOR FINISH | 1 | 30 | 2005 | 648.0 |
Sketch
Property Image
Land
| 1 | RES 1 | Converted: Residential | 0.1671 | 7280.00 | 0.00 | 0.00 | 1.00 | N/A | N/A |
Roll Value History
| 2026 | N/A | N/A | N/A | N/A | N/A |
| 2025 | $145,010 | $80,080 | $0 | $225,090 | $225,090 |
| 2024 | $245,740 | $65,520 | $0 | $311,260 | $311,260 |
| 2023 | $245,740 | $65,520 | $0 | $311,260 | $311,260 |
| 2022 | $245,740 | $52,780 | $0 | $298,520 | $298,520 |
| 2021 | $196,590 | $52,780 | $0 | $249,370 | $249,370 |
| 2020 | $140,420 | $52,780 | $0 | $193,200 | $193,200 |
| 2019 | $140,420 | $52,780 | $0 | $193,200 | $193,200 |
| 2018 | $141,890 | $43,700 | $0 | $185,590 | $185,590 |
| 2017 | $135,140 | $43,700 | $0 | $178,840 | $178,840 |
| 2016 | $122,850 | $43,700 | $0 | $166,550 | $166,550 |
| 2015 | $117,000 | $43,700 | $0 | $160,700 | $160,700 |
| 2014 | $117,000 | $43,700 | $0 | $160,700 | $160,700 |
| 2013 | $117,000 | $43,700 | $0 | $160,700 | $160,700 |
| 2012 | $117,000 | $43,700 | $0 | $0 | $0 |
| 2011 | $117,000 | $43,700 | $0 | $0 | $0 |
| 2010 | $117,000 | $43,700 | $0 | $0 | $0 |
| 2009 | $134,900 | $43,700 | $0 | $0 | $0 |
| 2008 | $134,900 | $43,700 | $0 | $0 | $0 |
| 2007 | $118,300 | $14,500 | $0 | $0 | $0 |
Deed and Sales History
| 1 | 04/13/2022 | QCD | QUIT CLAIM DEED | SCHNELLER ROSANNE | LYONS GERALD P | | | | 143757 | 2022-03112 |
| 2 | 04/13/2022 | SWD | STATUTORY WARRANTY DEED | BAYMAN LARRY R | LYONS FRANCIS J | | 3-PARCELS | $640,000.00 | 143756 | 2022-03111 |
|   | |
Payout Agreement
| No payout information available.. |