Property
Account |
| Property ID: | 34426 | Abbreviated Legal Description: | SIRMON ADDITION LOT 6 |
| Parcel Number: | 360730600006 | Agent Code: | |
| Type: | Real | | |
| Tax Area: | 6 - OL-140-F-FB | Land Use Code | 12 |
| Open Space: | N | DFL | N |
| Historic Property: | N | Remodel Property: | N |
| Multi-Family Redevelopment: | N | | |
| Township: | 7 | Section: | 30 |
| Range: | 36 |
Location |
| Address: | 315 ROSEHAVEN ST WA 99362 | Mapsco: | |
| Neighborhood: | A Duplex City | Map ID: | |
| Neighborhood CD: | 313031 |
Owner |
| Name: | SIRMON THAD & TAMI | Owner ID: | 56559 |
| Mailing Address: | 805 BETZ LN WALLA WALLA, WA 99362 | % Ownership: | 100.0000000000% |
| | | Exemptions: | |
Taxes and Assessment Details
Values
| (+) Improvement Homesite Value: | + | $0 | |
| (+) Improvement Non-Homesite Value: | + | $305,610 | |
| (+) Land Homesite Value: | + | $0 | |
| (+) Land Non-Homesite Value: | + | $75,000 | |
| (+) Curr Use (HS): | + | $0 | $0 |
| (+) Curr Use (NHS): | + | $0 | $0 |
| | | -------------------------- | |
| (=) Market Value: | = | $380,610 | |
| (–) Productivity Loss: | – | $0 | |
| | | -------------------------- | |
| (=) Subtotal: | = | $380,610 | |
| (+) Senior Appraised Value: | + | $0 | |
| (+) Non-Senior Appraised Value: | + | $380,610 | |
| | | -------------------------- | |
| (=) Total Appraised Value: | = | $380,610 | |
| (–) Senior Exemption Loss: | – | $0 | |
| (–) Exemption Loss: | – | $0 | |
| | | -------------------------- | |
| (=) Taxable Value: | = | $380,610 | |
Taxing Jurisdiction
| Owner: | SIRMON THAD & TAMI | | |
| % Ownership: | 100.0000000000% | | |
| Total Value: | $380,610 | | |
| Tax Area: | 6 - OL-140-F-FB |
| CERFD | CURRENT EXPENSE REFUND 010 | 0.0000000000 | $380,610 | $380,610 | $0.00 | | |
| CURREXP | CURRENT EXPENSE 010 | 1.0175366760 | $380,610 | $380,610 | $387.28 | | |
| HUMNSERV | HUMAN SERVICES 119 | 0.0250000000 | $380,610 | $380,610 | $9.52 | | |
| SLDREL | SOLDIERS RELIEF 121 | 0.0155990005 | $380,610 | $380,610 | $5.94 | | |
| EMERGSER | EMS 147 | 0.3792580840 | $380,610 | $380,610 | $144.35 | | |
| EMSRFD | EMS REFUND 147 | 0.0000000000 | $380,610 | $380,610 | $0.00 | | |
| PORTRFD | PORT REFUND 640 | 0.0000000000 | $380,610 | $380,610 | $0.00 | | |
| PORTWWGEN | PORT OF WW 640 | 0.2460186015 | $380,610 | $380,610 | $93.64 | | |
| SD140BOND | SD #140 BOND 764 | 0.8342371393 | $380,610 | $380,610 | $317.52 | | |
| SD140GEN | SD #140 GENERAL 760 | 2.0646500647 | $380,610 | $380,610 | $785.83 | | |
| ST2 | STATE SCHOOL PART 2 600 | 0.8131451643 | $380,610 | $380,610 | $309.49 | | |
| STATESCHL | STATE SCHOOL 600 | 1.5158548041 | $380,610 | $380,610 | $576.95 | | |
| STREFUND | STATE REFUND LEVY 603 | 0.0000000000 | $380,610 | $380,610 | $0.00 | | |
| CWWBOND | C OF WW BOND 643 | 0.2760494372 | $380,610 | $380,610 | $105.07 | | |
| CWWGEN | CITY OF WW 631 | 1.6100204973 | $380,610 | $380,610 | $612.79 | | |
| CWWRFD | CITY OF WALLA WALLA REFUND 631 | 0.0000000000 | $380,610 | $380,610 | $0.00 | | |
| | Total Tax Rate: | 8.7973694689 | | | | | |
| | | | | Taxes w/Current Exemptions: | $3,348.38 | | |
| | | | | Taxes w/o Exemptions: | $3,348.38 | | |
Improvement / Building
| Improvement #1: | RESIDENTIAL | State Code: | 12 | 2456.0 sqft | Value: | $305,610 |
| Exterior Wall: | PLYWOOD | Heating/Cooling: | WARM & COOLED AIR | | Number of Bathrooms: | 2 | Number of Bedrooms: | 3 | | Plumbing: | 18 | Roof Covering: | COMP SHINGLE |
|
| | Type | Description | Class CD | Sub Class CD | Year Built | Area |
| | MA | Main Area | 1 | 30 | 2006 | 2456.0 |
| | RPC | OPEN PORCH W/ROOF , CEILED | 1 | 30 | 2006 | 45.0 |
| | SI1 | SITE IMPROVEMENT | 1 | 30 | 2006 | 2.0 |
| | RPC | OPEN PORCH W/ROOF , CEILED | 1 | 30 | 2006 | 45.0 |
| | BIG | Built In Garage | 1 | 30 | 2006 | 238.0 |
| | BIG | Built In Garage | 1 | 30 | 2006 | 238.0 |
Sketch
Property Image
Land
| 1 | RES 1 | Converted: Residential | 0.1659 | 7226.00 | 0.00 | 0.00 | 1.00 | $75,000 | $0 |
Roll Value History
| 2026 | N/A | N/A | N/A | N/A | N/A |
| 2025 | $310,600 | $75,000 | $0 | $385,600 | $385,600 |
| 2024 | $310,600 | $75,000 | $0 | $385,600 | $385,600 |
| 2023 | $305,610 | $75,000 | $0 | $380,610 | $380,610 |
| 2022 | $265,750 | $75,000 | $0 | $340,750 | $340,750 |
| 2021 | $247,400 | $60,000 | $0 | $307,400 | $307,400 |
| 2020 | $224,910 | $60,000 | $0 | $284,910 | $284,910 |
| 2019 | $224,910 | $60,000 | $0 | $284,910 | $284,910 |
| 2018 | $224,910 | $60,000 | $0 | $284,910 | $284,910 |
| 2017 | $224,910 | $60,000 | $0 | $284,910 | $284,910 |
| 2016 | $224,910 | $60,000 | $0 | $284,910 | $284,910 |
| 2015 | $205,490 | $60,000 | $0 | $265,490 | $265,490 |
| 2014 | $195,700 | $60,000 | $0 | $255,700 | $255,700 |
| 2013 | $195,700 | $60,000 | $0 | $255,700 | $255,700 |
| 2012 | $195,700 | $60,000 | $0 | $0 | $0 |
| 2011 | $195,700 | $60,000 | $0 | $0 | $0 |
| 2010 | $172,800 | $60,000 | $0 | $0 | $0 |
| 2009 | $198,700 | $60,000 | $0 | $0 | $0 |
| 2008 | $198,700 | $60,000 | $0 | $0 | $0 |
| 2007 | $0 | $2,300 | $0 | $0 | $0 |
Deed and Sales History
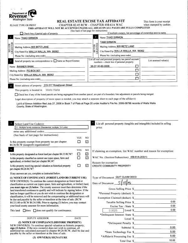
| 1 | 05/18/2015 | QCD | QUIT CLAIM DEED | SIRMON THAD | SIRMON THAD & TAMI | | | $0.00 | 128005 | 2015-04243 |
| 2 | 07/12/2007 | QCD | QUIT CLAIM DEED | SIRMON, THAD CONSTRUCTION INC | SIRMON, THAD | | | | 113256 | 2007-08008 |
Payout Agreement
| No payout information available.. |