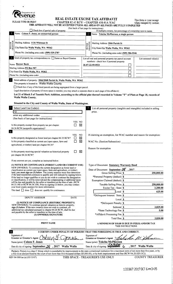
Property
Account |
| Property ID: | 34410 | Abbreviated Legal Description: | TAUSICK PARK LOT 21 BLK 5 |
| Parcel Number: | 360722550521 | Agent Code: | |
| Type: | Real | | |
| Tax Area: | 1 - OL-140-F | Land Use Code | 12 |
| Open Space: | N | DFL | N |
| Historic Property: | N | Remodel Property: | N |
| Multi-Family Redevelopment: | N | | |
| Township: | 7 | Section: | 22 |
| Range: | 36 |
Location |
| Address: | 2066 PARISH ST WA 99362 | Mapsco: | |
| Neighborhood: | A Duplex | Map ID: | |
| Neighborhood CD: | 413031 |
Owner |
| Name: | MCPHERSON TOKCHA | Owner ID: | 61906 |
| Mailing Address: | 2068 PARISH ST WALLA WALLA, WA 99362 | % Ownership: | 100.0000000000% |
| | | Exemptions: | |
Taxes and Assessment Details
Values
| (+) Improvement Homesite Value: | + | $0 | |
| (+) Improvement Non-Homesite Value: | + | $296,170 | |
| (+) Land Homesite Value: | + | $0 | |
| (+) Land Non-Homesite Value: | + | $72,000 | |
| (+) Curr Use (HS): | + | $0 | $0 |
| (+) Curr Use (NHS): | + | $0 | $0 |
| | | -------------------------- | |
| (=) Market Value: | = | $368,170 | |
| (–) Productivity Loss: | – | $0 | |
| | | -------------------------- | |
| (=) Subtotal: | = | $368,170 | |
| (+) Senior Appraised Value: | + | $0 | |
| (+) Non-Senior Appraised Value: | + | $368,170 | |
| | | -------------------------- | |
| (=) Total Appraised Value: | = | $368,170 | |
| (–) Senior Exemption Loss: | – | $0 | |
| (–) Exemption Loss: | – | $0 | |
| | | -------------------------- | |
| (=) Taxable Value: | = | $368,170 | |
Taxing Jurisdiction
| Owner: | MCPHERSON TOKCHA | | |
| % Ownership: | 100.0000000000% | | |
| Total Value: | $368,170 | | |
| Tax Area: | 1 - OL-140-F |
| CERFD | CURRENT EXPENSE REFUND 010 | 0.0000000000 | $368,170 | $368,170 | $0.00 | | |
| CURREXP | CURRENT EXPENSE 010 | 1.0175366760 | $368,170 | $368,170 | $374.63 | | |
| HUMNSERV | HUMAN SERVICES 119 | 0.0250000000 | $368,170 | $368,170 | $9.20 | | |
| SLDREL | SOLDIERS RELIEF 121 | 0.0155990005 | $368,170 | $368,170 | $5.74 | | |
| EMERGSER | EMS 147 | 0.3792580840 | $368,170 | $368,170 | $139.63 | | |
| EMSRFD | EMS REFUND 147 | 0.0000000000 | $368,170 | $368,170 | $0.00 | | |
| PORTRFD | PORT REFUND 640 | 0.0000000000 | $368,170 | $368,170 | $0.00 | | |
| PORTWWGEN | PORT OF WW 640 | 0.2460186015 | $368,170 | $368,170 | $90.58 | | |
| SD140BOND | SD #140 BOND 764 | 0.8342371393 | $368,170 | $368,170 | $307.14 | | |
| SD140GEN | SD #140 GENERAL 760 | 2.0646500647 | $368,170 | $368,170 | $760.14 | | |
| ST2 | STATE SCHOOL PART 2 600 | 0.8131451643 | $368,170 | $368,170 | $299.38 | | |
| STATESCHL | STATE SCHOOL 600 | 1.5158548041 | $368,170 | $368,170 | $558.09 | | |
| STREFUND | STATE REFUND LEVY 603 | 0.0000000000 | $368,170 | $368,170 | $0.00 | | |
| CWWBOND | C OF WW BOND 643 | 0.2760494372 | $368,170 | $368,170 | $101.63 | | |
| CWWGEN | CITY OF WW 631 | 1.6100204973 | $368,170 | $368,170 | $592.76 | | |
| CWWRFD | CITY OF WALLA WALLA REFUND 631 | 0.0000000000 | $368,170 | $368,170 | $0.00 | | |
| | Total Tax Rate: | 8.7973694689 | | | | | |
| | | | | Taxes w/Current Exemptions: | $3,238.92 | | |
| | | | | Taxes w/o Exemptions: | $3,238.92 | | |
Improvement / Building
| Improvement #1: | RESIDENTIAL | State Code: | 12 | 1968.0 sqft | Value: | $296,170 |
| Exterior Wall: | SIDING | Heating/Cooling: | BASEBOARD ELECTRIC | | Number of Bathrooms: | 2 | Number of Bedrooms: | 4 | | Plumbing: | 12 | Roof Covering: | COMP SHINGLE |
|
| | Type | Description | Class CD | Sub Class CD | Year Built | Area |
| | MA | Main Area | 1 | 30 | 1994 | 1968.0 |
| | SI1 | SITE IMPROVEMENT | 1 | 30 | 0 | 3.0 |
| | ATG | Attached Garage | 1 | 30 | 1994 | 240.0 |
| | ATG | Attached Garage | 1 | 30 | 1994 | 240.0 |
| | RPS | PORCH W/STEPS,ROOF | 1 | 30 | 1994 | 64.0 |
| | RPS | PORCH W/STEPS,ROOF | 1 | 30 | 1994 | 64.0 |
Sketch
Property Image
Land
| 1 | RES 1 | Converted: Residential | 0.2066 | 9000.00 | 0.00 | 0.00 | 1.00 | $72,000 | $0 |
Roll Value History
| 2026 | N/A | N/A | N/A | N/A | N/A |
| 2025 | $298,500 | $72,000 | $0 | $370,500 | $370,500 |
| 2024 | $298,500 | $72,000 | $0 | $370,500 | $370,500 |
| 2023 | $296,170 | $72,000 | $0 | $368,170 | $368,170 |
| 2022 | $303,090 | $47,250 | $0 | $350,340 | $350,340 |
| 2021 | $252,570 | $47,250 | $0 | $299,820 | $299,820 |
| 2020 | $202,060 | $47,250 | $0 | $249,310 | $249,310 |
| 2019 | $202,060 | $47,250 | $0 | $249,310 | $249,310 |
| 2018 | $183,690 | $47,250 | $0 | $230,940 | $230,940 |
| 2017 | $141,300 | $47,250 | $0 | $188,550 | $188,550 |
| 2016 | $128,100 | $36,000 | $0 | $164,100 | $164,100 |
| 2015 | $128,100 | $36,000 | $0 | $164,100 | $164,100 |
| 2014 | $128,100 | $36,000 | $0 | $164,100 | $164,100 |
| 2013 | $128,100 | $36,000 | $0 | $164,100 | $164,100 |
| 2012 | $128,100 | $36,000 | $0 | $0 | $0 |
| 2011 | $131,900 | $36,000 | $0 | $0 | $0 |
| 2010 | $131,900 | $36,000 | $0 | $0 | $0 |
| 2009 | $131,900 | $36,000 | $0 | $0 | $0 |
| 2008 | $131,900 | $36,000 | $0 | $0 | $0 |
| 2007 | $131,900 | $36,000 | $0 | $0 | $0 |
Deed and Sales History
| 1 | 10/06/2017 | SWD | STATUTORY WARRANTY DEED | JONES COLEEN | MCPHERSON TOKCHA | | | $250,000.00 | 133367 | 2017-07961 |
| 2 | 09/28/2017 | LOPA | LACK OF PROBATE AFFIDAVIT | JONES DONALD JOE | JONES COLEEN FAYE | | | $0.00 | 133317 | 2017-07728 |
| 3 | | DEATH CERT | DEATH CERTIFICATE | | | | | | 0 | |
| 4 | 01/11/2017 | DEED DEATH | DEED DEATH | JONES COLEEN FAYE | BROWN MELANIE DAWN ET AL | | | | 0 | 2017-00272 |
| 5 | 06/14/2016 | COMMUNITY | COMMUNITY PROPERTY AGREEMENT | JONES DONALD & COLEEN | JONES DONALD & COLEEN | | | | 0 | 2016-04543 |
| 6 | 06/01/1994 | WARRANTY D | WARRANTY DEED | | | | | $16,500.00 | 81767 | 2209-406416 |
Payout Agreement
| No payout information available.. |